Advertorial

Pozvánka na 2. ročník stavebného veľtrhu BigMarket na Slovensku

Na podujatí sa predstaví až 37 vystavovateľov - popredných dodávateľov stavebných materiálov a inovácií s prezentáciou...

Hotel Hirschen Spa House, Rakúsko

Novotvar v prostredí alpskej obce.

Vytvorte si kúpeľňu snov: dizajnové riešenie od značky hansgrohe

Hansgrohe - prémiová značka kúpeľňových riešení, ponúka nadčasový dizajn, technickú precíznosť a udržateľné inovácie...

Okná Internorm za minuloročné ceny + hliníkový kryt zdarma!

Využite špeciálnu akciu Internorm: okná za minuloročné ceny a hliníkový kryt úplne zadarmo. Ponuka je časovo obmedzená!

Moderné plynové technológie: Efektivita a inovácie pre 21. storočie

Sumarizácia najdôležitejších inovácií, ktoré redefinujúcich využitie tohto energetického zdroja.

Utesňovanie spodných stavieb pomocou hydro-aktívnej fólie AMPHIBIA.

AMPHIBIA 3000 GRIP 1.3 od spoločnosti ATRO predstavuje modernú hydroizolačnú technológiu, ktorá spája vysokú odolnosť,...

Dekarbonizácia individuálneho vykurovania domácností – Green Deal evolučne a nie revolučne

Ambiciózne plány EK narazili na ekonomické možnosti domácností v jednotlivých členských štátoch –...

Minimalistické dvere IDEA – technická precíznosť a čistota prevedenia

IDEA DOOR od spoločnosti JAP prináša do interiéru čistý minimalistický vzhľad vďaka bezrámovému riešeniu a precíznej...

Dom s výhľadom na údolie, Dlouhý Most (ČR)

Kontinuita riešenia od vonkajšieho obkladu až po kovania a kľučky.

Schell Vitus – osvedčené riešenie pre sprchy a umývadlá vo verejnom sektore s viac ako desaťročnou tradíciou

Nástenné nadomietkové armatúry Vitus sú mimoriadne vhodné pre rýchlu a efektívnu...

Kompozitné okná predstavujú súčasnosť a budúcnosť

Okenné profily z kompozitného materiálu RAU-FIPRO X od spoločnosti Rehau sú v porovnaní s tradičnými plastovými profilmi mnohonásobne...

Myotis - stoly 2025

Najnovší sortiment stolov pre zariadenie interiérov...

Priemyselné sklenené priečky Dorsis Digero: svetelné rozhranie pre moderné interiéry

Spojenie moderného dizajnu, funkčnosti a svetla do harmonického architektonického prvku.

Význam prirodzeného svetla pre moderné a flexibilné pracovné prostredie

Kancelárska budova Baumit v slovinskom Trzine prešla premenou na moderné a udržateľné pracovisko. Architekti kládli dôraz...

Konferencia Xella Dialóg predstaví novinky a trendy v stavebníctve

Mottom šiesteho ročníku on-line konferencie odborníkov Xella Dialóg je Efektívny návrh budov 2025+: zmeny a riešenia

Rekreačný dom Engel house, Andělská Hora (ČR)

Jasný koncept, čistá dispozícia, surové priznané materiály na fasáde.
Diela
Red 412.01.2018
47020+22
Rekreačný dom Engel house, Andělská Hora (ČR)
Autori: akad. arch. Vít Máslo, dipl. arch. David Richard Chisholm, Ing. arch. Jan HřebíčekSpolupráca: Ing. Daniel Šimpach, Ing. arch. Gabriela SekyrováPlocha pozemku: 2163 m²Zastavaná plocha: 346 m2Návrh: 2015 - 2016Realizácia: 2016 - 2017Adresa: Andělská Hora, Česká republikaPublikované: 12. január 2018

Dvojpodlažná stavba so šikmou strechou a drevenými štítovými stenami čerpá z tradície regiónu. Budovu zvonku definuje drevo, zinkotitánový a kortenový plech. Trvácne povrchy boli zvolené nielen pre minimálne nároky na údržbu, ale tiež s ohľadom na prirodzené starnutie a patinu v prírodnom kontexte miesta.

Víkendový dom stojí v malej obci Andělská Hora, neďaleko kúpeľného mesta Karlove Vary. Od začiatku bolo snahou architektov, aby dom dobre zapadol do romantickej krajiny pod masívnou skalou a zrúcaninou gotického hradu.

Foto: BoysPlayNice
Foto: BoysPlayNice

Územie patrí do chránenej krajinnej oblasti a leží v pomerne vysokej nadmorskej výške. Preto bolo nutné počítať s drsnejším podnebím. Návrh vychádzal z tvaroslovia dedinského domu, ku ktorému patrí sedlová strecha a klasický drevený štít. Objekt musel zároveň spĺňať požiadavky na funkciu moderného rekreačného domu v letnej aj zimnej sezóne. Pozemok má ideálnu južnú orientáciu s prístupom zo severu a ponúka nádherný výhľad do krajiny.

Širšie vzťahy
Širšie vzťahyAutor: CMC architects

Kompozícia a urbanistické riešenie

Po dôkladnej analýze okolia architekti zvolili krížovú dispozíciu. Dvojpodlažnú hmota so sedlovou strechou a titánzinkovu fasádou pretína kubický trakt opláštený korténovým plechom. Tento pôdorysný princíp umožnil odklonenie od prístupovej miestnej komunikácie s vjazdom do garáže a vstupom do domu, na druhej strane vytvára čiastočne uzavretý priestor tvarovaný do písmena L, do ktorého sú orientované hlavné obytné miestnosti na prízemí.

Autor: CMC architects

Konštrukcia

Celá stavba je koncipovaná ako drevostavba. Hlavným konštrukčným prvkom sú drevené veľkoformátové panely a steny, ktoré sú pohľadové aj v interiéri a hrajú dôležitú úlohu vo výtvarnej koncepcii domu.

Foto: BoysPlayNice
Foto: BoysPlayNice
Foto: BoysPlayNice
Foto: BoysPlayNice
Foto: BoysPlayNice

Dispozícia 

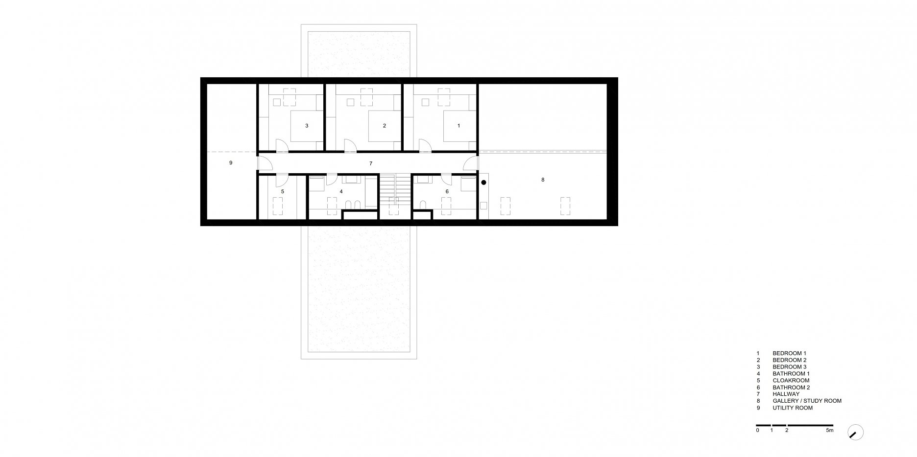
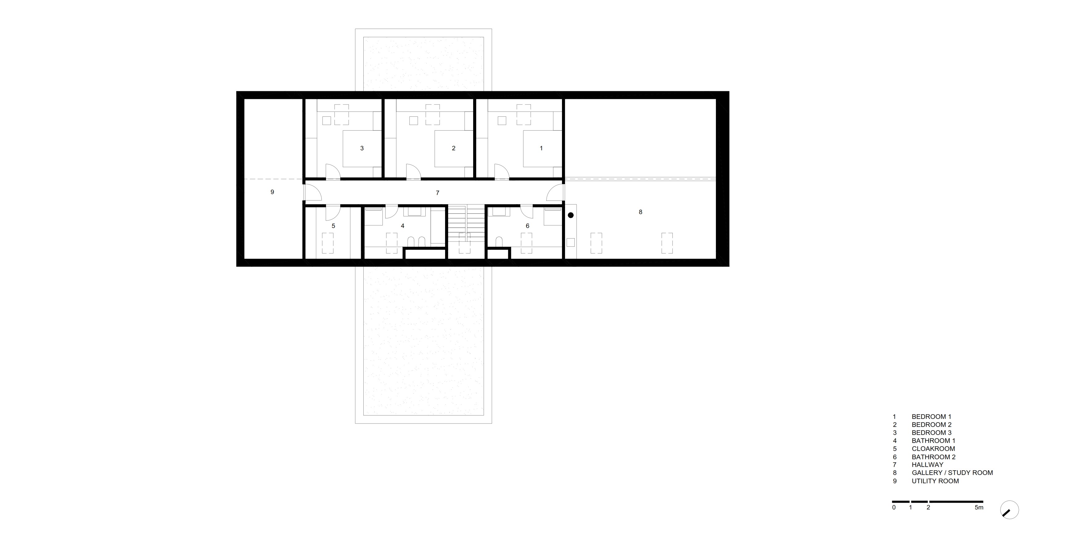
Hlavná obytná miestnosť je situovaná do južného krídla domu s výškou cez dve podlažia. V hornej časti prechádza do priestoru otvorenej galérie. V prevýšenom priestore sú dominantným prvkom svietidlá z ručne fúkaného skla. Súčasťou obývačky je kuchyňa, ktorá nadväzuje na vonkajšiu zastrešenú terasu s vonkajšou kuchyňou a sedením. V priestore medzi kuchyňou a obytným priestorom je krb obložený sivým oceľovým plechom s preskleným ohniskom. Na prízemí sa okrem niekoľkých obslužných miestností zázemia nachádza aj hlavná spálňa s pracovňou. V nočnej časti domu, na poschodí sa nachádzajú tri izby pre hostí s hygienickým zázemím a technická miestnosť.

Hlavným materiálom v interiéri je drevo. Drevené konštrukčné panely sú ošetrené bielou lazúrou, kontrastujú s tmavou drevenou podlahou a dyhovým obložením stien vo vstupnej časti domu. Doplnkovým materiálom je tmavý surový plech použitý na obložení krbu alebo hnedosivý korian na kuchynskej linke. V kúpeľni je použitá veľkoformátová keramika.

Pôdorys 2. NP
Pôdorys 2. NPAutor: CMC architects
Pôdorys 2. NP
Pôdorys 2. NPAutor: CMC architects
Pohľad
PohľadAutor: CMC architects
Pohľad
PohľadAutor: CMC architects

Fasáda a vonkajšie povrchy

Materiály fasády zapadajú do kontextu okolia a pôvodnej zástavby obce. Na štítových stenách bolo použité opalované smrekové drevo. Na potlačenú farebnosť domu nadväzuje sivá plechová krytina strechy. Kompozíciu oživuje hrdzavá patina jednopodlažného traktu. Povrchy boli zvolené s ohľadom na prirodzené starnutie. Časom stmavnú a zapadnú do okolitej prírody. Pre exteriérovú terasu bolo použité drevo IPE s veľkou odolnosťou voči poveternostným vplyvom.

Foto: BoysPlayNice
Foto: BoysPlayNice

Záhrada

V okolí domu sú vysadené dreviny bežné v okolitej prírode. Dôraz bol kladený najmä na minimálne nároky na údržbu a úpravu záhrady. Súčasťou dvora je desaťmetrový bazén. O vykurovanie sa stará rovnako ako pri dome tepelné čerpadlo.

Foto: BoysPlayNice
Foto: BoysPlayNice
Foto: BoysPlayNice
Foto: BoysPlayNice
Foto: BoysPlayNice
Foto: BoysPlayNice
Foto: BoysPlayNice
Foto: BoysPlayNice
Foto: BoysPlayNice
Foto: BoysPlayNice
Foto: BoysPlayNice
Foto: BoysPlayNice
Foto: BoysPlayNice
Foto: BoysPlayNice
Foto: BoysPlayNice
Foto: BoysPlayNice
Foto: BoysPlayNice
Foto: BoysPlayNice
Foto: BoysPlayNice
Foto: BoysPlayNice

Poloha diela

akad. arch. Vít Máslo
dipl. arch. David Richard Chisholm
Ing. arch. Jan Hřebíček

Súvisiace články

Vložené
13. december 2017
0
4702
Hlavný obsahHlavný obsah
Čakajte prosím