Na podujatí sa predstaví až 37 vystavovateľov - popredných dodávateľov stavebných materiálov a inovácií s prezentáciou...
Novotvar v prostredí alpskej obce.
Hansgrohe - prémiová značka kúpeľňových riešení, ponúka nadčasový dizajn, technickú precíznosť a udržateľné inovácie...
Využite špeciálnu akciu Internorm: okná za minuloročné ceny a hliníkový kryt úplne zadarmo. Ponuka je časovo obmedzená!
Sumarizácia najdôležitejších inovácií, ktoré redefinujúcich využitie tohto energetického zdroja.
AMPHIBIA 3000 GRIP 1.3 od spoločnosti ATRO predstavuje modernú hydroizolačnú technológiu, ktorá spája vysokú odolnosť,...
Ambiciózne plány EK narazili na ekonomické možnosti domácností v jednotlivých členských štátoch –...
IDEA DOOR od spoločnosti JAP prináša do interiéru čistý minimalistický vzhľad vďaka bezrámovému riešeniu a precíznej...
Kontinuita riešenia od vonkajšieho obkladu až po kovania a kľučky.
Nástenné nadomietkové armatúry Vitus sú mimoriadne vhodné pre rýchlu a efektívnu...
Okenné profily z kompozitného materiálu RAU-FIPRO X od spoločnosti Rehau sú v porovnaní s tradičnými plastovými profilmi mnohonásobne...
Najnovší sortiment stolov pre zariadenie interiérov...
Spojenie moderného dizajnu, funkčnosti a svetla do harmonického architektonického prvku.
Kancelárska budova Baumit v slovinskom Trzine prešla premenou na moderné a udržateľné pracovisko. Architekti kládli dôraz...
Mottom šiesteho ročníku on-line konferencie odborníkov Xella Dialóg je Efektívny návrh budov 2025+: zmeny a riešenia

Umiestnenie domu v strede neveľkej parcely na okraji mesta Mělník akcentuje prepojenie domu s výhľadmi do krajiny. V každej zo štyroch fasád je zapustený jeden otvor rámujúci špecifický, pre každú stranu jedinečný výhľad - na vinicu, panorámu mesta, barokovú kaplnku a siluetu krajiny. Veľkosť a proporcia okenných otvorov je určená predovšetkým vzťahom medzi interiérom a charakterom jednotlivých výhľadov.
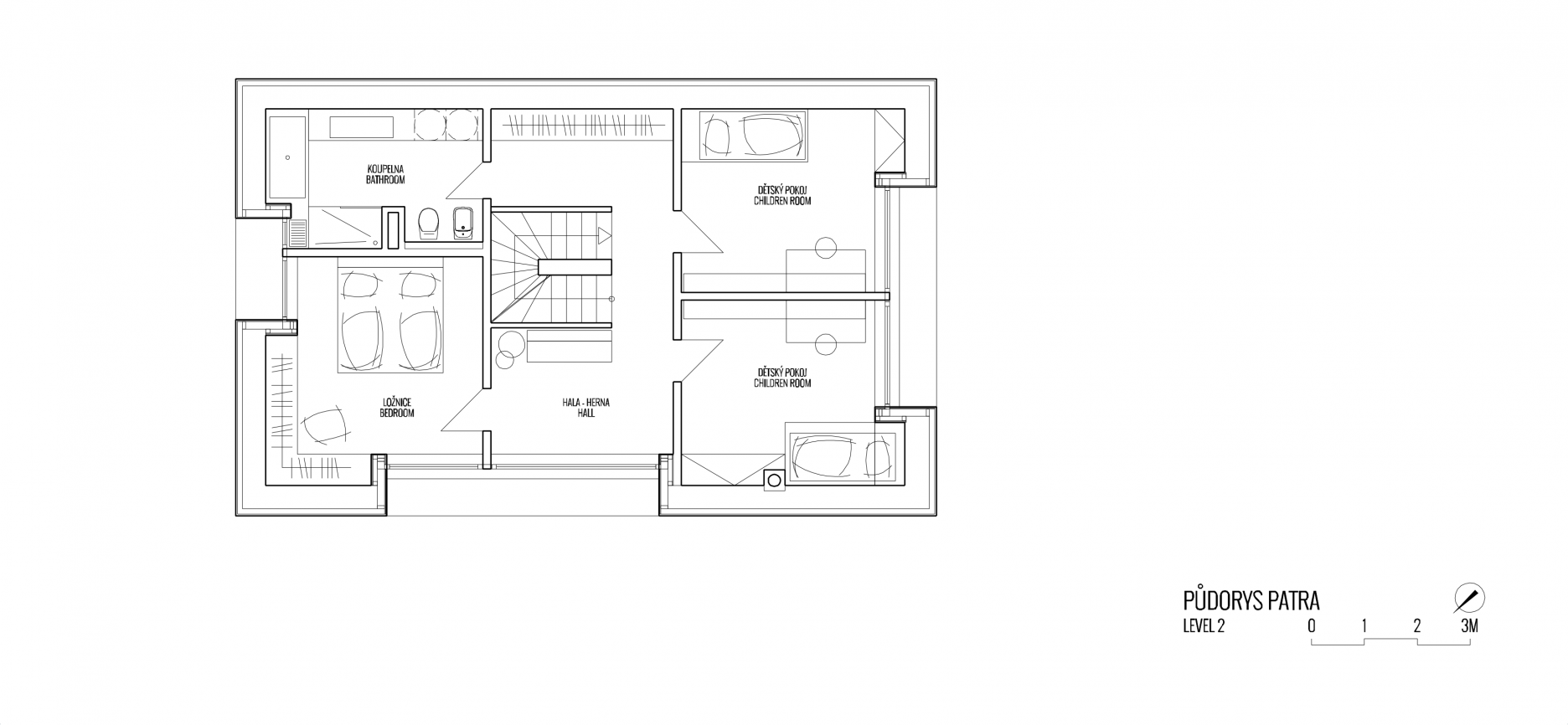
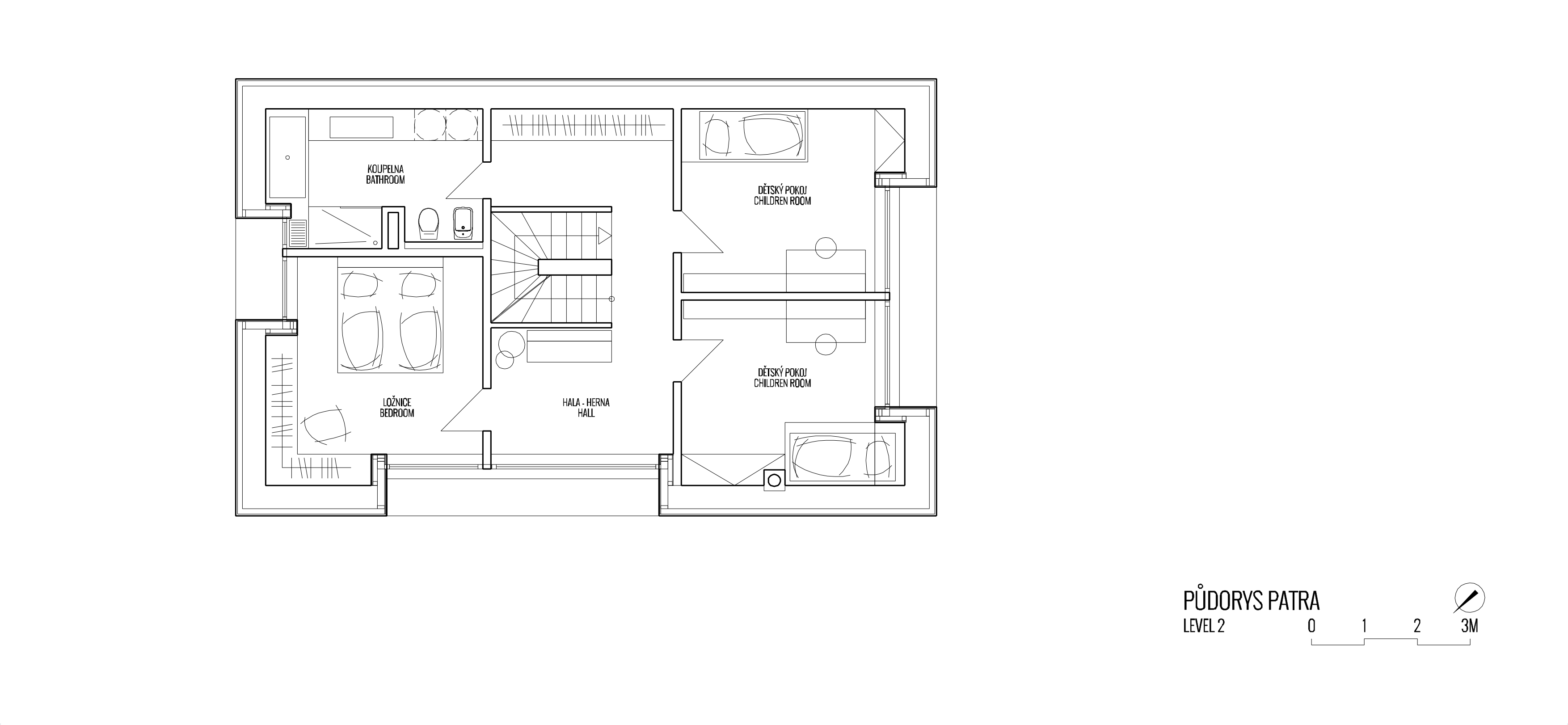
Jednogeneračný rodinný dom s pôdorysnými rozmermi 13,3 × 8,3 m má dve obytné podlažia. Na prízemí domu sú denné miestnosti, na poschodí nočná časť so spálňami. Nízky parapet v detských izbách a herni nebráni vo výhľadoch ani tým najmenším obyvateľom. Drevené schodisko prechádza stredom domu až do strešnej nadstavby s terasou, ktorá ponúka v letných mesiacoh ďalší pobytový priestor. Zapustenie okien chráni miestnosti pred ostrým slnečným svetlom a nepriazňou počasia. Hĺbka zapustenia tvorí v interiéri pri stenách okolo okien 60 cm hlboké niky určené pre vstavaný nábytok. To poskytuje v miestnostiach dostatok priestoru pre úložné skrine a knižnice, ktoré nezasahujú do čistého obdĺžnikového pôdorysu.
Najväčším priestorom na prízemí je obývacia izba s kuchyňou. Malá pracovňa a technická miestnosť sú prístupné z predsiene.
Na poschodí tvorí hala so schodiskom ústredný priestor spálňovej časti. Miestnosť pred kúpeľňou slúži ako šatník, zvyšná časť haly je herňou pre deti. Tri izby sú situované v rohoch dispozície.
Vretenové schodisko pokračuje do strešnej nadstavby, z ktorej je prístupná strešná terasa.
Obvodové murivo a vnútorné priečky sú murované z keramických tvaroviek, ktoré sú z vonkajšej strany zateplené kontaktným systémom. Konštrukcia strešnej nadstavby a zapustených okenných ník je drevená montovaná, s izolačnou výplňou. Tesárska konštrukcia sa skladá z nosného rámu a pomocnej kostry. Medziokenné panely a strešná nadstavba sú obložené smrekovcovým drevom. Železobetónové monolitické stropy v interiéri sú priznané ako pohľadové.
Dom je navrhnutý v nízkoenergetickom štandarde. Vykurovanie zabezpečuje peletkový kotol. Vetranie je prirodzené. Kanalizácia ústi do domácej čističky odpadových vôd, dažďová voda je zvedená drenážnym systémom do vsaku.
Záhradné úpravy sú zredukované na minimum. Situovanie domu na stred parcely ignoruje tradičné delenie záhrady na funkčné zóny a necháva vyniknúť samotnú krajinu. Zaujme absencia spevnených plôch, dokonca aj v polohe pri vstupe. Na pozemku sú vysadené hospodárske rastliny a staré odrody ovocných drevín.
Podklady: Skutek architecture