Advertorial

Pozvánka na 2. ročník stavebného veľtrhu BigMarket na Slovensku

Na podujatí sa predstaví až 37 vystavovateľov - popredných dodávateľov stavebných materiálov a inovácií s prezentáciou...

Hotel Hirschen Spa House, Rakúsko

Novotvar v prostredí alpskej obce.

Vytvorte si kúpeľňu snov: dizajnové riešenie od značky hansgrohe

Hansgrohe - prémiová značka kúpeľňových riešení, ponúka nadčasový dizajn, technickú precíznosť a udržateľné inovácie...

Okná Internorm za minuloročné ceny + hliníkový kryt zdarma!

Využite špeciálnu akciu Internorm: okná za minuloročné ceny a hliníkový kryt úplne zadarmo. Ponuka je časovo obmedzená!

Moderné plynové technológie: Efektivita a inovácie pre 21. storočie

Sumarizácia najdôležitejších inovácií, ktoré redefinujúcich využitie tohto energetického zdroja.

Utesňovanie spodných stavieb pomocou hydro-aktívnej fólie AMPHIBIA.

AMPHIBIA 3000 GRIP 1.3 od spoločnosti ATRO predstavuje modernú hydroizolačnú technológiu, ktorá spája vysokú odolnosť,...

Dekarbonizácia individuálneho vykurovania domácností – Green Deal evolučne a nie revolučne

Ambiciózne plány EK narazili na ekonomické možnosti domácností v jednotlivých členských štátoch –...

Minimalistické dvere IDEA – technická precíznosť a čistota prevedenia

IDEA DOOR od spoločnosti JAP prináša do interiéru čistý minimalistický vzhľad vďaka bezrámovému riešeniu a precíznej...

Dom s výhľadom na údolie, Dlouhý Most (ČR)

Kontinuita riešenia od vonkajšieho obkladu až po kovania a kľučky.

Schell Vitus – osvedčené riešenie pre sprchy a umývadlá vo verejnom sektore s viac ako desaťročnou tradíciou

Nástenné nadomietkové armatúry Vitus sú mimoriadne vhodné pre rýchlu a efektívnu...

Kompozitné okná predstavujú súčasnosť a budúcnosť

Okenné profily z kompozitného materiálu RAU-FIPRO X od spoločnosti Rehau sú v porovnaní s tradičnými plastovými profilmi mnohonásobne...

Myotis - stoly 2025

Najnovší sortiment stolov pre zariadenie interiérov...

Priemyselné sklenené priečky Dorsis Digero: svetelné rozhranie pre moderné interiéry

Spojenie moderného dizajnu, funkčnosti a svetla do harmonického architektonického prvku.

Význam prirodzeného svetla pre moderné a flexibilné pracovné prostredie

Kancelárska budova Baumit v slovinskom Trzine prešla premenou na moderné a udržateľné pracovisko. Architekti kládli dôraz...

Konferencia Xella Dialóg predstaví novinky a trendy v stavebníctve

Mottom šiesteho ročníku on-line konferencie odborníkov Xella Dialóg je Efektívny návrh budov 2025+: zmeny a riešenia

Rodinný dom medzi vinicami, Klentnice

Nové v tradičnom prostredí. Kontextualita trochu inak.
Diela
Red 426.07.2017
101160+52
Rodinný dom medzi vinicami, Klentnice
Autori: prof. Ing. arch. Ján Stempel, Ing. arch. Jan Jakub TesařPlocha pozemku: 1090 m2Zastavaná plocha: 190 m2Podlažná plocha: 210 m2Návrh: 2014 - 2015Realizácia: 2015 - 2017Adresa: Klentnice, Česká republikaPublikované: 26. júl 2017

Ďalší dom rešpektujúci miestne špecifiká (slovensko-českého/česko-slovenského) autorského tímu Stempel&Tesař, dlhodobo pôsobiaceho v Prahe, predstavujú sami architekti:

Doslova nesoulad požadavků čekal na startovní čáře při návrhu rodinného domu do Chráněné krajinné oblasti Pálava. Vinařská vesnice na úpatí pálavských vrchů u nádrže Vodní Mlýny má jedinečný charakter, který se snaží svými předpisy chránit Správa CHKO. Obdobné předpisy však ignorují současné možnosti a často vyžadují až repliky lidové architektury.

Foto: David Korsa
Foto: David Korsa

Majitelé si přitom přáli dům s rovnou střechou, měli mimo jiné velké nároky na parkování, přáli si garáž pro motorku a kancelář na přízemí a přitom chtěli bydlet na jednom podlaží se vstupem na zahradu. Díky terénu byly jejich požadavky stoprocentně splněny, a to i včetně stavby tradiční formy se sedlovou střechou, kterou vyžadovalo CHKO. De facto jsme navrhli domy dva.

Foto: David Korsa

Spád pozemku umožnil samotný rodinný dům zapustit do svahu, navrhnout jej s rovnou střechou a všechny obytné místnosti napojit na zahradu. Okouzlili nás vápencové zdi, které se ve vesnici vyskytují nejen u vinných sklepů, proto jsme tento materiál v průčelí domu použili. Lemuje velkoformátové prosklení, které svým přesahem chrání železobetonový strop a atika.

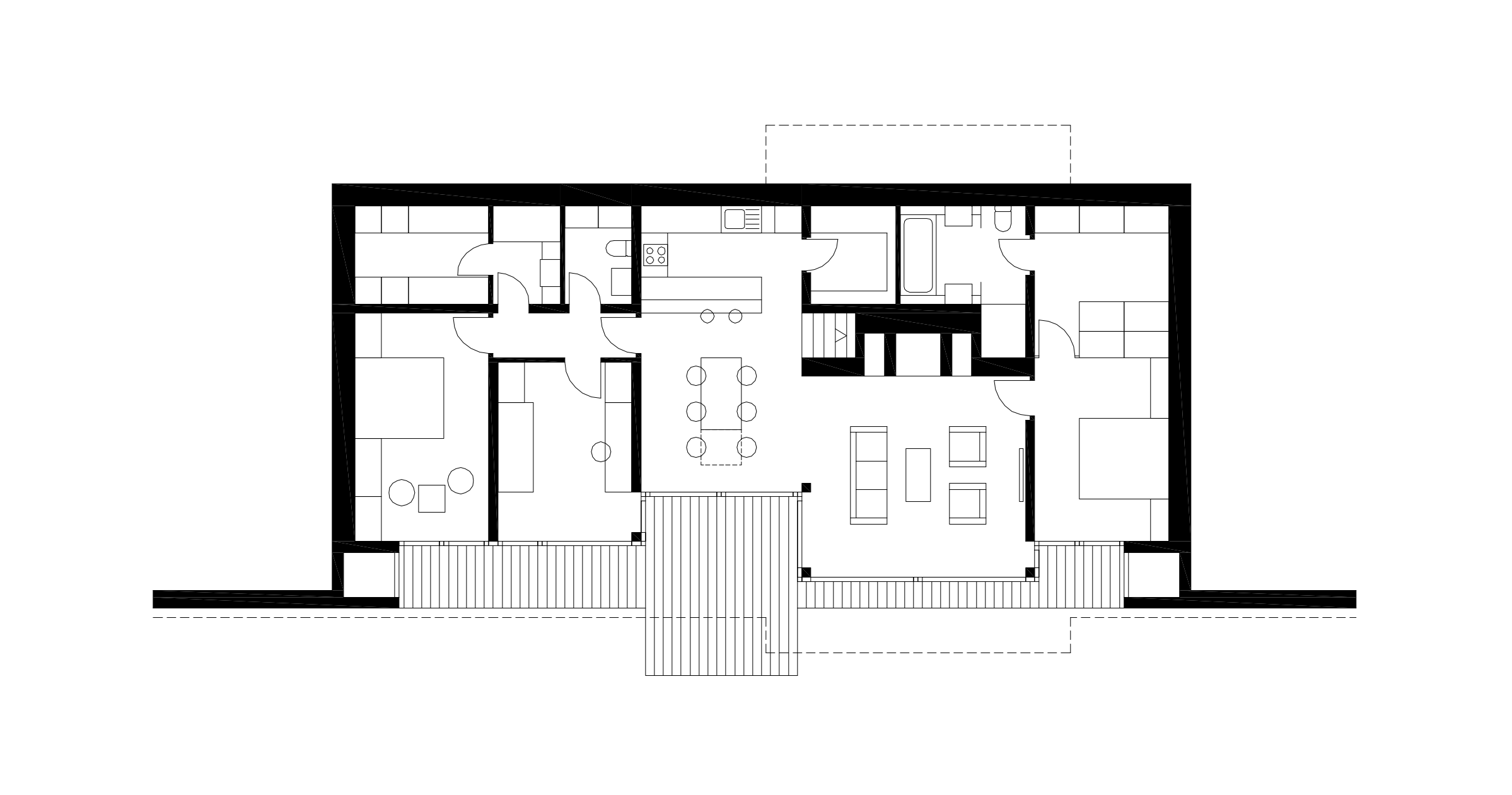
Pôdorys 2. NP
Pôdorys 2. NP
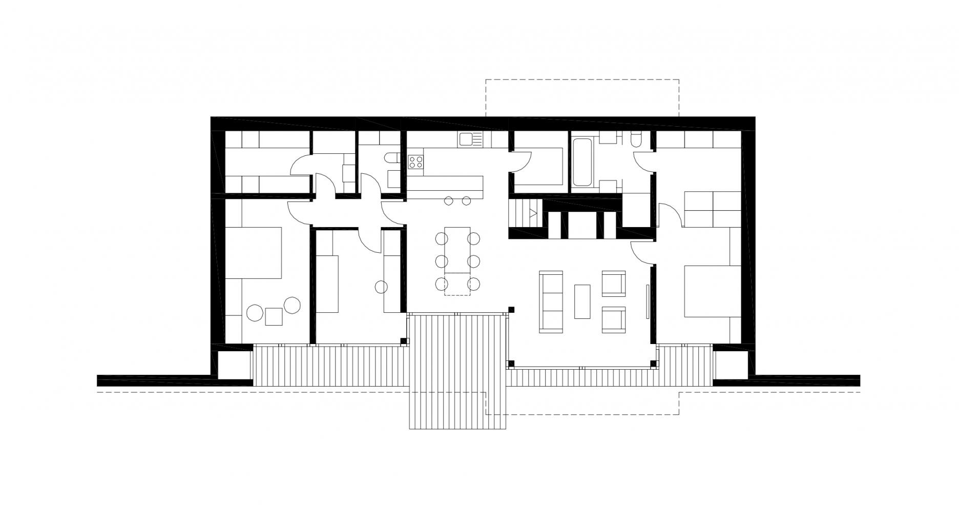
Pôdorys 1. NP
Pôdorys 1. NP
Rez
Rez

Na uliční úrovni, která je o celé patro výše, se na ploché střeše vytvořil dostatečný prostor pro parkování aut. Garáž pro motorku, vstup do domu a kancelář s výhledem na vinice a vodní nádrže dostala archetypální formu, tak, aby splňovala požadavky CHKO a tvarově zapadla do vesnické struktury. Její soudobý výraz jsme dosáhly abstraktním pojetím; materiálově jsme sjednotili střechu i fasády do černého plechu.

Obě formy se vzájemně doplňují v jeden kompoziční celek. Konstrukčně se však jedná o dva samostatné celky. Nosnou část spodní části tvoří železobeton, který je i přiznám v interiéru. Horní stavba je z tenkostěnných ocelových profilů.

Dům v Klentnice je trochu jako vinný sklep. Obklopený vinicemi se před rozpálenými paprsky slunce chrání úrodnou zeminou.  Je prostý a syrový v materiálech, ale přitom útulný, aby si v něm člověk mohl vychutnávat život a plody přírody.

Foto: David Korsa
Foto: David Korsa
Foto: David Korsa
Foto: David Korsa
Foto: David Korsa
Foto: David Korsa
Foto: David Korsa
Foto: David Korsa
Foto: David Korsa

Podklady: Jan Stempel

Poloha diela

prof. Ing. arch. Ján Stempel
Ing. arch. Jan Jakub Tesař

Súvisiace články

Vložené
21. júl 2017
0
10116
Hlavný obsahHlavný obsah
Čakajte prosím