Na podujatí sa predstaví až 37 vystavovateľov - popredných dodávateľov stavebných materiálov a inovácií s prezentáciou...
Novotvar v prostredí alpskej obce.
Hansgrohe - prémiová značka kúpeľňových riešení, ponúka nadčasový dizajn, technickú precíznosť a udržateľné inovácie...
Využite špeciálnu akciu Internorm: okná za minuloročné ceny a hliníkový kryt úplne zadarmo. Ponuka je časovo obmedzená!
Sumarizácia najdôležitejších inovácií, ktoré redefinujúcich využitie tohto energetického zdroja.
AMPHIBIA 3000 GRIP 1.3 od spoločnosti ATRO predstavuje modernú hydroizolačnú technológiu, ktorá spája vysokú odolnosť,...
Ambiciózne plány EK narazili na ekonomické možnosti domácností v jednotlivých členských štátoch –...
IDEA DOOR od spoločnosti JAP prináša do interiéru čistý minimalistický vzhľad vďaka bezrámovému riešeniu a precíznej...
Kontinuita riešenia od vonkajšieho obkladu až po kovania a kľučky.
Nástenné nadomietkové armatúry Vitus sú mimoriadne vhodné pre rýchlu a efektívnu...
Okenné profily z kompozitného materiálu RAU-FIPRO X od spoločnosti Rehau sú v porovnaní s tradičnými plastovými profilmi mnohonásobne...
Najnovší sortiment stolov pre zariadenie interiérov...
Spojenie moderného dizajnu, funkčnosti a svetla do harmonického architektonického prvku.
Kancelárska budova Baumit v slovinskom Trzine prešla premenou na moderné a udržateľné pracovisko. Architekti kládli dôraz...
Mottom šiesteho ročníku on-line konferencie odborníkov Xella Dialóg je Efektívny návrh budov 2025+: zmeny a riešenia

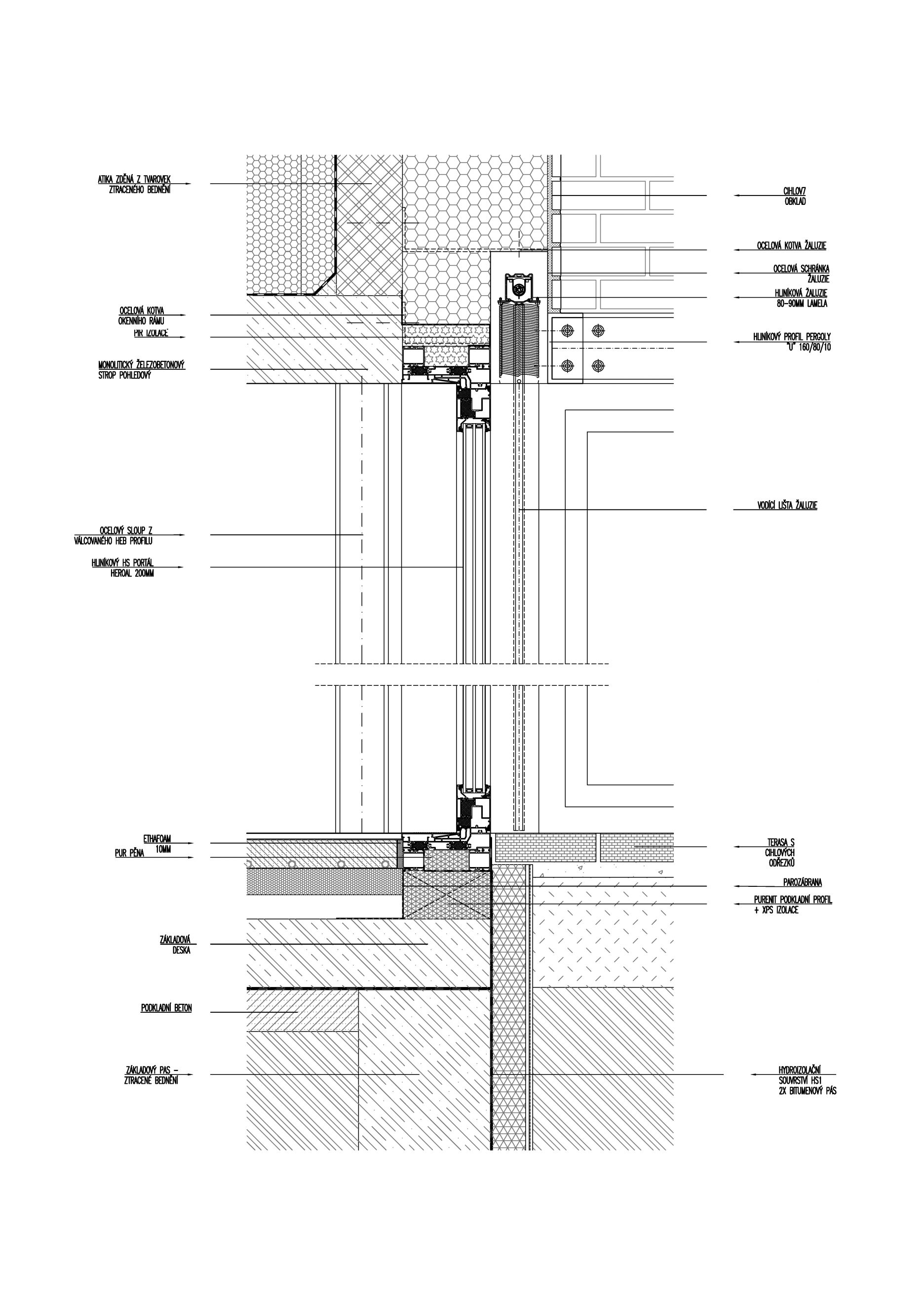
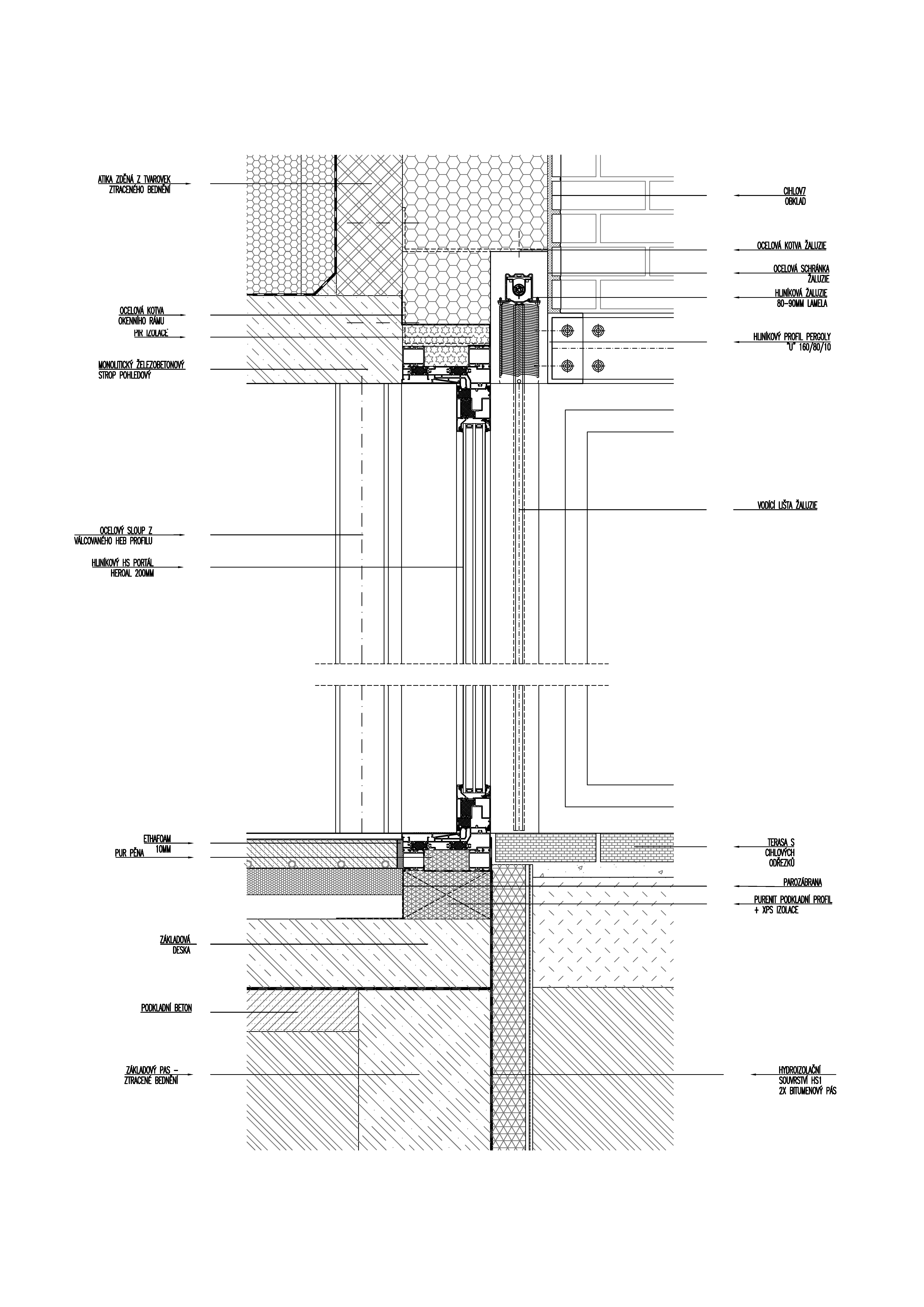
Aktuálna realizácia autorského kolektívu Stempel & Tesar architekti. Kompaktný dom s efektívne vyriešenou dispozíciou sa rozsiahlym presklením otvára do zapusteného "poloátria". Zvolené architektonické riešenie zachováva súkromie majiteľov a zároveň bezbariérovo prepája bývanie so záhradou.
Realizáciu bližšie predstavia autori:
Na malém pozemku v Řepích jsme navrhli světlý a vzdušný dům se třemi ložnicemi, který svým majitelům zajišťuje soukromí i prostor pro relaxaci. Stavební pozemek se nachází v okrajové části Prahy 6 v Řepích, na hranici rostlé parcelace původní zástavby, v oblasti rodinných domů z druhé poloviny 20. století, a přitom v těsné blízkosti panelového sídliště.
Pozemek vznikl rozdělením části zahrady sousedního domu. To s sebou přineslo řadu problémů, se kterými jsme se na minimálním pozemku museli vypořádat. Stavbu jsme umístili k severní hraně pozemku. Díky jednopodlažnímu uspořádání neomezuje své okolí. Prostřední, celoprosklená část domu, která je hlavním obytným prostorem, je oproti ostatním částem zúžená, aby vytvořila kryté poloviční atrium. Symbolicky jej uzavírá zeď zahradního domu souseda, na které je murál výtvarníka Jana Šerých. Zapadá sem také návrh zahrady od Lucie Vogelové, který se podařilo sladit s architekturou objektu. Vždy, když se nakonec povede stísněný pozemek využít, je to pozitivní signál, že města lze stále zahušťovat a stavět bez nutnosti rozšiřování dopravní infrastruktury. Když se navíc splní všechna přání investorů, je to důvod k oslavě.
Na západní straně dispozici uzavírá křídlo se třemi ložnicemi a koupelnou. Fasáda nese tmavý cihelný obklad, střechu kryje extenzivní vegetace. Zbytky cihel, které po páscích běžně likvidují, jsme použili na vydláždění terasy a garážového stání. Přístřešek pro automobil a zastřešení terasy zajišťuje lehká konstrukce z ocelových profilů a sklolaminátu. Jednoduché černobílé pojetí interiéru ladí díky černým rámům hliníkových oken s exteriérem. Neutrální odstíny jemně doplňuje solitérní nábytek ze světlé dýhy.
Autori: Stempel & Tesar architekti
Fotografie: Filip Šlapal