Advertorial

Pozvánka na 2. ročník stavebného veľtrhu BigMarket na Slovensku

Na podujatí sa predstaví až 37 vystavovateľov - popredných dodávateľov stavebných materiálov a inovácií s prezentáciou...

Hotel Hirschen Spa House, Rakúsko

Novotvar v prostredí alpskej obce.

Vytvorte si kúpeľňu snov: dizajnové riešenie od značky hansgrohe

Hansgrohe - prémiová značka kúpeľňových riešení, ponúka nadčasový dizajn, technickú precíznosť a udržateľné inovácie...

Okná Internorm za minuloročné ceny + hliníkový kryt zdarma!

Využite špeciálnu akciu Internorm: okná za minuloročné ceny a hliníkový kryt úplne zadarmo. Ponuka je časovo obmedzená!

Moderné plynové technológie: Efektivita a inovácie pre 21. storočie

Sumarizácia najdôležitejších inovácií, ktoré redefinujúcich využitie tohto energetického zdroja.

Utesňovanie spodných stavieb pomocou hydro-aktívnej fólie AMPHIBIA.

AMPHIBIA 3000 GRIP 1.3 od spoločnosti ATRO predstavuje modernú hydroizolačnú technológiu, ktorá spája vysokú odolnosť,...

Dekarbonizácia individuálneho vykurovania domácností – Green Deal evolučne a nie revolučne

Ambiciózne plány EK narazili na ekonomické možnosti domácností v jednotlivých členských štátoch –...

Minimalistické dvere IDEA – technická precíznosť a čistota prevedenia

IDEA DOOR od spoločnosti JAP prináša do interiéru čistý minimalistický vzhľad vďaka bezrámovému riešeniu a precíznej...

Dom s výhľadom na údolie, Dlouhý Most (ČR)

Kontinuita riešenia od vonkajšieho obkladu až po kovania a kľučky.

Schell Vitus – osvedčené riešenie pre sprchy a umývadlá vo verejnom sektore s viac ako desaťročnou tradíciou

Nástenné nadomietkové armatúry Vitus sú mimoriadne vhodné pre rýchlu a efektívnu...

Kompozitné okná predstavujú súčasnosť a budúcnosť

Okenné profily z kompozitného materiálu RAU-FIPRO X od spoločnosti Rehau sú v porovnaní s tradičnými plastovými profilmi mnohonásobne...

Myotis - stoly 2025

Najnovší sortiment stolov pre zariadenie interiérov...

Priemyselné sklenené priečky Dorsis Digero: svetelné rozhranie pre moderné interiéry

Spojenie moderného dizajnu, funkčnosti a svetla do harmonického architektonického prvku.

Význam prirodzeného svetla pre moderné a flexibilné pracovné prostredie

Kancelárska budova Baumit v slovinskom Trzine prešla premenou na moderné a udržateľné pracovisko. Architekti kládli dôraz...

Konferencia Xella Dialóg predstaví novinky a trendy v stavebníctve

Mottom šiesteho ročníku on-line konferencie odborníkov Xella Dialóg je Efektívny návrh budov 2025+: zmeny a riešenia

Usadlosť v južných Čechách, Smrčná

Novostavba ovplyvnená miestnou tradíciou.
Diela
Red 404.06.2021
34360+30
Usadlosť v južných Čechách, Smrčná
Autori: prof. Ing. arch. Ján Stempel, Ing. arch. Jan Jakub TesařSpolupráca: Ondřej Moravec, Jaroslav ŠarounPlocha pozemku: 32 839 m2Zastavaná plocha: 304 m2Podlažná plocha: 397 m2Návrh: 2014 - 2017Realizácia: 2017 - 2020Adresa: Smrčná, Česká republikaPublikované: 4. jún 2021

Realizácia z dielne autorského kolektívu Stempel & Tesar architekti. Víkendové sídlo, prepojené s trojhektárovým pozemkom. Bývanie oddeľuje od ulice múr lícujúci so štítmi, ktorý vytvára charakteristickú siluetu usadlosti. Abstrahová archetypálna forma a proporcie novostavieb rešpektjú kontext rastlej vidieckej zástavby a tvoria prirodzenú súčasť okrajovej časti sídla. 

Foto: Fotes

Realizáciu predstavíme už tradične prostredníctvom autorského textu:

Víkendová usedlost stojí v jihočeské vesnici na pomezí přírodního parku Česká Kanada. Hmotové řešení souboru, naplňující osobité požadavky investora, vychází z místní lidové architektury. 

Foto: Aleš Moravec
Situácia
SituáciaAutor: Stempel & Tesar architekti

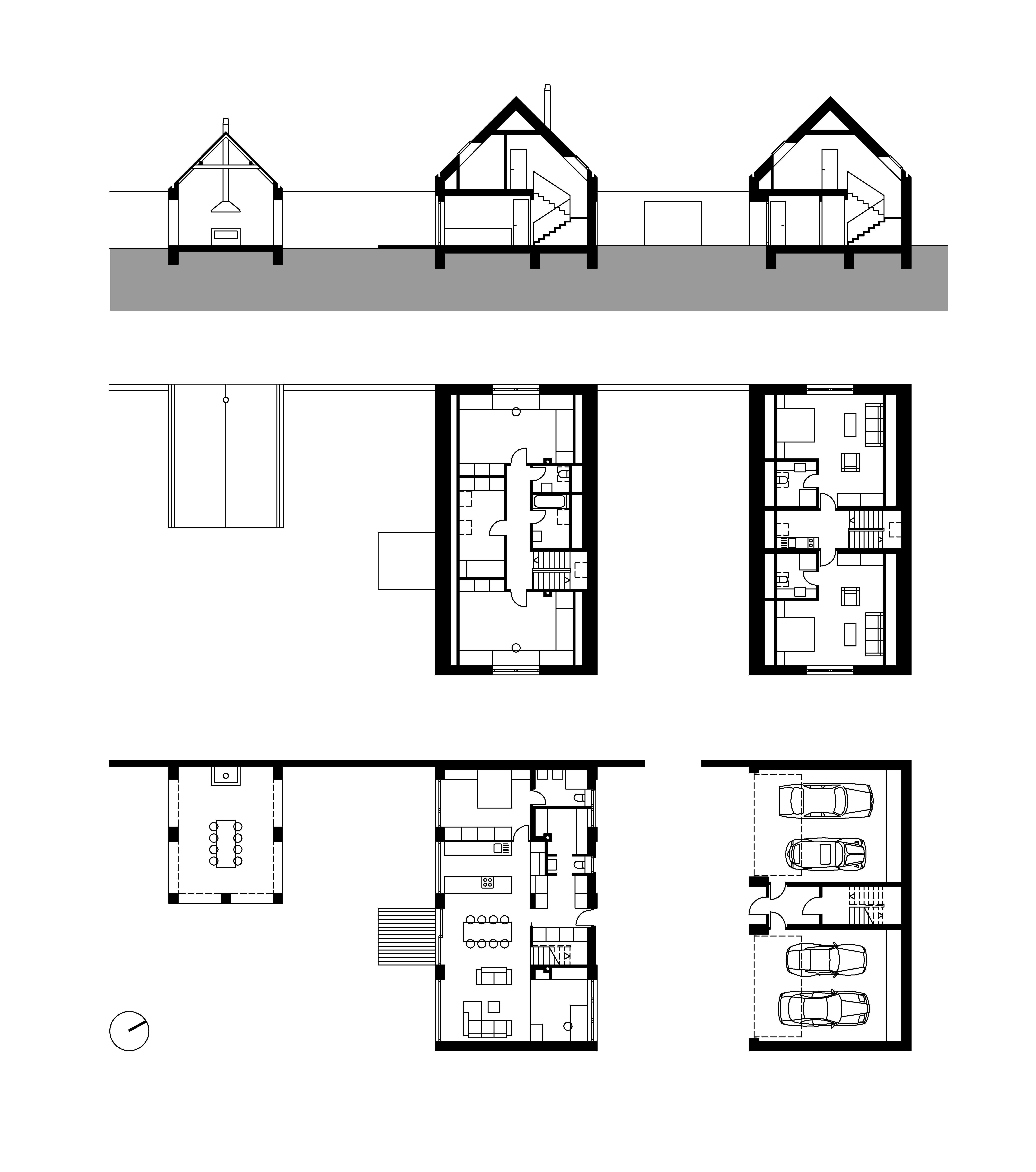
Tři jednoduché stavby se sedlovými střechami osazené v uliční frontě propojuje zeď lícující se štíty, kterou přerušují pouze vjezdová vrata. Jeden ze dvou stejně velkých objektů lemujících dlážděný dvůr slouží pro parkování automobilových veteránů, podkroví pak zabírají pokoje pro hosty. Prostřední dům nabízí prostorné bydlení pro čtyřčlennou rodinu a má jihovýchodní orientaci. Poslední, menší stavbou je venkovní kuchyně s krytým posezením. 

Rezy a pôdorysy
Rezy a pôdorysyAutor: Stempel & Tesar architekti

S tradiční kompozicí kontrastují strohé soudobé materiály i detaily. Keramické tvárnice jsou bíle omítnuté, antracitový odstín střešních tašek odpovídá barvě okenních rámů a garážových vrat. Zahrada přechází v rozlehlou louku.

Foto: Fotes
Foto: Fotes
Foto: Fotes
Foto: Fotes
Foto: Fotes
Foto: Fotes
Foto: Fotes
Foto: Fotes
Foto: Fotes
Foto: Fotes
Foto: Fotes
Foto: Fotes

Poloha diela

prof. Ing. arch. Ján Stempel
Ing. arch. Jan Jakub Tesař

Súvisiace články

Vložené
2. jún 2021
0
3436
Hlavný obsahHlavný obsah
Čakajte prosím