Hansgrohe - prémiová značka kúpeľňových riešení, ponúka nadčasový dizajn, technickú precíznosť a udržateľné inovácie...
Využite špeciálnu akciu Internorm: okná za minuloročné ceny a hliníkový kryt úplne zadarmo. Ponuka je časovo obmedzená!
Na podujatí sa predstaví až 37 vystavovateľov - popredných dodávateľov stavebných materiálov a inovácií s prezentáciou...
Sumarizácia najdôležitejších inovácií, ktoré redefinujúcich využitie tohto energetického zdroja.
AMPHIBIA 3000 GRIP 1.3 od spoločnosti ATRO predstavuje modernú hydroizolačnú technológiu, ktorá spája vysokú odolnosť,...
Ambiciózne plány EK narazili na ekonomické možnosti domácností v jednotlivých členských štátoch –...
IDEA DOOR od spoločnosti JAP prináša do interiéru čistý minimalistický vzhľad vďaka bezrámovému riešeniu a precíznej...
Kontinuita riešenia od vonkajšieho obkladu až po kovania a kľučky.
Nástenné nadomietkové armatúry Vitus sú mimoriadne vhodné pre rýchlu a efektívnu...
Okenné profily z kompozitného materiálu RAU-FIPRO X od spoločnosti Rehau sú v porovnaní s tradičnými plastovými profilmi mnohonásobne...
Najnovší sortiment stolov pre zariadenie interiérov...
Spojenie moderného dizajnu, funkčnosti a svetla do harmonického architektonického prvku.
Kancelárska budova Baumit v slovinskom Trzine prešla premenou na moderné a udržateľné pracovisko. Architekti kládli dôraz...
Mottom šiesteho ročníku on-line konferencie odborníkov Xella Dialóg je Efektívny návrh budov 2025+: zmeny a riešenia
Robot WLTR predstavuje moderný prístup k murovaným konštrukciám. Vďaka automatizácii dokáže rýchlo, presne a bezpečne realizovať...

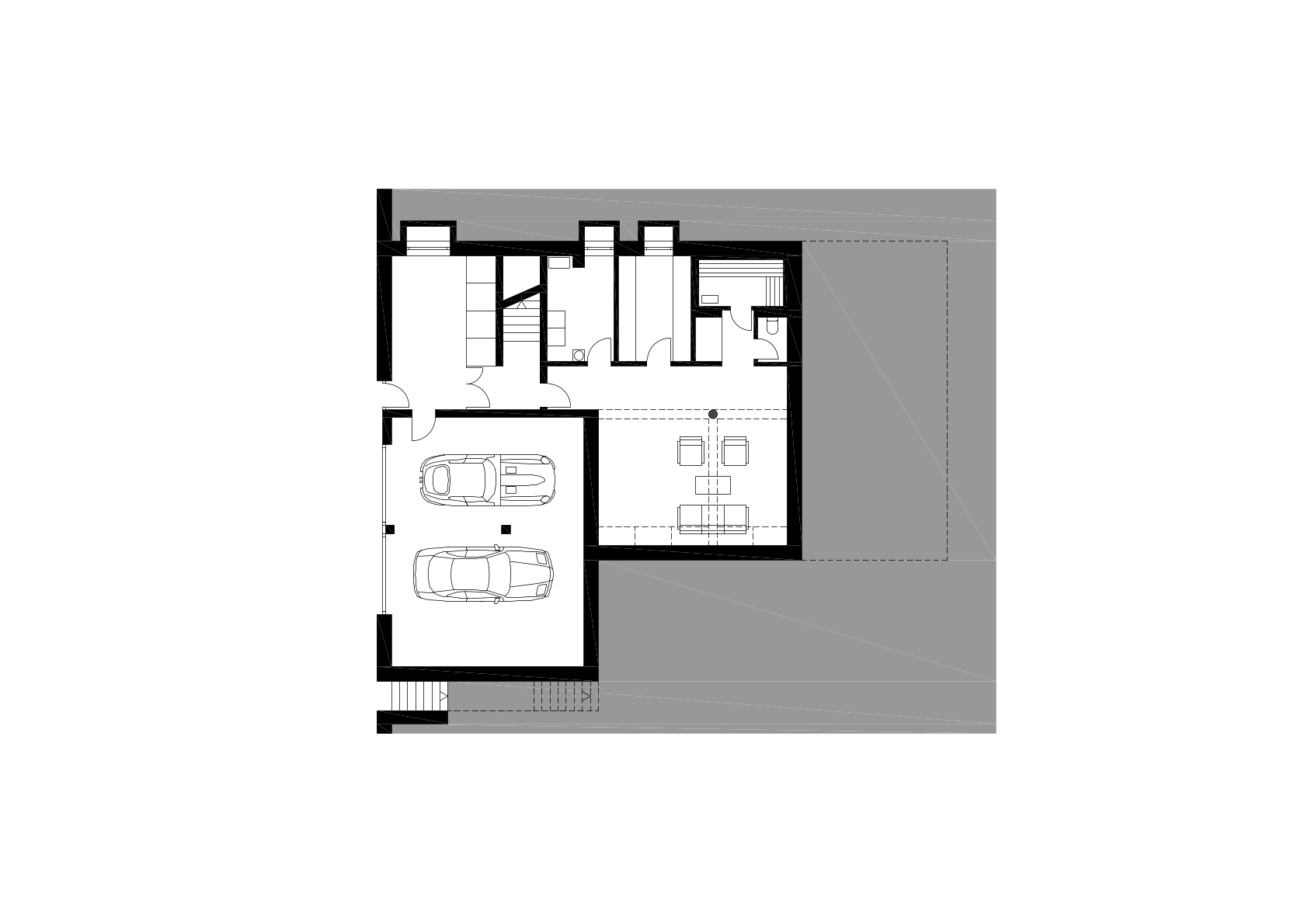
Rodinný dom z dielne ateliéru Stempel & Tesar architekti stojí v rezidenčnej štvrti na okraji Prahy, na pozemku s miernym sklonom a otvorenými výhľadmi do krajiny. Pokojné prostredie prímestskej zástavby, výrazná historická stopa a práca s terénom sa stali východiskami, ktoré formovali výsledné hmotové riešenie domu aj jeho vzťah ku krajine.
Realizáciu bližšie predstavia autori:
Přáním investora bylo vytvořit maximálně čistý dům, v němž se architektura přirozeně propojí s výtvarným uměním. Stavba proto vznikala v úzké spolupráci architektů s předními českými i zahraničními výtvarnými umělci. Umělecká díla tak jsou přirozenou součástí domu – od vstupu až po zahradu.
Architektonická kompozice pracuje s kontrastem dvou hmot – masivní základny a subtilního horního patra. Vstupní podlaží se z části zařezává do západního svahu. Čelní stěna z pohledového betonu a její reliéf je zároveň prvním uměleckým dílem, na které zde narazíte. Autorem je Federico Díaz. Nepřehlédnutelná je také nerezová vstupní branka vedoucí do zahrady od Petra Demka, doplněná číslem popisným a orientačním v minimalistické grafice Jana Šerých.
Provoz domu je logicky členěn podle terénu i funkce jednotlivých prostor. Vstupní podlaží s garáží, klubovnou a technickým zázemím je z větší části zapuštěno do západního svahu. Na něj navazuje obytné patro s otevřeným společenským prostorem a pracovnou, z níž se vstupuje na lodžii orientovanou do ulice. Klidová část domu s ložnicemi a koupelnami se otevírá do zahrady. Přehledná dispozice pracuje s průhledy, které umocňují prostorový zážitek z vnitřního uspořádání. Prosklené stěny ze severu a západu vymezují pobytovou část zahrady s terasou a vytvářejí dojem chráněného, polootevřeného atria. V samotném srdci tohoto prostoru je umístěna plastika od Stanislava Kolíbala. Její geometrická čistota rezonuje s architektonickými liniemi domu a dává zahradě téměř duchovní rozměr.
Interiér je laděn do světlých tónů. Bílé stěny, lakovaný nábytek a světlé terrazzo na podlahách vytvářejí neutrální, téměř galerijní prostředí. Tento zdrženlivý materiálový a barevný rámec umožňuje vyniknout uměleckým dílům, stejně jako proměnlivým obrazům krajiny za okny, a posiluje koncepci domu jako útočiště pro soustředěný, klidný život s uměním.
Autori: Stempel & Tesar architekti
Fotografie: KIVA