Na podujatí sa predstaví až 37 vystavovateľov - popredných dodávateľov stavebných materiálov a inovácií s prezentáciou...
Novotvar v prostredí alpskej obce.
Hansgrohe - prémiová značka kúpeľňových riešení, ponúka nadčasový dizajn, technickú precíznosť a udržateľné inovácie...
Využite špeciálnu akciu Internorm: okná za minuloročné ceny a hliníkový kryt úplne zadarmo. Ponuka je časovo obmedzená!
Sumarizácia najdôležitejších inovácií, ktoré redefinujúcich využitie tohto energetického zdroja.
AMPHIBIA 3000 GRIP 1.3 od spoločnosti ATRO predstavuje modernú hydroizolačnú technológiu, ktorá spája vysokú odolnosť,...
Ambiciózne plány EK narazili na ekonomické možnosti domácností v jednotlivých členských štátoch –...
IDEA DOOR od spoločnosti JAP prináša do interiéru čistý minimalistický vzhľad vďaka bezrámovému riešeniu a precíznej...
Kontinuita riešenia od vonkajšieho obkladu až po kovania a kľučky.
Nástenné nadomietkové armatúry Vitus sú mimoriadne vhodné pre rýchlu a efektívnu...
Okenné profily z kompozitného materiálu RAU-FIPRO X od spoločnosti Rehau sú v porovnaní s tradičnými plastovými profilmi mnohonásobne...
Najnovší sortiment stolov pre zariadenie interiérov...
Spojenie moderného dizajnu, funkčnosti a svetla do harmonického architektonického prvku.
Kancelárska budova Baumit v slovinskom Trzine prešla premenou na moderné a udržateľné pracovisko. Architekti kládli dôraz...
Mottom šiesteho ročníku on-line konferencie odborníkov Xella Dialóg je Efektívny návrh budov 2025+: zmeny a riešenia

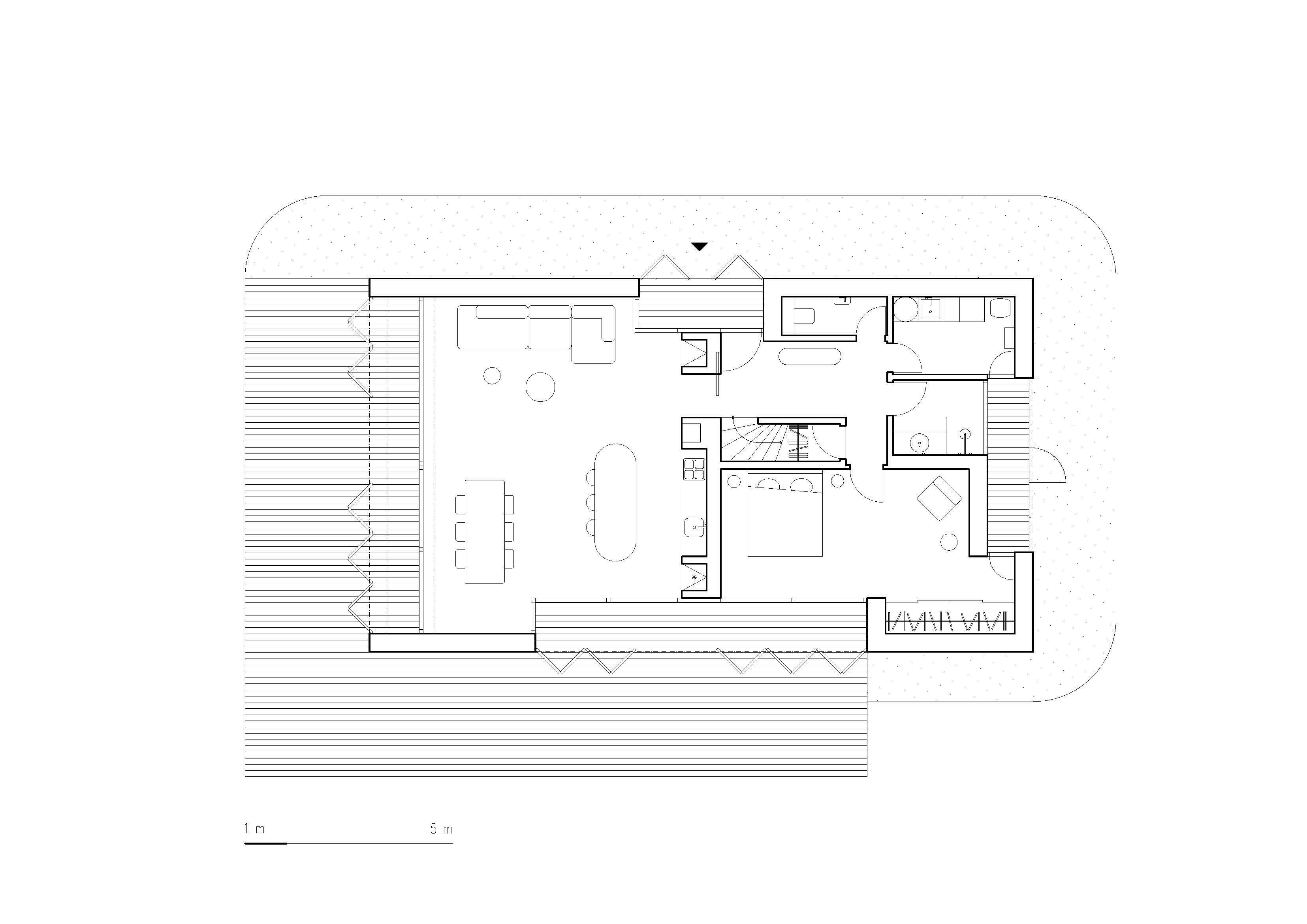
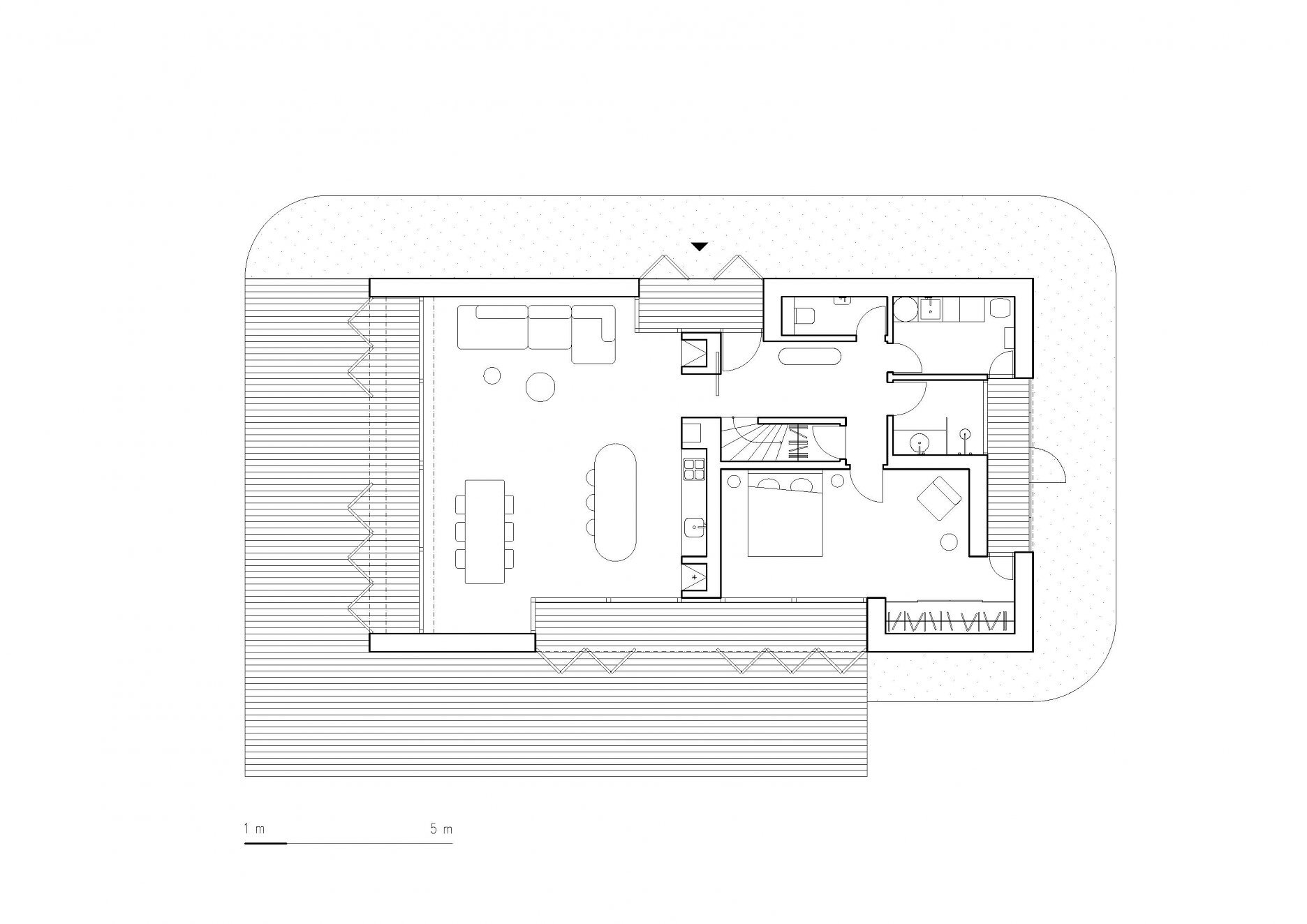
Dom Oskar vyrástol vo veľkorysej úžitkovej záhrade, ktorá pôvodne patrila k susednému zámku v juhočeskej obci Kamenná Lhota. Silný genius loci umocňuje torzo barokovej stodoly, stáročné vzrastlé stromy a kamenný múr, ktorý lemuje rozľahlý pozemok ústiaci do malebnej vidieckej krajiny...
Dom postavil architekt Jan Žaloudek pre seba a svoju rodinu. Spolu so svojou manželkou, kunsthistoričkou a spisovateľkou Jolantou Trojak, dlhé roky túžili po mieste, kde budú môcť nerušene čerpať sily a tvorivú inšpiráciu.
Tieto kvality hrajú v živote rodiny podstatnú úlohu a nezužujú sa len na tvorbu, ale premietajú sa aj do ich každodenného života. “Společně, s důrazem na každý detail, jsme stvořili místo, kde se i ty nejobyčejnější denní úkony přetaví v malý zážitek. Svébytný mikrokosmos, kde se dobře spí, čte, stoluje i tvoří,” dopĺňajú majitelia a obyvatelia domu.
Výslednú formu domu ovplyvnili viaceré východiská, medzi ktoré patrili aj obmedzenia vyplývajúce zo skutočnosti, že stavebný pozemok je kultúrnou pamiatkou. Architekt dom zasadil do krajiny a historického kontextu tak, aby nebránil pohľadom na zámok. Formálnou inšpiráciou bola kaplnka – sakrálna stavba, ktorá v obci chýba.
Návrh rešpektuje miestny archetyp lineárneho domu so sedlovou strechou. Perforované murivo ktoré možno nájsť v okolitých historických stavbách je pri tom hlavným výrazovým prostriedkom. Slúži ako slnolam v južnej štítovej stene aj ako vzor drevených tieniacich panelov na ostatných fasádach. Kompaktné fasády na každej strane prerušujú niky, parafrázujúce barokové tvaroslovie. Zapustené časti vytvárajú vstupné zádverie a pobytové lodžie s možnosťou tienenia. Dom sa môže podľa potreby otvoriť do krajiny, alebo uzavrieť pre chvíle súkromia a sústredenia.
Nosnú konštrukciu domu tvorí zateplené keramické murivo v kombinácii so železobetónovými prvkami. Biela štuková omietka fasády svojím odtieňom a štruktúrou cituje okolité stavby. Ako strešnú krytinu zvolil architekt pálené keramické škridly. Drevené tieniace panely sú zhotovené z bielenej českej jedle a smreku.
Život v dome je prepojený s prírodnými cyklami. Zo spálne a hlavného spoločenského priestoru, odkiaľ sa otvára panoramatický výhľad do ovocnej záhrady, je možné pozorovať východy slnka a mesiaca. Južná fasáda s perforovaným štítovým murivom a kruhovým oknom sprostredkúva kontakt spoločenského priestoru s dvorom a ruinou stodoly. Posuvné presklené plochy prepájajú bývanie s exteriérom – drevenými terasami, vegetáciou a chladivými historickými múrmi.
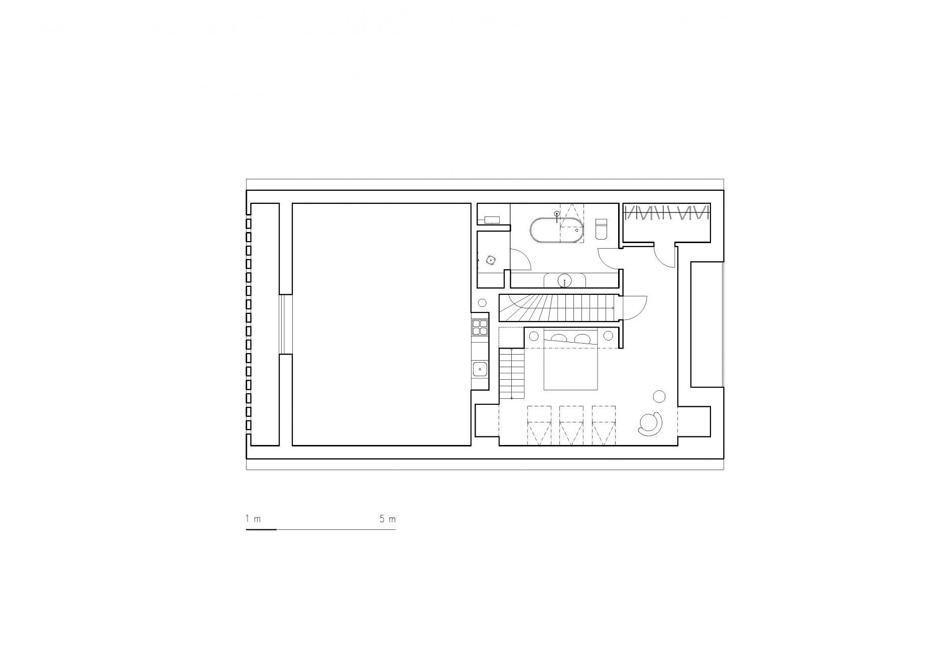
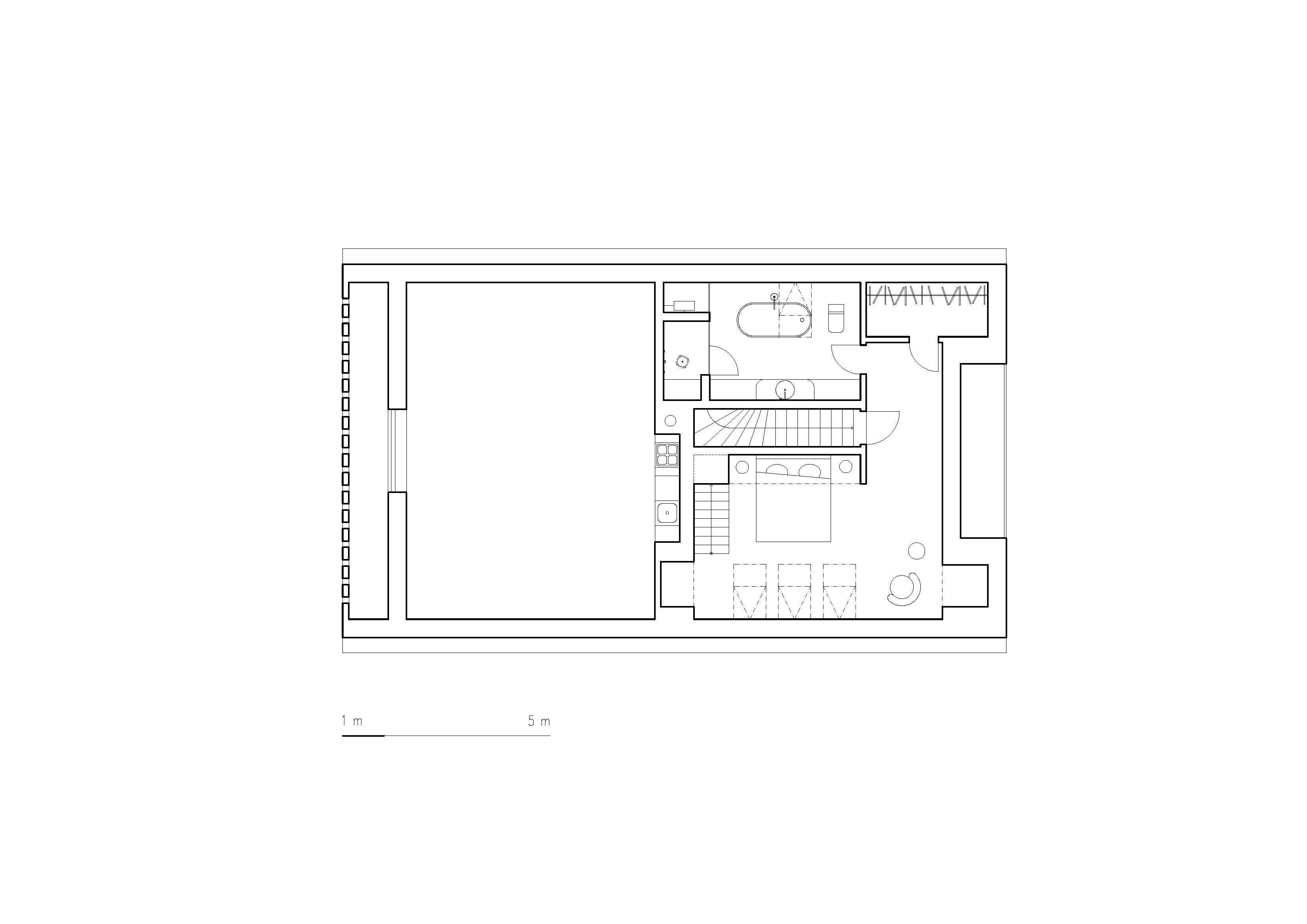
Západná fasáda s nikou hlavného vstupu je uzavretá voči pohľadom z dediny. Zaklenutá nika v severnom štíte privádza svetlo do spálne, kúpeľne a technického zázemia a svojim tvarom odkazuje na oblé tvary blízkeho barokového zámku.
Prestup slnečného svetla do interiéru je možné počas dňa regulovať prostredníctvom bielych tieniacich panelov. Izba zaliata priamym slnečným svetlom sa tak behom chvíle môže zmeniť na uzavretý priestor.
Interiér domu je na rozdiel od zovňajška “teplý” a oblý. Hlavný priestor so zaklenutým stropom dosahuje svetlú výšku až sedem metrov. Vertikála proporcia priestoru a dvojmetrové kruhové okno na južnom štíte pripomína sakrálnu inšpiráciu. Dominantou interiéru je zakrivená drevená kuchyňa s ostrovčekom z indickej žuly Shivakashi, ktorý evokuje kostolnú mensu – stredobod všetkých denných rituálov.
Dôležitou súčasťou diela je všadeprítomné umenie, ktoré zohráva v živote rodiny kľúčovú úlohu. Ich zbierka obsahuje diela od českej moderny po súčasnú tvorbu. Spálňu zdobí japonské panneau z 19. storočia, veľkoformátový obraz Antonie Stanovej a sochárske objekty Michala Janigu. V podkroví sa na travertínových podstavcoch vynímajú kamenné sochy Vandy Hvízdalovej. Kurátorský výber majiteľov je viditeľný v každom detaile.
Dom pomenovaný podľa kosmopolitného skladateľa Oskara Nedbala, ktorý v susednom zámku skomponoval operetu Polská krev, chcú jeho majitelia zdieľať s ostatnými. Ponúkajú ho na prenájom alebo formou umeleckých rezidencií, pop-up výstav a workshopov.
Materiály:
Video - autorka Anežka horová
Autor: Jan Žaloudek Architekt
Podklady: Linka
Fotografie: BoysPlayNice