Advertorial

Pozvánka na 2. ročník stavebného veľtrhu BigMarket na Slovensku

Na podujatí sa predstaví až 37 vystavovateľov - popredných dodávateľov stavebných materiálov a inovácií s prezentáciou...

Hotel Hirschen Spa House, Rakúsko

Novotvar v prostredí alpskej obce.

Vytvorte si kúpeľňu snov: dizajnové riešenie od značky hansgrohe

Hansgrohe - prémiová značka kúpeľňových riešení, ponúka nadčasový dizajn, technickú precíznosť a udržateľné inovácie...

Okná Internorm za minuloročné ceny + hliníkový kryt zdarma!

Využite špeciálnu akciu Internorm: okná za minuloročné ceny a hliníkový kryt úplne zadarmo. Ponuka je časovo obmedzená!

Moderné plynové technológie: Efektivita a inovácie pre 21. storočie

Sumarizácia najdôležitejších inovácií, ktoré redefinujúcich využitie tohto energetického zdroja.

Utesňovanie spodných stavieb pomocou hydro-aktívnej fólie AMPHIBIA.

AMPHIBIA 3000 GRIP 1.3 od spoločnosti ATRO predstavuje modernú hydroizolačnú technológiu, ktorá spája vysokú odolnosť,...

Dekarbonizácia individuálneho vykurovania domácností – Green Deal evolučne a nie revolučne

Ambiciózne plány EK narazili na ekonomické možnosti domácností v jednotlivých členských štátoch –...

Minimalistické dvere IDEA – technická precíznosť a čistota prevedenia

IDEA DOOR od spoločnosti JAP prináša do interiéru čistý minimalistický vzhľad vďaka bezrámovému riešeniu a precíznej...

Dom s výhľadom na údolie, Dlouhý Most (ČR)

Kontinuita riešenia od vonkajšieho obkladu až po kovania a kľučky.

Schell Vitus – osvedčené riešenie pre sprchy a umývadlá vo verejnom sektore s viac ako desaťročnou tradíciou

Nástenné nadomietkové armatúry Vitus sú mimoriadne vhodné pre rýchlu a efektívnu...

Kompozitné okná predstavujú súčasnosť a budúcnosť

Okenné profily z kompozitného materiálu RAU-FIPRO X od spoločnosti Rehau sú v porovnaní s tradičnými plastovými profilmi mnohonásobne...

Myotis - stoly 2025

Najnovší sortiment stolov pre zariadenie interiérov...

Priemyselné sklenené priečky Dorsis Digero: svetelné rozhranie pre moderné interiéry

Spojenie moderného dizajnu, funkčnosti a svetla do harmonického architektonického prvku.

Význam prirodzeného svetla pre moderné a flexibilné pracovné prostredie

Kancelárska budova Baumit v slovinskom Trzine prešla premenou na moderné a udržateľné pracovisko. Architekti kládli dôraz...

Konferencia Xella Dialóg predstaví novinky a trendy v stavebníctve

Mottom šiesteho ročníku on-line konferencie odborníkov Xella Dialóg je Efektívny návrh budov 2025+: zmeny a riešenia

Rekonštrukcia činžového domu, Praha - Střešovice

Polovica dvojdomu v novom kabáte.
Diela
Red 314.12.2023
10770+19
Rekonštrukcia činžového domu, Praha - Střešovice
Autori: prof. Ing. arch. Ján Stempel, Ing. arch. Jan Jakub TesařSpolupráca: Ing. Aleš HeroldPlocha pozemku: 667 m2Zastavaná plocha: 113 m2Podlažná plocha: 312 m2Návrh: 2019 - 2023Realizácia: 2019 - 2023Adresa: Střešovice , Praha, Česká republikaPublikované: 14. december 2023

Aktuálna realizácia autorského kolektívu Stempel & Tesar architekti. Na pohľad drobné úpravy, vo výsledku mravčia práca, ktorá viedla k výraznému skvalitneniu bývania, rozšíreniu obytnej plochy a prepojenie priestorov s exteriérom. To všetko pri zachovaní identity domu.

Foto: Fotes

Realizáciu bližšie predstavia autori:

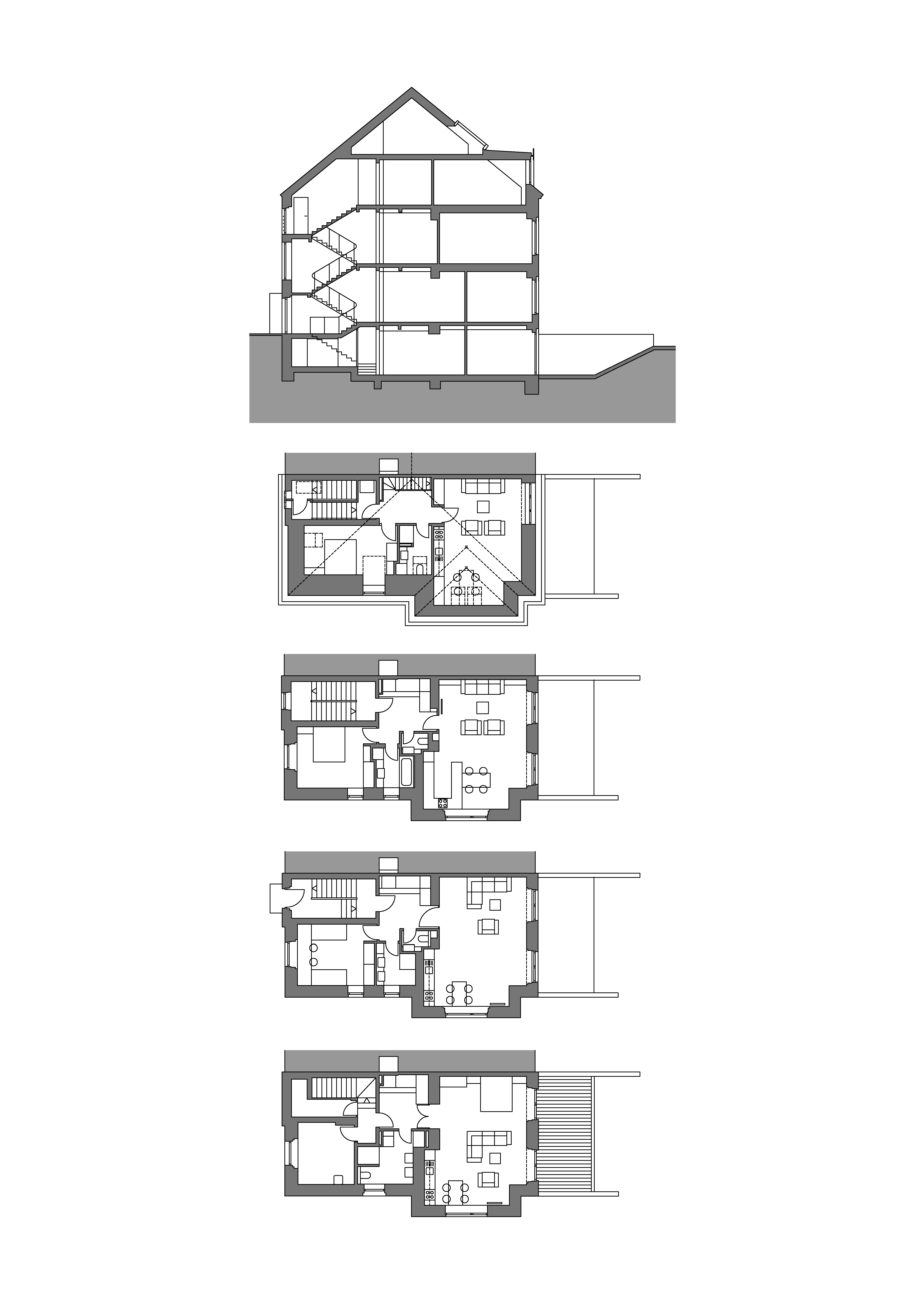
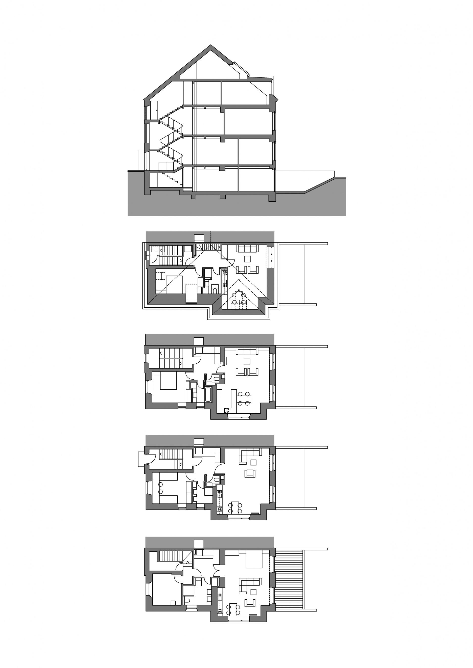
Činžovní dvojdomy v zahradě patří na střešovických Bateriích mezi typické stavby. Při přestavbě tak měli autoři před sebou úkol, obléci polovinu domu do nového kabátu tak, aby byl stále fungovala silueta dvojdomu. Přirozeným požadavkem bylo navýšení bytových jednotek zobytněním podkroví i suterénu. Suterén se díky vyhloubení terénu na jižní otevřel do zahrady a proměnil se v komfortní byt s terasou. V podkroví stačilo doplnit střešními okny a obnovit původní vikýř.

Použité materiály i pozice oken vycházejí z původního stavu domu, ale díky snížení parapetů a doplnění viditelných předokenních žaluzií, získal dům svěží vzhled. K tomu přispěl i světlý odstín jemnozrnné omítky v zrnitosti přírodního štuku. Vše doplňují soudobé zámečnické výrobky v elegantní černé barvě.

Původně byla u domu přisazená garáže. Ta se odstranila a nová garáž pro čtyři vozidla přibyla na opačný konec zahrady. Garáži dominuje i z pohledu z bytů střecha s intenzivní zelení a s moderním sousoším. Surové stěny z neomítnutých betonových tvárnic garáže splývají s obnovenou zahradou.

Foto: Fotes
Foto: Fotes
Foto: Fotes
Foto: Fotes
Foto: Fotes
Foto: Fotes
Foto: Fotes
Foto: Fotes
Situácia
SituáciaStempel & Tesar architekti
Rez a pôdorysy
Rez a pôdorysyStempel & Tesar architekti

Autori: Stempel & Tesar architekti
Foto: Fotes

Poloha diela

prof. Ing. arch. Ján Stempel
Ing. arch. Jan Jakub Tesař

Súvisiace články

Vložené
12. december 2023
0
1077
Hlavný obsahHlavný obsah
Čakajte prosím