Advertorial

Pozvánka na 2. ročník stavebného veľtrhu BigMarket na Slovensku

Na podujatí sa predstaví až 37 vystavovateľov - popredných dodávateľov stavebných materiálov a inovácií s prezentáciou...

Hotel Hirschen Spa House, Rakúsko

Novotvar v prostredí alpskej obce.

Vytvorte si kúpeľňu snov: dizajnové riešenie od značky hansgrohe

Hansgrohe - prémiová značka kúpeľňových riešení, ponúka nadčasový dizajn, technickú precíznosť a udržateľné inovácie...

Okná Internorm za minuloročné ceny + hliníkový kryt zdarma!

Využite špeciálnu akciu Internorm: okná za minuloročné ceny a hliníkový kryt úplne zadarmo. Ponuka je časovo obmedzená!

Moderné plynové technológie: Efektivita a inovácie pre 21. storočie

Sumarizácia najdôležitejších inovácií, ktoré redefinujúcich využitie tohto energetického zdroja.

Utesňovanie spodných stavieb pomocou hydro-aktívnej fólie AMPHIBIA.

AMPHIBIA 3000 GRIP 1.3 od spoločnosti ATRO predstavuje modernú hydroizolačnú technológiu, ktorá spája vysokú odolnosť,...

Dekarbonizácia individuálneho vykurovania domácností – Green Deal evolučne a nie revolučne

Ambiciózne plány EK narazili na ekonomické možnosti domácností v jednotlivých členských štátoch –...

Minimalistické dvere IDEA – technická precíznosť a čistota prevedenia

IDEA DOOR od spoločnosti JAP prináša do interiéru čistý minimalistický vzhľad vďaka bezrámovému riešeniu a precíznej...

Dom s výhľadom na údolie, Dlouhý Most (ČR)

Kontinuita riešenia od vonkajšieho obkladu až po kovania a kľučky.

Schell Vitus – osvedčené riešenie pre sprchy a umývadlá vo verejnom sektore s viac ako desaťročnou tradíciou

Nástenné nadomietkové armatúry Vitus sú mimoriadne vhodné pre rýchlu a efektívnu...

Kompozitné okná predstavujú súčasnosť a budúcnosť

Okenné profily z kompozitného materiálu RAU-FIPRO X od spoločnosti Rehau sú v porovnaní s tradičnými plastovými profilmi mnohonásobne...

Myotis - stoly 2025

Najnovší sortiment stolov pre zariadenie interiérov...

Priemyselné sklenené priečky Dorsis Digero: svetelné rozhranie pre moderné interiéry

Spojenie moderného dizajnu, funkčnosti a svetla do harmonického architektonického prvku.

Význam prirodzeného svetla pre moderné a flexibilné pracovné prostredie

Kancelárska budova Baumit v slovinskom Trzine prešla premenou na moderné a udržateľné pracovisko. Architekti kládli dôraz...

Konferencia Xella Dialóg predstaví novinky a trendy v stavebníctve

Mottom šiesteho ročníku on-line konferencie odborníkov Xella Dialóg je Efektívny návrh budov 2025+: zmeny a riešenia

White Villa, Praha, Jenerálka

Interpretácia klasických princípov v modernej, očistenej podobe.
Diela
Red 326.06.2016
11700+6
White Villa, Praha, Jenerálka
Autori: Ing. arch. Leigh D’Agostino, Ing. arch. Katarina Ciglanová, Ing. arch. Jan Burček, Ing. arch. Vlado Devečka, Ing. arch. Martin TomášekPlocha pozemku: 1168 m2Zastavaná plocha: 246 m2Podlažná plocha: 262 m2Realizácia: 2014 - 2014Adresa: Jenerálka , Praha 5, Česká republikaPublikované: 26. jún 2016

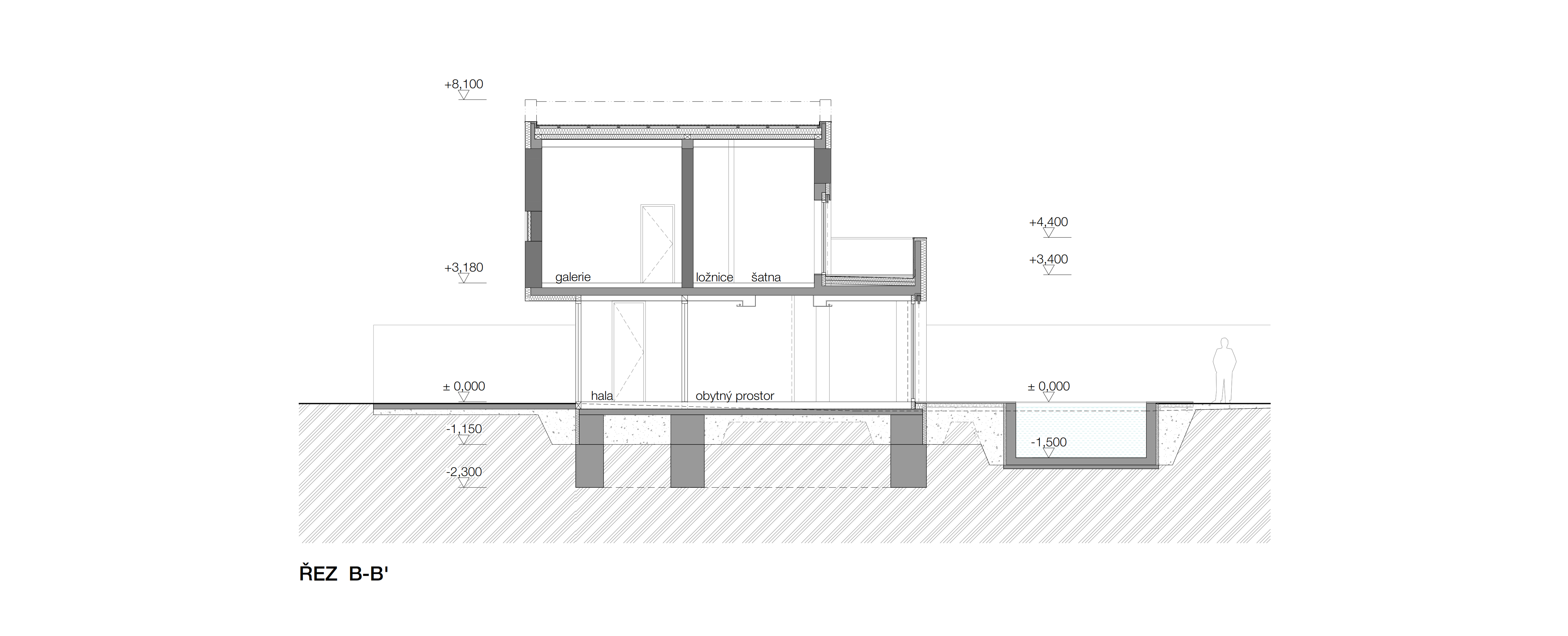
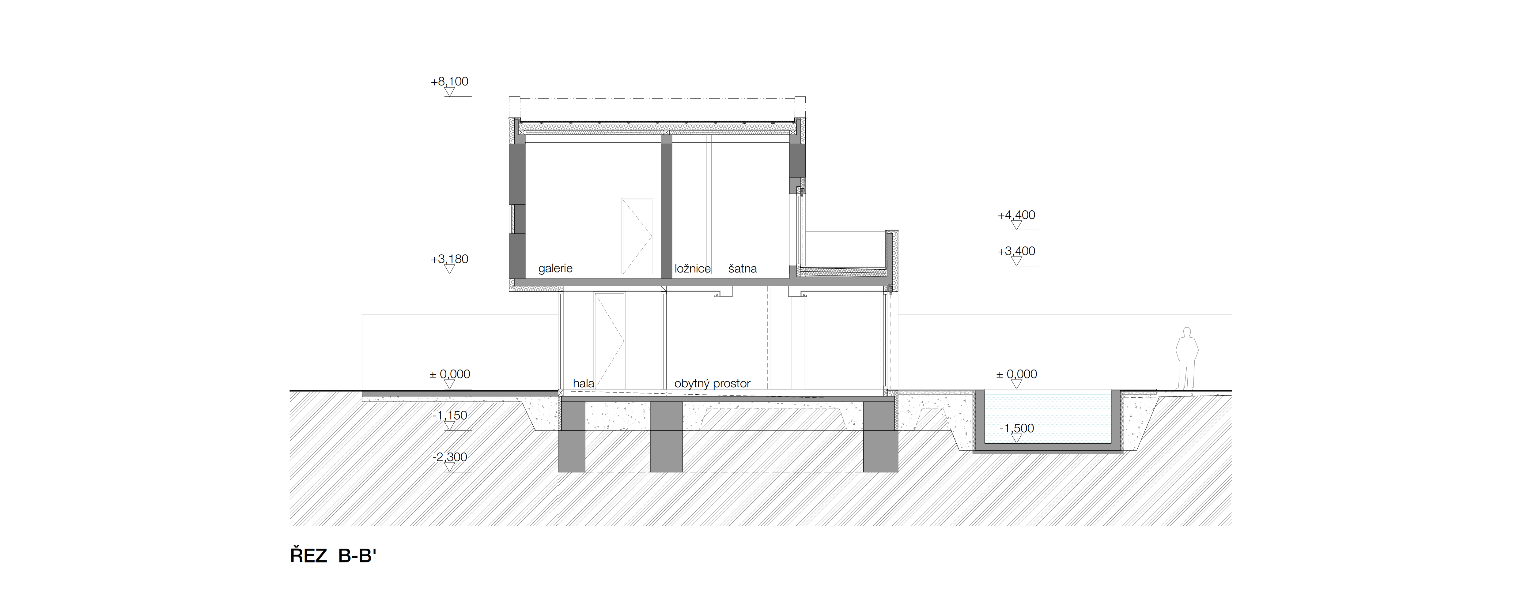
Zapálený pro svou vizi, ale nejistý v tom, jak jí dosáhnout, zapojil klient do návrhu svého moderního, minimalistického a otevřeného rodinného domu architekty z ateliéru 4a. Záměr, se kterým byl dům projektován, od nás vyžadoval použití minimálního množství detailů. Vyjádřili jsme se pouze s pomocí několika málo přírodních materiálů, v monochromatickém barevném ladění. Úspěšně jsme zvýšili koeficient zastavění, museli jsme ale čelit mnoha omezením z hlediska zásad celkového urbanistického a architektonického řešení v dané lokalitě Jenerálka. Podařilo se nám interpretovat klasickou a v místní zástavbě převládající sedlovou střechu novým způsobem, který odpovídal požadavkům klienta na současný moderní dům. V našem pojetí se tradiční tvar přetavil v pozvolně stoupající a klesající zeď, která se jako stuha vine kolem celého domu. Linie pozvolně stoupající asymetrické střechy je tvořena právě touto zdí rozpínající se přes parcelu. Části zdi jsou vynechány za účelem zdůraznění a krytí vstupu, jinde slouží průřezy pro otevření fasády domu jejímu okolí. Chtěli jsme dům vizuálně pevně spojit se zemí tak, aby působil trvalým dojmem, hmota domu vyhlížela solidně a pevně, a zároveň poskytnout klidný, lenivý pocit domu sebevědomě usazeného na pozemku. Vše je navrženo v bílé barvě s tmavými přírodně šedivými detaily v průřezech fasádou a šedým soklem tvořícím základnu domu.

foto: Ivan Bárta

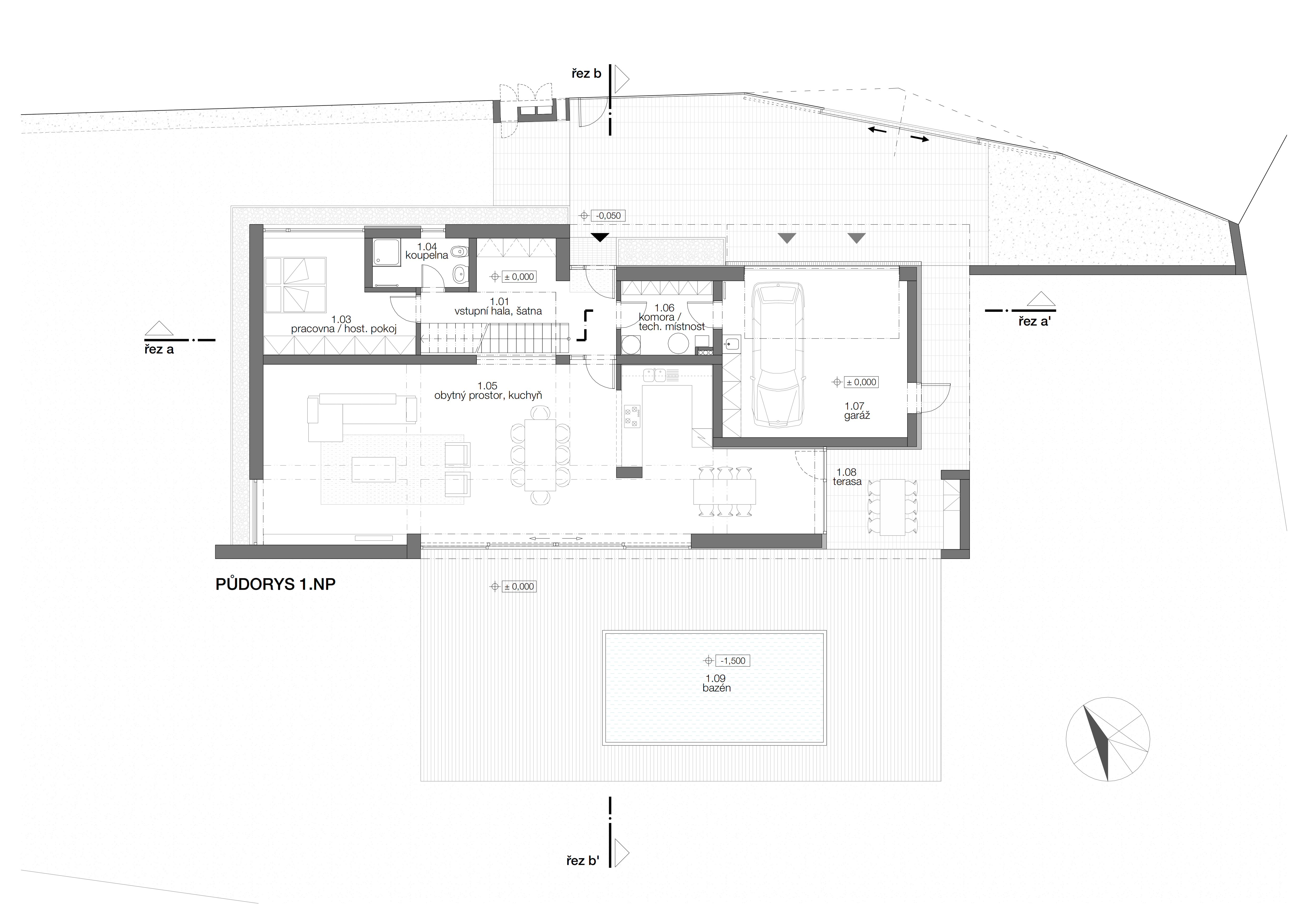
V rámci uspořádání interiéru je vstup do vily umístěn ze severu, s malou vstupní halou a prostorem pro šatnu. Při vstupu z garáže je přístup do domu veden přes technickou místnost. Z haly je přístupná koupelna a pokoj pro hosty / pracovna. Celá zbylá plocha přízemí je věnována obývacímu prostoru, na jižní straně propojenému se zahradou. Těchto přibližně osmdesát metrů čtverečních otevřeného prostoru, na jednotlivé zóny rozděleného pouze vizuálně, je v polovině délky jižní fasády plně prosklených a pouští tak zeleň zahrady do obytného interiéru.

Pôdorys 1. NP
Pôdorys 1. NPArchitekti 4A
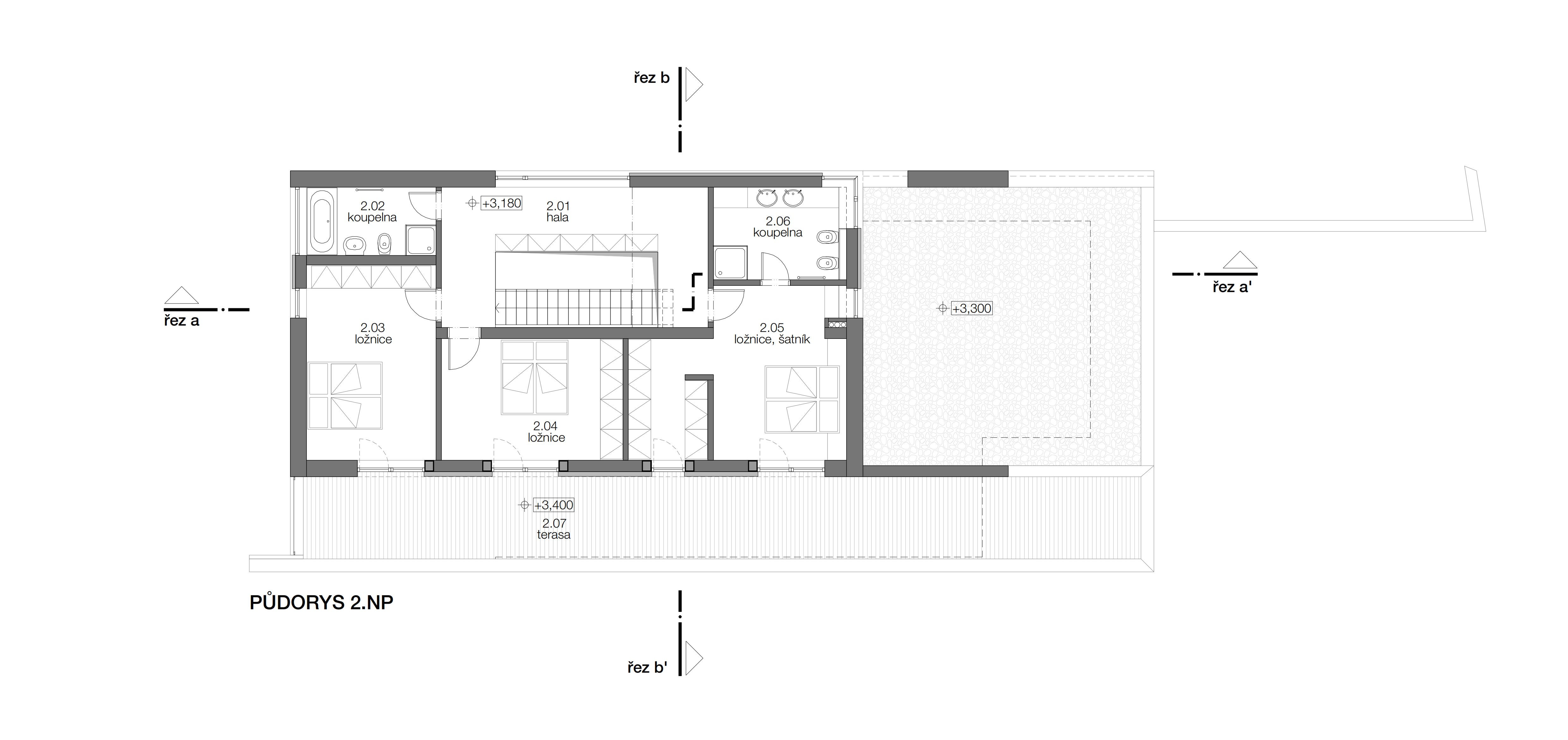
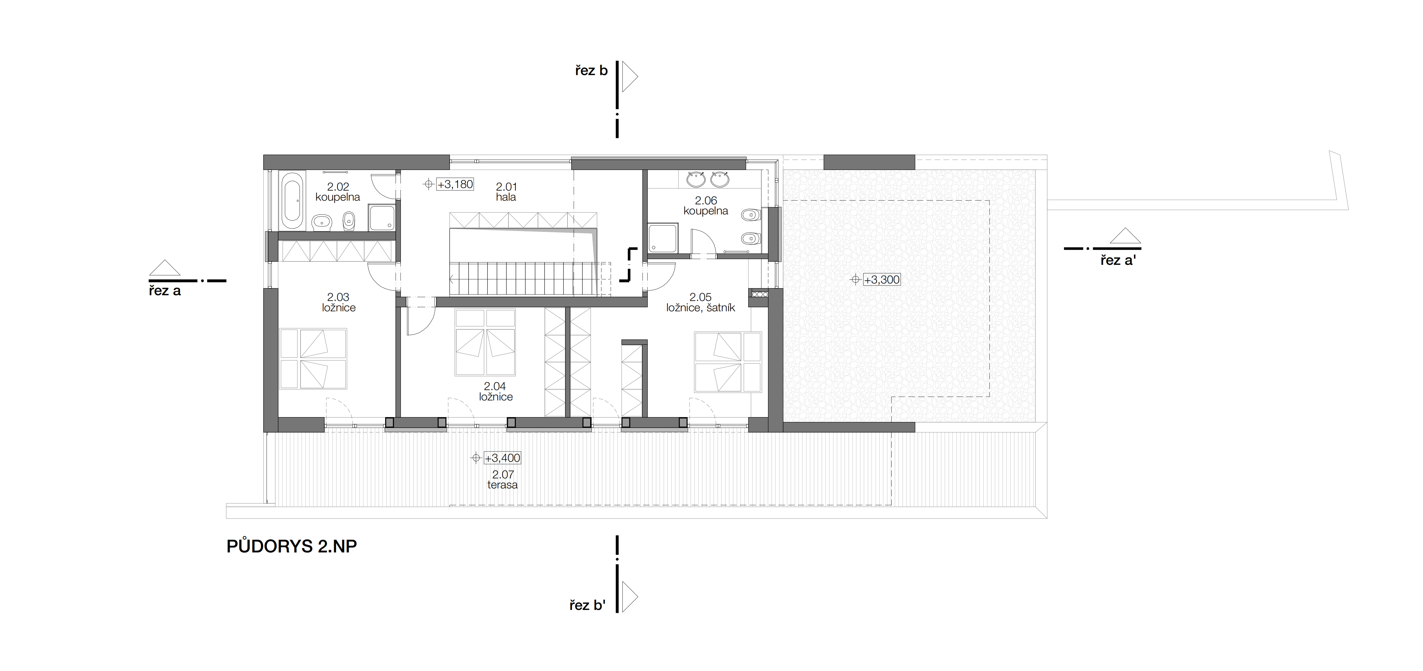
Pôdorys 2. NP
Pôdorys 2. NPArchitekti 4A

Podesta v prvním patře je koncipována jako průchozí galerie, strop zde sleduje tvar střechy a má tím pádem dvojnásobnou výšku, umožňující v budoucnu vestavbu mezipatra. Tři ložnice s francouzskými okny jsou všechny otevřeny směrem k jižní pobytové terase. Hlavní ložnice s šatnou má soukromou koupelnu vybavenou sprchovým koutem, druhá koupelna s vanou je určená k užívání všem.

foto: Ivan Bárta
foto: Ivan Bárta
foto: Ivan Bárta
foto: Ivan Bárta
foto: Ivan Bárta
foto: Ivan Bárta
Pozdĺžny rez
Pozdĺžny rez Architekti 4A
Priečny rez
Priečny rezArchitekti 4A
Severný pohľad
Severný pohľadArchitekti 4A
Západný pohľad
Západný pohľadArchitekti 4A
Južný pohľad
Južný pohľadArchitekti 4A
Východný pohľad
Východný pohľadArchitekti 4A

Podklady: Architekti 4A

Poloha diela

Ing. arch. Leigh D’Agostino
Ing. arch. Katarina Ciglanová
Ing. arch. Jan Burček
Ing. arch. Vlado Devečka
Ing. arch. Martin Tomášek
Vložené
9. jún 2016
0
1170
Hlavný obsahHlavný obsah
Čakajte prosím