Advertorial

95 rokov Internorm: 30 miliónov okien a dverí z Rakúska

Európska značka okien oslavuje jubileum: za 95 rokov sa vyvinula na najväčšiu medzinárodne pôsobiacu okennú značku a inovačného...

Pozvánka na 2. ročník stavebného veľtrhu BigMarket na Slovensku

Na podujatí sa predstaví až 37 vystavovateľov - popredných dodávateľov stavebných materiálov a inovácií s prezentáciou...

Hotel Hirschen Spa House, Rakúsko

Novotvar v prostredí alpskej obce.

Vytvorte si kúpeľňu snov: dizajnové riešenie od značky hansgrohe

Hansgrohe - prémiová značka kúpeľňových riešení, ponúka nadčasový dizajn, technickú precíznosť a udržateľné inovácie...

Okná Internorm za minuloročné ceny + hliníkový kryt zdarma!

Využite špeciálnu akciu Internorm: okná za minuloročné ceny a hliníkový kryt úplne zadarmo. Ponuka je časovo obmedzená!

Moderné plynové technológie: Efektivita a inovácie pre 21. storočie

Sumarizácia najdôležitejších inovácií, ktoré redefinujúcich využitie tohto energetického zdroja.

Utesňovanie spodných stavieb pomocou hydro-aktívnej fólie AMPHIBIA.

AMPHIBIA 3000 GRIP 1.3 od spoločnosti ATRO predstavuje modernú hydroizolačnú technológiu, ktorá spája vysokú odolnosť,...

Dekarbonizácia individuálneho vykurovania domácností – Green Deal evolučne a nie revolučne

Ambiciózne plány EK narazili na ekonomické možnosti domácností v jednotlivých členských štátoch –...

Minimalistické dvere IDEA – technická precíznosť a čistota prevedenia

IDEA DOOR od spoločnosti JAP prináša do interiéru čistý minimalistický vzhľad vďaka bezrámovému riešeniu a precíznej...

Dom s výhľadom na údolie, Dlouhý Most (ČR)

Kontinuita riešenia od vonkajšieho obkladu až po kovania a kľučky.

Schell Vitus – osvedčené riešenie pre sprchy a umývadlá vo verejnom sektore s viac ako desaťročnou tradíciou

Nástenné nadomietkové armatúry Vitus sú mimoriadne vhodné pre rýchlu a efektívnu...

Kompozitné okná predstavujú súčasnosť a budúcnosť

Okenné profily z kompozitného materiálu RAU-FIPRO X od spoločnosti Rehau sú v porovnaní s tradičnými plastovými profilmi mnohonásobne...

Myotis - stoly 2025

Najnovší sortiment stolov pre zariadenie interiérov...

Priemyselné sklenené priečky Dorsis Digero: svetelné rozhranie pre moderné interiéry

Spojenie moderného dizajnu, funkčnosti a svetla do harmonického architektonického prvku.

Význam prirodzeného svetla pre moderné a flexibilné pracovné prostredie

Kancelárska budova Baumit v slovinskom Trzine prešla premenou na moderné a udržateľné pracovisko. Architekti kládli dôraz...

Rodinný dom C2, Západné Slovensko

Pekný dom, ktorý je príkladom toho, že niekedy sa nájdu nároční investori, ktorí cielene hľadajú spoluprácu so schopnými architektmi pri realizovaní svojho zámeru.
Diela
Red 221.04.2017
98530+65
Rodinný dom C2, Západné Slovensko
Autori: Ing. arch. Juraj Mikulaj, Ing. arch. Andrea Ambrovičová MikulajováSpolupráca: Ing. Jozef Baran (statik)Zastavaná plocha: 1938,7 m²Podlažná plocha: 174.4 m² (dom), 126.2 m² (garáž a telocvičňa)Obostavaný objem: 1759,8 m²Návrh: 2012 - 2014Realizácia: 2015 - 2016Adresa: SlovenskoPublikované: 21. apríl 2017

Nie vždy stretneme partnerov, ktorí majú svoje predstavy o tom čo by chceli, ale zároveň rešpektujú profesionálov. V tomto prípade (zdá sa) architekti a stavebníci vytvorili  v živom vzájomnom dialógu priestor pre vznik konzistentného diela. Vychádzajúceho v ústrety požiadavkám používateľov i ponechávajúceho priestor pre autorskú výpoveď tvorcov.

Foto: Paťo Safko

Projekt začal menšou vyzvanou architektonickou súťažou. Návrh sa aj následne, po výbere, niekoľkokrát zásadne zmenil. Dá sa povedať že trvalo pomerne dlho, kým vyzrel do finálnej podoby a tento čas mu určite prospel.

Výsledkom je jednoduché, prízemné, bezbariérové riešenie. Dve pokojné, horizontálne, pravouhlé lineárne hmoty umiestnené vedľa seba vytvárajú klasickú modernú, čistú kompozíciu objemov a priestorov. Forma je skôr striedma, bez okázalých formálnych demonštrácií. Uprednostňuje najmä vnútorné hodnoty návrhu. Kvalitné, zároveň však primerané sú použité materiály a technické riešenia. Logické a prehľadné je aj vnútorné dispozíčné riešenie. Výborný je kontakt s okolím. Bývať sa dá nielen “dnu”, ale obytný priestor sa za dobrého počasia rozširuje aj na priľahlé vonkajšie plochy.

Foto: Paťo Safko

Od začiatku bola prítomná silná myšlienka aby návrh poskytoval vhodné podmienky na pobyt v exteriéri. Átrium je vonkajšou obývačkou a domáci ho naozaj tak využívajú počas celého roka. Architekti nechceli toto prelínanie dosiahnuť veľkými sklenenými plochami. Zasklenia sú umiestnené v dobre premyslených pozíciach a rozsahoch, aby bol dom útulný a príjemný na bývanie. Napríklad átrium máva väčšinou v architektúre všetky fasády presklenené. Tu je zasklenie iba na jednej strane átria. Jeho ostatné steny naberajú iné funkcie, aby sa dalo naozaj dobre využívať (krb, letná kuchyňa...). Dom sa evidentne nechce uzatvárať do seba, ale chce byt v kontakte s okolím. To je jeho príznačná črta.

Použité materiály sú kvalitné, prírodné, bez povrchových úprav. Drevo z fasády prebieha do interiéru domu, čo podporuje myšlienku prelínania vnútorných a vonkajších priestorov. Obvyklá materiálová kombinácia - drevo na podlahe a priznaný betón na strope tu má alternatívu. Drevo je na strope a podlaha je liata betónová.

Foto: Paťo Safko

Corten je použitý na akcentovanie dôležitých prvkov domu - krb, vstup, okno detských izieb. Pri materiáloch je dôležité, že sa budú neustále meniť s časom, prispôsobovať sa. Sú to živé materiály, časom získajú sympatickú patinu. Dynamicky sa dajú meniť a upravovať aj niektoré prvky.

Snahou architektov bolo navrhnúť dom, ktorý vyžaruje istú dávku pokory a skromnosti, na druhej strane je to sebavedomá výpoveď, charakterizujúca schopnosti autorov (i investorov).

Foto: Paťo Safko

Dopňujúci text autorov

Dom C2 predstavuje bývanie v tichej zelenej štvrti pre rodinu, ktorá počas celého roka rada trávi voľný čas v exteriéri.

Foto: Paťo Safko

Priestory domu sa preto prelínajú so záhradou a jadrom rodinného života sa stáva átrium s vonkajším krbom a s letnou kuchyňou.

Foto: Paťo Safko
Foto: Paťo Safko

Pokojná rezidenčná zóna mesta leží v tesnej blízkosti Váhu a je obľúbenou rekreačnou oblasťou. Rozľahlý rovinatý pozemok je situovaný na nároží tichej ulice, v zastavanej zóne rodinných domov. Veľkosť pozemku umožňuje rozdelenie funkcií do dvoch prízemných hranolov: zatiaľ čo samotný dom komunikuje s priestrannou záhradou a s vonkajším okolím, vedľajší objekt (garáž a telocvičňa) tvorí bariéru od severného suseda.

Kontúra domu vystupuje do popredia voči hmote garáže, ktorá je obrastená popínavou zeleňou a zatlačená v pozadí. Tak vzniká príjemná vstupná zóna pred domom, kde sa sukromný a verejný priestor prelínajú. Chceli sme narušiť zaužívanú hmotovú schému ulice, ktorú zvyčajne tvoria objekty garáží v popredí a až za nimi domy.

Foto: Paťo Safko
Foto: Paťo Safko

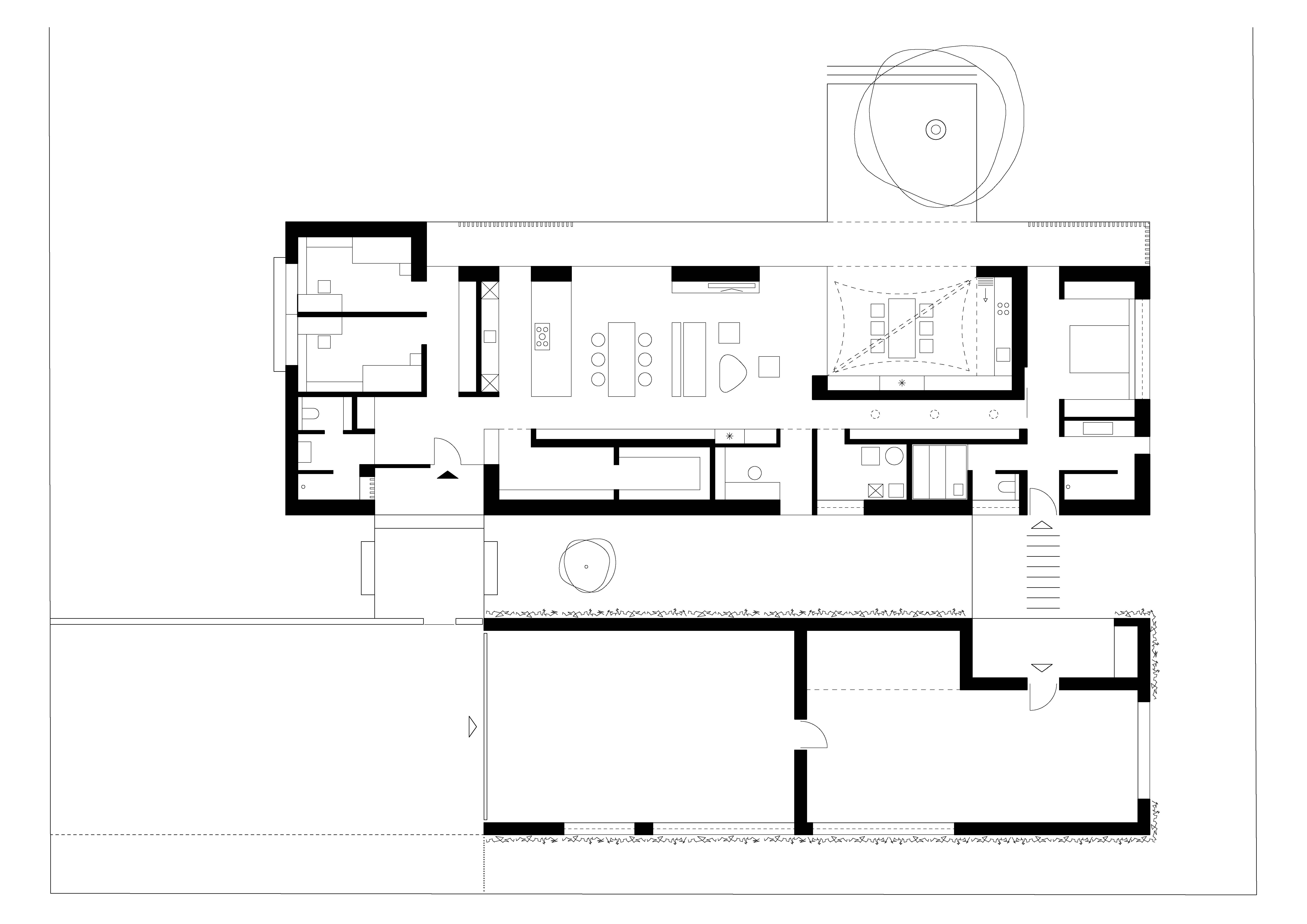
Keďže domáci radi trávia svoj voľný čas vonku, poskytuje návrh viacero foriem vonkajšieho pobytového priestoru: od otvorenej záhrady, cez kamennú záhradu medzi dvomi domami, priestrannú loggiu s výhľadom na stromy na nábreží, až po átrium, ktoré sa stáva ohniskom rodinného života a tiež architektonickým akcentom domu. Mnohé môže priblížiť pôdorysné usporiadanie jednotlivých priestorov.

Pôdorys
PôdorysAutor: ARCHITEKTI Mikulaj & Mikulajová

Koncepcia vnútorných priestorov logicky vyplýva zo situácie na pozemku a zo spôsobu života rodiny. Ústredný obytný priestor i súkromná zóna rodičov sú priamo prepojené so záhradou a južne orientovanou loggiou. Poobedňajšie preslnenie obytného priestoru zabezpečuje átrium, ktoré súčasne oddeľuje dennú a nočnú zónu domu. Otvorený krb, letná kuchyňa a tieniaca plachta z neho robia celoročne využívanú "vonkajšiu obývačku". Zóna detí je autonómnym priestorom, zámerne situovaným pri vstupe do domu.

Rezy
RezyAutor: ARCHITEKTI Mikulaj & Mikulajová

Použité materiály evokujú teplú atmosféru rodinného bývania. Zvolili sme prírodné materiály, ktoré budú starnutím len získavať šarmantnú patinu. Na fasáde prevláda drevo, dôležité prvky domu ako vstup a átrium akcentujeme pomaly hrdzavejúcou oceľou.

Foto: Paťo Safko

Drevo z exteriéru plynule prechádza do interiéru domu, čo umocňuje ideu prelínania vonkajších a vnútorných priestorov a dodáva rodinnému obydliu útulnú a osobitú atmosféru.

Foto: Paťo Safko
Foto: Paťo Safko
Foto: Paťo Safko
Foto: Paťo Safko
Foto: Paťo Safko

Určite nejestvuje iba jeden typ a spôsob tvorby dobrých rodinných domov. Podôb musí byť toľko, koľko je charakterov ľudí. Prezentované dielo teda nie je univerzálnou odpoveďou, ako by mal vyzerať dobrý rodinný dom na Slovensku. Určite je však jednou zo zaujímavých alternatív, ktorá bude výborne slúžiť obyvateľom, ktorí majú blízko k podobným hodnotám a životnému štýlu ako obyvatelia tohto rodinného domu.

Podklady: ARCHITEKTI Mikulaj & Mikulajová

Poloha diela

Ing. arch. Juraj Mikulaj
Ing. arch. Andrea Ambrovičová Mikulajová

Súvisiace články

Vložené
11. apríl 2017
0
9853
Hlavný obsahHlavný obsah
Čakajte prosím