Na podujatí sa predstaví až 37 vystavovateľov - popredných dodávateľov stavebných materiálov a inovácií s prezentáciou...
Novotvar v prostredí alpskej obce.
Hansgrohe - prémiová značka kúpeľňových riešení, ponúka nadčasový dizajn, technickú precíznosť a udržateľné inovácie...
Využite špeciálnu akciu Internorm: okná za minuloročné ceny a hliníkový kryt úplne zadarmo. Ponuka je časovo obmedzená!
Sumarizácia najdôležitejších inovácií, ktoré redefinujúcich využitie tohto energetického zdroja.
AMPHIBIA 3000 GRIP 1.3 od spoločnosti ATRO predstavuje modernú hydroizolačnú technológiu, ktorá spája vysokú odolnosť,...
Ambiciózne plány EK narazili na ekonomické možnosti domácností v jednotlivých členských štátoch –...
IDEA DOOR od spoločnosti JAP prináša do interiéru čistý minimalistický vzhľad vďaka bezrámovému riešeniu a precíznej...
Kontinuita riešenia od vonkajšieho obkladu až po kovania a kľučky.
Nástenné nadomietkové armatúry Vitus sú mimoriadne vhodné pre rýchlu a efektívnu...
Okenné profily z kompozitného materiálu RAU-FIPRO X od spoločnosti Rehau sú v porovnaní s tradičnými plastovými profilmi mnohonásobne...
Najnovší sortiment stolov pre zariadenie interiérov...
Spojenie moderného dizajnu, funkčnosti a svetla do harmonického architektonického prvku.
Kancelárska budova Baumit v slovinskom Trzine prešla premenou na moderné a udržateľné pracovisko. Architekti kládli dôraz...
Mottom šiesteho ročníku on-line konferencie odborníkov Xella Dialóg je Efektívny návrh budov 2025+: zmeny a riešenia

Podľa organizátora aj súťažiacich bola architektonická súťaž (víťazné návrhy nájdete tu) na budúcu podobu špičkových výskumných centier Karlovej univerzity rozsahom aj požiadavkami na spracovanie mimoriadne náročná. Celkovo sa do súťaže zaregistrovalo 190 subjektov, z ktorých 33 odovzdalo svoje návrhy do prvého kola. Na návrhoch v oboch kolách pracovalo viac ako 250 architektov, inžinierov a ďalších odborníkov. Okrem kolektívov z Česka, Holandska, Španielska a Slovinska a spolupracujúceho tímu (Siebert + Talaš z Bratislavy a Mangado y asociados z Pamplony, ktorí postúpili do druhého kola) sa súťaže zúčastnili aj dva slovenské ateliéry: A B.K.P.Š. a ARCHITEKTI mikulaj & mikulajova.
Tieto návrhy určite stoja za pozornosť. S veľkým záujmom sme si ich preštudovali. Predstavujeme ich podrobnejšie v nasledujúcom článku. Návrhy sú uvedené v abecednom poradí podľa názvov ateliérov:
A B.K.P.Š.
Autori: Martin II. Kusý, Pavol Paňák, Martin III. Kusý, Mária Michalič-Kusá, Robert Bakyta
Spolupráca: Andrea Dilhoffová, Richard Kereškényi, Beáta Paňáková, Lukáš Radošovský, Martin Simonides
Anotace
Nové budovy jsou organizovány tak, aby kromě kvality jejich vnitřních vazeb přidali k typu převažujících uličních prostorů absentující urbánní typologickou hodnotu pěšího prostranství. Obě tematizují v existujícím hodnotném souboru přítomné rysy – uliční hrany, symetrickou osnovu a její narušení, nádvoří a jiné. Biocentrum nabízí společné centrální prostranství s menzou. Globcentrum završuje kompaktní obrys souboru a figurou reaguje na určující sousedství. Dům takového poslání by měl být vážný i zvací zároveň.
Kontext místa
Východiskem hmotové organizace obou řešených objektů je ortogonální osnova celého souboru. Uličními čarami definované hrany jednotlivých hmot, příbuzné výšky a většinou jednotné tektonické charakteristiky jsou elementární znaky, které činí tento soubor celistvým, identickým a kompaktním. Akademické prostředí vzbuzující respekt prostřednictvím své architektury a její jednotících historických či historizujících slohových znaků. Symetrické figury jednotlivých bloků jsou charakteristické dvojicí dvorů, kolem nichž je organizovaná zpravidla dvoutraktová dispozice.
Oba objekty se řadí do stávajících uličních linií a výškových siluet a oba se zároveň pokoušejí v rámci svých figur přiřadit prostorům ulic přidané pěší prostranství pro vstup, shromáždění nebo relaxaci. Teda taková prostranství, která urbanistická typologie stávajícího areálu s uliční hmotově-prostorovou siluetou a kompaktními plochami zeleně nenabízí. Záměrem je rovněž v situacích vstupních průčelí nabídnout jinou architektonicko-prostorovou charakteristiku, kontrastující s monumentalizujícími vstupními rizality historických objektů. Oba objekty ve své hmotově-prostorové organizaci reagují na společnou vlastnost existujících architektur, tj. symetrickou osnovu. Tato symetrie osnovy a její odchylky (narušení) je tematizovaná v konceptech obou řešených budov.
Kontext programu
Takovýto program je svým charakterem místem kultivování kázně, intelektu a svobody myšlenek. Dům pro studium a vědecké bádání má mít racionální organizačně-hmotovou osnovu, srozumitelné a inspirující prostory pro soustředěné studium i pro plodné diskuse. Má byť vážný i zvoucí zároveň. Nemá být vyzývavý. Kvalita pracovišť má byť založena na přirozených elementárních kvalitách – dostatku denního světla, přirozeném větrání, clonění vůči slunci atd. Důležitou vlastností je možnost proměny uspořádání dispozice v příštích proměnách užívacích scénářů.
Biocentrum
Zaujímá klíčovou, centrální polohu celého areálu na ulici Albertov a v přimknutí se k zahradě Kláštera Alžbětinek. Figura s dvěma nádvořími se svou čelnou hmotou vůči ulici vznáší a spolu s obrysem otevřeného nádvoří vytváří na parteru otevřené, částečně kryté prostranství. Sem je orientován hlavní vstup a jeho hala, rovněž menza areálu s kavárnou a bufetem. Hlavní vstup z nádvoří je v protějším vztahu se vstupem do Purkyňova ústavu přes ulici Albertov. Může tu vzniknout jakési fórum areálu, prostranství socializace. Takto pojaté veřejné vstupní nádvoří Biocentra s menzou si zachovává svou prostorovou a urbánní těžiskovou hodnotu i v různých možných scénářích příští zástavby v místě zahrady kláštera podél ulice Albertov. Strategická poloha je takto nabídnuta uživatelům areálu, ale i veřejnosti. Hrany vznášející se hmoty sledují hrany existující zástavby. Jeho střešní silueta a orientace obou nádvoří reaguje na důležitá sousedství objektu. Jednak na západní a jižní sousedství stoupající ulice Albertov, na klášterní zahradu nebo Purkyňův ústav, a jednak na jedinečnou siluetu zástavby s kostelem Sv. Apolináře na severozápadní římse kotliny.
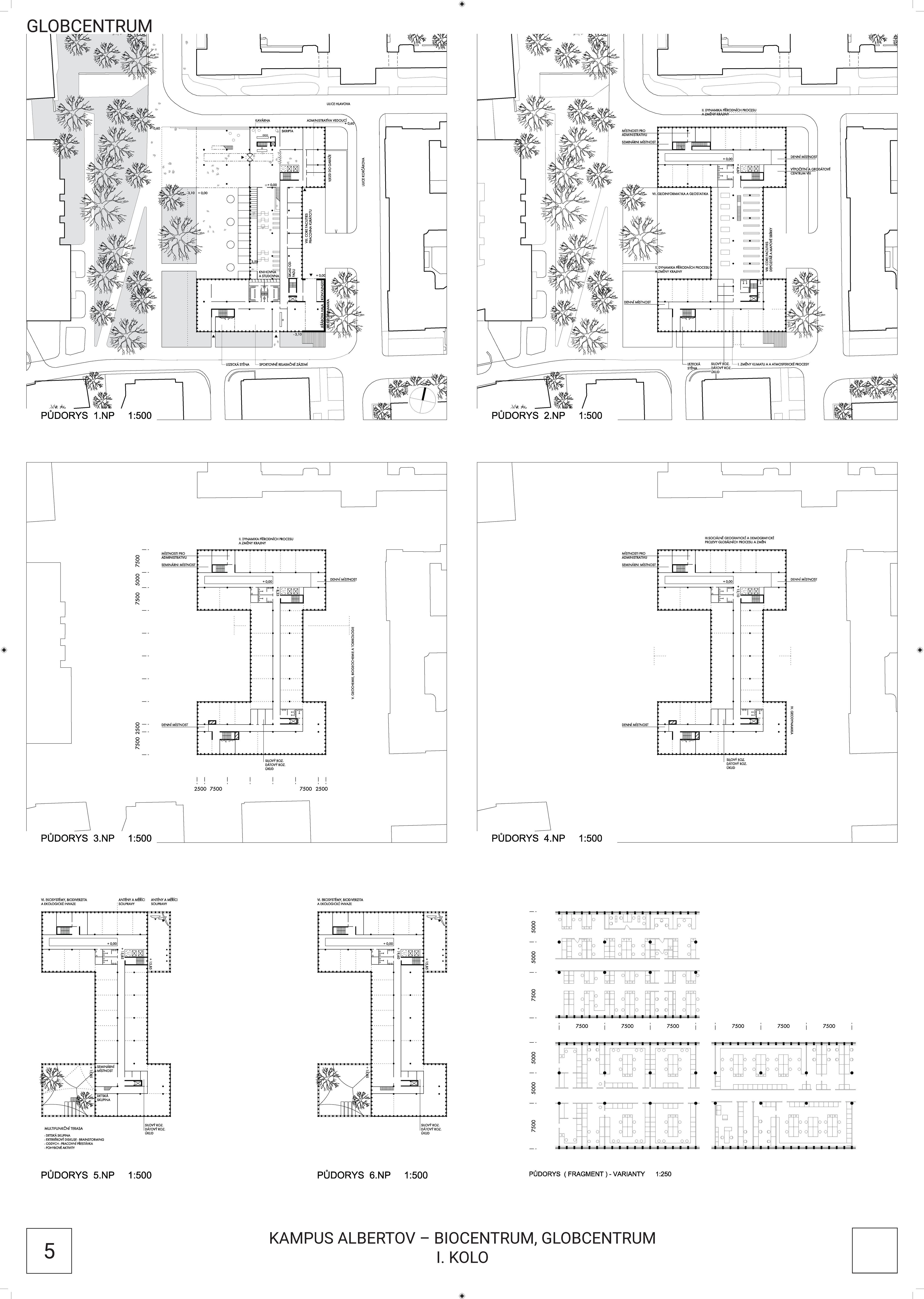
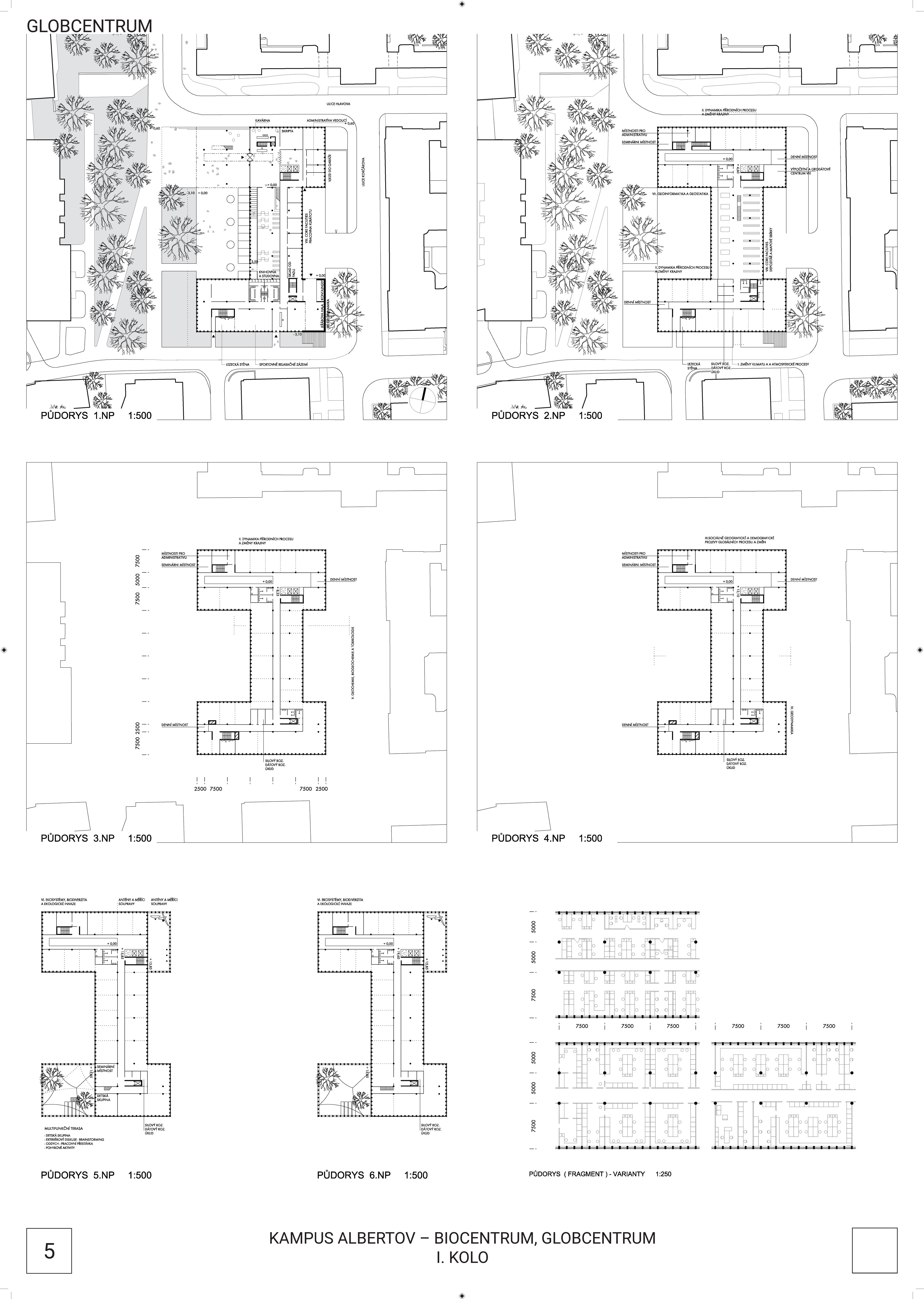
Globcentrum
Důležitost jeho pozice je zřejmá, protože jeho hmota uzavírá absentující jihozápadní nároží kompaktně vytýčeného souboru objektů v místě jeho setkání s drobnější mírkou sousedící existující a nové (bytové) zástavby. Jeho figura konturuje existující uliční hrany a zároveň na své podélné straně reaguje na určující sousedství z východní a západní strany. Výrazným ustoupením středního traktu reaguje na cenné nezastavěné prostranství se vzrostlými stromy tvořící společně se zahradou nemocnice hodnotný celek vnitřní blokové zeleně. K této zeleni se takto Globcentrum vztahuje prostřednictvím otevřeného prostranství. Jeho součástí je hlavní vstup v místě levitujícího křídla. Toto vstupní křídlo je ve středové poloze vůči oběma nástupům do areálu z ulice Na Slupi (Albertov a Horská ulice) a přimknuté k Hlavově ulici. Sem jsou orientovány rovněž ostatní klíčové prostory objektu. Střední trakt taktéž mírně ustupuje vůči převýšenému objektu Fakulty dopravní ČVUT z východní strany z důvodů optimálních světelně-technických podmínek pracovišť v obou sousedících objektech. V hmotové siluetě snížení v místě exponovaného jihozápadního nároží je reakcí na drobnější mírku a výškovou hladinu sousedící zástavby.
Výraz
Řešení usiluje o celistvý hmotový obrys. Působení má být spíše racionální s jednotící modulovou osnovou průčelí. Jejich rastrový charakter reflektuje možnou variabilitu vnitřního uspořádání pracovišť. Podíl skla na fasádách indikuje snahu o kvalitní a dostatečně přítomné denní světlo na pracovištích. Ve své střešní siluetě hmoty Biocentra vystupující nad římsu hlavního korpusu ustupují.
Konstrukce, materiály
Oba objekty jsou založeny na výchozí modulové osnově 7,50 × 7,50 m. V podrobnější modulaci okenních rastrů to znamená členění na 2,50 a 1,25 m. Objekty jsou železobetonové monolitní nosní konstrukce s prefabrikovaným nosným sloupkovým obvodem. Části obvodů s převahou plných ploch mají sandwichovou konstrukci s pohledovým betonovým povrchem. Okna jsou hliníkové konstrukce se zaskleným trojsklem. Kombinovaný transparentní a translucentní charakter průčelí naznačuje snahu o dostatečnou přítomnost denního světla jako základního elementu humanizujícího pracoviště – zvláště vědeckého. Střechy jsou s tenkou vegetační vrchní vrstvou. Část střechy nad garáží Biocentra, resp. nad částí poslucháren Globcentra tvořící podlahu nádvoří – fóra, je mlatového povrchu.
Organizace a logistika
Biocentrum je rozvrženo kolem pěti vertikálních komunikačních jader. Jedno centrální – hlavní, s osobními výtahy, tři primární požární a jedno s nákladním výtahem – zásobovacím. Hlavní pracovní prostory jsou umístěny v sedmi nadzemních a částečně dvou podzemních podlažích. Do objektu vedou dva osobní vstupy – jeden z veřejného nádvoří z ulice Albertov a druhý z prostoru před Ústavem hygieny. Z prostoru mezi Biocentrem a Fyziologickým ústavem je vstup do podzemního parkingu a vzadu u Ústavu hygieny je situováno zásobování objektu, tj. jeho hlavní pracoviště, manipulace s odpadem, s technologickými médii, kuchyně... Na nároží ulice Albertov je umístěn jeden z vchodů do menzy, vchod do kavárny a nočního klubu. Pěšky lze obejít celý objekt. Vstupní hala je pojata jako víceúčelový veřejný prostor, na nějž navazují – hlavní osobní vstup přes vertikální komunikační jádro, posluchárny, menza (menza byla přesunuta z programu Globcentra z urbanistických důvodů do centrální polohy pro celý kampus), studovna na 2. NP jakož i přístup na druhé veřejné nádvoří a následně možný přechod přes trakt budovy do exteriérových prostorů zadních teras. Prostory jednotlivých pracovišť jsou organizovány v dispozičních dvoutraktech, respektive trojtraktech.
Konstrukční a provozní struktura objektu umožňuje situování jednotlivých pracovišť a provozů variabilně a flexibilně (viz výkres č. 2), včetně otevřených laboratorních prostorů umožňujících bezprostřední komunikaci vědců, jakož i zmnožení kapacity pracovních míst.
Provozy, kde se vyžaduje situování na rostlém terénu, jsou umístěny ve společném traktu. Polovina je situována přímo na terénu a druhá polovina je nad první polovinou. Předpokládají se též následná technická opatření, které beze zbytku splní požadované parametry.
Globcentrum je rozvrženo kolem čtyř komunikačních vertikálních jader. Jedno hlavní s osobními výtahy, dvě primárně požární a jedno zásobovací s nákladním výtahem. Hlavní pracovní prostory jsou situovány na šesti nadzemních podlažích a částečně ve druhém, respektive prvním podzemí. Prostory jsou organizovány v dispozičních trojtraktech se střední chodbou, respektive ve vstupním křídle se střední halou. Do objektu vedou čtyři vstupy – jeden hlavní – krytý, osobní ze západní strany od parku, druhý do parkingu z Korčákovy ulice, z níž je i zásobování objektu (včetně odpadu). Z Horské ulice je samostatný vstup do sportovně-rekreačního zázemí, které bylo přemístěno z programu Biocentra z důvodů užšího vztahu k veřejné zeleni a následně jejího využití. Na vstupní vestibul navazuje vertikální komunikační jádro, vstup do prostoru předsálí poslucháren v prvním podzemí, vstup do knihovny a studoven, kavárna, přístup do depozitáře a mapových sbírek ve 2. NP… V objektu jsou dvě terasy, jedna víceúčelová, veřejná, relaxačně-diskusní s výhledem do parku a druhá technická. Konstrukční a provozní struktura objektu umožňuje situování jednotlivých funkcí a provozů variabilně a flexibilně. Je možné realizovat také formu otevřených laboratorních prostorů k umocnění vzájemné komunikace pracovníků, jakož i následné zvýšení počtu pracovních míst.
Udržitelnost
Z hlediska efektivnosti budoucí energetické spotřeby návrh usiluje o kompromis rozhodujících zdánlivě protichůdných nároků. Potřeba dostatečného osvětlení pracovišť, tj. podílu skleněného pláště versus nárok na jistou masivnost konstrukcí s akumulační schopností. Samozřejmě se kromě potřeby nucené výměny vzduchu předpokládá možnost přímého větrání pracovišť (kromě prostorů s vyhrazeným režimem). Všechny jednotky budou vybaveny zpětným získáváním tepla a budou splňovat nařízení komise EU č. 1253/2014, kterým se vykonává směrnice Evropského parlamentu a rady 2009/125/ES Ekodizajn. Předpokládá se rovněž exteriérové clonění okenních ploch vůči slunci (s možností automatické regulace v závislosti na požadované intenzitě osvětlení jednotlivých prostorů). Vytápění a chlazení bude ve většině pracovišť prostřednictvím konstrukce stropních dosek s využitím akumulace. Velkoplošným chlazením a vytápěním lze snížit celkovou spotřebu energie využitím vlivu sálavé složky na výslednou pocitovou teplotu v prostoru. Režim přirozeného větrání bude nastaven na ochlazení budovy nočním provětráním. Zdrojem tepla a chladu bude tepelné čerpadlo. Odpadové teplo z technologických zařízení bude použito na předehřívání teplé vody, podporu vytápění, resp. v případě přebytku ho budeme akumulovat.
Předpokládá se podíl fotovoltaických úprav v části sandwichových, resp. translucentních skleněných prvků fasád s podmínkou na vysoký nárok jejich decentního působení. Vzhledem na hodnoty střešní krajiny a její vnímání z nadhledů se na střechách s fotovoltaikou nepočítá.
Osvětlení je navrženo pomocí úsporných LED svítidel včetně iluminace objektu. Elektromotory budou vybaveny frekvenčními měniči. Návrh obsahuje také optimalizaci odběru elektrické energie monitorováním čtvrthodinového maxima.
ARCHITEKTI mikulaj & mikulajova
Autori: Juraj Mikulaj, Andrea Ambrovičová Mikulajová, Jana Matlovičová, Rado Kurucz
Spolupráca: Jakub Zelenák, Veronika Paľová
Základné princípy fungovania vedecko-vzdelávacích stavieb ako flexibilita, samostatnosť a adaptabilita, platia od počiatku histórie výstavby univerzít až dodnes. Navrhovanie stavby pre vedecko-vzdelávaciu inštitúciu slúži dvom primárnym ľudským potrebám: tou prvou je túžba po nových poznatkoch, ideálne presahujúcich medziodborové hranice. Druhou je vytvorenie domovského zázemia a pocitu spolupatričnosti pre vedcov. Architektúra aktívne vstupuje do procesu bádania a vytvára mu optimálne podmienky. Cieľom nášho návrhu je úspešná integrácia budov do štruktúry kempusu a jeho celková revitalizácia. Progresívny energetický koncept zaisťuje udržateľnosť oboch objektov a spĺňa prísne ekologické kritériá. Navrhované stavby citlivo dopĺňajú jestvujúcu urbanistickú štruktúru Albertova.
Budova Biocentra dotvára hlavný univerzitný bulvár. Svojou polohou na jeho začiatku sa stáva rovnocenným partnerom Purkyňovho ústavu a rovnako ako ten, aj Biocentrum svojím akcentovaným nárožím víta prichádzajúceho návštevníka. Hmotu stavby výrazne člení verejný priestor, ktorý vyhliadkou do kláštorných záhrad ukončuje novovzniknutú ulicu. Z bloku budovy vyberáme hmoty dvoch átrií, čím zabezpečujeme optimálne presvetlenie pracovných priestorov. Menšie átrium v severnej časti má vedecký charakter a veľké átrium na úrovni vstupu z ulice Albertov je spoločenské. Okrem vedeckej funkcie zohráva stavba Biocentra aj významnú spoločensko-vzelávaciu rolu. Nevedecké priestory, ako veľká aula, študovňa a seminárne miestnosti, sú sústredené okolo spoločenského átria. Spolu s foyer a kaviarňou tu vzniká atraktívna zóna pre medziodborovú vedeckú spoluprácu, konferencie, posterové výstavy a prednášky.
Budova Globcentra svojou jednoznačnou hmotou kontinuálne nadväzuje na zástavbu blokov s átriami, typickú pre kempus. Park pred Globcentrom sa stáva živým verejným priestorom, ktorý plynule pokračuje do átria budovy. Vytvorením átria sme docielili optimálnu šírku stavebných traktov s ideálnymi priestorovými a svetelnými podmienkami. Hlavný vstup do budovy aj vstup do menzy je v mieste, kde sa námestie vlieva do átria. Takéto riešenie prináša život parku aj budove. Do átria nášho Globcentra orientujeme nevedecké priestory, v ktorých je žiaduca kľudnejšia atmosféra. Naopak, námestie oživujú rušnejšie spoločenské funkcie kaviarne a menzy.
Biocentrum a Globcentrum sú konštrukčne navrhnuté na báze železobetónového skeletu. Obálka budovy – strechy, základové dosky a obvodové steny, budú zrealizované v pasívnom štandarde s použitím ekologických izolačných materiálov najvyššej kvality. Obidva objekty sú koncipované ako ekologické a udržateľné budovy s veľkým dôrazom na zdravé životné prostredie a nízke prevádzkové náklady.
Fotografie modelu:
Podklady: AB.K.P.Š., ARCHITEKTI mikulaj & mikulajova