Advertorial

Pozvánka na 2. ročník stavebného veľtrhu BigMarket na Slovensku

Na podujatí sa predstaví až 37 vystavovateľov - popredných dodávateľov stavebných materiálov a inovácií s prezentáciou...

Hotel Hirschen Spa House, Rakúsko

Novotvar v prostredí alpskej obce.

Vytvorte si kúpeľňu snov: dizajnové riešenie od značky hansgrohe

Hansgrohe - prémiová značka kúpeľňových riešení, ponúka nadčasový dizajn, technickú precíznosť a udržateľné inovácie...

Okná Internorm za minuloročné ceny + hliníkový kryt zdarma!

Využite špeciálnu akciu Internorm: okná za minuloročné ceny a hliníkový kryt úplne zadarmo. Ponuka je časovo obmedzená!

Moderné plynové technológie: Efektivita a inovácie pre 21. storočie

Sumarizácia najdôležitejších inovácií, ktoré redefinujúcich využitie tohto energetického zdroja.

Utesňovanie spodných stavieb pomocou hydro-aktívnej fólie AMPHIBIA.

AMPHIBIA 3000 GRIP 1.3 od spoločnosti ATRO predstavuje modernú hydroizolačnú technológiu, ktorá spája vysokú odolnosť,...

Dekarbonizácia individuálneho vykurovania domácností – Green Deal evolučne a nie revolučne

Ambiciózne plány EK narazili na ekonomické možnosti domácností v jednotlivých členských štátoch –...

Minimalistické dvere IDEA – technická precíznosť a čistota prevedenia

IDEA DOOR od spoločnosti JAP prináša do interiéru čistý minimalistický vzhľad vďaka bezrámovému riešeniu a precíznej...

Dom s výhľadom na údolie, Dlouhý Most (ČR)

Kontinuita riešenia od vonkajšieho obkladu až po kovania a kľučky.

Schell Vitus – osvedčené riešenie pre sprchy a umývadlá vo verejnom sektore s viac ako desaťročnou tradíciou

Nástenné nadomietkové armatúry Vitus sú mimoriadne vhodné pre rýchlu a efektívnu...

Kompozitné okná predstavujú súčasnosť a budúcnosť

Okenné profily z kompozitného materiálu RAU-FIPRO X od spoločnosti Rehau sú v porovnaní s tradičnými plastovými profilmi mnohonásobne...

Myotis - stoly 2025

Najnovší sortiment stolov pre zariadenie interiérov...

Priemyselné sklenené priečky Dorsis Digero: svetelné rozhranie pre moderné interiéry

Spojenie moderného dizajnu, funkčnosti a svetla do harmonického architektonického prvku.

Význam prirodzeného svetla pre moderné a flexibilné pracovné prostredie

Kancelárska budova Baumit v slovinskom Trzine prešla premenou na moderné a udržateľné pracovisko. Architekti kládli dôraz...

Konferencia Xella Dialóg predstaví novinky a trendy v stavebníctve

Mottom šiesteho ročníku on-line konferencie odborníkov Xella Dialóg je Efektívny návrh budov 2025+: zmeny a riešenia

Dom D2

Rodinný dom v strmom svahu s krásnym výhľadom do údolia a výbornou juhozápadnou orientáciou.
Diela
Red 120.06.2015
19750+9
Dom D2
Autori: Ing. arch. Juraj Mikulaj, Ing. arch. Andrea Ambrovičová MikulajováPlocha pozemku: 799 m2Podlažná plocha: 234 m2Obostavaný objem: 1 454 m3Návrh: 2012 - 2013Realizácia: 2013 - 2014Adresa: Bratislava, SlovenskoPublikované: 20. jún 2015

Prevýšenie svahu je až 12 metrov, pričom pozemok aj dom je prístupný z oboch protiľahlých strán – prístupových ciest. Funkcie sa odohrávajú na štyroch výškových úrovniach.

foto: Tomáš Manina
Koncept osadenia domu na strmom pozemku - pozdĺžny rez
Koncept osadenia domu na strmom pozemku - pozdĺžny rez

Koncepčne tvoria dom akoby dva domy, ktoré sú spojené ústredným priestorom – galériou, schodiskom, átriom, loggiou. Všetky spomenuté funkcie v sebe na troch výškových úrovniach a jednej osi spája ústredný spojovací prvok.

foto: Tomáš Manina
foto: Tomáš Manina

Svojou hmotou nie je veľký, ponúka však nečakané priehľady z mnohých uhlov. Minimálne atrium vytvára v kontexte domu maximálny efekt – okrem “vecného” presvetlenia miestností vrezaných do svahu je oživujúcim zeleným prvkom viditeľným z mnohých priestorov domu.

foto: Tomáš Manina

Na prvej výškovej úrovni – úrovni hornej prístupovej cesty – navrhujeme garáž, ktorej hmota ako jediná podstatne presahuje výšku cesty. Tým je zachovaný priehľad od cesty do údolia. O úroveň nižšie je denná zóna domu, orientovaná na juhozápad do údolia priestrannou loggiou.

foto: Tomáš Manina
foto: Tomáš Manina

Privátna sféra je umiestnená na úrovni záhrady, s ktorou sú všetky spálne priamo prepojené. Potrebné parkovacie miesta a zároveň efektívnu terénnu úpravu svahu rieši zatrávnené kryté parkovisko na nivelete spodnej príjazdovej cesty.

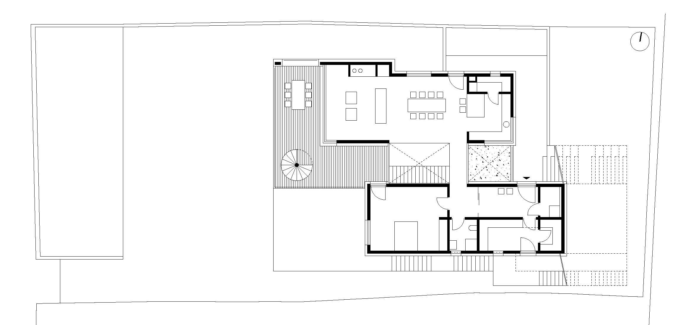
Pôdorys 1. NP
Pôdorys 1. NP
Pôdorys 2. NP
Pôdorys 2. NP

Dielo bolo spracované na základe podkladov z ateliéru ARCHITEKTI mikulaj & mikulajová

foto: Tomáš Manina

Poloha diela

Ing. arch. Juraj Mikulaj
Ing. arch. Andrea Ambrovičová Mikulajová
Vložené
20. jún 2015
0
1975
Hlavný obsahHlavný obsah
Čakajte prosím