Advertorial

Pozvánka na 2. ročník stavebného veľtrhu BigMarket na Slovensku

Na podujatí sa predstaví až 37 vystavovateľov - popredných dodávateľov stavebných materiálov a inovácií s prezentáciou...

Hotel Hirschen Spa House, Rakúsko

Novotvar v prostredí alpskej obce.

Vytvorte si kúpeľňu snov: dizajnové riešenie od značky hansgrohe

Hansgrohe - prémiová značka kúpeľňových riešení, ponúka nadčasový dizajn, technickú precíznosť a udržateľné inovácie...

Okná Internorm za minuloročné ceny + hliníkový kryt zdarma!

Využite špeciálnu akciu Internorm: okná za minuloročné ceny a hliníkový kryt úplne zadarmo. Ponuka je časovo obmedzená!

Moderné plynové technológie: Efektivita a inovácie pre 21. storočie

Sumarizácia najdôležitejších inovácií, ktoré redefinujúcich využitie tohto energetického zdroja.

Utesňovanie spodných stavieb pomocou hydro-aktívnej fólie AMPHIBIA.

AMPHIBIA 3000 GRIP 1.3 od spoločnosti ATRO predstavuje modernú hydroizolačnú technológiu, ktorá spája vysokú odolnosť,...

Dekarbonizácia individuálneho vykurovania domácností – Green Deal evolučne a nie revolučne

Ambiciózne plány EK narazili na ekonomické možnosti domácností v jednotlivých členských štátoch –...

Minimalistické dvere IDEA – technická precíznosť a čistota prevedenia

IDEA DOOR od spoločnosti JAP prináša do interiéru čistý minimalistický vzhľad vďaka bezrámovému riešeniu a precíznej...

Dom s výhľadom na údolie, Dlouhý Most (ČR)

Kontinuita riešenia od vonkajšieho obkladu až po kovania a kľučky.

Schell Vitus – osvedčené riešenie pre sprchy a umývadlá vo verejnom sektore s viac ako desaťročnou tradíciou

Nástenné nadomietkové armatúry Vitus sú mimoriadne vhodné pre rýchlu a efektívnu...

Kompozitné okná predstavujú súčasnosť a budúcnosť

Okenné profily z kompozitného materiálu RAU-FIPRO X od spoločnosti Rehau sú v porovnaní s tradičnými plastovými profilmi mnohonásobne...

Myotis - stoly 2025

Najnovší sortiment stolov pre zariadenie interiérov...

Priemyselné sklenené priečky Dorsis Digero: svetelné rozhranie pre moderné interiéry

Spojenie moderného dizajnu, funkčnosti a svetla do harmonického architektonického prvku.

Význam prirodzeného svetla pre moderné a flexibilné pracovné prostredie

Kancelárska budova Baumit v slovinskom Trzine prešla premenou na moderné a udržateľné pracovisko. Architekti kládli dôraz...

Konferencia Xella Dialóg predstaví novinky a trendy v stavebníctve

Mottom šiesteho ročníku on-line konferencie odborníkov Xella Dialóg je Efektívny návrh budov 2025+: zmeny a riešenia

Tehlový dom Záhorské Sady, Záhorská Bystrica

Pocta tradičnému materiálu.
Diela
Red 422.03.2023
80390+126
Tehlový dom Záhorské Sady, Záhorská Bystrica
Autori: Ing. arch. Juraj Mikulaj, Ing. arch. Andrea Ambrovičová Mikulajová, Ing. arch. Jana Machalová - MatlovičováSpolupráca: Ing. arch. Tomáš ChovanecPodlažná plocha: 358 m2Návrh: 2018 - 2020Realizácia: 2021 - 2023Adresa: Záhorské sady , Záhorská Bystrica, SlovenskoPublikované: 22. marec 2023

Prácu ateliéru ARCHITEKTI mikulaj & mikulajová charakterizuje sympatické koncepčné uvažovanie a hľadanie "vlastnej cesty", bez snahy prvoplánovo zaujať. Aktuálna realizácia v novej rozvojovej zóne Záhorskej Bystrice nie je výnimkou. Ľahko čitateľnú architektonickú kompozíciu tvorí trojica kompaktných blokov, ktorých výraz umocňuje solídna materialita. Architekti pracujú striedmymi gestami. Výsledkom je napriek tomu pestrá a členitá vnútorná štruktúra. Elegancia je ukrytá v premyslenej skladbe jednotlivých prvkov a precíznej práci s architektonickými a remeselnými detailmi, ktoré sa podarilo dotiahnuť aj v realizačnej fáze stavby. 

 

Dielo bližšie predstavia autori:

Na začiatku bol rozľahlý pozemok na okraji Bratislavy, s výhľadom na les. A veľká, rozrastajúca sa rodina, s túžbou bývať v tehlovom dome. Orientácia pozemku však bola zložitá a v jeho susedstve rýchlo vyrastali nové rodinné domy. A tak vznikla myšlienka troch masívnych domov, vzájomne pospájaných ľahkými, priehľadnými priestormi. Tak sa slnko a denné svetlo dostane do všetkých miestností a domáci budú mať pocit súkromia, aj keď dom stojí v zastavanom území.

Domy z režného tehlového muriva majú u nás dlhoročnú tradíciu, sú nám dobre známe, vieme sa s nimi ľahko zžiť. V tomto prípade kombinujeme pálenú tehlu s kontrastnými, hladkými povrchmi, čím nechávame vyniknúť jej jedinečnú štruktúru. Tehly na fasáde, tehly na dlažbe terás, tehly odrážajúce sa v zrkadle, tehly na parapetoch aj v interiéri domu. Tehly do oblúku, tehly ako polopriehľadný záves v stavebných otvoroch. Tehla nám dovoľuje experiment a využitie na mnohé spôsoby.

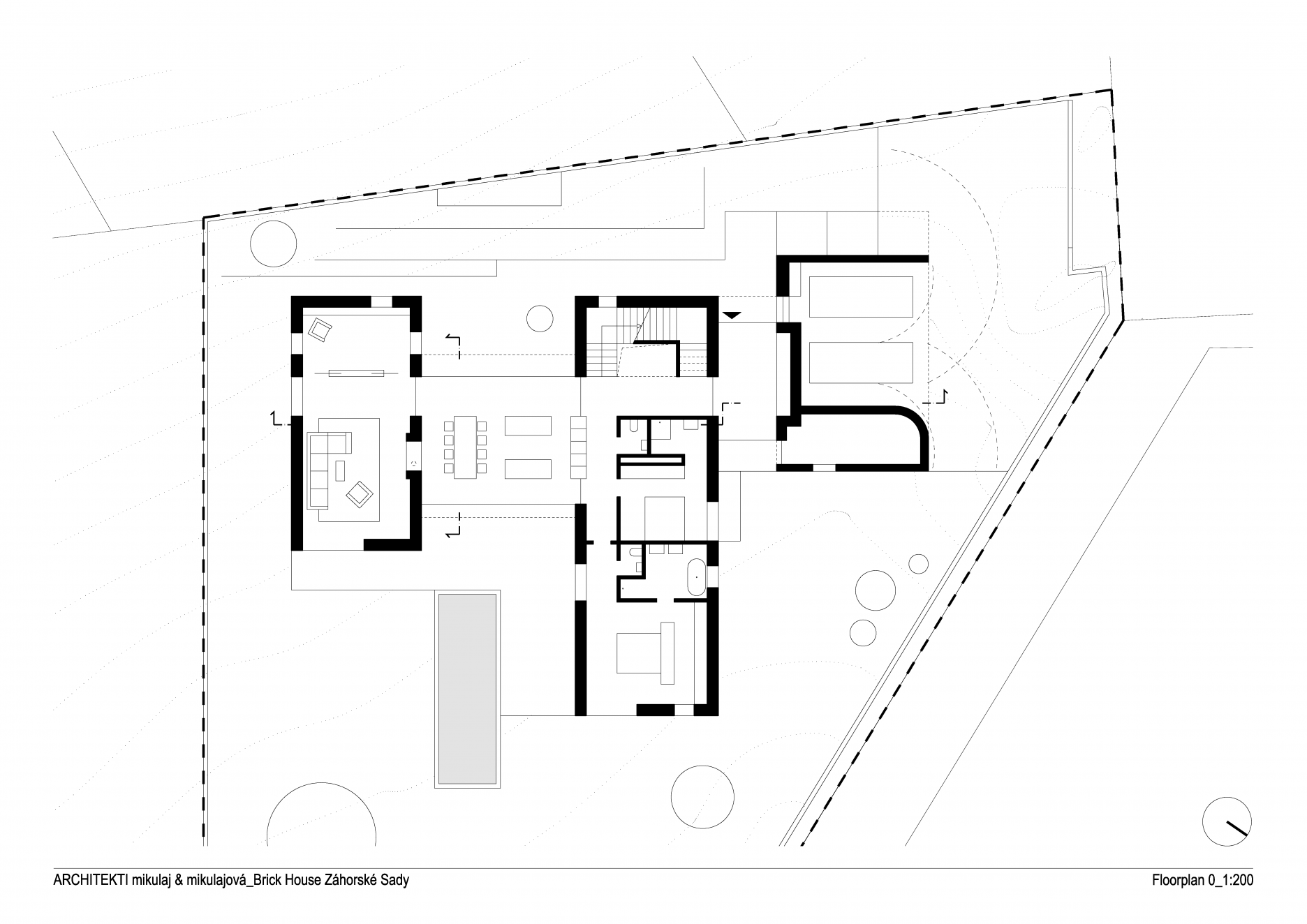
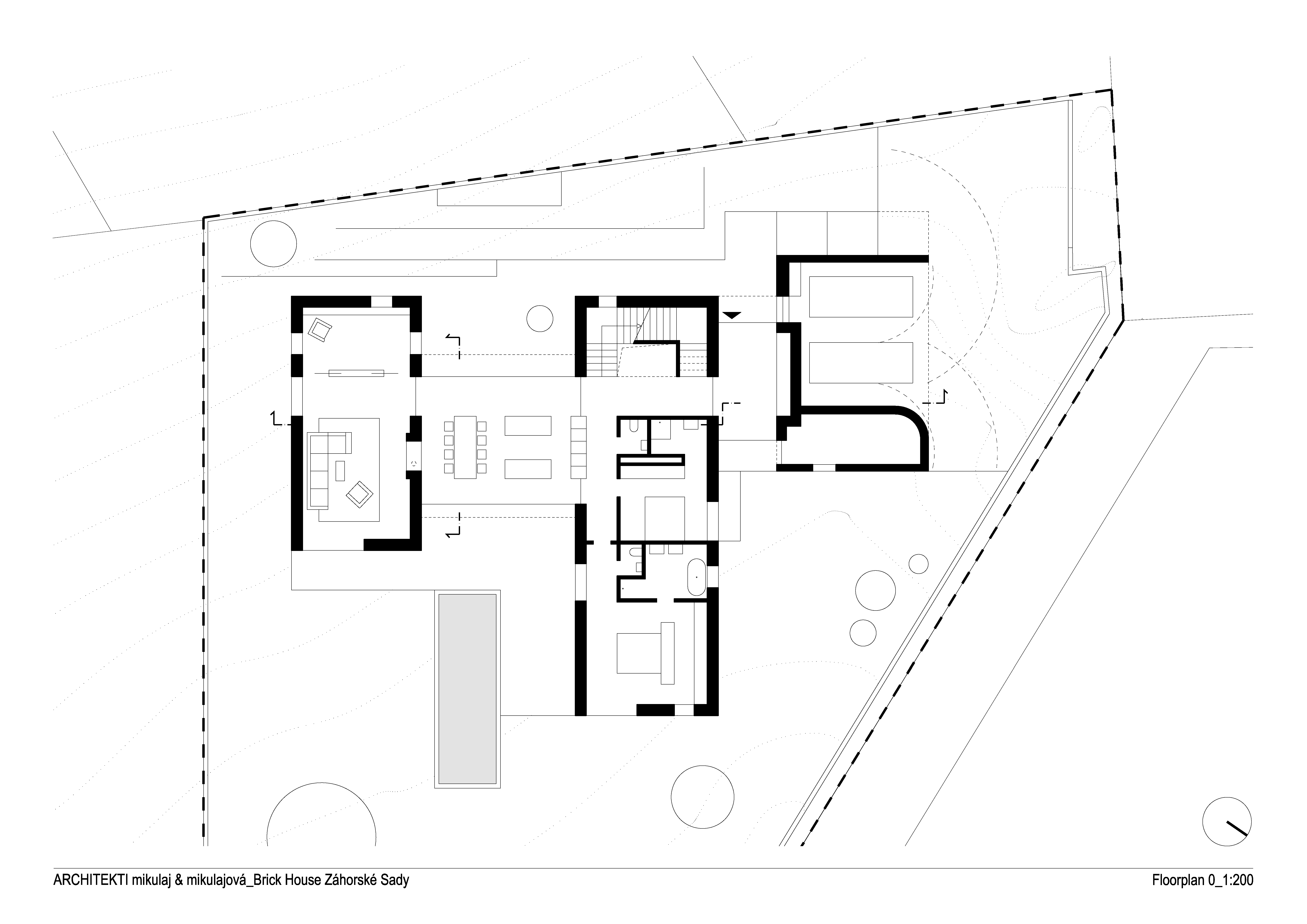
Tri masívne, murované domy preberajú rôzne programy. V tom najväčšom, dvojpodlažnom, umiestňujeme súkromnú zónu - spálne a detské izby. Priestranné schodisko tu má dostatok denného svetla aj premyslene umiestnené okná, poskytujúce osové priehľady do záhrady. Stredne veľký dom tvorí obývačka s obojstranným krbom a čiastočne oddelenou knižnicou. Priestor obývačky je vyvýšený tak, aby sa sem pásovým presklením pod stropom dostávalo juhozápadné slnko. Najmenší dom stojí pri vstupe na pozemok a vytvára miesto pre autá a záhradný servis.

Medzi murované domy vkladáme ľahké, presklené priestory, prístupné vždy z oboch strán. Menší z nich tvorí vstupnú halu a v tom väčšom je hlavný životný priestor šesťčlennej rodiny - kuchyňa s jedálňou a obojstranným krbom. Centrom života tu je veľký jedálenský stôl a dva kuchynské ostrovy. Vďaka tomuto neštandardnému riešeniu kuchyne budú mať rodičia pri varení lepší výhľad na obe strany pozemku - na severovýchod k bazénu, ale aj na menšiu juhozápadnú terasu.

Pozície okien v plných stenách sú dobre premyslené, umiestňujeme ich sem ako obrazy. Presklené priestory sú naopak ľahké, otvorené konštrukcie so železobetónovými trámovými stropmi, ktoré plynule prechádzajú do exteriéru. Celým domom sa tiahne jedna os, ktorá všetky priestory prepája, s krásnym priehľadom do záhrady.

Obvodové steny tvorí keramická tehla, tepelnoizolačná vrstva z minerálnej vlny a prevetrávaná vzduchová medzera. Fasáda je vymurovaná z belgickej lícovej tehly Marziale. Všetky železobetónové stropy v sebe integrujú stropné chladenie. V kombinácii s tepelným čerpadlom, rekuperáciou vzduchu, fotovoltaikou, využitím studne pre potreby záhrady, a zelenými strechami vytvárame ekologickú stavbu, udržateľnú a šetrnú k životnému prostrediu.

Foto: Matej Hakár
Foto: Matej Hakár
Foto: Matej Hakár
Foto: Matej Hakár
Foto: Matej Hakár
Foto: Matej Hakár
Foto: Matej Hakár
Foto: Matej Hakár
Foto: Matej Hakár
Foto: Matej Hakár
Foto: Matej Hakár
Foto: Matej Hakár
Širšie vzťahy
Širšie vzťahyAutor: ARCHITEKTI Mikulaj & Mikulajová
Situácia
SituáciaAutor: ARCHITEKTI Mikulaj & Mikulajová
Pôdorys prízemia
Pôdorys prízemiaAutor: ARCHITEKTI Mikulaj & Mikulajová
Pôdorys poschodia
Pôdorys poschodiaAutor: ARCHITEKTI Mikulaj & Mikulajová
Pôdorys suterénu
Pôdorys suterénu
Rezy
RezyAutor: ARCHITEKTI Mikulaj & Mikulajová
3D rezopohľad
3D rezopohľadAutor: ARCHITEKTI Mikulaj & Mikulajová
Foto: Matej Hakár
Foto: Matej Hakár
Foto: Matej Hakár
Foto: Matej Hakár
Foto: Matej Hakár
Foto: Matej Hakár
Foto: Matej Hakár
Foto: Matej Hakár
Foto: Matej Hakár
Foto: Matej Hakár

Fotografie modelu:

Fotografia modelu
Fotografia modeluAutor: ARCHITEKTI Mikulaj & Mikulajová
Fotografia modelu
Fotografia modeluAutor: ARCHITEKTI Mikulaj & Mikulajová
Fotografia modelu
Fotografia modeluAutor: ARCHITEKTI Mikulaj & Mikulajová
Fotografia modelu
Fotografia modeluAutor: ARCHITEKTI Mikulaj & Mikulajová

Poloha diela

Ing. arch. Juraj Mikulaj
Ing. arch. Andrea Ambrovičová Mikulajová
Ing. arch. Jana Machalová - Matlovičová

Súvisiace články

Vložené
21. marec 2023
0
8039
Hlavný obsahHlavný obsah
Čakajte prosím