Advertorial

Pozvánka na 2. ročník stavebného veľtrhu BigMarket na Slovensku

Na podujatí sa predstaví až 37 vystavovateľov - popredných dodávateľov stavebných materiálov a inovácií s prezentáciou...

Hotel Hirschen Spa House, Rakúsko

Novotvar v prostredí alpskej obce.

Vytvorte si kúpeľňu snov: dizajnové riešenie od značky hansgrohe

Hansgrohe - prémiová značka kúpeľňových riešení, ponúka nadčasový dizajn, technickú precíznosť a udržateľné inovácie...

Okná Internorm za minuloročné ceny + hliníkový kryt zdarma!

Využite špeciálnu akciu Internorm: okná za minuloročné ceny a hliníkový kryt úplne zadarmo. Ponuka je časovo obmedzená!

Moderné plynové technológie: Efektivita a inovácie pre 21. storočie

Sumarizácia najdôležitejších inovácií, ktoré redefinujúcich využitie tohto energetického zdroja.

Utesňovanie spodných stavieb pomocou hydro-aktívnej fólie AMPHIBIA.

AMPHIBIA 3000 GRIP 1.3 od spoločnosti ATRO predstavuje modernú hydroizolačnú technológiu, ktorá spája vysokú odolnosť,...

Dekarbonizácia individuálneho vykurovania domácností – Green Deal evolučne a nie revolučne

Ambiciózne plány EK narazili na ekonomické možnosti domácností v jednotlivých členských štátoch –...

Minimalistické dvere IDEA – technická precíznosť a čistota prevedenia

IDEA DOOR od spoločnosti JAP prináša do interiéru čistý minimalistický vzhľad vďaka bezrámovému riešeniu a precíznej...

Dom s výhľadom na údolie, Dlouhý Most (ČR)

Kontinuita riešenia od vonkajšieho obkladu až po kovania a kľučky.

Schell Vitus – osvedčené riešenie pre sprchy a umývadlá vo verejnom sektore s viac ako desaťročnou tradíciou

Nástenné nadomietkové armatúry Vitus sú mimoriadne vhodné pre rýchlu a efektívnu...

Kompozitné okná predstavujú súčasnosť a budúcnosť

Okenné profily z kompozitného materiálu RAU-FIPRO X od spoločnosti Rehau sú v porovnaní s tradičnými plastovými profilmi mnohonásobne...

Myotis - stoly 2025

Najnovší sortiment stolov pre zariadenie interiérov...

Priemyselné sklenené priečky Dorsis Digero: svetelné rozhranie pre moderné interiéry

Spojenie moderného dizajnu, funkčnosti a svetla do harmonického architektonického prvku.

Význam prirodzeného svetla pre moderné a flexibilné pracovné prostredie

Kancelárska budova Baumit v slovinskom Trzine prešla premenou na moderné a udržateľné pracovisko. Architekti kládli dôraz...

Konferencia Xella Dialóg predstaví novinky a trendy v stavebníctve

Mottom šiesteho ročníku on-line konferencie odborníkov Xella Dialóg je Efektívny návrh budov 2025+: zmeny a riešenia

Domy Roličky, Bratislava

Veľkometrážne byty, neštandardná typológia, výhľad na mesto.
Diela
Red 419.04.2021
77000+71
Domy Roličky, Bratislava
Autori: Ing. arch. Kalin Cakov, Ing. arch. Metodiy Monev, Ing. arch Ján ObušekSpolupráca: Ing. Tomáš Fojtík, Ing. arch. Michal Kyselica, Ing. arch Soňa Dianová, Ing. arch Diana MichnovaInvestor: MIVO Podlažná plocha: 9 080 m2Návrh: 2016 - 2017Realizácia: 2017 - 2019Adresa: Na Roličkách , Bratislava, SlovenskoPublikované: 19. apríl 2021

Obytný súbor Roličky, osadený do svahovitého pozemku v lokalite Vtáčnik, zahŕňa devať domov s 27 veľkometrážnymi bytmi. Na každom z podlaží domu sa nachádza vždy len jeden byt s výmerou 136 – 184 m2, prístupný výťahom priamo z garáže. Prioritou je otvorený výhľad z obytných priestorov, ktoré vždy rozširuje vlastná predzáhradka, lodžia, alebo rozsiahla strešná terasa pri bytoch na druhom poschodí. 

Základný ortogonálny raster objektov, postavených na podnoži spoločných garáží, členia perforácie bočných fasád, ktoré vytvárajú átriá a lodžie. Vzniká tak otvorená a zároveň artikulovaná krajina obytného prostredia, s dobre diferencovanou mierou súkromia jednotlivých priestorov. 

Materiálovo zjednotené riešenie exteriéru necháva vyniknúť hmotovú a priestorovú skladbu objektov. Precízne odliate oceľobetónové konštrukcie sa neštandardne stávajú súčasťou interiéru bytov.

Roličky zdieľajú viaceré princípy s neďalekým projektom ELEVEN Houses. Štandard sa výrazne posunul, rukopis ateliéru cakov+partners však zostáva jasne čitateľný.

Foto: Tomáš Manina

Viac slovami autorov:

Bytový komplex Roličky sa nachádza na kopci nad mestom, v lokalite Vtáčnik, v ktorej posledné roky prebieha aktívna stavebná činnosť. Podľa nového územného plánu je lokalita určená na bývanie, zastúpené prevažne v bytových domoch. Okrem nášho projektu tu vzniklo viacero rezidenčných súborov a pripravuje sa výstavba ďalších.

Foto: Tomáš Manina

Zámerom projektu bolo zabezpečiť súkromie užívateľov a súčasne využiť pekné výhľady na Bratislavu.

Pre tento účel sa domy „otvárajú“ smerom na mesto a do kopca. Bočné fasády sú perforované minimálne. Do nich sú osadené malé átriá a loggie, ktoré pomáhajú presvetliť hlboké dispozície. Zároveň umožňujú priečne vetranie dennej časti bytu. Domy sú vzájomne odsadené, priestory medzi nimi sa využívajú pre terasy a zelené plochy. 

Schéma
SchémaAutor: cakov+partners

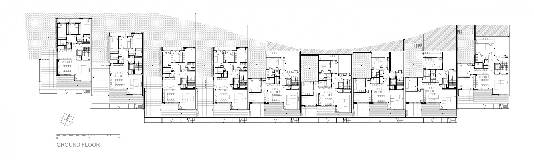
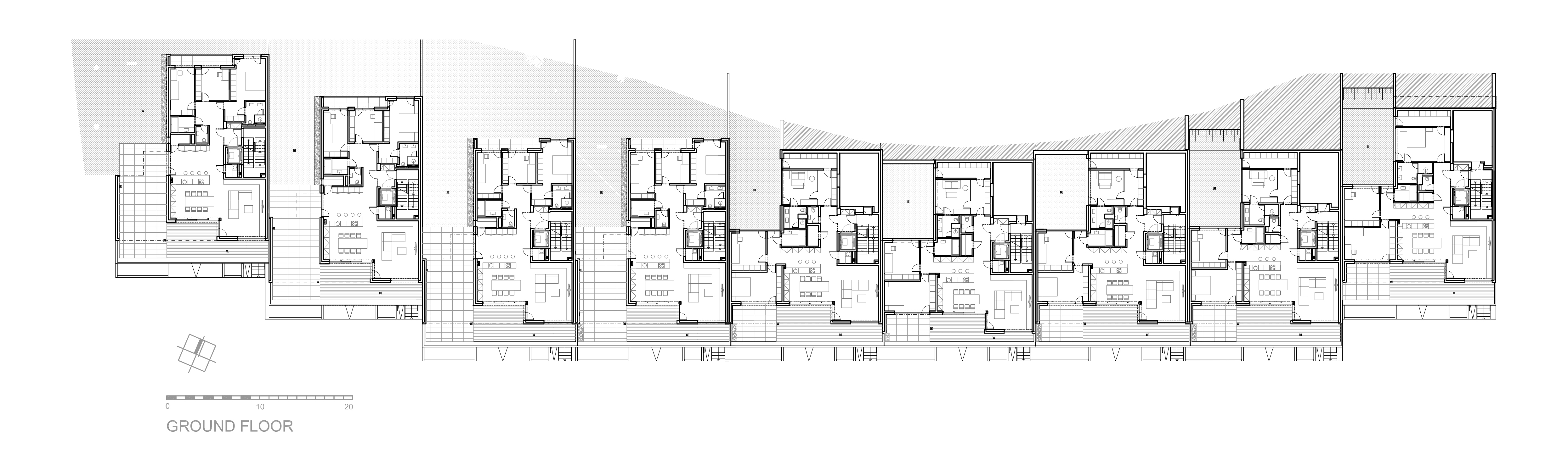
27 veľkometrážnych bytov je usporiadaných v deviatich samostatných domoch. Prístup k všetkým líniovo usporiadaným objektom zabezpečuje spoločná vnútroareálová komunikácia. Objekty na oboch koncoch sú ustúpené podľa vejárovitého tvaru pozemku. 

Situácia
SituáciaAutor: cakov+partners

Domy majú tri nadzemné poschodia a spoločnú garáž v suteréne. Na každom z podlaží je samostatný byt, prístupný priamo z výťahu. 

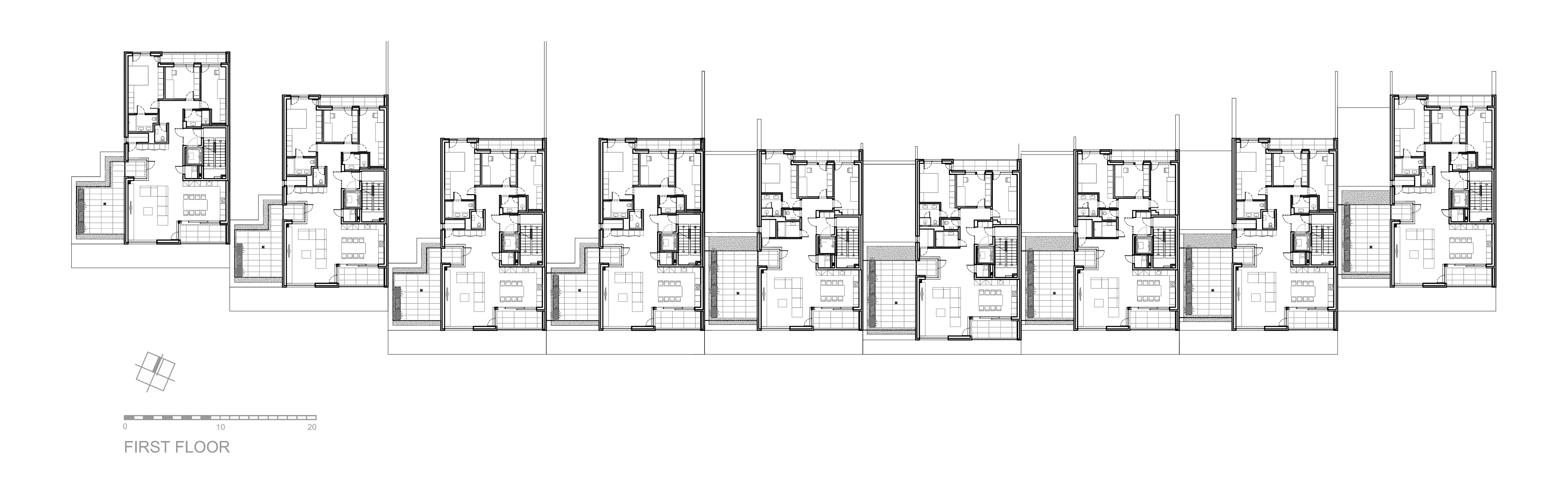
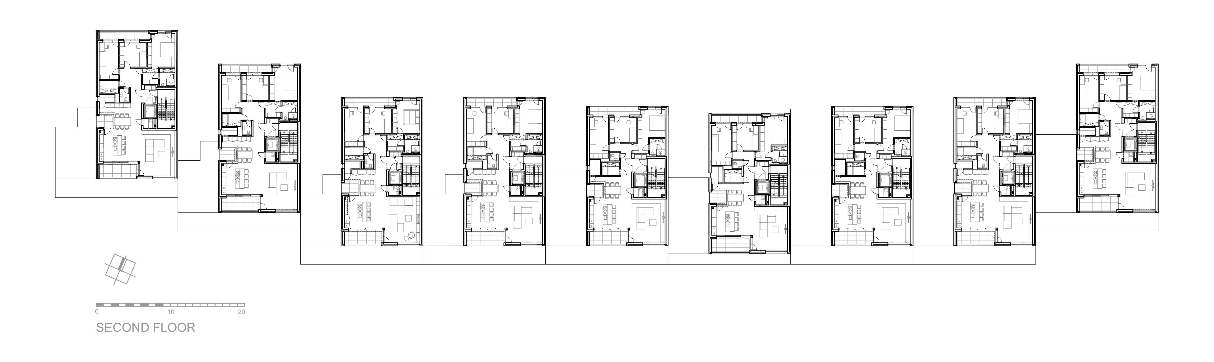
Dispozícia bytov je rozdelená na tri základné celky. Denná zóna, orientovaná na juhovýchod, využíva celú šírku domu (10,2m) - z obývačky, jedálne a kuchyne sa otvára výhľad na mesto. Nočná zóna smeruje na severozápad. V centrálnej časti bytu je vstup, technické zázemie a hygiena. Každá zóna má svoju loggiu, alebo átrium, navrhnuté podľa účelu využitia. 

Každý byt má veľkú terasu, prístupnú priamo z úrovne bytu. Výnimkou sú byty na druhom poschodí, ktoré disponujú rozsiahlou strešnou terasou. Sprcha a letná kuchyňa sú zapustené do hmoty domu. Zvyšok tvorí extenzívna zelená strecha a svetlíky, ktoré presvetľujú kúpeľne o poschodie nižšie. Byty na prízemí majú priľahlé pozemky alebo rozmerné zelené átria. 

V každom byte je iba jedno stredové inštalačné jadro a jeden stĺp. Toto riešenie umožňuje veľkú variabilitu dispozícii.

Pôdorys 1. PP
Pôdorys 1. PPAutor: cakov+partners
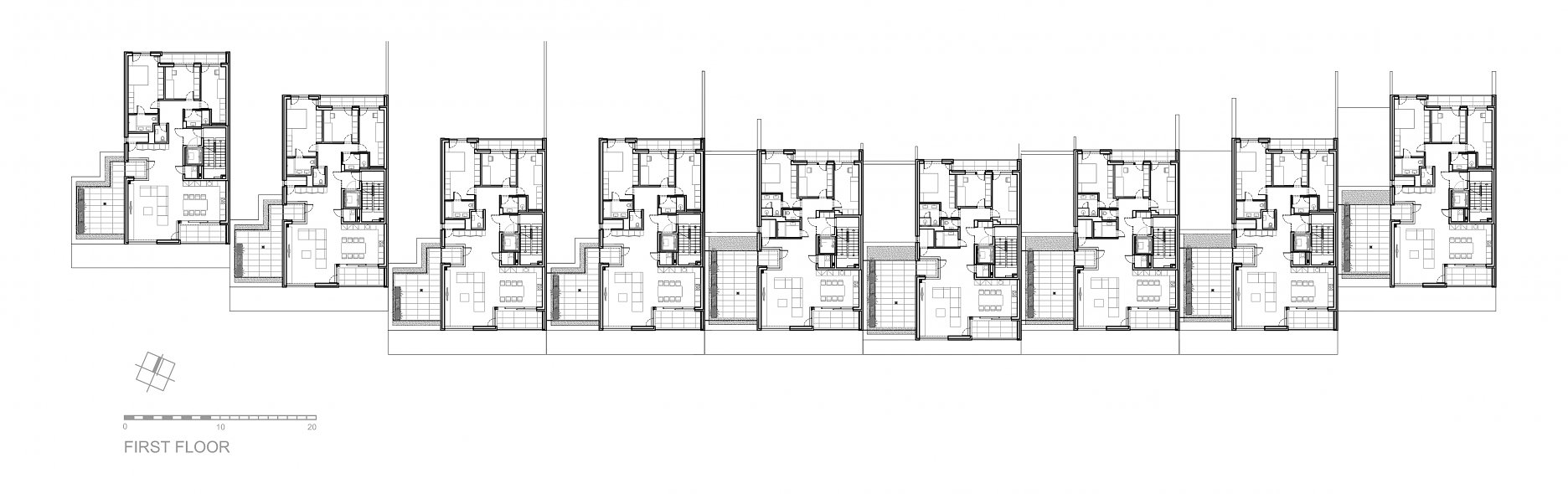
Pôdorys 1. NP
Pôdorys 1. NPAutor: cakov+partners
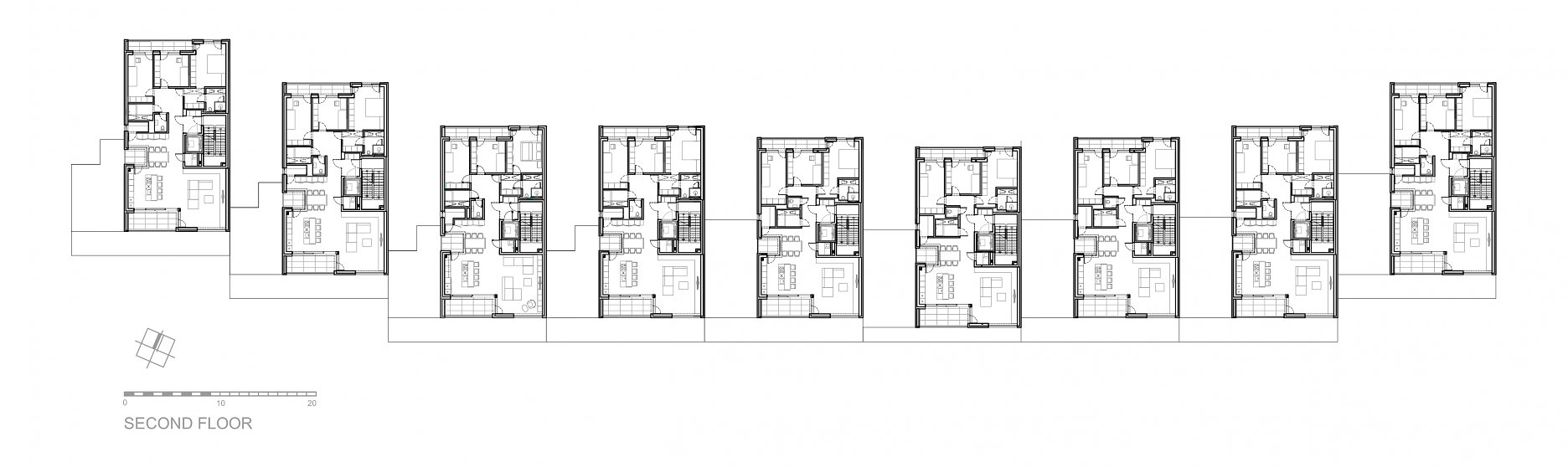
Pôdorys 2. NP
Pôdorys 2. NPAutor: cakov+partners
Pôdorys 3. NP
Pôdorys 3. NPAutor: cakov+partners
Pôdorys najvyššieho podlažia so strešnou terasou
Pôdorys najvyššieho podlažia so strešnou terasouAutor: cakov+partners

Svetlá výška 2,9 m v bytoch a 3,3 m v garážach odzrkadľuje vysoký štandard projektu.

Pozdĺžny rez
Pozdĺžny rezAutor: cakov+partners

Fasádny obklad z lícových tehál Rustique dopĺňa alucobond a hliníkové okná Reynaers s akusticky izolačným trojsklom so žalúziami. Každý byt má vlastný plynový kotol napojený na podlahové kúrenie. Celkový výraz domov je minimalistický, prevláda jednotná sivá farba doplnená o čierne akcenty. Prístupová cesta je dláždená tehlami výrobcu, ktorý dodal aj fasádne tehličky. Pri pohľade z diaľky domy „nekričia“, ale splývajú s kopcom.

Foto: Tomáš Manina
Foto: Tomáš Manina
Foto: Tomáš Manina
Foto: Tomáš Manina
Foto: Tomáš Manina
Foto: Tomáš Manina
Foto: Tomáš Manina
Foto: Tomáš Manina
Foto: Tomáš Manina
Foto: Tomáš Manina
Foto: Tomáš Manina
Foto: Tomáš Manina
Foto: Tomáš Manina
Foto: Tomáš Manina
Foto: Tomáš Manina
Foto: Tomáš Manina
Foto: Tomáš Manina

Poloha diela

Ing. arch. Kalin Cakov
Ing. arch. Metodiy Monev
Ing. arch Ján Obušek

Súvisiace články

Vložené
9. apríl 2021
0
7700
Hlavný obsahHlavný obsah
Čakajte prosím