Na podujatí sa predstaví až 37 vystavovateľov - popredných dodávateľov stavebných materiálov a inovácií s prezentáciou...
Novotvar v prostredí alpskej obce.
Hansgrohe - prémiová značka kúpeľňových riešení, ponúka nadčasový dizajn, technickú precíznosť a udržateľné inovácie...
Využite špeciálnu akciu Internorm: okná za minuloročné ceny a hliníkový kryt úplne zadarmo. Ponuka je časovo obmedzená!
Sumarizácia najdôležitejších inovácií, ktoré redefinujúcich využitie tohto energetického zdroja.
AMPHIBIA 3000 GRIP 1.3 od spoločnosti ATRO predstavuje modernú hydroizolačnú technológiu, ktorá spája vysokú odolnosť,...
Ambiciózne plány EK narazili na ekonomické možnosti domácností v jednotlivých členských štátoch –...
IDEA DOOR od spoločnosti JAP prináša do interiéru čistý minimalistický vzhľad vďaka bezrámovému riešeniu a precíznej...
Kontinuita riešenia od vonkajšieho obkladu až po kovania a kľučky.
Nástenné nadomietkové armatúry Vitus sú mimoriadne vhodné pre rýchlu a efektívnu...
Okenné profily z kompozitného materiálu RAU-FIPRO X od spoločnosti Rehau sú v porovnaní s tradičnými plastovými profilmi mnohonásobne...
Najnovší sortiment stolov pre zariadenie interiérov...
Spojenie moderného dizajnu, funkčnosti a svetla do harmonického architektonického prvku.
Kancelárska budova Baumit v slovinskom Trzine prešla premenou na moderné a udržateľné pracovisko. Architekti kládli dôraz...
Mottom šiesteho ročníku on-line konferencie odborníkov Xella Dialóg je Efektívny návrh budov 2025+: zmeny a riešenia

Nebúrať, radšej recyklovať...
Polyfunkčný objekt na Vajnorskej ulici, blízko Tehelného pola, vznikol rozsiahlou prestavbou a dostavbou administratívnej budovy z 80. rokov.
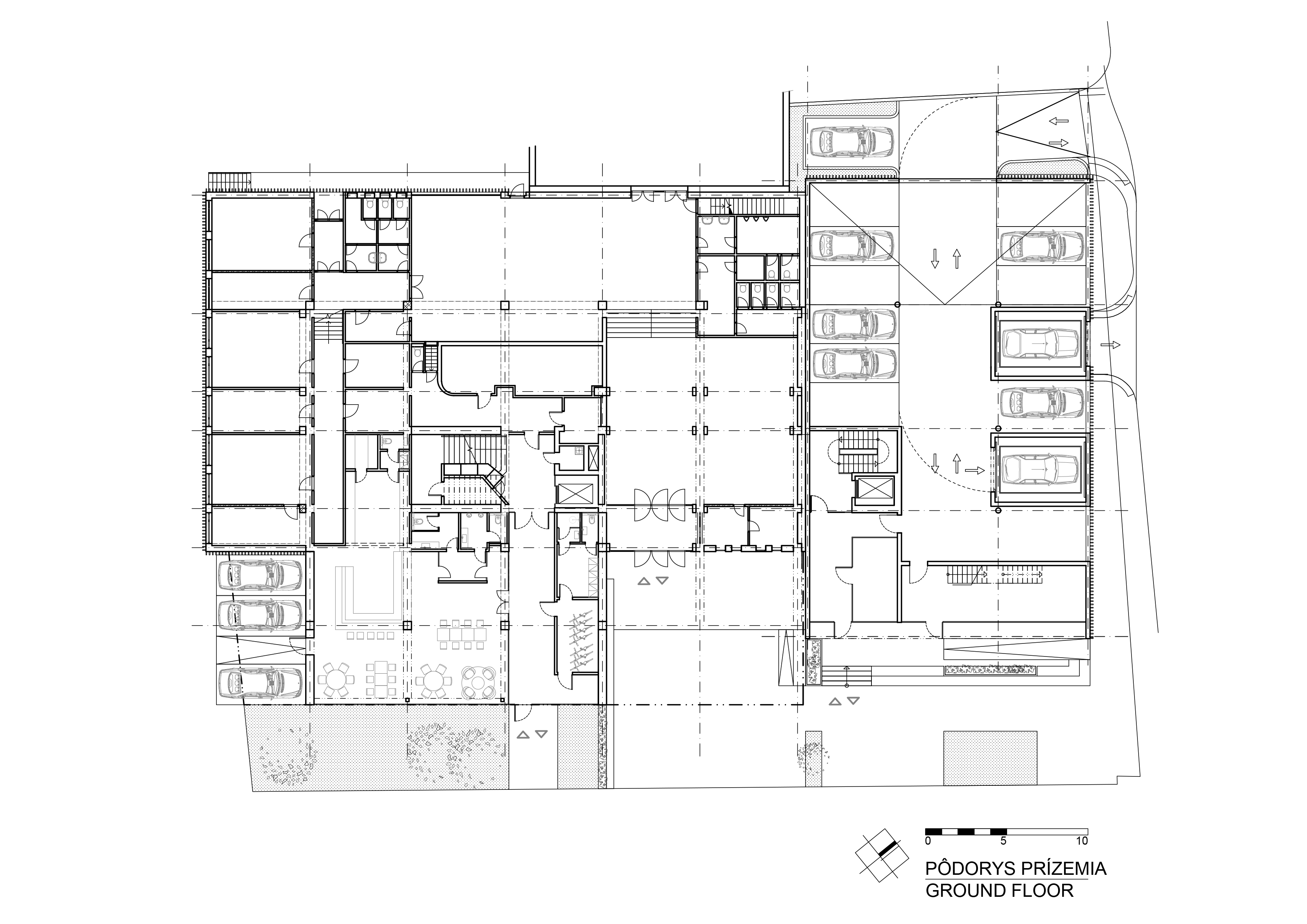
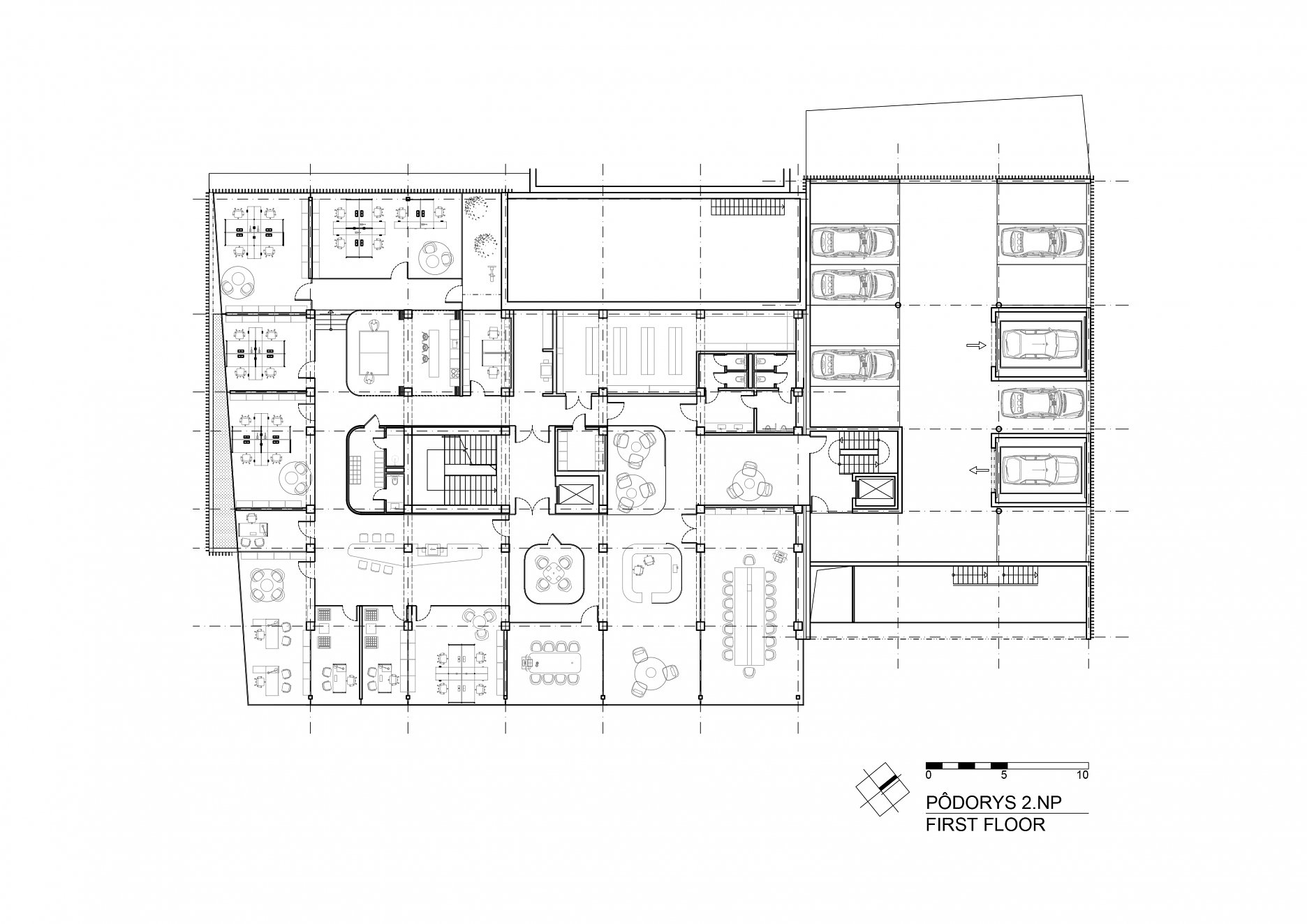
Z pôvodnej stavby ostala zachovaná iba nosná konštrukcia. O využití základu staršej budovy rozhodla požiadavka bratislavskej časti Nové Mesto na zachovanie prevádzky strediska kultúry na prízemí objektu. Projekt ateliéru cakov+partners, ktorý si vybral investor vo vyzvanej architektonickej súťaži, ukazuje, že aj pri konverzii je možné dosiahnuť kvalitu porovnateľnú s novostavbou. Plusom realizácie je dôraz na riešenie priľahlého verejného priestoru. Nová figúra domu rešpektuje urbanistické väzby v území, aj po rozšírení zapadá do prostredia a nenarúša jeho pôvodný charakter. Prístavby a nadstavba zohľadňujú pôvodnú modulovú sieť, staré a nové časti zjednocuje výrazný raster fasády.
Polyfunkcia v blízkosti Tehelného pola
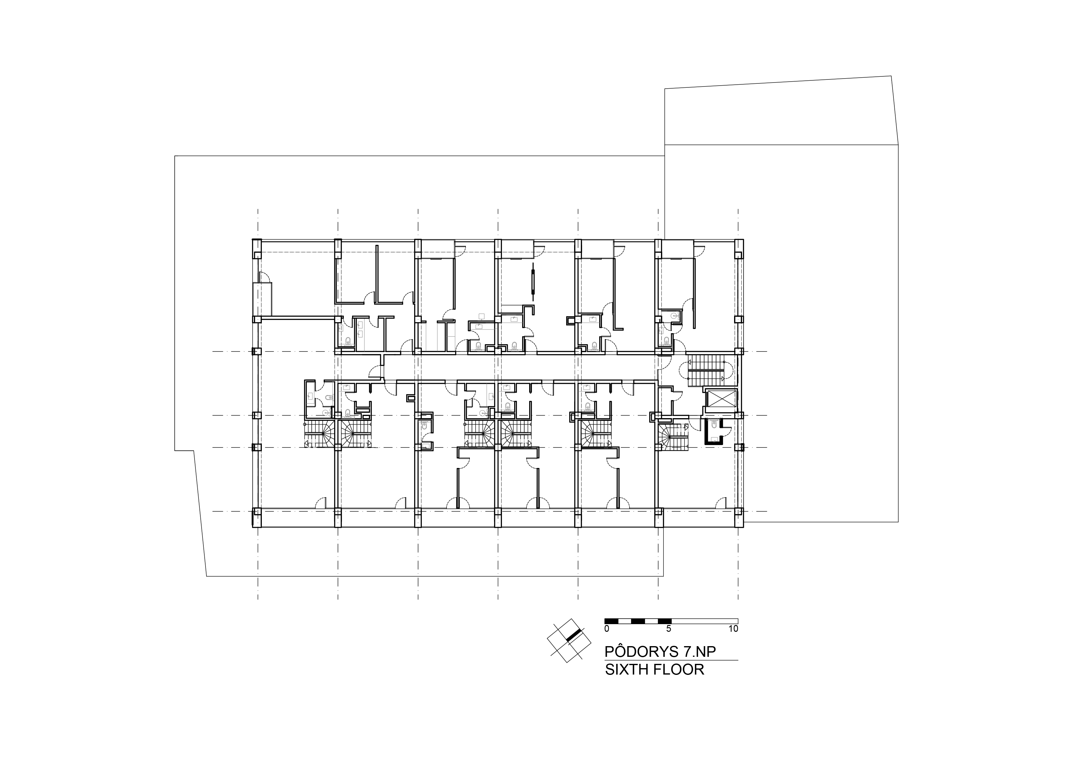
Dostavby a nadstavba, ktoré rešpektujú pôvodnú modulovú osnovu, rozširujú priestor pre novú funkčnú náplň. Objekt, ktorý sa podľa zadania investora zmenil na moderný polyfunkčný dom, zachováva dlhoročnú prevádzku kultúrneho strediska. Retail na prízemí a administratívu na poschodí rozširuje bývanie na zvyšných podlažiach. Pre zrekonštruovaný objekt, uzavretý z ulíc Česká, Robotnícka a Osadná, je charakteristický výrazný raster transparentných častí fasády.
V pôvodnom module
Nároky na nové funkcie domu si vyžiadali radikálnejší prístup k zadaniu. Z pôvodnej budovy zostal iba statický nosný systém - montovaný železobetónový skelet. Pôvodné pásové okná nahradili francúzske okná v kombinácii s loggiami. Rozmerné plochy zasklenia presvetľujú byty s nadštandardnou svetlou výškou 2,9 m. Zároveň tvoria dôležitú súčasť “odľahčeného” vizuálu fasád.
Dispozícia a prevádzka
Presklené fasády, s pekárňou a kaviarňou na prízemí, sú v priamom kontakte s námestím pred budovou. Kancelárske priestory s celkovou výmerou 1100 m2 situovali architekti o poschodie vyššie. Retail a administratíva sú materiálovo a hmotovo oddelené od bývania.
Vyššie podlažia vyhradili architekti pre bývanie s nadštandardnou svetlou výškou.
V 7. a 8. nadzemnom podlaží navrhli architekti mezonetové byty, využívajúce obe výškové úrovne.
Okolie
Okrem samotného objektu prešli revitalizáciou aj priľahlé verejné priestory a vstup do strediska kultúry, ktorý dostal novú podobu. Pred budovou vzniklo nové námestie, z ktorého sa vstupuje do retailu, strediska kultúry, administratívy a bytovej časti domu. Pôvodný chodník nahradilo živé predpolie, v ktorom sa ľudia radi zdržiavajú.
Umenie
Umelecké diela Ašota Haasa vo vstupnej hale domu vítajú rezidentov a zároveň robia radosť okoloidúcim.
Autor: cakov + partners
Foto: Tomáš Manina