Advertorial

95 rokov Internorm: 30 miliónov okien a dverí z Rakúska

Európska značka okien oslavuje jubileum: za 95 rokov sa vyvinula na najväčšiu medzinárodne pôsobiacu okennú značku a inovačného...

Pozvánka na 2. ročník stavebného veľtrhu BigMarket na Slovensku

Na podujatí sa predstaví až 37 vystavovateľov - popredných dodávateľov stavebných materiálov a inovácií s prezentáciou...

Hotel Hirschen Spa House, Rakúsko

Novotvar v prostredí alpskej obce.

Vytvorte si kúpeľňu snov: dizajnové riešenie od značky hansgrohe

Hansgrohe - prémiová značka kúpeľňových riešení, ponúka nadčasový dizajn, technickú precíznosť a udržateľné inovácie...

Okná Internorm za minuloročné ceny + hliníkový kryt zdarma!

Využite špeciálnu akciu Internorm: okná za minuloročné ceny a hliníkový kryt úplne zadarmo. Ponuka je časovo obmedzená!

Moderné plynové technológie: Efektivita a inovácie pre 21. storočie

Sumarizácia najdôležitejších inovácií, ktoré redefinujúcich využitie tohto energetického zdroja.

Utesňovanie spodných stavieb pomocou hydro-aktívnej fólie AMPHIBIA.

AMPHIBIA 3000 GRIP 1.3 od spoločnosti ATRO predstavuje modernú hydroizolačnú technológiu, ktorá spája vysokú odolnosť,...

Dekarbonizácia individuálneho vykurovania domácností – Green Deal evolučne a nie revolučne

Ambiciózne plány EK narazili na ekonomické možnosti domácností v jednotlivých členských štátoch –...

Minimalistické dvere IDEA – technická precíznosť a čistota prevedenia

IDEA DOOR od spoločnosti JAP prináša do interiéru čistý minimalistický vzhľad vďaka bezrámovému riešeniu a precíznej...

Dom s výhľadom na údolie, Dlouhý Most (ČR)

Kontinuita riešenia od vonkajšieho obkladu až po kovania a kľučky.

Schell Vitus – osvedčené riešenie pre sprchy a umývadlá vo verejnom sektore s viac ako desaťročnou tradíciou

Nástenné nadomietkové armatúry Vitus sú mimoriadne vhodné pre rýchlu a efektívnu...

Kompozitné okná predstavujú súčasnosť a budúcnosť

Okenné profily z kompozitného materiálu RAU-FIPRO X od spoločnosti Rehau sú v porovnaní s tradičnými plastovými profilmi mnohonásobne...

Myotis - stoly 2025

Najnovší sortiment stolov pre zariadenie interiérov...

Priemyselné sklenené priečky Dorsis Digero: svetelné rozhranie pre moderné interiéry

Spojenie moderného dizajnu, funkčnosti a svetla do harmonického architektonického prvku.

Význam prirodzeného svetla pre moderné a flexibilné pracovné prostredie

Kancelárska budova Baumit v slovinskom Trzine prešla premenou na moderné a udržateľné pracovisko. Architekti kládli dôraz...

GLASS CUBE - rozšírenie rodinného domu v Bratislave

Ako chrániť súkromie obyvateľov rodinného domu v tesnej blízkosti bytovky? Odpoveďou ateliéru CAKOV + PARTNERS je: zrkadlom. Predstavujeme GLASS CUBE, realizáciu, ktorej bol venovaný priestor v aktuálnom čísle časopisu ARCHITECT+
Diela
Red 322.03.2019
22560+25
GLASS CUBE - rozšírenie rodinného domu v Bratislave
Autori: Ing. arch. Kalin Cakov, Ing. arch Ján Obušek, Ing. arch. Metodiy MonevSpolupráca: Ing. arch. Michal Kyselica, Ing. Tomáš FojtíkPodlažná plocha: 173,95 m²Návrh: 2014 - 2015Realizácia: 2015 - 2017Adresa: Drotárska cesta , Bratislava, SlovenskoPublikované: 22. marec 2019

Sklo v architektúre: GLASS CUBE v sochárskej záhrade

Text Imra Vaška pre ARCHITECT+:

Známa bratislavská ulica Drotárska cesta je vrcholovým hrebeňom najstaršej vilovej štvrti nad Bratislavou medzi dominantami Hradu a Slavína. Je to adresa povojnovej modernistickej umeleckej kolónie domov so sochárskymi ateliérmi v škandinávskom štýle, výškového obytného paneláku reprezentujúcich novú socialistickú technologickú industrializáciu Slovenska, pavilónovej “technostavby” Vysokej školy výtvarných umení od profesora Dušana Kuzmu a “XXL kubusu” Slovenského národného archívu od kultového architekta Vladimíra Dedečka z osemdesiatych rokov. Intenzívna urbanizácia zelených strání posledných dekád zvyšujúcej sa životnej úrovne Slovákov priniesla Drotárskej ceste intenzifikáciu vilami a obytnými domami, ktoré sa navzájom pretláčajú o najlepšiu pozíciu voči slnku, krajine a výhľadov do širokého okolia scenérií Malých Karpád, Dunajskej nížiny a trojhraničia Maďarska, Rakúska a Slovenska.

Foto: CAKOV + PARTNERS

Štvrťstoročie ponovembrového rýchleho stavania a urbanizácie Bratislavy ilustruje príbeh parametrickej premenlivosti jedného stavebného pozemku na západnom svahu Drotárskej cesty. Prvostaviteľovi rodinného domu medzi dominantami VŠVU a Národného archívu sa za dekádu zahusťovania lokality postupne menilo okolie. Do scenérie výhľadov z rodinného domu sa cez stavbu bazéna osadeného v parku ihličnanov do horizontu krajiny vztýčila štvorposchodová bariéra obytného domu, ktorá zlikvidovala dovtedy nerušenú intimitu súkromia a relaxu záhrady.

Koncept
KonceptAutor: CAKOV + PARTNERS
Situácia
SituáciaAutor: CAKOV + PARTNERS

Riešením vzniknutej situácie sa tak stalo osadenie ďalšieho umeleckého diela v sochárskej záhrade architektúry GLASS CUBE. Je to jednopodlažný zrkadliaci objekt nad bazénom maskujúci neželané pohľady susedov a výhľady majiteľov. Monumentálny sklenený hranol je exkluzívnym obytným pavilónom, ktorý sa vznáša a pozerá do intimity súkromia. Rafinované polotransparentné zrkadlo, ktoré obaluje GLASS CUBE a presvetluje aj neďalekú novú garáž, je určujúcim výtvarným materiálom intervencií celého architektonického konceptu inscenovania novej architektonickej krajiny sochárskej záhrady.

Foto: CAKOV + PARTNERS
Foto: CAKOV + PARTNERS
Foto: CAKOV + PARTNERS

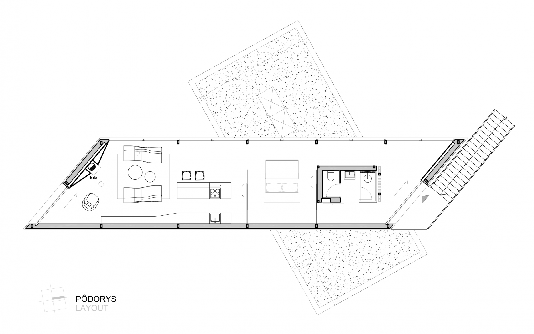
Loft má pôdorysný tvar lichobežníka s jednoduchou a otvorenou lineárne radenou dispozíciou, ktorú narúša len vstavaný kubus hygienickej časti pri vstupe, ktorý je po celej dĺžke asymetricky otvorený výhľadom do záhrady. Polotransparetné zrkadlo maskuje interiér loftu voči exteriéru a vytvára tak v tradícii Ciglerovej školy op-artovú mega-sochu lepeného skleneného objektu, ktorý sa z abstracie denného splynutia s atmosférou oblohy večer transformuje do striptízu odhalovania nasvieteného interiéru.

Pôdorys
PôdorysAutor: CAKOV + PARTNERS
Rez pozdĺžny
Rez pozdĺžnyAutor: CAKOV + PARTNERS
Rez priečny
Rez priečnyAutor: CAKOV + PARTNERS
Pohľad predný
Pohľad prednýAutor: CAKOV + PARTNERS
Pohľad zadný
Pohľad zadnýAutor: CAKOV + PARTNERS

Okrem GLASS CUBE je ďalší sochársko-architektonický objekt novej garáže inak definovaným betónovým kvádrom, ktorého rytmizované vertikály zrkadlových pásov citujú minimalizmus amerického umelca Donalda Judda. Estetický slovník architektonických intervencií ateliéru cakov+partners v súkromnej záhrade na Drotárskej ceste podvedome reaguje na kontextuálne súvislosti tradície školy Sklo v architektúre Václava Ciglera, ako aj na geometriu neskorej moderny budovy Archívu architekta Vladimíra Dedečka. Sklá novej garáže a betónových pochôdznych štruktúr a schodov terénnu záhrady komunikujú s reliéfom štyroch Dedečkových travertínových vertikál, ako aj s horizontálami skleneného bazénu a zrkadla GLASS CUBE. 

Foto: CAKOV + PARTNERS
Foto: CAKOV + PARTNERS
Foto: CAKOV + PARTNERS
Foto: CAKOV + PARTNERS

Sochársko-architektonickú kompozíciu záhrady dobre definuje kinetický objekt dvoch lineárnych skiel absolventa Ciglerového ateliéru Pavla Hlôšku. Glass House je témou moderny a jej interpretácií plávajúcich priestorov pavilónov Philipa Johnsona alebo Miesa van Der Rohe, ktorí priniesli do architektúry nové ľahké ocelové konštrukcie, sklo a transparenciu, čím zásadne zmenili dovtedy tradičnú architektonickú tektoniku. Stavba konštrukčných detailov minimalizujúcej estetiky ateliéru CAKOV+PATNERS tak nadväzuje na precízne úsilie Ciglerovskej a Vilhanovej školy na VŠVU v šesdesiatych, sedemdesiatych a osemdesiatych rokoch konštruovať ľahkú high-techovú architektúru.

Foto: CAKOV + PARTNERS
Foto: CAKOV + PARTNERS

Personálne obsadenie pedagogického zboru v samotnom počiatku existencie VŠVU v Bratislave znamenalo nadviazanie na tradície medzivojnového moderného umenia a Bauhausu. Hoci päťdesiate roky 20. storočia boli politicky, problematické, na mnohých pedagogických postoch pôsobili kvalitní umelci vyškolení na pražskej akadémii a v československej kultúrnej a umeleckej tradícii. Prepojenosť viacerých pedagógov s českým prostredím sa premietlo nielen do výučby teoretických predmetov, kde pôsobili významní českí historici umenia a estetici ako Jiří Kotalík, Vojtěch Volavka, Zdenka Volavková-Skořepová alebo Václav Zykmund, ale aj pozvaním pre Václava Ciglera založiť na škole nový odbor. Po založení dvoch pre Slovensko významných architektonických škôl – „exteriér“ Dušana Kuzmu a „interiér a výstavníctvo“ Vojtecha Vilhana, novovzniknutý špeciálny ateliér Sklo v architektúre sa postupne vyprofiloval na pracovisko s mimoriadnym profesionálnym zázemím. Václav Cigler je priekopníkom uplatnenia nielen optického skla, ktoré vtiahol do sveta umenia z technického a vedeckého prostredia. Táto metóda umožňuje aj dnešnej generácii vytvárať objekty aj architektúry, ktoré okolitý svet opticky absorbujú a dynamizujú. Svetelno-kinetické architektúry, akými sú aj drobné stavby v sochárskej záhrade na Drotárskej ceste sú tak súčasťou celého radu projektov, ktoré oscilujú medzi exteriérom a interiérom, pracujú so sklom, lešteným kovom, alebo vodnou hladinou, alebo miešajú všetky médiá spoločne. V mnohých smeroch dnes prekračuje odkaz Skla v architektúre hranice sklárskej tvorby a dotýka sa množstva environmentálnych aj architektonických problémov. Reakcia architektonického tímu CAKOV+PARTNERS na parametrické riešenie dnešných komplikovaných vzťahov, súvislostí a problémov v stredoeurópskej urbánnej krajine architektúrou na rozhraní staviteľstva, sochárstva a konštrukčného inžinierstva je zaujímavým príkladom stále aktuálneho architektonického minimalizmu, ktorý má aj na Slovensku niekoľko zaujímavých historických a kulturologických konotácií a súvislostí. Československý odkaz architektonickej a dizajnérskej tradície exteriéru, interiéru a skla v architektúre v spolupráci hrdinov tej doby je stále aktuálny a živý aj tvorbe dnešných generácií architektov.

Foto: CAKOV + PARTNERS
Foto: CAKOV + PARTNERS
Foto: CAKOV + PARTNERS

Nielen o predstavenej realizácii sa s Kalinom Cakovom, zakladateľom ateliéru CAKOV + PARTNERS, rozprával šéfredaktor ARCHITECT+ Matej Šišolák:

M.Š.: Pokúste sa priblížiť situáciu: pôvodný dom na lukratívnej parcele, obklopený novou výstavbou bytoviek priemernej kvality...

K.C.: A tým je povedané všetko... Pred niekoľkými rokmi, možno už aj pätnástimi či šestnástimi, sme sa zoznámili s klientmi a pomáhali im pri realizácii ich vízie. Vznikol rodinný dom, následne sme pre nich v tom istom dome vytvorili komplexný interiér. Za tie roky sme sa spriatelili a spracovávali ich ďalšie a ďalšie vízie. Postupne sme ich rodinnú základňu obohatili o vonkajší krytý bazén. V tej dobe bola lokalita stále tichá a mimo pozornosti developerov. Rozľahlý pozemok nadobudol ráz krásnej záhrady, až parku. Tento park je dielom majiteľky, ktorá má rozhľad v oblasti architektúry, dizajnu a umenia. Práve ona sa stala aj určitým spoluautorom vo všetkých projektoch, ktoré pre klienta vznikali. Veľmi príjemná spolupráca, kde nečakáte boj, ale koncert...

M.Š.: Ako znelo zadanie klienta?

K.C.: Pôvodný rodinný dom s bazénom a parkom: súkromie, gril, večierky, plavky, i domáca kancelária na terase. Avšak asi pred tromi či štyrmi rokmi náhle vzrástol developerský apetít. V susedstve, hneď vedľa bazéna a záhradného parku s rodinným domom, začala výstavba bytových domov spomínanej architektonickej kvality. Všetko, čo si od rodinného bývania sľubujeme, sa má ďalej odohrávať ako v aréne s tribúnou pre desiatky divákov? Nie, sťahovať sa nechceme a pred tribúnou musíme spustiť oponu! "Vymyslite niečo, dajte tam billboard, umelecké dielo, niečo, čím nás odfiltrujete, a zostane nám súkromie," takto mi predostrel svoje "zadanie" klient, za tie roky už aj kamarát. Človek, ktorý je taktiež obdivovateľom umenia. Práve on nás zoznámil s ďalším našim priateľom -  sochárom, grafikom a “multiumelcom” Ašotom Haasom. S Ašotom máme niekoľko spoločných úspešných projektov interiéru a práve s ním sme mali pôvodne vytvoriť "umeleckú oponu".

M.Š.: Aká bola vaša odpoveď - základná myšlienka návrhu?

K.C.: Nič! Postavme tam také veľké nič! Už pri prvom stretnutí a upresnení zadania, sme sa zhodli, že by tá "opona" mala mať funkciu. Ateliér, kanceláriu alebo loft pre ich deti. Prvá prezentácia našej myšlienky a konceptu pred investorom sa odohrala veľmi rýchlo po zadaní. Zaujímal som sa o skutočnosť, aký mali predtým výhľad. Ako by ho mohli zachovať, dokonca ich krásny park by mohol mať dvakrát takú dimenziu... Prečo by malo nové obecenstvo parazitovať na výhľade, ku ktorému nemá vzťah? A prečo by ste ich vy mali rušiť grilovaním a večerným kúpaním bez plaviek?

M.Š.: Postaviť nič je naozaj neľahká úloha. Koho a prečo napadlo dom obložiť zrkadlami?

K.C.: V našom ateliéri sme podrobne analyzovali zadanie. Hľadali sme možnosti ako zakomponovať súčasnú architektúru do novovzniknutého prostredia, materiálové prostriedky sa neustále bili s okolím, cítili sme, že sa točíme v kruhu otázok a nejasných odpovedí a zbytočných dizajnových gest. Vtedy náš kolega Michal Kyselica prišiel s myšlienkou urobiť “neviditeľnú” architektúru. Bol to výborný impulz, ktorý nadchol celý náš tím. zrkadlo! Ale ako ďalej? Veľmi rýchlo sme vytvorili základný koncept. Ale skúste ukázať investorovi nič. Zažili sme veľmi kreatívny týždeň. Každopádne prezentácia bola nakoniec úspešná.

M.Š.: Aká bola jeho reakcia?

K.C.: Hneď pri prvom stretnutí sa s myšlienkou stotožnil. Páčil sa mu základný koncept a efekt, ktorý sme chceli dosiahnuť. Spolu sme ho vnímali ako ďalšiu sochu v parku. Dal nám zelenú. Samozrejme sme museli ďalej doladiť skutočnú funkčnosť celého konceptu.

M.Š.: Zrkadlá tvoria okrem fasády i podhľad... Prečo?

K.C.: Koncept musel byť dotiahnutý do dokonalosti. Vznikol hranol, ktorý sa vznášal nad záhradou. Pod ktorým prejdete, a vnímate rôzne uhly pohľadu a odrazu, to všetko sa stráca a zároveň znásobuje.

M.Š.: Môžete bližšie popísať ich konštrukciu a spôsob uchytenia na fasádu? Riešili ste nejaké komplikované detaily?

K.C.: Všetko bolo komplikované, hlavne detaily. Zavolajte statika a vysvetlite mu, že zrkadlový hranol má levitovať nad existujúcim krytým bazénom a nad krásnou záhradou. Čo vám na to asi povie? Našťastie sa výborne vysporiadal so zadaním, nakoniec tam ale pár stĺpov predsa len zostalo. Čierna je farba architektov a v kontexte s parkom zanikne. Na rad prišlo zrkadlo. Veľmi neizoluje, a zároveň chceme, aby bolo zvnútra priehľadné. Interiér musí byť plne funkčný. Takéto zrkadlo sme nazvali "Špiónšpíglglass". Prišla oknárská firma, ktorá zákazku poriadne uchopila. Začali sme rozpracovávať detaily. Spomínané zrkadlo je hermeticky namontované na hliníkovú fasádu s trojitým zasklením. Presnosť už nezodpovedá štadrardnému stavebnému detailu, začali smme sa pohybovať v strojárskej oblasti. Farba zrkadla bola naozaj veľmi dôležitá, ako aj percento priepustnosti a reflexie. To bola alfa a omega celého konceptu. Vzorky 1: 1 a simulácie, ako bude sklo pôsobiť zvnútra a ako sa bude fasáda zrkadliť, boli veľmi dôležité. Do ďalšej práce sme sa pustili až v okamihu, keď sme vedeli, že je všetko správne nastavené. Vznikol aj strešný svetlík pozdĺž celého hranola, ktorý prepúšťa denné svetlo, lebo "špión" má menšiu priepustnosť. Svetlík musel byť prepočítaný tak, aby jeho svetlo spúšťané do interiéru špióna "neprezradilo". Premysleli a zrealizovali sme aj mnoho ďalších remeselných detailov.

M.Š.: Akým spôsobom ste riešili prípadné odrazy a nepríjemné oslnenie okolitých objektov prostredníctvom zrkadlovej fasády?

K.C.: Osadenie zrkadlového hranola do priestoru bolo veľmi dôležité. Počas projektovania už bola hrubá stavba spomínanej tribúny (novo vznikajúcej bytovky) skoro hotová. Mohli sme veľmi presne vedieť, aká veľká má byť  naša "opona" a zároveň sme veľmi dbali na to, aby sa slnečné lúče neodrážali a neznepríjemňovali život budúcim susedom. Museli sme brať do úvahy veľa aspektov, zimné slnko, letné slnko, farebnosť zrkadla. A čo odraz slnka voči našim klientom? A znovu sme dom pootočili...

M.Š.: Môžete naznačiť, o akú pomernú sumu (v%) sa kvôli zrkadlovej fasáde zvýšil rozpočet?

K.C.: Precíznosť spracovania detailov vnímam ako hlavný atribút. Nejde primárne o použitie materiálu, akým je zrkadlo. S čím to môžeme porovnať? S bežným stavebným prístupom? Murár vymuruje tak, ako mu je zaplatené, avšak príde omietkar, ktorý všetko zakamufluje, potom príde maliar, ktorý to má zachrániť, a keď nie, zavesíme obraz... Z takého zúfalstva vznikli a vznikajú nové architektonické tendencie, ktoré sú mi sympatické pri rekonštrukciách, ale u novostavieb nemajú čo robiť. Keby sme zrkadlo nepoužili v danom kontexte, bolo by to nielen mimo koncept, ale išlo by aj o vyhodené financie. O koľko sme teda v skutočnosti předražili stavbu?

M.Š.: Zrkadlá sú síce najvýraznejším výtvarným prvkom, bola by ale škoda nevšimnúť si tvar domu. Čo vás k nemu priviedlo?

K.C.: Bolo to jeho funkčnosťou a účel, pre ktorý bol objekt postavený. Potrebovali sme zatiahnuť oponu, ale zároveň sme nechceli, aby pôsobila mohutne. Zoštíhlenie a dynamika, ktoré sme dosiahli, nám zároveň pomáhala pri odrazoch okolia. Určitým spôsobom nás k tomu naviedol aj klient, ktorý v tom videl nielen elegantný purizmus, ale aj prvky hi-tech. 

M.Š.: Ako vnímate celkový kontext miesta? Pôvodný dom je ukrytý v záhrade, nový naopak vyčnieva... Môžete rozvinúť urbanistické hľadisko vášho riešenia?

K.C.: Z nášho pohľadu by sme najradšej mali zrkadlo aj na streche... Na “piatej fasáde” sú však umiestnené solárne panely, ktoré sú napojené na batériu Tesla, čo zabezpečujé úplnú energetickú samostatnosť domu. Celkový urbanistický koncept, ktorý sme vytvorili, vnímam ako účinnú odpoveď na developerskú expanziu v susedstve.

M.Š.: Ako je klient spokojný s domom?

K.C.: Mnohokrát nám klient spontánne volal, že zrkadlo splnilo účel a je to "jednoducho nádhera". Čo vám môže dať väčšiu satisfakciu? Pričom výstavba bola komplikovaná a zdĺhavá, na úkor ich súkromia. Pevne veríme, že aj ľudia za "oponou" majú nerušený pokoj, respektíve taký, aký si v zrkadle urobia.

M.Š.: Môžete zaradiť stavbu do kontextu vašej tvorby? Dlho sa profiluje ako tvorcovia atraktívnych rodinných domov, aké miesto vo vašom portfóliu zaberá Mirror house?

K.C.: Pre nás je to úspešná realizácia. Každý projekt ktorý robíme je na mieru. Každý má svoje špecifiká, genius loci a ľudí, ktorí v ňom bývajú alebo užívajú daný objekt. Tento projekt vnímame ako nadčasový, pretože je mimo iného aj ľahko funkčne adaptovateľný. Dnes môže byť štúdiom, zajtra loftom, pozajtra a popozajtra niečím, čo si doba vyžiada.

M.Š.: Ako vôbec vnímate individuálnu výstavbu na Slovensku?

K.C.: Za posledné roky vzniklo mnoho veľmi kvalitných architektonických diel v oblasti individuálnej výstavby. Sympatické a vtipné koncepty, ktoré nás bavia. Domy bez limitu, skladacie a modulárne domy à la Ikea, kontajnery a nízkorozpočtové rodinné domy, to všetko sa objavilo nielen v našom portfóliu, ale celoplošne na Slovensku.

M.Š.: Zahraničný vzor či inšpirácia?

K.C.: V našom ateliéri všetci neustále sledujeme súčasné architektonické dianie, ktoré je na rozdiel od minulosti zrýchlené. Keď ste v rýchliku, z okolitej scenérie vám zostane v pamäti to, na čo myslíte. Je nám sympatická a inšpirujúce tvorba Fostera, Chipperfielda, MVdRV a im podobných. Jednoduchá, zrozumiteľná a elegantná architektúra. Český dizajnový tím Olgoj Chorchoj je pre nás inšpiratívny v oblasti dizajnu, takisto ako množstvo severských dizajnérov.

M.Š.: Nie je tajomstvom, že staviate doma aj v zahraničí... dokážete popísať "lokálny vkus"? Alebo ako sa v zadaní a vašom spracovaní líšia rodinné domy v Bulharsku, Česku či na Slovensku?

K.C.: Máme skúsenosti z niekoľkých krajín, kde sme pôsobili a kde stále pôsobíme. Nie je to však otázka rozdielneho vkusu klientov v daných lokalitách. Je to skôr v dialógu architekta s klientom. Do akej miery máte silu klienta vzdelávať, presviedčať a argumentovať, čo je v danej situácii správne. V Čechách sme sa stretli s precíznosťou, ktorú uplatňoval klient pri realizácii spoločného zámeru, pretože každé dielo je spoločným úsilím. V Azerbajdžane vnímajú všetky naše vízie ako európske, prípadne celosvetové a chcú sa s tým stotožniť, pretože sa chcú posunúť smerom k nám. Napríklad klienti z Bulharska nám povedali, že tam málokedy existuje dialóg medzi klientom a architektom, čo je veľká škoda. V Chorvátsku sme sa veľa naučili od remeselníkov a prekročili sme tieň vrhaný obligátnou formulou "to nejde". Viedeň je zaujímavá tým, že vás legislatíva núti v centre mesta tvoriť súčasnú a nadčasovú architektúru, ktorá je posudzovaná komisiou tvorenou kunsthistorikmi a ďalšími expertmi. V Senegale sme mali zadanie, ktoré nás obmedzovalo len na tri až štyri dostupné stavebné materiály. Najviac pôsobíme na Slovensku. Často si myslíme, že všetko dôverne poznáme, avšak mnohokrát nás čakajú rôznorodé prekvapenia.

Detail styku obvodovej steny a stropnej konštrukcie v úrovni podlahy
Detail styku obvodovej steny a stropnej konštrukcie v úrovni podlahyAutor: CAKOV + PARTNERS
Detail atiky
Detail atikyAutor: CAKOV + PARTNERS
Detail pri posuvnom paneli
Detail pri posuvnom paneliAutor: CAKOV + PARTNERS
Detail nárožia obvodovej steny
Detail nárožia obvodovej stenyAutor: CAKOV + PARTNERS

Dielo bolo publikované v aktuálnom čísle časopisu ARCHITECT+

Podklady: CAKOV + PARTNERS

Poloha diela

Ing. arch. Kalin Cakov
Ing. arch Ján Obušek
Ing. arch. Metodiy Monev

Súvisiace články

Vložené
18. marec 2019
0
2256
Hlavný obsahHlavný obsah
Čakajte prosím