Advertorial

Pozvánka na 2. ročník stavebného veľtrhu BigMarket na Slovensku

Na podujatí sa predstaví až 37 vystavovateľov - popredných dodávateľov stavebných materiálov a inovácií s prezentáciou...

Hotel Hirschen Spa House, Rakúsko

Novotvar v prostredí alpskej obce.

Vytvorte si kúpeľňu snov: dizajnové riešenie od značky hansgrohe

Hansgrohe - prémiová značka kúpeľňových riešení, ponúka nadčasový dizajn, technickú precíznosť a udržateľné inovácie...

Okná Internorm za minuloročné ceny + hliníkový kryt zdarma!

Využite špeciálnu akciu Internorm: okná za minuloročné ceny a hliníkový kryt úplne zadarmo. Ponuka je časovo obmedzená!

Moderné plynové technológie: Efektivita a inovácie pre 21. storočie

Sumarizácia najdôležitejších inovácií, ktoré redefinujúcich využitie tohto energetického zdroja.

Utesňovanie spodných stavieb pomocou hydro-aktívnej fólie AMPHIBIA.

AMPHIBIA 3000 GRIP 1.3 od spoločnosti ATRO predstavuje modernú hydroizolačnú technológiu, ktorá spája vysokú odolnosť,...

Dekarbonizácia individuálneho vykurovania domácností – Green Deal evolučne a nie revolučne

Ambiciózne plány EK narazili na ekonomické možnosti domácností v jednotlivých členských štátoch –...

Minimalistické dvere IDEA – technická precíznosť a čistota prevedenia

IDEA DOOR od spoločnosti JAP prináša do interiéru čistý minimalistický vzhľad vďaka bezrámovému riešeniu a precíznej...

Dom s výhľadom na údolie, Dlouhý Most (ČR)

Kontinuita riešenia od vonkajšieho obkladu až po kovania a kľučky.

Schell Vitus – osvedčené riešenie pre sprchy a umývadlá vo verejnom sektore s viac ako desaťročnou tradíciou

Nástenné nadomietkové armatúry Vitus sú mimoriadne vhodné pre rýchlu a efektívnu...

Kompozitné okná predstavujú súčasnosť a budúcnosť

Okenné profily z kompozitného materiálu RAU-FIPRO X od spoločnosti Rehau sú v porovnaní s tradičnými plastovými profilmi mnohonásobne...

Myotis - stoly 2025

Najnovší sortiment stolov pre zariadenie interiérov...

Priemyselné sklenené priečky Dorsis Digero: svetelné rozhranie pre moderné interiéry

Spojenie moderného dizajnu, funkčnosti a svetla do harmonického architektonického prvku.

Význam prirodzeného svetla pre moderné a flexibilné pracovné prostredie

Kancelárska budova Baumit v slovinskom Trzine prešla premenou na moderné a udržateľné pracovisko. Architekti kládli dôraz...

Konferencia Xella Dialóg predstaví novinky a trendy v stavebníctve

Mottom šiesteho ročníku on-line konferencie odborníkov Xella Dialóg je Efektívny návrh budov 2025+: zmeny a riešenia

Prístavba kancelárie, Vysoké Mýto

Rozšírenie projektovej kancelárie v hustej mestskej zástavbe.
Diela
Red 322.08.2021
12430+23
Prístavba kancelárie, Vysoké Mýto
Autori: Ing. arch. Martin Prokš, Ing. arch. Marek PřikrylSpolupráca: Lucie R.  Dřevíkovská (spolupráca na štúdii), Ing. František Denk (statika)Investor: MDS projektNávrh: 2017 - 2018Realizácia: 2018 - 2019Adresa: Försterova 175, Vysoké Mýto, SlovenskoPublikované: 22. august 2021

Realizácia sa dostala do užšieho výberu medzinárodnej poroty v rámci aktuálneho ročníka Českej ceny za architektúru.

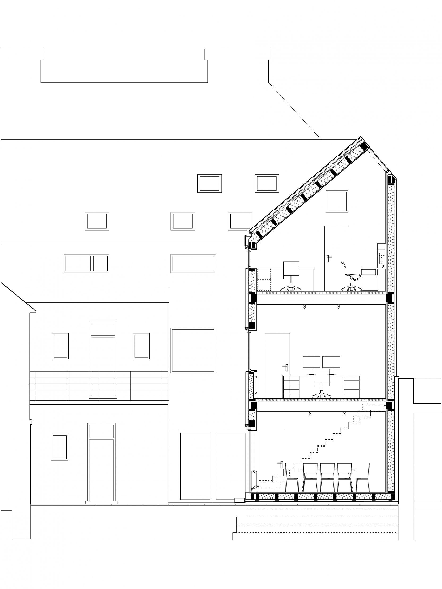
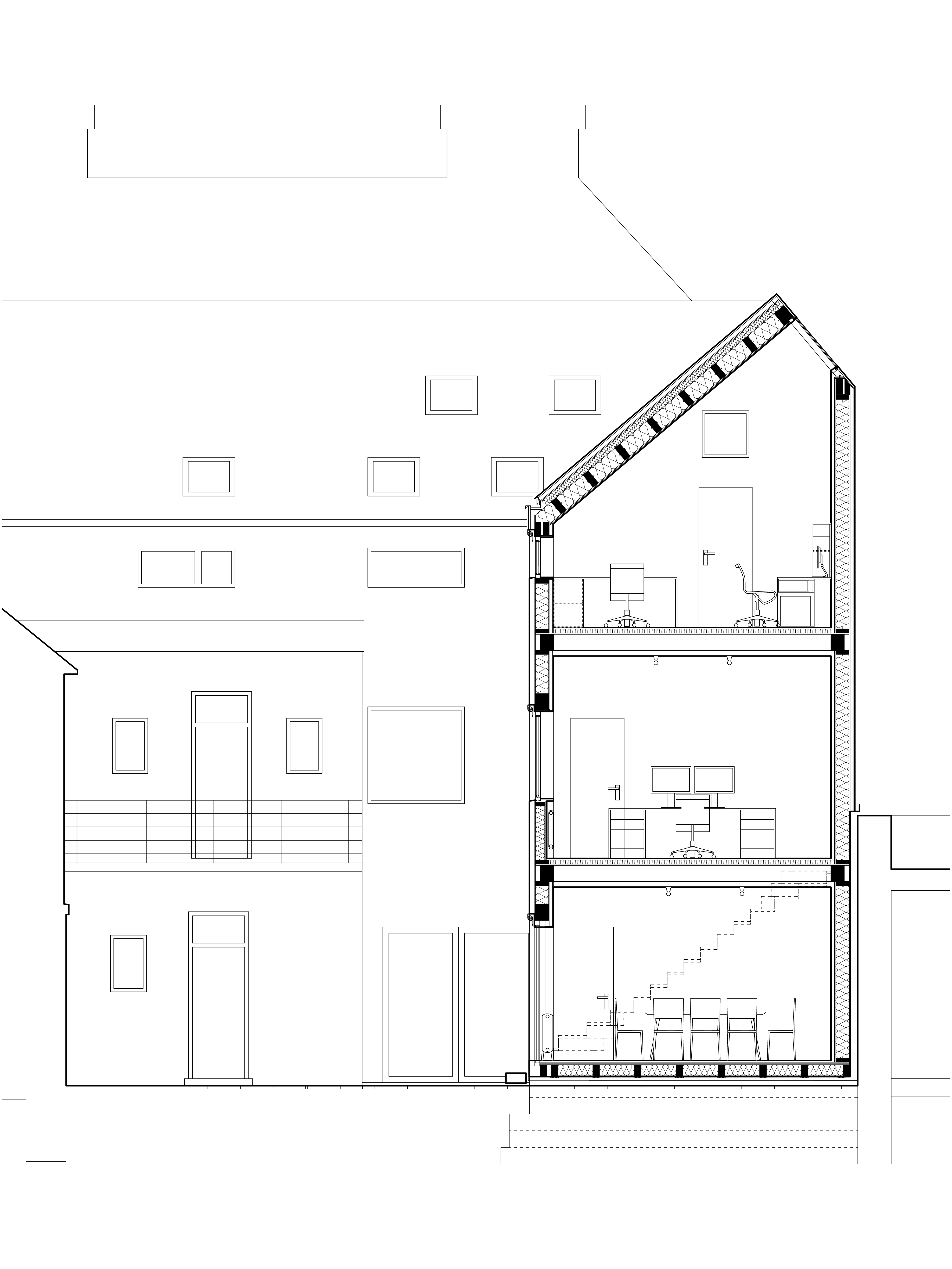
Prístavba, vo vnútrobloku za hlavným námestím, rozšírila priestory kancelárie so špecializáciou na projektovanie mostných konštrukcií a pozemných stavieb. Koncept štíhlej prístavby, s minimalizovaným pôdorysom, vychádza zo stiesnených podmienok medzi slepými múrmi susedných objektov. Prístavba, posunutá na severnú hranicu pozemku, netieni ani výrazne nenarúša úzky dvor. ”Reflexní fasáda z hliníku odráží pestrý svět zadních dvorků, ze kterého přístavba čerpá svůj tvar i charakter a kam zároveň svou siluetou a přítomností přispívá. Osazením v druhém plánu je však z pohledu chodce neviditelná,” vysvetľujú svoj zámer architekti.

Foto: Tomáš Rasl
Foto: Tomáš Rasl

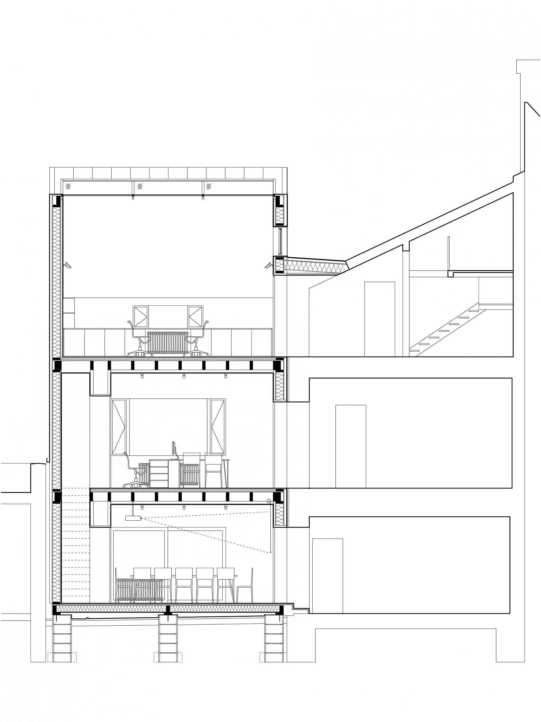
Z dôvodu obmedzeného prístupu na stavenisko, uskutočniteľnosti a rýchlosti výstavby zvolili autori ako konštrukčný systém ľahký drevený skelet. Prístavba s trámovými stropmi je založená na pásoch. Prevetrávaná falcovaná fasáda prebieha do strešnej roviny a nahrádza klasickú krytinu. 

Foto: Tomáš Rasl
Foto: Tomáš Rasl
Foto: Tomáš Rasl
Schwarzplan - širšie vzťahy
Schwarzplan - širšie vzťahyAutor: Prokš Přikryl architekti
Situácia
SituáciaAutor: Prokš Přikryl architekti

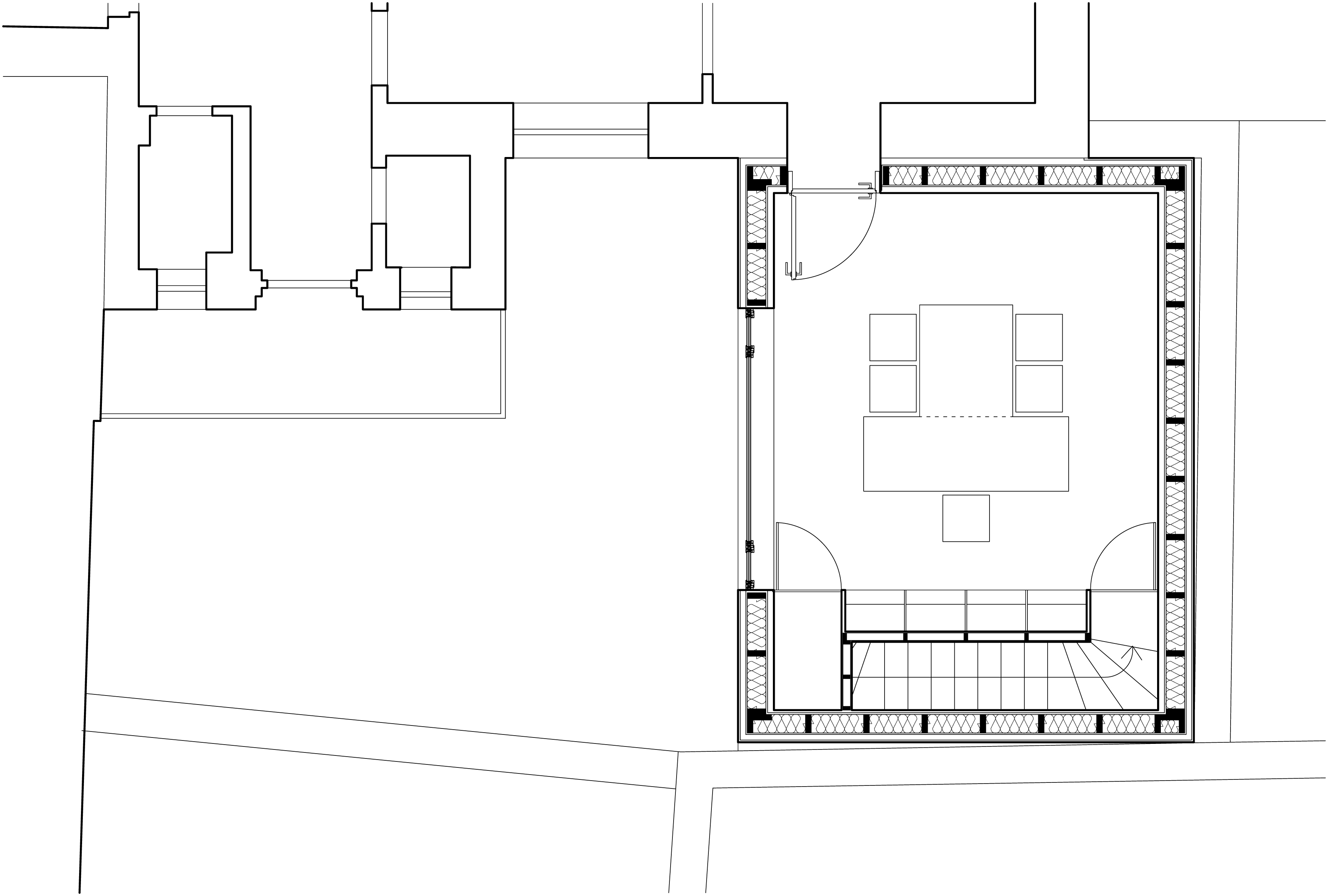
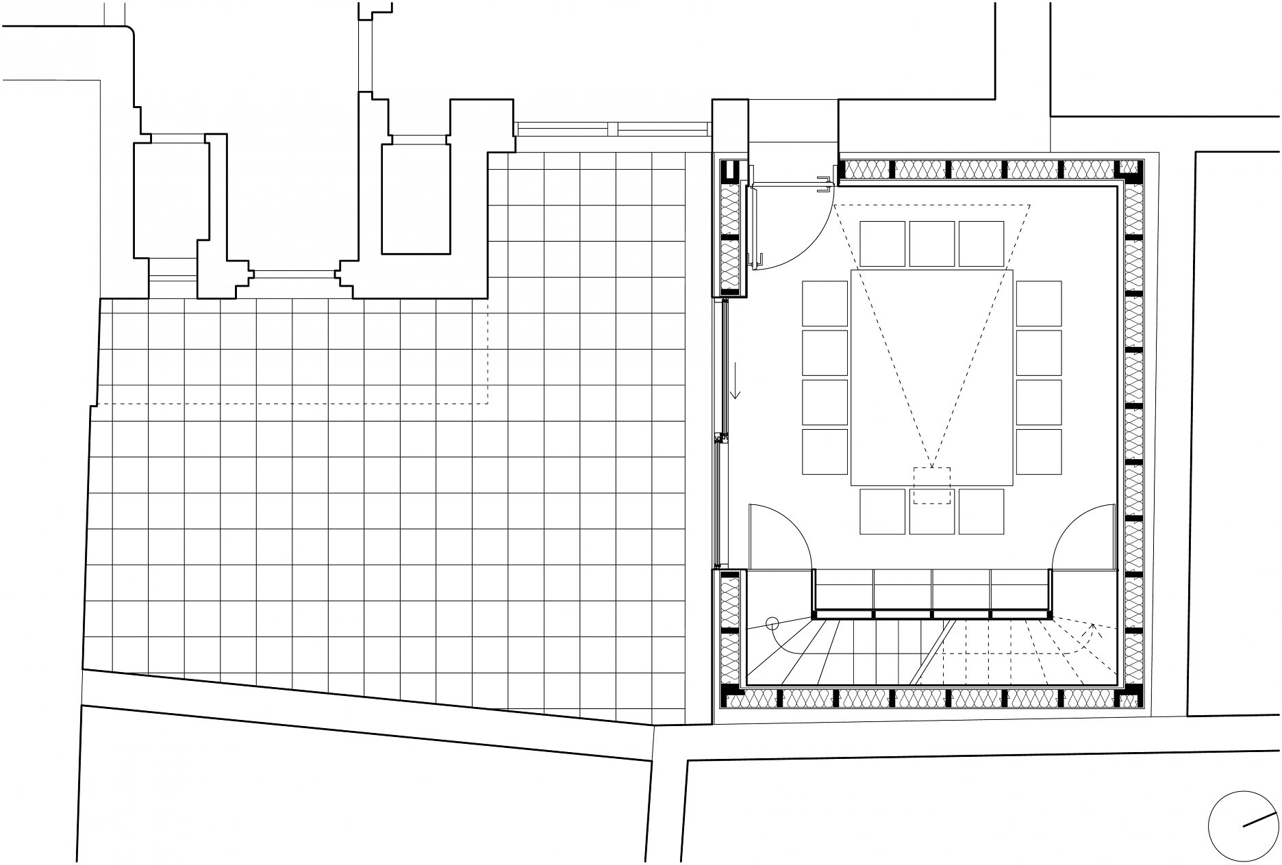
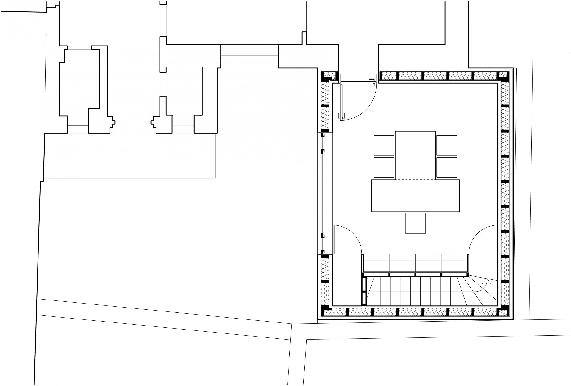
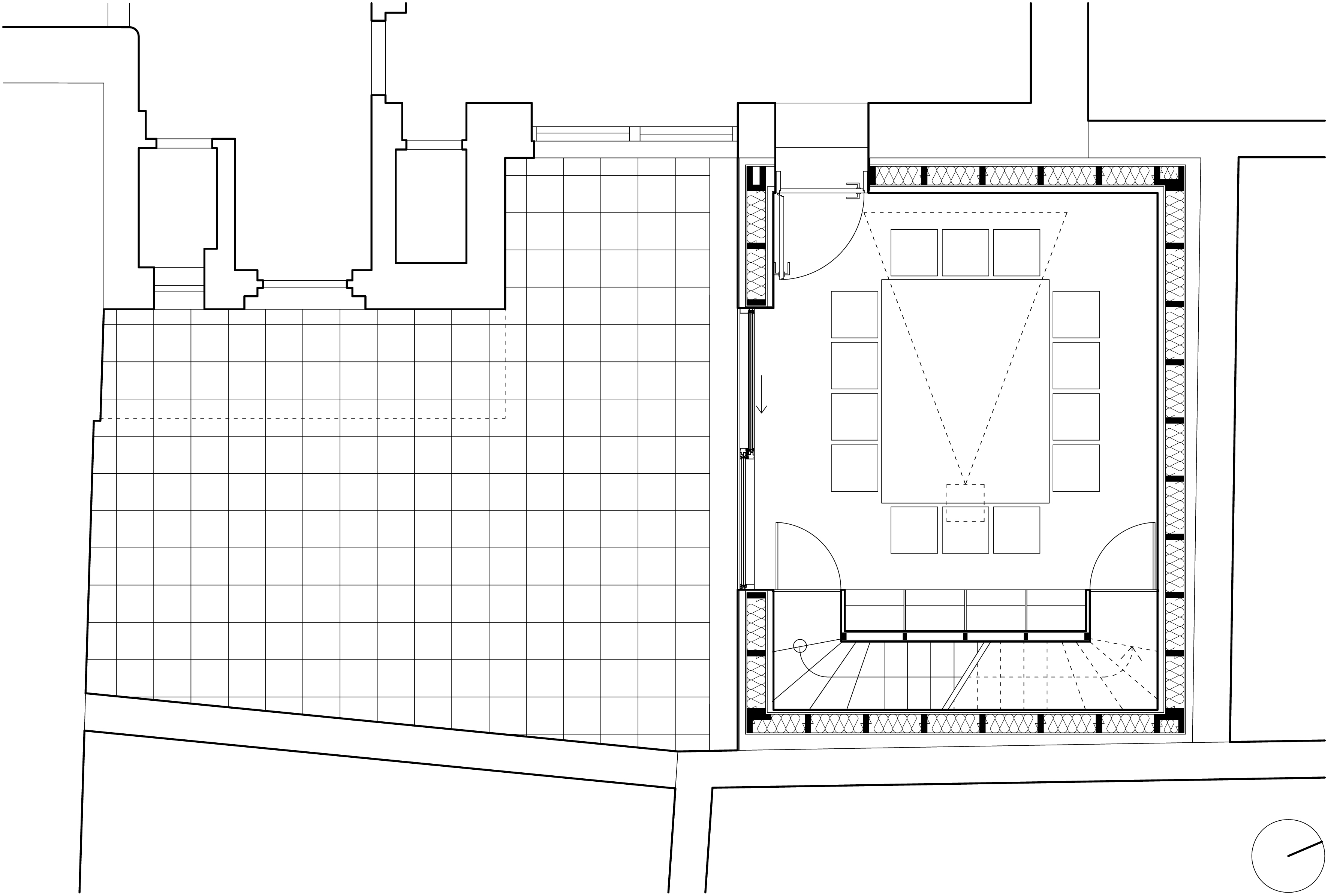
Dispozícia a priestorové riešenie

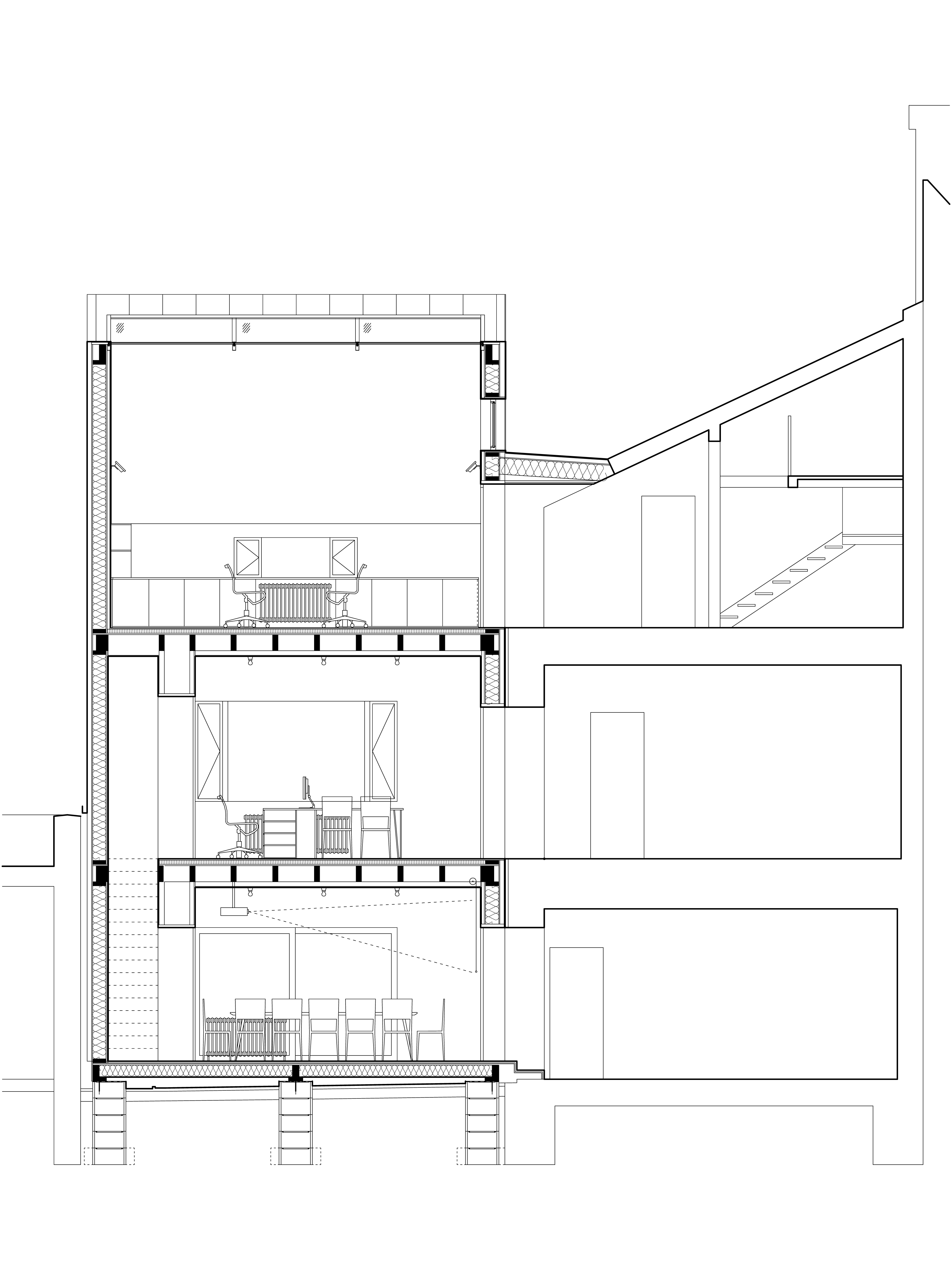
Rokovaciu miestnosť na prízemí, kanceláriu na poschodí a pracovisko v podkroví prepája skryté prevádzkové schodisko. Podkrovie ateliéru presvetľuje pásové strešné okno cez celú šírku miestnosti, ktoré vyvažuje minimalizované južné okno. 

Pôdorys 1. úrovne
Pôdorys 1. úrovneAutor: Prokš Přikryl architekti
Pôdorys 2. úrovne
Pôdorys 2. úrovneAutor: Prokš Přikryl architekti
Pôdorys 3. úrovne
Pôdorys 3. úrovneAutor: Prokš Přikryl architekti
Pôdorys strechy
Pôdorys strechyAutor: Prokš Přikryl architekti

Základné technické údaje:

Rozmery stavby: výška 11,85 m, šírka 6,25 m, hĺbka 4,9 m.

Fasáda - skladba obvodovej steny s prevetrávanou fasádou a požiarnou odolnosťou REI 45:

  • falcovaná fasáda z prírodného hliníka 
  • celoplošné podbitie z OSB dosiek, hrúbky 22 mm 
  • latovanie - 40/60 / prevetrávaná medzera - 60 mm 
  • difúzne otvorená DHF doska hrúbky 15 mm 
  • nosná konštrukcia z KVH profilov 60/200 mm 
  • tepelná izolácia - sklená vata 2x100 mm 
  • OSB III, 18 mm, s celoplošne lepenými spojmi 
  • SDK protipožiarna doska, hrúbky 12,5 mm 

Rozšírený variant na 1. NP: 

totožná skladba +

  • inštalačná predstena 40 mm, lata 40/60 
  • pohľadová vrstva z preglejky hr. 15 mm (v 2. a 3. NP je výmaľba)  
Priečny rez
Priečny rezAutor: Prokš Přikryl architekti
Pozdĺžny rez
Pozdĺžny rezAutor: Prokš Přikryl architekti
Južný pohľad
Južný pohľadAutor: Prokš Přikryl architekti
Východný pohľad
Východný pohľadAutor: Prokš Přikryl architekti
Severný pohľad
Severný pohľadAutor: Prokš Přikryl architekti
Západný pohľad
Západný pohľadAutor: Prokš Přikryl architekti
Model
ModelAutor: Prokš Přikryl architekti
Model
ModelAutor: Prokš Přikryl architekti
Model
ModelAutor: Prokš Přikryl architekti
Foto: Tomáš Rasl
Foto: Tomáš Rasl
Foto: Tomáš Rasl
Foto: Tomáš Rasl
Foto: Tomáš Rasl
Foto: Tomáš Rasl

V kontraste k lesklej hliníkovej fasáde zvolili architekti ako dominantný materiál v interiéri prírodné drevo. Úpravy v rámci existujúceho objektu zahŕňali najmä prepojenie s prístavbou na všetkých poschodiach a obnovu technického zariadenia. 

Foto: Tomáš Rasl
Foto: Tomáš Rasl
Foto: Tomáš Rasl
Foto: Tomáš Rasl
Foto: Tomáš Rasl

Hliníkový plech bez povrchovej úpravy zvolili architekti ako vonkajšiu pohľadovú vrstvu z viacerých dôvodov. Bolo nutné vybrať nehorľavý materiál, v súlade s celkovou koncepciou suchej výstavby nadzemnej časti. Materiál musel byť zároveň využiteľný ako strešná krytina pre jednotný výraz domu. “Nakonec rozhodlo hledisko architektonické – volbou reflexního, plechového pláště dům odráží živý svět okolo sebe a mění se v průběhu dne. Toho dosáhne nejlépe hliník ve své přírodní podobě, bez povrchových úprav,” dopĺňajú autori.

Foto: Tomáš Rasl

Poloha diela

Ing. arch. Martin Prokš
Ing. arch. Marek Přikryl

Súvisiace články

Ing. arch. Martin ProkšCZJanáčkovo nábřeží 85/5 150 00 Praha 5
Vložené
18. august 2021
0
1243
Hlavný obsahHlavný obsah
Čakajte prosím