Advertorial

Vytvorte si kúpeľňu snov: dizajnové riešenie od značky hansgrohe

Hansgrohe - prémiová značka kúpeľňových riešení, ponúka nadčasový dizajn, technickú precíznosť a udržateľné inovácie...

Okná Internorm za minuloročné ceny + hliníkový kryt zdarma!

Využite špeciálnu akciu Internorm: okná za minuloročné ceny a hliníkový kryt úplne zadarmo. Ponuka je časovo obmedzená!

Pozvánka na 2. ročník stavebného veľtrhu BigMarket na Slovensku

Na podujatí sa predstaví až 37 vystavovateľov - popredných dodávateľov stavebných materiálov a inovácií s prezentáciou...

Moderné plynové technológie: Efektivita a inovácie pre 21. storočie

Sumarizácia najdôležitejších inovácií, ktoré redefinujúcich využitie tohto energetického zdroja.

Utesňovanie spodných stavieb pomocou hydro-aktívnej fólie AMPHIBIA.

AMPHIBIA 3000 GRIP 1.3 od spoločnosti ATRO predstavuje modernú hydroizolačnú technológiu, ktorá spája vysokú odolnosť,...

Dekarbonizácia individuálneho vykurovania domácností – Green Deal evolučne a nie revolučne

Ambiciózne plány EK narazili na ekonomické možnosti domácností v jednotlivých členských štátoch –...

Minimalistické dvere IDEA – technická precíznosť a čistota prevedenia

IDEA DOOR od spoločnosti JAP prináša do interiéru čistý minimalistický vzhľad vďaka bezrámovému riešeniu a precíznej...

Dom s výhľadom na údolie, Dlouhý Most (ČR)

Kontinuita riešenia od vonkajšieho obkladu až po kovania a kľučky.

Schell Vitus – osvedčené riešenie pre sprchy a umývadlá vo verejnom sektore s viac ako desaťročnou tradíciou

Nástenné nadomietkové armatúry Vitus sú mimoriadne vhodné pre rýchlu a efektívnu...

Kompozitné okná predstavujú súčasnosť a budúcnosť

Okenné profily z kompozitného materiálu RAU-FIPRO X od spoločnosti Rehau sú v porovnaní s tradičnými plastovými profilmi mnohonásobne...

Myotis - stoly 2025

Najnovší sortiment stolov pre zariadenie interiérov...

Priemyselné sklenené priečky Dorsis Digero: svetelné rozhranie pre moderné interiéry

Spojenie moderného dizajnu, funkčnosti a svetla do harmonického architektonického prvku.

Význam prirodzeného svetla pre moderné a flexibilné pracovné prostredie

Kancelárska budova Baumit v slovinskom Trzine prešla premenou na moderné a udržateľné pracovisko. Architekti kládli dôraz...

Konferencia Xella Dialóg predstaví novinky a trendy v stavebníctve

Mottom šiesteho ročníku on-line konferencie odborníkov Xella Dialóg je Efektívny návrh budov 2025+: zmeny a riešenia

Murovací robot WLTR stavia svoj prvý dom na Slovensku

Robot WLTR predstavuje moderný prístup k murovaným konštrukciám. Vďaka automatizácii dokáže rýchlo, presne a bezpečne realizovať...

Štyri domy v jednom, Brno

Súbor viladomov v starej brnianskej rezidenčnej štvrti.
Diela
Red 329.07.2021
14740+23
Štyri domy v jednom, Brno
Autori: Ing. arch Tomáš Pilař, Akad. arch. Ladislav Kuba, Wojciech Wilczek, Ing. arch. Jan Kopecký, Ing. arch. Martin HlavaPlocha pozemku: 4036 m2Zastavaná plocha: 3322 m2Podlažná plocha: 3316 m2Obostavaný objem: 23 066 m3Návrh: 2015 - 2018Realizácia: 2018 - 2020Adresa: Neumannova 578/17, Brno , Česká republikaPublikované: 29. júl 2021

Ortogonálny raster objektov, postavených na podnoži spoločných garáží. Zadanie v podobe obytného súboru na komplikovanej svahovitej parcele sa podarilo autorom z ateliéru Kuba & Pilař architekti  pretaviť do efektívnej a racionálnej podoby s prehľadným prevádzkovým usporiadaním. Otvorená a zároveň artikulovaná krajina obytného prostredia vytvára priestor s dobre diferencovanou mierou súkromia. Materiálovo zjednotené riešenie exteriéru necháva vyniknúť elementárnu hmotovú a priestorovú skladbu objektov. Ako sme pri realizáciách brnianskeho ateliéru zvyknutí, primeraná pozornosť bola venovaná aj riešeniu detailov.

Foto: BoysPlayNice
Foto: BoysPlayNice
Foto: BoysPlayNice

Súbor sa nachádza v pokojnej rezidenčnej Masarykovej štvrti, plnej predvojnovej funkcionalistickej architektúry. 

“Hmotové a prostorové řešení vychází z charakteru a proporcí nejbližší zástavby. Kompozičně je tvořená čtyřmi různě velikými kvádry – viladomy – které vystupují nad terén ze společné podzemní podnože. Soubor staveb tak přirozeně zapadá do svého okolí,” vysvetľujú architekti.

Juhozápadná orientácia svahovitého pozemku a atraktívny priehľad cez areál Brnianskeho výstaviska na Kohoutovické lesy podmienili otvorenie obytného súboru týmto smerom. Viladomy klesajú pozdĺž svahu, ich výška sa znižuje smerom k južnému cípu parcely. Dvojica viladomov, pozdĺž Neumannovej ulice, má štyri nadzemné podlažia a jedno podzemné, ktoré prepája schodisková hala s výťahmi. Dva spodné Viladomy majú tri, respektíve dve nadzemné podlažia. Svojim objemom nadväzujú na menšiu mierku víl, susediacich s pozemkom na spodnej strane. 

Medzi chodníkom ulice Neumannova a hornými Viladomami je navrhnutý intímny pobytový priestor so sedením. Strechu spoločných garáží, v priestore medzi jednotlivými viladomami, využívajú predzáhradky bytov. Oddelené sú nízkymi živými plotmi - gabionovými košmi s vysadenými hrabmi. 

Prevládajúce monolitické nosné konštrukcie dopĺňajú murované prvky. Štruktúrované fasády s keramickým obkladom kontrastujú s hladkými hliníkovými panelmi tienenia. Odolnosť povrchov spoločných priestorov, schodísk a zádveria vstupov zabezpečuje liate terazzo. Na stropoch, schodiskách a výťahových šachtách je priznaný pohľadový betón. Jednotiacim prvkom celej stavby je koncepcia zelene, ktorá sa časom stane výrazným prvkom projektu.

Situácia
SituáciaAutor: Kuba & Pilař architekti
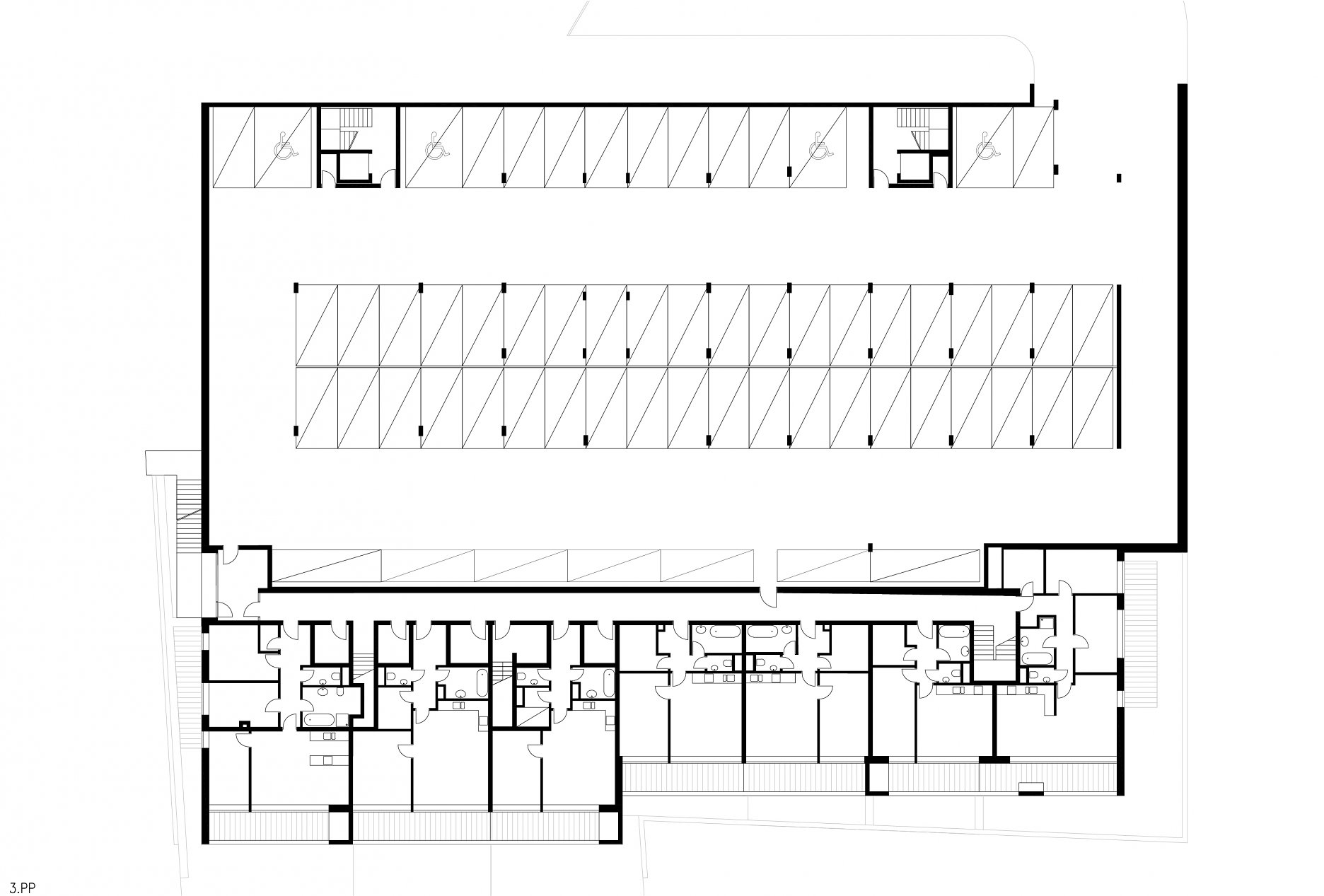
Pôdorys 3. PP
Pôdorys 3. PPAutor: Kuba & Pilař architekti
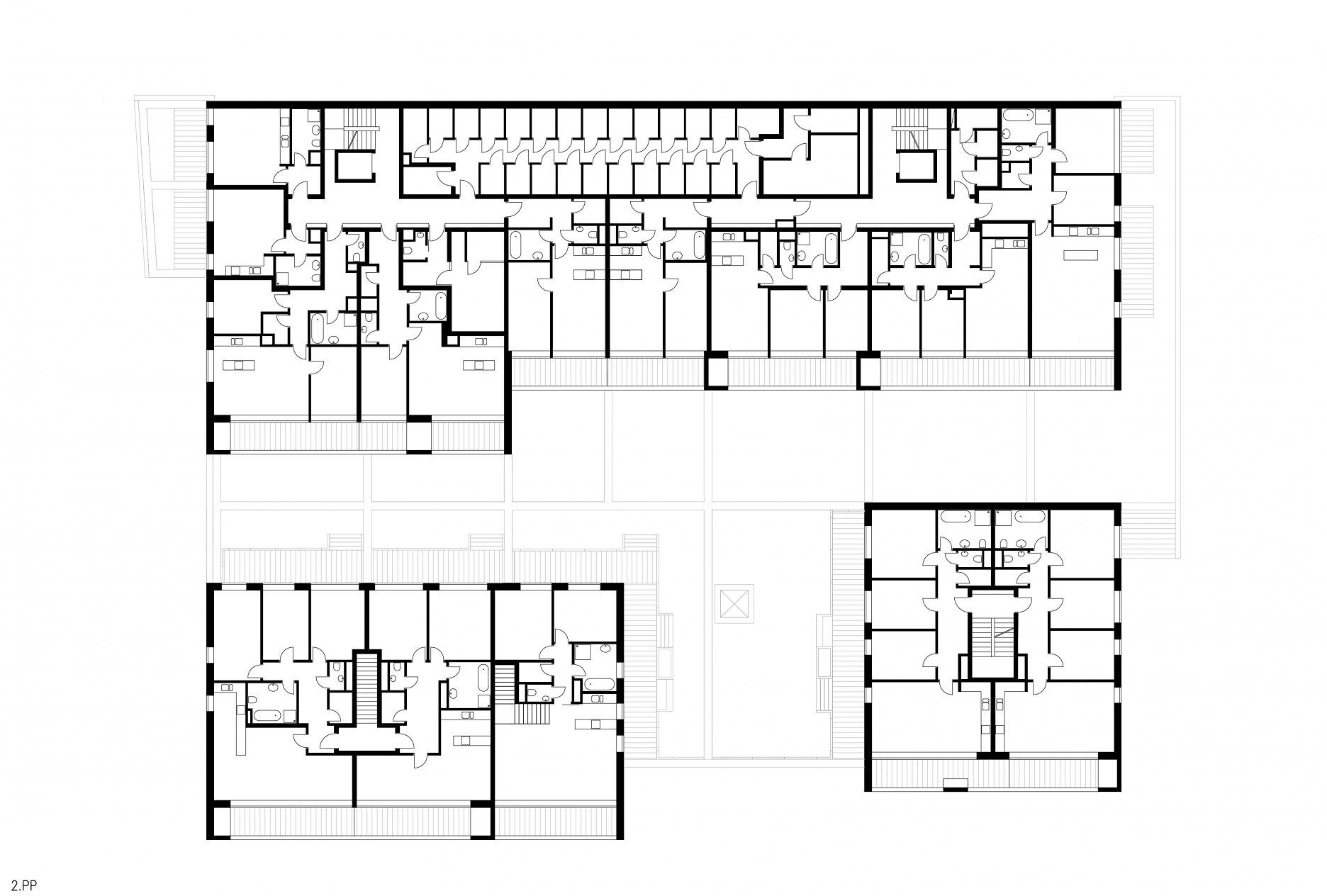
Pôdorys 2. PP
Pôdorys 2. PPAutor: Kuba & Pilař architekti
Pôdorys 1. PP
Pôdorys 1. PPAutor: Kuba & Pilař architekti
Pôdorys 2. NP
Pôdorys 2. NPAutor: Kuba & Pilař architekti
Rez
RezAutor: Kuba & Pilař architekti
Severozápadný pohľad
Severozápadný pohľadAutor: Kuba & Pilař architekti
Juhozápadný pohľad
Juhozápadný pohľadAutor: Kuba & Pilař architekti
Foto: BoysPlayNice
Foto: BoysPlayNice
Foto: BoysPlayNice
Foto: BoysPlayNice
Foto: BoysPlayNice
Foto: BoysPlayNice
Foto: BoysPlayNice
Foto: BoysPlayNice
Foto: BoysPlayNice
Foto: BoysPlayNice
Foto: BoysPlayNice
Foto: BoysPlayNice
Foto: BoysPlayNice
Foto: BoysPlayNice
Foto: BoysPlayNice
Foto: BoysPlayNice
Foto: BoysPlayNice
Foto: BoysPlayNice
Foto: BoysPlayNice
Foto: BoysPlayNice
Foto: BoysPlayNice
Foto: BoysPlayNice
Foto: BoysPlayNice
Foto: BoysPlayNice
Foto: BoysPlayNice
Foto: BoysPlayNice
Foto: BoysPlayNice
Foto: BoysPlayNice

Podklady: Kuba & Pilař architekti

Použité materiály a riešenia: 

  • zasklenie svetlíkov - systém fasáda: Schüco FWS 50
  • hliníkové okná: Schüco AWS 70 HI, ADS 80 a FR30

 

Poloha diela

Ing. arch Tomáš Pilař
Akad. arch. Ladislav Kuba
Wojciech Wilczek
Ing. arch. Jan Kopecký
Ing. arch. Martin Hlava

Súvisiace články

Vložené
29. júl 2021
0
1474
Hlavný obsahHlavný obsah
Čakajte prosím