Advertorial

95 rokov Internorm: 30 miliónov okien a dverí z Rakúska

Európska značka okien oslavuje jubileum: za 95 rokov sa vyvinula na najväčšiu medzinárodne pôsobiacu okennú značku a inovačného...

Pozvánka na 2. ročník stavebného veľtrhu BigMarket na Slovensku

Na podujatí sa predstaví až 37 vystavovateľov - popredných dodávateľov stavebných materiálov a inovácií s prezentáciou...

Hotel Hirschen Spa House, Rakúsko

Novotvar v prostredí alpskej obce.

Vytvorte si kúpeľňu snov: dizajnové riešenie od značky hansgrohe

Hansgrohe - prémiová značka kúpeľňových riešení, ponúka nadčasový dizajn, technickú precíznosť a udržateľné inovácie...

Okná Internorm za minuloročné ceny + hliníkový kryt zdarma!

Využite špeciálnu akciu Internorm: okná za minuloročné ceny a hliníkový kryt úplne zadarmo. Ponuka je časovo obmedzená!

Moderné plynové technológie: Efektivita a inovácie pre 21. storočie

Sumarizácia najdôležitejších inovácií, ktoré redefinujúcich využitie tohto energetického zdroja.

Utesňovanie spodných stavieb pomocou hydro-aktívnej fólie AMPHIBIA.

AMPHIBIA 3000 GRIP 1.3 od spoločnosti ATRO predstavuje modernú hydroizolačnú technológiu, ktorá spája vysokú odolnosť,...

Dekarbonizácia individuálneho vykurovania domácností – Green Deal evolučne a nie revolučne

Ambiciózne plány EK narazili na ekonomické možnosti domácností v jednotlivých členských štátoch –...

Minimalistické dvere IDEA – technická precíznosť a čistota prevedenia

IDEA DOOR od spoločnosti JAP prináša do interiéru čistý minimalistický vzhľad vďaka bezrámovému riešeniu a precíznej...

Dom s výhľadom na údolie, Dlouhý Most (ČR)

Kontinuita riešenia od vonkajšieho obkladu až po kovania a kľučky.

Schell Vitus – osvedčené riešenie pre sprchy a umývadlá vo verejnom sektore s viac ako desaťročnou tradíciou

Nástenné nadomietkové armatúry Vitus sú mimoriadne vhodné pre rýchlu a efektívnu...

Kompozitné okná predstavujú súčasnosť a budúcnosť

Okenné profily z kompozitného materiálu RAU-FIPRO X od spoločnosti Rehau sú v porovnaní s tradičnými plastovými profilmi mnohonásobne...

Myotis - stoly 2025

Najnovší sortiment stolov pre zariadenie interiérov...

Priemyselné sklenené priečky Dorsis Digero: svetelné rozhranie pre moderné interiéry

Spojenie moderného dizajnu, funkčnosti a svetla do harmonického architektonického prvku.

Význam prirodzeného svetla pre moderné a flexibilné pracovné prostredie

Kancelárska budova Baumit v slovinskom Trzine prešla premenou na moderné a udržateľné pracovisko. Architekti kládli dôraz...

Little Koliba, Bratislava - Vinohrady

Dva domy vo svahu nad mestom.
Diela
Red 315.06.2024
12510+52
Little Koliba, Bratislava - Vinohrady
Autori: Ing. arch. Michal Bielik, Ing. arch. Miloš Hájnik, Ing. arch. Antónia Rebjaková, Ing. arch. Ľubomír ZávodnýInvestor: HS Koliba, s.r.o.Plocha pozemku: 1 155m2Zastavaná plocha: 2 x 115m2Podlažná plocha: 9 775mNávrh: 2018 - 2018Realizácia: 2019 - 2020Adresa: Tupého / Frankovská , Bratislava, SlovenskoPublikované: 15. jún 2024

Komfortné mestské bývanie. Racionálnu formu a priestorové riešenie reflektuje aj výsledná architektúra, s využitím decentnej farebnej a materiálovej škály.

Menší rezidenčný projekt vznikol v svahovitm teréne lokality Vtáčnik. Rýchlo sa meniace prostredie bývalých vinohradov nad mestskými časťami Nové Mesto a Rača zahusťuje zástavba bytových domov, radoviek aj samostetne stojacich mestských víl. Práve medzi ne patrí aj dvojica domov z dielne ateliéru Ľubomíra Závodného

Objekty, v pomerne strmom južnom svahu nad projektom Roličky, majú v zmysle regulatívov dve nadzemné podlažia, ktoré dopĺňa najvyššie ustúpené poschodie s rozmernými strešnými terasami. Na najnižšej úrovni sa nachádza spoločné parkovanie pre majiteľov bytov.  

Každý z domov zastrešuje tri bytové jednotky s balkónom, terasou alebo predzáhradkou, ktoré prebiehajú po celej šírke stavby, rovnako ako presklené priečelia. Predsadená figúra schodiska zabezpečuje samostatný prístup do každej z obytných jednotiek. 

Autori spracovali pre klienta aj zastavovací plán celého sektoru v zmysle ÚPN.

Foto: Ľubo Stacho
Foto: Ľubo Stacho
Foto: Ľubo Stacho
Foto: Ľubo Stacho
Foto: Ľubo Stacho
Foto: Ľubo Stacho
Foto: Ľubo Stacho
Situácia
SituáciaAutor: Architektonická kancelária Ľubomír Závodný
Schéma
SchémaAutor: Architektonická kancelária Ľubomír Závodný
Pôdorys 1. PP + 1. NP
Pôdorys 1. PP + 1. NPAutor: Architektonická kancelária Ľubomír Závodný
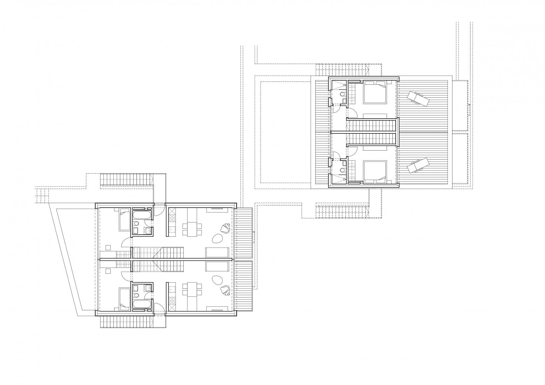
Pôdorys 1. NP + 2. NP
Pôdorys 1. NP + 2. NPAutor: Architektonická kancelária Ľubomír Závodný
Pôdorys 2. NP + 3. NP
Pôdorys 2. NP + 3. NPAutor: Architektonická kancelária Ľubomír Závodný
Rez
RezAutor: Architektonická kancelária Ľubomír Závodný
Pohľad
PohľadAutor: Architektonická kancelária Ľubomír Závodný
Pohľad
PohľadAutor: Architektonická kancelária Ľubomír Závodný

Základné bilančné údaje:

  • Plocha pozemku: 1 155m2
  • Zastavaná plocha novým objektom: 2 x 115m2
  • Podlažná plocha celkom: 9 775m2
  • Podlažná plocha nadzemných podlaží: 8 793m2
  • Úžitková plocha celkom: 2 x 313,2m2
  • Plocha balkónov a terasy: 219,8 m2
  • Počet bytov: 2 x 3
  • Obostavaný objem: 2 516,8 m3
  • Počet parkovacích miest: 8 miest

 

Podklady: Architektonická kancelária Ľubomír Závodný
Fotografie: Ľubo Stacho

Poloha diela

Ing. arch. Michal Bielik
Ing. arch. Miloš Hájnik
Ing. arch. Antónia Rebjaková
Ing. arch. Ľubomír Závodný
Vložené
28. máj 2024
0
1251
Hlavný obsahHlavný obsah
Čakajte prosím