Hansgrohe - prémiová značka kúpeľňových riešení, ponúka nadčasový dizajn, technickú precíznosť a udržateľné inovácie...
Využite špeciálnu akciu Internorm: okná za minuloročné ceny a hliníkový kryt úplne zadarmo. Ponuka je časovo obmedzená!
Na podujatí sa predstaví až 37 vystavovateľov - popredných dodávateľov stavebných materiálov a inovácií s prezentáciou...
Sumarizácia najdôležitejších inovácií, ktoré redefinujúcich využitie tohto energetického zdroja.
AMPHIBIA 3000 GRIP 1.3 od spoločnosti ATRO predstavuje modernú hydroizolačnú technológiu, ktorá spája vysokú odolnosť,...
Ambiciózne plány EK narazili na ekonomické možnosti domácností v jednotlivých členských štátoch –...
IDEA DOOR od spoločnosti JAP prináša do interiéru čistý minimalistický vzhľad vďaka bezrámovému riešeniu a precíznej...
Kontinuita riešenia od vonkajšieho obkladu až po kovania a kľučky.
Nástenné nadomietkové armatúry Vitus sú mimoriadne vhodné pre rýchlu a efektívnu...
Okenné profily z kompozitného materiálu RAU-FIPRO X od spoločnosti Rehau sú v porovnaní s tradičnými plastovými profilmi mnohonásobne...
Najnovší sortiment stolov pre zariadenie interiérov...
Spojenie moderného dizajnu, funkčnosti a svetla do harmonického architektonického prvku.
Kancelárska budova Baumit v slovinskom Trzine prešla premenou na moderné a udržateľné pracovisko. Architekti kládli dôraz...
Mottom šiesteho ročníku on-line konferencie odborníkov Xella Dialóg je Efektívny návrh budov 2025+: zmeny a riešenia
Robot WLTR predstavuje moderný prístup k murovaným konštrukciám. Vďaka automatizácii dokáže rýchlo, presne a bezpečne realizovať...

Rodinný dom v Nitrianskych Hrnčiarovciach z dielne ateliéru Juraja Tesáka vyrástol na pozemku s vinohradom, ktorý sa stal hlavným motívom návrhu.
Architektúra reaguje na mierne svahovitý terén a orientuje výhľady z domu na vinice. Dom má tri podlažia – dve nadzemné a jedno podzemné s vínnou pivnicou a letnou kuchyňou. Stĺporadie terás odkazuje na tradičné gánky a prepája dom s vinohradom a záhradou. Materiálová paleta je naturálna, s dôrazom na jednoduchosť a nadčasovosť. Dom spája rodinnú pamäť s krajinou.
Okolitá zástavba rodinných domov založila uličnú čiaru, ktorej sa dom prispôsobil. Reliéf svahovitého pozemku využíva vo svoj prospech. Zo západnej strany je zapustený do terénu, pričom hlavným vstupom z ulice vchádzame do prvého nadzemného podlažia.
Z východnej strany sa dom otvára do záhrady s vinicami a ponúka vstup do vínnej pivnice. Dôležitými vonkajšími priestormi sú obytné terasy.
Prestrešenie terás zabezpečuje tieň a súkromie pre interiérové miestnosti. Mohutné stĺpy, prechádzajúce dvoma podlažiami, vnášajú do kompozície motív tradičných gánkov.
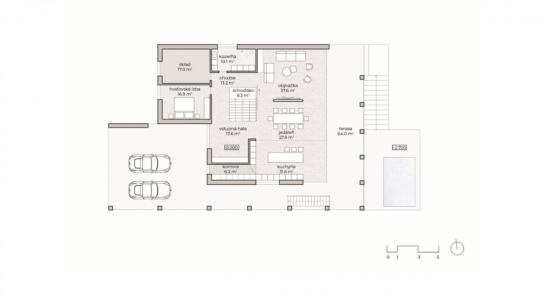
Pôdorys 1. nadzemného podlažia
Stvárnenie prvého nadzemného podlažia kladie dôraz na vzájomné prepojenie interiéru a exteriéru.
Prestrešené terasy plynulo prechádzajú popred hlavný vstup až ku carportu pre dve autá. Pri vstupe do priestrannej haly sa návštevníkovi otvára priehľad cez jedáleň až do záhrady.
Spoločenské priestory — obývačka, kuchyňa a jedáleň — sú orientované na východ a vizuálne prepojené so záhradou.
Na tomto podlaží sa nachádza aj hosťovská izba, diskrétne umiestnená za voľne stojacim schodiskom. V prípade potreby možno spoločenské miestnosti oddeliť od zvyšku domu posuvnou stenou.
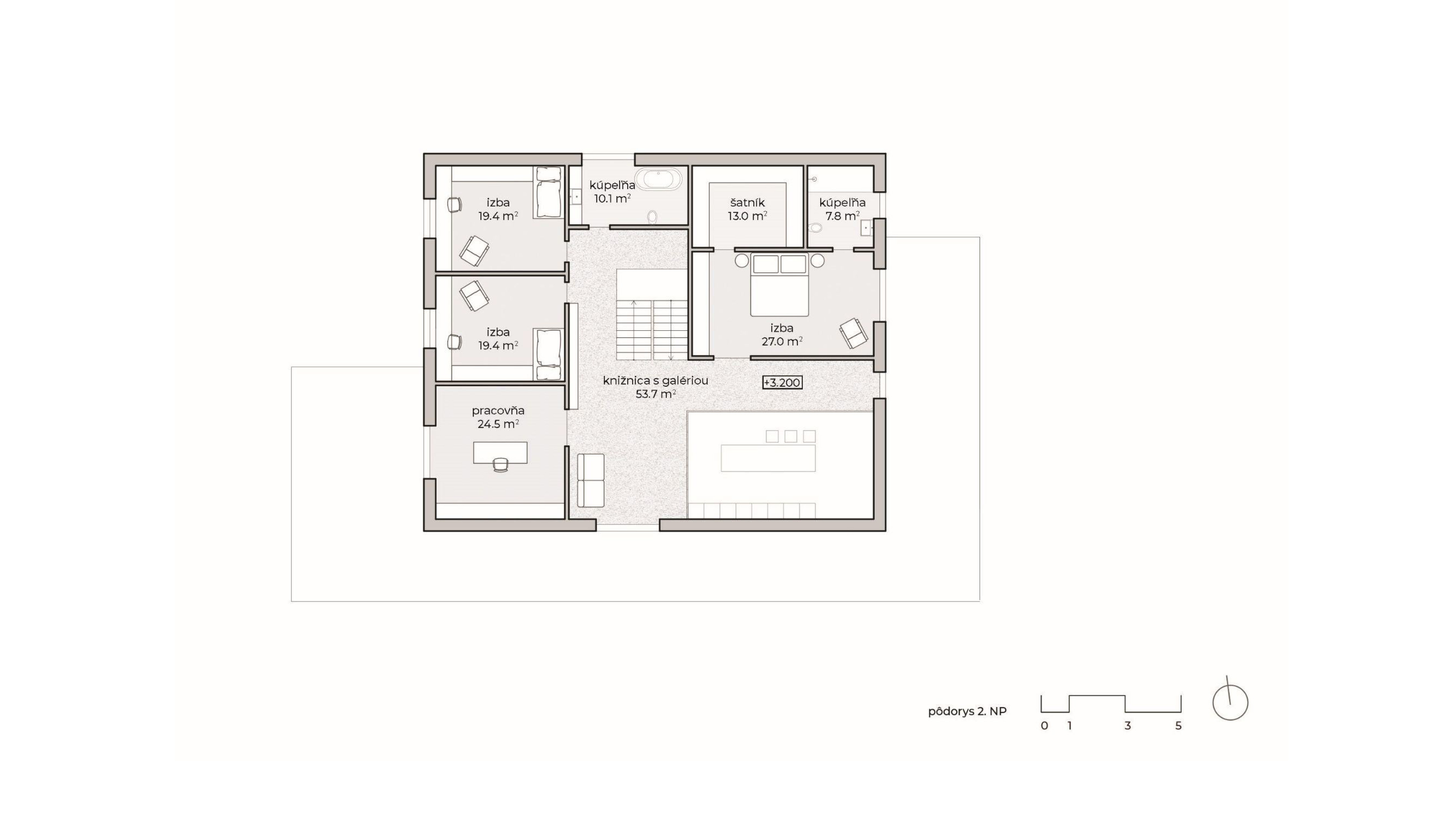
Pôdorys 2. nadzemného podlažia
Druhé nadzemné podlažie tvorí nočnú zónu domu. Rodičovská spálňa orientovaná na východ ponúka výhľad do záhrady a disponuje vlastnou kúpeľňou a šatníkom.
Detské izby spolu s pracovňou sú orientované na západ, vďaka čomu zachytávajú popoludňajšie slnko a ponúkajú výhľad do ulice.
Centrálnym spoločenským prvkom podlažia je knižnica s galériou, ktorá prepája obe podlažia a zároveň vnáša do priestoru jedinečnú atmosféru.
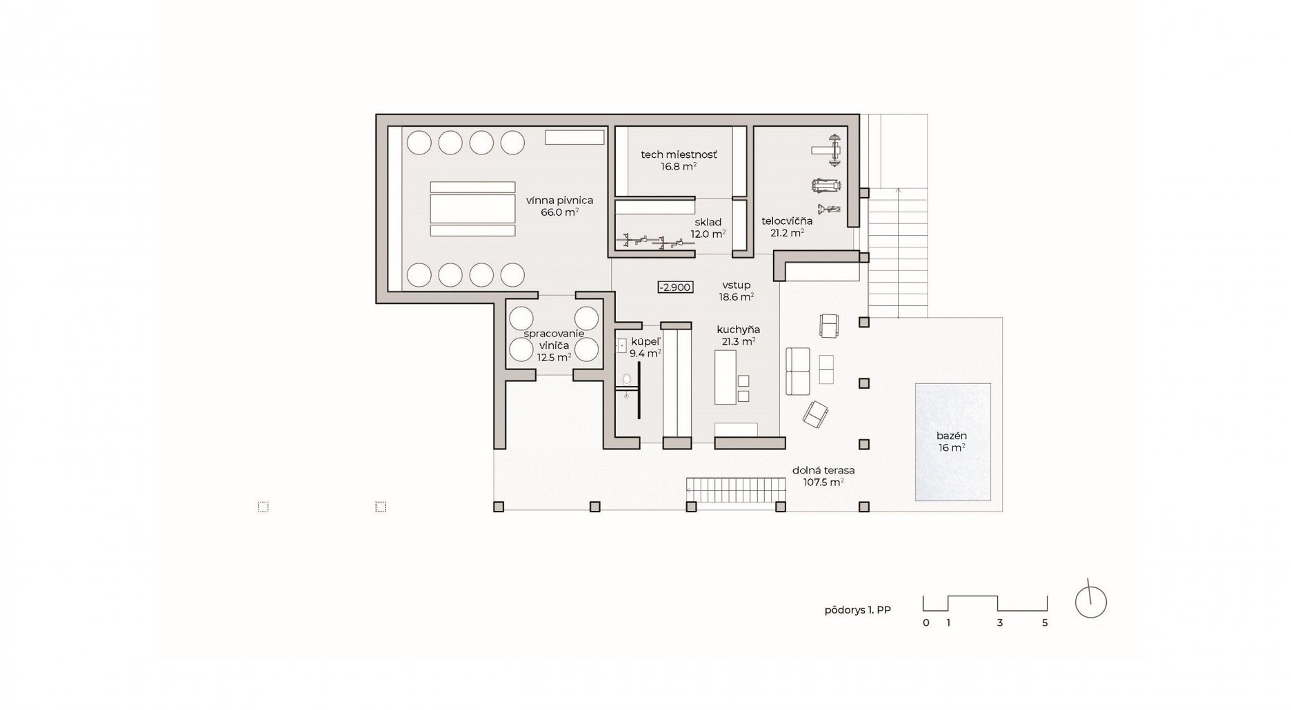
Pôdorys 1. podzemného podlažia
Podzemné podlažie je z väčšej časti zapustené do terénu. Z južnej a východnej strany je priamo prístupné zo záhrady. Nachádza sa tu krytá pobytová terasa, prepojená s vonkajším bazénom. Vďaka veľkorysému preskleniu je letná kuchyňa prirodzene otvorená do exteriéru a stáva sa jeho organickým pokračovaním.
Dominantou podlažia je vínna pivnica, ktorá nadväzuje na miestnosť určenú na dozrievanie muštu. Táto časť je prístupná aj zvonka, kde sa nachádza pracovný priestor určený na spracovanie hrozna a mäsa.
Medzi technickým traktom a kuchyňou je situovaná kúpeľňa, ktorá môže slúžiť aj ako hygienické zázemie pre pobyt v záhrade alebo pri bazéne.
Podklady: JURAJ TESÁK ARCHITEKTI
Fotografie: DYNAMEET STUDIO / Peter Čintalan