Novotvar v prostredí alpskej obce.
Hansgrohe - prémiová značka kúpeľňových riešení, ponúka nadčasový dizajn, technickú precíznosť a udržateľné inovácie...
Využite špeciálnu akciu Internorm: okná za minuloročné ceny a hliníkový kryt úplne zadarmo. Ponuka je časovo obmedzená!
Na podujatí sa predstaví až 37 vystavovateľov - popredných dodávateľov stavebných materiálov a inovácií s prezentáciou...
Sumarizácia najdôležitejších inovácií, ktoré redefinujúcich využitie tohto energetického zdroja.
AMPHIBIA 3000 GRIP 1.3 od spoločnosti ATRO predstavuje modernú hydroizolačnú technológiu, ktorá spája vysokú odolnosť,...
Ambiciózne plány EK narazili na ekonomické možnosti domácností v jednotlivých členských štátoch –...
IDEA DOOR od spoločnosti JAP prináša do interiéru čistý minimalistický vzhľad vďaka bezrámovému riešeniu a precíznej...
Kontinuita riešenia od vonkajšieho obkladu až po kovania a kľučky.
Nástenné nadomietkové armatúry Vitus sú mimoriadne vhodné pre rýchlu a efektívnu...
Okenné profily z kompozitného materiálu RAU-FIPRO X od spoločnosti Rehau sú v porovnaní s tradičnými plastovými profilmi mnohonásobne...
Najnovší sortiment stolov pre zariadenie interiérov...
Spojenie moderného dizajnu, funkčnosti a svetla do harmonického architektonického prvku.
Kancelárska budova Baumit v slovinskom Trzine prešla premenou na moderné a udržateľné pracovisko. Architekti kládli dôraz...
Mottom šiesteho ročníku on-line konferencie odborníkov Xella Dialóg je Efektívny návrh budov 2025+: zmeny a riešenia

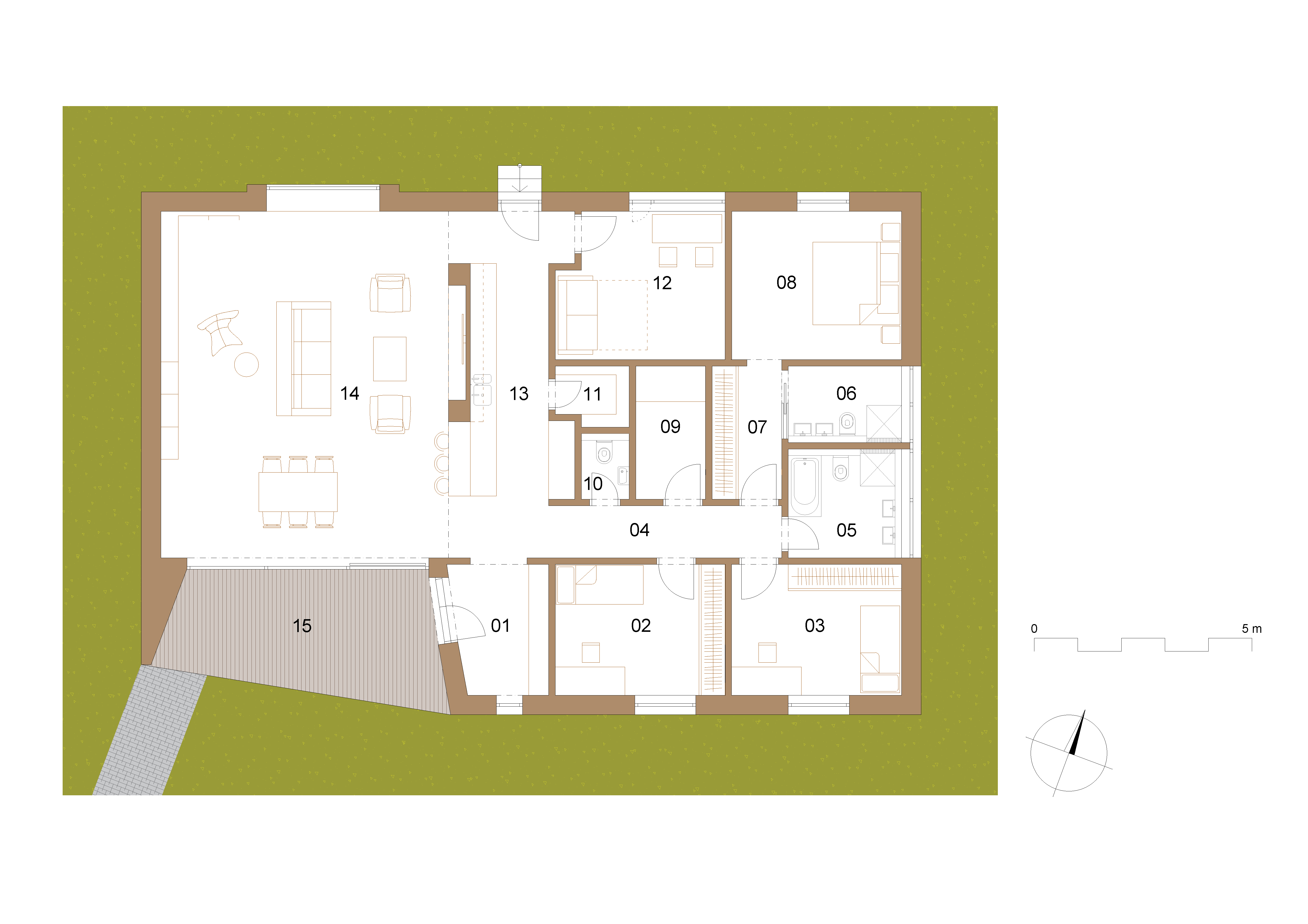
Na začiatku projektu stálo prianie investora o vytvorenie “ekologického útočiska” na pomedzí prírody a zastavaného územia, čo viedlo k rozhodnutiu realizovať drevodom. Návrh ateliéru Tornyos Architects je založený na vzťahu vnútorného priestoru a prirodzeného svetla v interiéri.
Dom je situovaný na obdĺžnikovom pozemku. Garáž s prístreškom, situovaná pozdĺž uličnej čiary vytvára bariéru medzi verejnou komunikáciou a súkromným priestorom. Zámerné natočenie objektu optimalizuje solárne zisky a zároveň vytvára dominantný výrazový prvok.
Architektonické riešenie je založené na jednoduchej kubickej hmote, ktorá zreteľne odráža vnútorné členenie funkčných zón. Usporiadanie hmôt umožňuje horné osvetlenie obytných častí a plynulo integruje krytú terasu, ktorá dotvára výsledné tvaroslovie domu.
Výstavba prebiehala v rokoch 2022 až 2024. Ako hlavný stavebný materiál boli použité krížom lepené drevené panely (CLT), ktoré zabezpečili možnosť presnej a rýchlej montáže. Jednotlivé dielce boli vyrobené v továrni s využitím precíznych CNC technológií a následne zostavené na mieste, čo zefektívnilo proces výstavby.
Dominujú prírodné materiály. Fasádu tvorí vertikálny drevený obklad, ktorý zabezpečuje odolnosť a zároveň nadväzuje na naturálny charakter okolitého prostredia. Obytný priestor je vizuálne prepojený so záhradou cez rozmerné okná a posuvné presklené dvere. Vegetačná strecha prispieva k znižovaniu prehrievania objektu a k zadržiavaniu dažďovej vody. Do návrhu boli začlenené aj kamene nájdené priamo na pozemku, čím sa posilňujú väzby na miestny kontext.
Stavba je navrhnutá a zrealizovaná v štandarde pasívneho domu. Energetickú efektívnosť zabezpečuje kvalitná tepelná izolácia stavebnej obálky, vzduchotesná konštrukcia, výplne otvorov s nízkymi prestupmi tepla a systém riadeného vetrania s rekuperáciou.
Architektonický koncept pokračuje aj v interiéri, kde sú uplatnené tiež prírodné materiály a jednoduché riešenia. Denná zóna je presvetlená z troch strán cez veľkorysé presklené plochy. Posuvné dvere umožňujú plynulé prepojenie interiéru s exteriérovou terasou a stierajú hranice medzi vnútorným a vonkajším priestorom.
Ateliér: Tornyos Architects
Fotografie: Soňa Sadloňová