Advertorial

Pozvánka na 2. ročník stavebného veľtrhu BigMarket na Slovensku

Na podujatí sa predstaví až 37 vystavovateľov - popredných dodávateľov stavebných materiálov a inovácií s prezentáciou...

Hotel Hirschen Spa House, Rakúsko

Novotvar v prostredí alpskej obce.

Vytvorte si kúpeľňu snov: dizajnové riešenie od značky hansgrohe

Hansgrohe - prémiová značka kúpeľňových riešení, ponúka nadčasový dizajn, technickú precíznosť a udržateľné inovácie...

Okná Internorm za minuloročné ceny + hliníkový kryt zdarma!

Využite špeciálnu akciu Internorm: okná za minuloročné ceny a hliníkový kryt úplne zadarmo. Ponuka je časovo obmedzená!

Moderné plynové technológie: Efektivita a inovácie pre 21. storočie

Sumarizácia najdôležitejších inovácií, ktoré redefinujúcich využitie tohto energetického zdroja.

Utesňovanie spodných stavieb pomocou hydro-aktívnej fólie AMPHIBIA.

AMPHIBIA 3000 GRIP 1.3 od spoločnosti ATRO predstavuje modernú hydroizolačnú technológiu, ktorá spája vysokú odolnosť,...

Dekarbonizácia individuálneho vykurovania domácností – Green Deal evolučne a nie revolučne

Ambiciózne plány EK narazili na ekonomické možnosti domácností v jednotlivých členských štátoch –...

Minimalistické dvere IDEA – technická precíznosť a čistota prevedenia

IDEA DOOR od spoločnosti JAP prináša do interiéru čistý minimalistický vzhľad vďaka bezrámovému riešeniu a precíznej...

Dom s výhľadom na údolie, Dlouhý Most (ČR)

Kontinuita riešenia od vonkajšieho obkladu až po kovania a kľučky.

Schell Vitus – osvedčené riešenie pre sprchy a umývadlá vo verejnom sektore s viac ako desaťročnou tradíciou

Nástenné nadomietkové armatúry Vitus sú mimoriadne vhodné pre rýchlu a efektívnu...

Kompozitné okná predstavujú súčasnosť a budúcnosť

Okenné profily z kompozitného materiálu RAU-FIPRO X od spoločnosti Rehau sú v porovnaní s tradičnými plastovými profilmi mnohonásobne...

Myotis - stoly 2025

Najnovší sortiment stolov pre zariadenie interiérov...

Priemyselné sklenené priečky Dorsis Digero: svetelné rozhranie pre moderné interiéry

Spojenie moderného dizajnu, funkčnosti a svetla do harmonického architektonického prvku.

Význam prirodzeného svetla pre moderné a flexibilné pracovné prostredie

Kancelárska budova Baumit v slovinskom Trzine prešla premenou na moderné a udržateľné pracovisko. Architekti kládli dôraz...

Konferencia Xella Dialóg predstaví novinky a trendy v stavebníctve

Mottom šiesteho ročníku on-line konferencie odborníkov Xella Dialóg je Efektívny návrh budov 2025+: zmeny a riešenia

Dlhý dom, Šamorín

Drevodom na predmestí.
Diela
Red 411.08.2023
37300+46
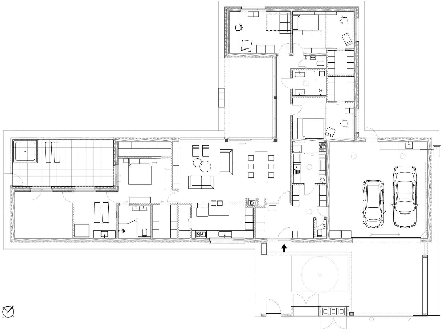
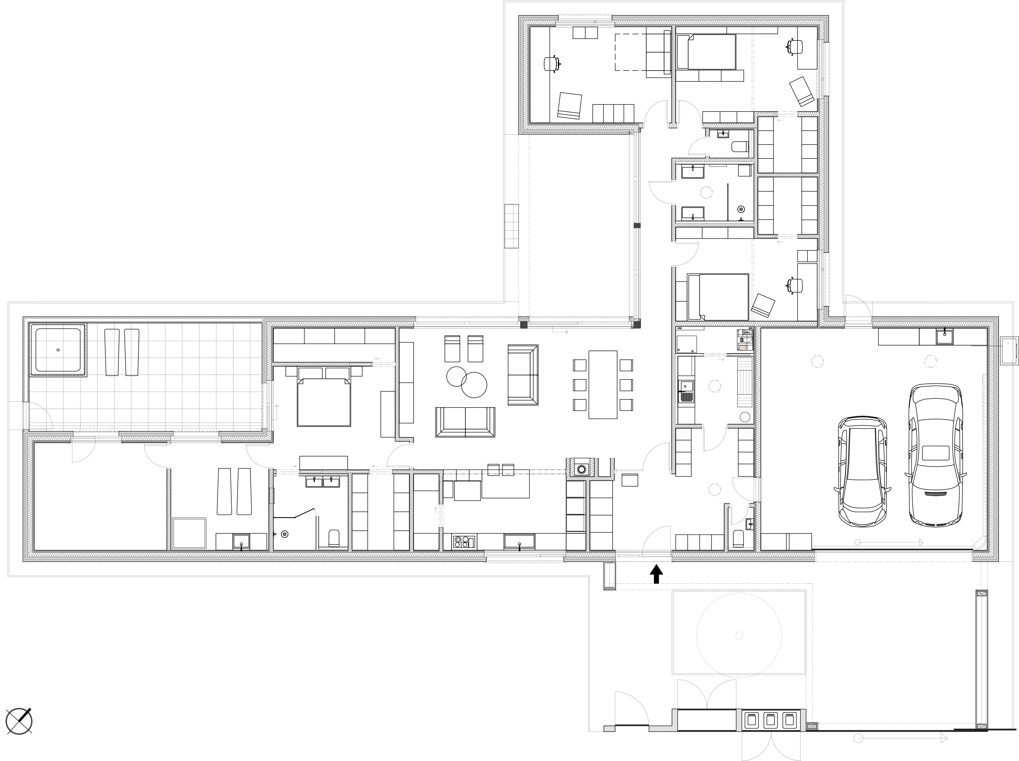
Dlhý dom, Šamorín
Autori: Ing. arch. Pavol PokornýSpolupráca: Veronika Michalíková, Mgr. art. Bjørn KierulfZastavaná plocha: 350 m2Podlažná plocha: 250 m2Návrh: 2019 - 2019Realizácia: 2020 - 2020Adresa: Šamorín, SlovenskoPublikované: 11. august 2023

Jednopodlažný objekt na rovine, s bezbariérovovou prevádzkou na jednej úrovni a priamym prepojením na priľahlý pozemok. Strohé výrazové prostriedky, jednoduchá ortogonálna forma, drevo, biela farba a zeleň na záhrade - vytvárajú predpoklady pre príjemné, neokázalé, nadčasové bývanie. 

Drevená stĺpikova konštrukcia a kvalitný energetický koncept redukujú uhlíkovú stopu realizovaného riešenia. 

Dobrá alternatíva k bežne realizovaným domom na predmestiach našich sídiel.

 

Realizáciu bližšie predstavia slová autora:

Stavebný pozemok sa nachádza v Šamoríne, v suburbánnej expanzii mesta smerom k novému rýchlostnému prepojeniu D4-R7. Rovinaté územie s anonymnou parceláciou môže nadchnúť len znalca pomerov a starousadlíka. Rodina s deťmi v tínedžerskom veku lokalitu dobre pozná, dlhé roky bývala v inej časti mesta, takže akvizícia pozemku v novej lokalite bola v ich prípade stávkou na istotu.

Priestorový koncept “dlhého” domu bol výsledkom krátkeho rozhovoru architekta s klientami o ich očakávaniach z nového bývania, výsledok ktorého by sa dal zhrnúť do vety “My rodičia chceme mať svoje súkromie, deti tiež a v prostriedku domu sa budeme stretávať.” Plus pán domu poznamenal “samozrejme k tomu veľkú garáž, chcem majstrovať a pohodlne k autu zaparkovať aj motorku”.

Pozemok svojou mierkou a proporciami umožnil, aby potreby rodičov boli saturované lineárne pozdĺž ulice. Garáž, vstup, obytný priestor s kuchyňou (jediné okno do ulice na 34 metrov dlhej fasáde), spálňa rodičov s hygienickým zázemím a šatníkom, sauna, fitness, privátne átrium s vírivkou. V komunikačnej kolmici “dlhý” blok je pozicionované krátke detské krídlo s hygienickým zázemím a hosťovskou izbou. Obe krídla spája vonkajšia krytá terasa.

POKORNY ARCHITEKTI
POKORNY ARCHITEKTI
POKORNY ARCHITEKTI
POKORNY ARCHITEKTI
Foto: Matej Hakár
Foto: Matej Hakár
Foto: Matej Hakár
Foto: Matej Hakár
Foto: Matej Hakár
Foto: Matej Hakár
Foto: Matej Hakár
Foto: Matej Hakár
Foto: Matej Hakár
Foto: Matej Hakár
Foto: Matej Hakár
Foto: Matej Hakár
Foto: Matej Hakár
Foto: Matej Hakár
Foto: Matej Hakár
Foto: Matej Hakár
Foto: Matej Hakár
Foto: Matej Hakár
Foto: Matej Hakár
Foto: Matej Hakár
Foto: Matej Hakár
Foto: Matej Hakár
Foto: Matej Hakár
Foto: Matej Hakár
Foto: Matej Hakár
Foto: Matej Hakár
Foto: Matej Hakár
Foto: Matej Hakár
Foto: Matej Hakár
Foto: Matej Hakár
Foto: Matej Hakár
Foto: Matej Hakár
Foto: Matej Hakár
Foto: Matej Hakár
Foto: Matej Hakár
Foto: Matej Hakár
Foto: Matej Hakár
Foto: Matej Hakár
Foto: Matej Hakár
Foto: Matej Hakár
Foto: Matej Hakár
Foto: Matej Hakár
Foto: Matej Hakár
Foto: Matej Hakár
Foto: Matej Hakár
Foto: Matej Hakár

 

Viac informácií o prezentovanej drevostavbe, o genéze projektu Vám priblíži autor Pavel Pokorný v aktuálnej  epizóde podcastu spracovanom  platformou Staviame Z dreva.

 

Poloha diela

Ing. arch. Pavol Pokorný
Vložené
10. august 2023
0
3730
Hlavný obsahHlavný obsah
Čakajte prosím