Advertorial

Okná Internorm za minuloročné ceny + hliníkový kryt zdarma!

Využite špeciálnu akciu Internorm: okná za minuloročné ceny a hliníkový kryt úplne zadarmo. Ponuka je časovo obmedzená!

Pozvánka na 2. ročník stavebného veľtrhu BigMarket na Slovensku

Na podujatí sa predstaví až 37 vystavovateľov - popredných dodávateľov stavebných materiálov a inovácií s prezentáciou...

Moderné plynové technológie: Efektivita a inovácie pre 21. storočie

Sumarizácia najdôležitejších inovácií, ktoré redefinujúcich využitie tohto energetického zdroja.

Utesňovanie spodných stavieb pomocou hydro-aktívnej fólie AMPHIBIA.

AMPHIBIA 3000 GRIP 1.3 od spoločnosti ATRO predstavuje modernú hydroizolačnú technológiu, ktorá spája vysokú odolnosť,...

Dekarbonizácia individuálneho vykurovania domácností – Green Deal evolučne a nie revolučne

Ambiciózne plány EK narazili na ekonomické možnosti domácností v jednotlivých členských štátoch –...

Minimalistické dvere IDEA – technická precíznosť a čistota prevedenia

IDEA DOOR od spoločnosti JAP prináša do interiéru čistý minimalistický vzhľad vďaka bezrámovému riešeniu a precíznej...

Dom s výhľadom na údolie, Dlouhý Most (ČR)

Kontinuita riešenia od vonkajšieho obkladu až po kovania a kľučky.

Schell Vitus – osvedčené riešenie pre sprchy a umývadlá vo verejnom sektore s viac ako desaťročnou tradíciou

Nástenné nadomietkové armatúry Vitus sú mimoriadne vhodné pre rýchlu a efektívnu...

Kompozitné okná predstavujú súčasnosť a budúcnosť

Okenné profily z kompozitného materiálu RAU-FIPRO X od spoločnosti Rehau sú v porovnaní s tradičnými plastovými profilmi mnohonásobne...

Myotis - stoly 2025

Najnovší sortiment stolov pre zariadenie interiérov...

Priemyselné sklenené priečky Dorsis Digero: svetelné rozhranie pre moderné interiéry

Spojenie moderného dizajnu, funkčnosti a svetla do harmonického architektonického prvku.

Význam prirodzeného svetla pre moderné a flexibilné pracovné prostredie

Kancelárska budova Baumit v slovinskom Trzine prešla premenou na moderné a udržateľné pracovisko. Architekti kládli dôraz...

Konferencia Xella Dialóg predstaví novinky a trendy v stavebníctve

Mottom šiesteho ročníku on-line konferencie odborníkov Xella Dialóg je Efektívny návrh budov 2025+: zmeny a riešenia

Murovací robot WLTR stavia svoj prvý dom na Slovensku

Robot WLTR predstavuje moderný prístup k murovaným konštrukciám. Vďaka automatizácii dokáže rýchlo, presne a bezpečne realizovať...

Nová éra bezpečnosti s I-tec Secure od Internorm

Okrem bezpečnosti majú okná aj elegantný vzhľad, pretože nie sú viditeľné žiadne uzamykacie časti kovania.

Rodinný dom vo Veľkom Orvišti

Malý vo veľkom / veľký v malom.
Diela
Red 421.10.2025
49248+34
Rodinný dom vo Veľkom Orvišti
Autori: Ing. arch. Pavol PokornýSpolupráca: Mgr. art. Veronika Michalíková, Lukáš Holubek (KONTRAKTING)Zastavaná plocha: 107 m2 + 44 m2 garážPodlažná plocha: 215 m2Návrh: 2020 - 2021Realizácia: 2022 - 2024Adresa: Veľké Orvište, SlovenskoPublikované: 21. október 2025

Dom z dielne ateliéru POKORNY ARCHITEKTI vznikol na úzkom páse parcely v malej obci na Dolnom Považí. Architektonický koncept energeticky úspornej montovanej drevostavby s rozvahou pristupuje k formovaniu objemu, práci so svetlom a lokalitnému programu.

Z požiadavky na ekonomické riešenie vyplynuli dva samostatné objekty realizované na etapy (dom a doplnková garáž), ktorých kompozícia prepája interiér so severne orientovanou záhradou. Sekvenčné usporiadanie dennej časti s loftom a oddelenými spálňami prináša vzdušný vnútorný priestor s efektnými priehľadmi. Projekt architekta Pavla Pokorného ponúka civilnú a kultivovanú odpoveď na urbanizáciu slovenského vidieka.

 

Realizáciu bližšie predstaví architekt Pavol Pokorný:

Malý vo veľkom / veľký v malom.

Aj takto je možné v skratke opísať rodinný dom vo Veľkom Orvišti. Paradox vyjadruje vzťah mierky stavby k pozemku a k vnútorným priestorom. Koncepčné uchopenie témy úspornej architektúry sa prejavuje veľkorysosťou, ktorá kontroluje svoje fyzické a mentálne hranice.

Dom vznikol v intraviláne obce v rámci premeny vnútorných záhrad pôvodného monobloku na stavebné parcely. Zadanie od majiteľov bolo navrhnúť rodinný dom čo najekonomickejšie a ako to už v takýchto prípadoch býva, spočiatku striktný lokalitný program si v procese tvorby začal žiť vlastným životom. Kompromisným výsledkom sú dva samostatne stojace objekty, ktoré boli realizované (vzhľadom na dostupné financie v danom čase) na etapy – najprv rodinný dom s úžitkovou plochou 110 m² (2022) a doplnková stavba garáže so skladom s úžitkovou plochou 35 m² (2024).

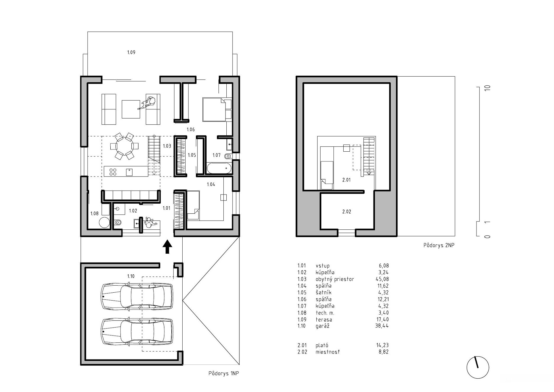
Pozemok, dlhý pás s rozmermi 17 × 55 metrov, je orientovaný na sever. Architektúra reaguje na tvar parcely usporiadaním hmôt a prepojením interiéru so záhradou na severnom horizonte. Dom je komponovaný ako priestorová sekvencia, ktorá postupne odkrýva jednotlivé vrstvy. Prízemie tvoria vstupná predsieň s hosťovskou kúpeľňou a šatníkom, ďalej hlavný obytný priestor s kuchyňou, jedálňou, komorou a technickým zázemím. Na centrálnu časť nadväzujú dve samostatné spálne, každá s vlastnou kúpeľňou a šatníkom. Dominantou dispozície je obytný priestor prekrytý sedlovou strechou. Výška dvoch podlaží prináša benefit vzdušnosti a difúzneho denného svetla. Spálne s plochou strechou sú od hlavného obytného priestoru odčlenené a dispozične riešené tak, aby bolo umožnené bezkolízne a súčasné užívanie denných aj nočných priestorov. Z obývacej časti vedie schodisko do loftu vloženého do otvoreného priestoru sedlovej strechy. Z loftu je prístupný samostaný priestor, ktorý môže slúžiť ako hosťovská izba alebo domáca pracovňa. Samostatne stojaca garáž dopĺňa dom nielen funkčne, ale aj výrazovo. Okrem parkovania slúži ako sklad sezónne využívaného vybavenia domu, čím umožňuje udržiavať rodinný dom v minimalistickej prevádzke, poriadku a čistote.

Hlavné presklenie obytnej časti s priľahlou terasou je orientované na sever. Severné svetlo prináša stabilnú kvalitu osvetlenia bez ostrých kontrastov a umožňuje využívať exteriérovú terasu aj počas horúcich letných dní. Napriek malej mierke vnútorné usporiadanie domu pôsobí veľkoryso. Je to architektúra, ktorá nič nepredstiera. Je nesentimentálnym odrazom potrieb obyvateľov domu. Jedna z odpovedí, ako kultivovane urbanizovať slovenský vidiek.

Stavba je realizovaná ako montovaná drevostavba v energeticky efektívnom štandarde.

Foto: Matej Hakár
Foto: Matej Hakár
Foto: Matej Hakár
Foto: Matej Hakár
Foto: Matej Hakár
Situácia
SituáciaAutor: POKORNY ARCHITEKTI
Pôdorysy
PôdorysyAutor: POKORNY ARCHITEKTI
Rezy
RezyAutor: POKORNY ARCHITEKTI
Foto: Matej Hakár
Foto: Matej Hakár
Foto: Matej Hakár
Foto: Matej Hakár
Foto: Matej Hakár
Foto: Matej Hakár
Foto: Matej Hakár
Foto: Matej Hakár
Foto: Matej Hakár
Foto: Matej Hakár
Foto: Matej Hakár
Foto: Matej Hakár
Priestorová schéma
Priestorová schémaAutor: POKORNY ARCHITEKTI
Autor: POKORNY ARCHITEKTI
Autor: POKORNY ARCHITEKTI
Vizualizácia interiéru
Vizualizácia interiéruAutor: POKORNY ARCHITEKTI

Poloha diela

Ing. arch. Pavol Pokorný

Súvisiace články

Vložené
20. október 2025
8
4924
Hlavný obsahHlavný obsah
Čakajte prosím