Hansgrohe - prémiová značka kúpeľňových riešení, ponúka nadčasový dizajn, technickú precíznosť a udržateľné inovácie...
Využite špeciálnu akciu Internorm: okná za minuloročné ceny a hliníkový kryt úplne zadarmo. Ponuka je časovo obmedzená!
Na podujatí sa predstaví až 37 vystavovateľov - popredných dodávateľov stavebných materiálov a inovácií s prezentáciou...
Sumarizácia najdôležitejších inovácií, ktoré redefinujúcich využitie tohto energetického zdroja.
AMPHIBIA 3000 GRIP 1.3 od spoločnosti ATRO predstavuje modernú hydroizolačnú technológiu, ktorá spája vysokú odolnosť,...
Ambiciózne plány EK narazili na ekonomické možnosti domácností v jednotlivých členských štátoch –...
IDEA DOOR od spoločnosti JAP prináša do interiéru čistý minimalistický vzhľad vďaka bezrámovému riešeniu a precíznej...
Kontinuita riešenia od vonkajšieho obkladu až po kovania a kľučky.
Nástenné nadomietkové armatúry Vitus sú mimoriadne vhodné pre rýchlu a efektívnu...
Okenné profily z kompozitného materiálu RAU-FIPRO X od spoločnosti Rehau sú v porovnaní s tradičnými plastovými profilmi mnohonásobne...
Najnovší sortiment stolov pre zariadenie interiérov...
Spojenie moderného dizajnu, funkčnosti a svetla do harmonického architektonického prvku.
Kancelárska budova Baumit v slovinskom Trzine prešla premenou na moderné a udržateľné pracovisko. Architekti kládli dôraz...
Mottom šiesteho ročníku on-line konferencie odborníkov Xella Dialóg je Efektívny návrh budov 2025+: zmeny a riešenia
Robot WLTR predstavuje moderný prístup k murovaným konštrukciám. Vďaka automatizácii dokáže rýchlo, presne a bezpečne realizovať...

V poslednom období sa pomerne často stretávame s požiadavkou našich klientov navrhnúť im viacgeneračné bývanie. Téma sa začala objavovať už tak často, že sa prirodzene natíska otázka, či je to len zhoda náhod alebo či je to trend, ktorý významne reflektuje demografický, ekonomický, či sociálny posun v našej spoločnosti.Viacgeneračné bývanie je tvorené zvyčajne dvomi prevádzkovými schémami. Prvou a najobvyklejšou schémou je spolunažívanie troch generácií, manželského páru v produktívnom veku s malými deťmi a so starými rodičmi na dôchodku. Druhou, stále častejšie sa objavujúcou schémou, je bývanie rodiny s dospelými ďeťmi s potrebou vytvorenia priestorovej rezervy pre ich špecifické potreby, predovšetkým v oblasti vyššej potreby súkromia. Spoločným menovateľom oboch princípov je maximálne možná flexibilita vnútornej dispozície v budúcnosti.Z hľadiska objemového členenia stavby je v prípade viacgeneračného bývania možné aplikovať dva základné princípy. Prvý je reprezentovaný integráciou dvoch nezávislých bytových jednotiek do jedného stavebného celku (príklad č.1 a č.2). Druhý princíp aplikuje historickú typológiu „hlavného domu“ (dom rodiny v produktívnom veku) a „vejmínku“ (prístavby k hlavnému domu pre starých rodičov) – príklad č.3.
Príklad č.1 – Dom na Ahoji
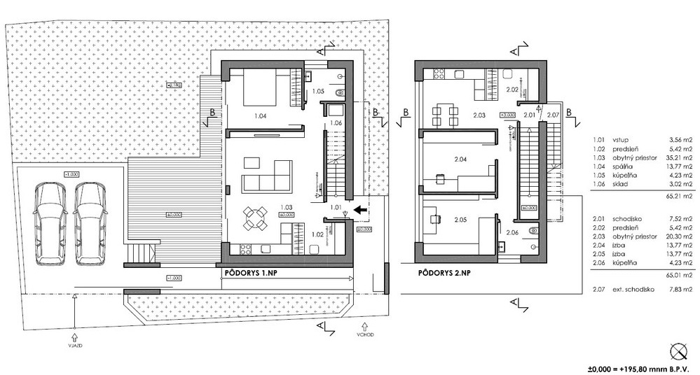
Pre rodinu s dospievajúcimi deťmi sme vytvorili priestorový koncept dvoch samostatných bytov (60 + 60 m2) so spoločným vchodom. Na prízemí budú rodičia, na poschodí deti. Keď sa deti osamostatnia a odídu z domu, byt na poschodí môže byť využívaný rôzne – domáci office alebo priestory na prenájom. Aj napriek vysokej hustote zastavanosti v danom území majú oba byty exteriérové terasy, prízemný byt na teréne a byt z poschodia na strešnej terase.
Príklad č.2 – Dom v Sankt Margarethen im Lungau
Klasický trojgeneračný koncept pre rodinu s malými deťmi a starými rodičmi v jednom stavebnom objeme. Na prízemí sa nachádza byt pre starých rodičov (prístupný zo spoločnej predsiene) a denná časť mladej rodiny. Na poschodí je nočná časť mladej rodiny. Byt starých rodičov má 40 m2, byt mladej rodiny 120 m2. Oba byty zdieľajú spoločnú terasu a záhradu.
Príklad č.3 – Dom v Záhorskej Bystrici
Trojgeneračný koncept pre rodinu s malými deťmi a starými rodičmi vo forme „veľkého a malého domu“. Oba objekty sú nezávislé a zdieľajú len parkovanie pred objektom. Vzájomná pozícia stavebných objemov umožňuje obom rodinám regulovať mieru sociálnej interakcie pri pobyte na terase a v záhrade, a zároveň prináša plnohodnotné benefity spoločného bývania viacerých generácií – vzájomná blízkosť, výpomoc, nižšie životné náklady. Po odchode starých rodičov je možné využívať „vejmínek“ ako home office, hosťovský dom, dom pre dospievajúce deti, prenájom ap. Byt starých rodičov má rozlohu 60 m2, bývanie mladej rodiny 160 m2.