Advertorial

Okná Internorm za minuloročné ceny + hliníkový kryt zdarma!

Využite špeciálnu akciu Internorm: okná za minuloročné ceny a hliníkový kryt úplne zadarmo. Ponuka je časovo obmedzená!

Pozvánka na 2. ročník stavebného veľtrhu BigMarket na Slovensku

Na podujatí sa predstaví až 37 vystavovateľov - popredných dodávateľov stavebných materiálov a inovácií s prezentáciou...

Moderné plynové technológie: Efektivita a inovácie pre 21. storočie

Sumarizácia najdôležitejších inovácií, ktoré redefinujúcich využitie tohto energetického zdroja.

Utesňovanie spodných stavieb pomocou hydro-aktívnej fólie AMPHIBIA.

AMPHIBIA 3000 GRIP 1.3 od spoločnosti ATRO predstavuje modernú hydroizolačnú technológiu, ktorá spája vysokú odolnosť,...

Dekarbonizácia individuálneho vykurovania domácností – Green Deal evolučne a nie revolučne

Ambiciózne plány EK narazili na ekonomické možnosti domácností v jednotlivých členských štátoch –...

Minimalistické dvere IDEA – technická precíznosť a čistota prevedenia

IDEA DOOR od spoločnosti JAP prináša do interiéru čistý minimalistický vzhľad vďaka bezrámovému riešeniu a precíznej...

Dom s výhľadom na údolie, Dlouhý Most (ČR)

Kontinuita riešenia od vonkajšieho obkladu až po kovania a kľučky.

Schell Vitus – osvedčené riešenie pre sprchy a umývadlá vo verejnom sektore s viac ako desaťročnou tradíciou

Nástenné nadomietkové armatúry Vitus sú mimoriadne vhodné pre rýchlu a efektívnu...

Kompozitné okná predstavujú súčasnosť a budúcnosť

Okenné profily z kompozitného materiálu RAU-FIPRO X od spoločnosti Rehau sú v porovnaní s tradičnými plastovými profilmi mnohonásobne...

Myotis - stoly 2025

Najnovší sortiment stolov pre zariadenie interiérov...

Priemyselné sklenené priečky Dorsis Digero: svetelné rozhranie pre moderné interiéry

Spojenie moderného dizajnu, funkčnosti a svetla do harmonického architektonického prvku.

Význam prirodzeného svetla pre moderné a flexibilné pracovné prostredie

Kancelárska budova Baumit v slovinskom Trzine prešla premenou na moderné a udržateľné pracovisko. Architekti kládli dôraz...

Konferencia Xella Dialóg predstaví novinky a trendy v stavebníctve

Mottom šiesteho ročníku on-line konferencie odborníkov Xella Dialóg je Efektívny návrh budov 2025+: zmeny a riešenia

Murovací robot WLTR stavia svoj prvý dom na Slovensku

Robot WLTR predstavuje moderný prístup k murovaným konštrukciám. Vďaka automatizácii dokáže rýchlo, presne a bezpečne realizovať...

Nová éra bezpečnosti s I-tec Secure od Internorm

Okrem bezpečnosti majú okná aj elegantný vzhľad, pretože nie sú viditeľné žiadne uzamykacie časti kovania.

Rezidencia Demänovská

Oddych v podhorí Nízkych Tatier.
Diela
Red 420.08.2025
31362+81
Rezidencia Demänovská
Autori: Ing. arch. Pavol PokornýSpolupráca: Mgr. art. Veronika Michalíková, Ing. arch. Michal Diviš (HIP - MDA), Ing. Michal KadnárZastavaná plocha: 114 m2Podlažná plocha: 153 m2Návrh: 2021 - 2023Realizácia: 2024 - 2025Adresa: Demänovská dolina, SlovenskoPublikované: 20. august 2025

Súčasná interpretáciu rekreačnej chaty z dielne ateliéru POKORNY ARCHITEKTI stojí na mieste pôvodného horského zrubu z konca 80. rokov. Objekt zasadený do prostredia vzrastlého lesa pri potoku Demänovka využíva technológiu montovanej drevostavby a tradičné remeselné postupy, pričom vytvára komfort moderného bývania s autentickým vizuálom. Realizáciu charakterizujú panoramatické výhľady, intímna pobytová strecha a drevený obklad spracovaný technikou Yakisugi.

Foto: Matej Hakár

Realizáciu predstaví architekt Pavol Pokorný:

Pre rozvoj turizmu v Demänovskej doline (Liptov, Nízke Tatry) a výstavbu s ním spojenú je dôležitý rok 1924, keď bol verejnosti sprístupnený prvý úsek Demänovskej jaskyne slobody, ktorá bola objavená v auguste 1921. O sto rokov neskôr sme začali pracovať na architektonickom návrhu objektu, ktorého definitívnu podobu sme spolu s klientom našli po dvoch rokoch a nespočetných variantoch návrhu. Z dnešného pohľadu realizovaného výsledku to bol zmysluplne investovaný čas.

Rezidencia Demänovská dokumentuje historickú premenu typologického druhu „rekreačná chata“ – od jednoduchého objektu slúžiaceho ako ochrana pred nepriazňou počasia a miesta na prespanie po komplexný a luxusný „retreat“ (zodpovedajúci slovenský ekvivalent zatiaľ neexistuje), ktorý je útočiskom pred civilizačným hlukom a miestom pre opätovné spojenie sa so samým sebou. Ak je turistická útulňa cieľom návratu z horskej túry a slúži na obnovu fyzických síl, rezidencia Demänovská je pevným bodom mentálnej mapy jej obyvateľa slúžiacim na reštart psychickej kondície.

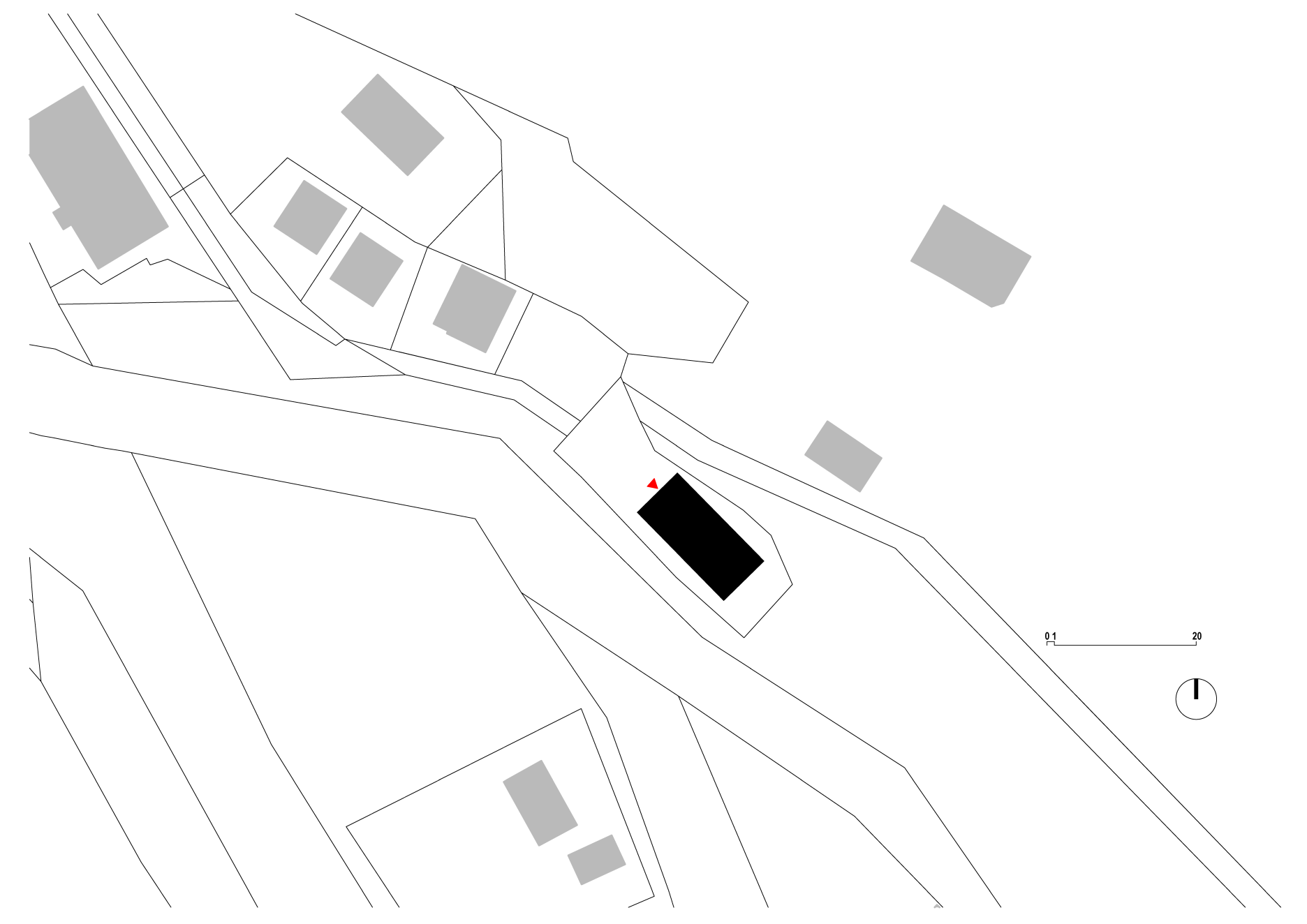
Uprostred vzrastlého lesného porastu, pri potoku Demänovka, stála zrubová stavba z konca 80. rokov 20. storočia, na konci svojej technickej a prevádzkovej životnosti. Rozhodnutie nahradiť objekt novostavbou na mieste pôvodnej pôdorysnej stopy bolo podporené hodnotou genia loci, zachovanou existujúcou infraštruktúrou a aplikovaním technológie montovanej drevostavby, ktorá umožnila vstúpiť do prírodného prostredia neinvazívnym a šetrným spôsobom.

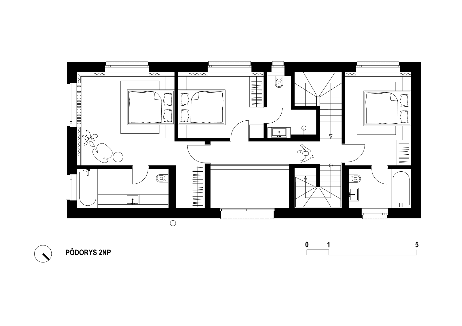
Priestorový plán objektu je reakciou na okolie, ktorému dominuje v bezprostrednej blízkosti tečúci potok Demänovka. Jeho vizuálna a environmentálna kvalita je hlavným determinantom návrhu. Stavebný objem v elementárnom tvare rafinovane sa medzi stromami ukrývajúceho hranola sa k vodnému toku vinie paralelne, aby bolo možné maximalizovať prírodný, neustále sa meniaci vizuálny prvok potoka v panoramatickom vneme z hlavného obytného priestoru na prízemí (veľkoformátové bezrámové zasklenia). Rovnaký princíp vizuálneho a akustického prepojenia s potokom je aplikovaný v troch spálňach na poschodí (každá s vlastnou kúpeľňou). Pobytová strecha s vírivkou je koncipovaná ako „inverzná“ – šikmé prestrešenia spální tvoria na streche oddychové plochy. Priestorový negatív strešnej krajiny umožňuje dosiahnuť maximálnu intimitu napriek vizuálnej blízkosti susedných rekreačných chát a zároveň podporuje vnímanie nekonečna vertikály oblohy orámovanej korunami stromov.

Exteriéru rezidencie dominuje drevený obklad, ktorý je konzervovaný tradičnou japonskou technológiou Yakisugi. Kontrolovane opálené drevo zvyšuje odolnosť materiálu voči poveternostným a biologickým vplyvom, zvyšuje jeho požiarnu odolnosť a v neposlednom rade svojou hlbokou matnou čerňou prepožičiava rezidencii nezameniteľný charakter.
Interiér (s asistenciou autora, ale inak plne v réžii klienta) je charakteristický plošnou aplikáciou drevenej dýhy na stenách a stropoch, ktorá je zjednotená mikrocementovými potermi v exponovaných miestach (obytná zóna + kúpeľne). Užívateľský komfort je dosiahnutý vďaka decentnému mobiliáru.

Foto: Matej Hakár
Foto: Matej Hakár
Foto: Matej Hakár
Foto: Matej Hakár
Foto: Matej Hakár
Foto: Matej Hakár
Foto: Matej Hakár
Foto: Matej Hakár
Foto: Matej Hakár
Foto: Matej Hakár
Foto: Matej Hakár
Foto: Matej Hakár
Foto: Matej Hakár
Foto: Matej Hakár
Foto: Matej Hakár
Foto: Matej Hakár
Foto: Matej Hakár
Foto: Matej Hakár
Foto: Matej Hakár
Situácia
SituáciaAutor: POKORNY ARCHITEKTI
Pôdorys 1. NP
Pôdorys 1. NPAutor: POKORNY ARCHITEKTI
Pôdorys 2. NP
Pôdorys 2. NPAutor: POKORNY ARCHITEKTI
Pôdorys 3. NP
Pôdorys 3. NPAutor: POKORNY ARCHITEKTI
Juhozápadný pohľad
Juhozápadný pohľadAutor: POKORNY ARCHITEKTI
Severovýchodný pohľad
Severovýchodný pohľadAutor: POKORNY ARCHITEKTI
Juhovýchodný pohľad
Juhovýchodný pohľadAutor: POKORNY ARCHITEKTI
Severozápadný pohľad
Severozápadný pohľadAutor: POKORNY ARCHITEKTI
Pozdĺžny rez
Pozdĺžny rezAutor: POKORNY ARCHITEKTI
Priečny rez
Priečny rezAutor: POKORNY ARCHITEKTI

Poloha diela

Ing. arch. Pavol Pokorný

Súvisiace články

Matej HakárSKBratislava
Vložené
14. august 2025
2
3136
Hlavný obsahHlavný obsah
Čakajte prosím