Objavte riešenia Dorsis, ktoré spájajú minimalistický vzhľad s vysokou variabilitou, funkčnosťou a spracovaním na mieru.
Súčasné bývanie v prostredí budapeštianskej vilovej štvrte.
Moderné strešné okná ponúkajú pohodlné ovládanie aj lepšiu ochranu domácnosti počas celého roka.
Rad interiérových dverí DIVA DOOR od spoločnosti J.A.P. ponúka čistý dizajn a variabilné riešenia pre súčasné interiéry.
REHAU Window Solutions na veľtrhu Fensterbau Frontale 2026
Sortiment Slim Line zahŕňa pestrý výber dekorov a textúr.
Európska značka okien oslavuje jubileum: za 95 rokov sa vyvinula na najväčšiu medzinárodne pôsobiacu okennú značku a inovačného...
Na podujatí sa predstaví až 37 vystavovateľov - popredných dodávateľov stavebných materiálov a inovácií s prezentáciou...
Novotvar v prostredí alpskej obce.
Hansgrohe - prémiová značka kúpeľňových riešení, ponúka nadčasový dizajn, technickú precíznosť a udržateľné inovácie...
Využite špeciálnu akciu Internorm: okná za minuloročné ceny a hliníkový kryt úplne zadarmo. Ponuka je časovo obmedzená!
Sumarizácia najdôležitejších inovácií, ktoré redefinujúcich využitie tohto energetického zdroja.
AMPHIBIA 3000 GRIP 1.3 od spoločnosti ATRO predstavuje modernú hydroizolačnú technológiu, ktorá spája vysokú odolnosť,...
Ambiciózne plány EK narazili na ekonomické možnosti domácností v jednotlivých členských štátoch –...
IDEA DOOR od spoločnosti JAP prináša do interiéru čistý minimalistický vzhľad vďaka bezrámovému riešeniu a precíznej...

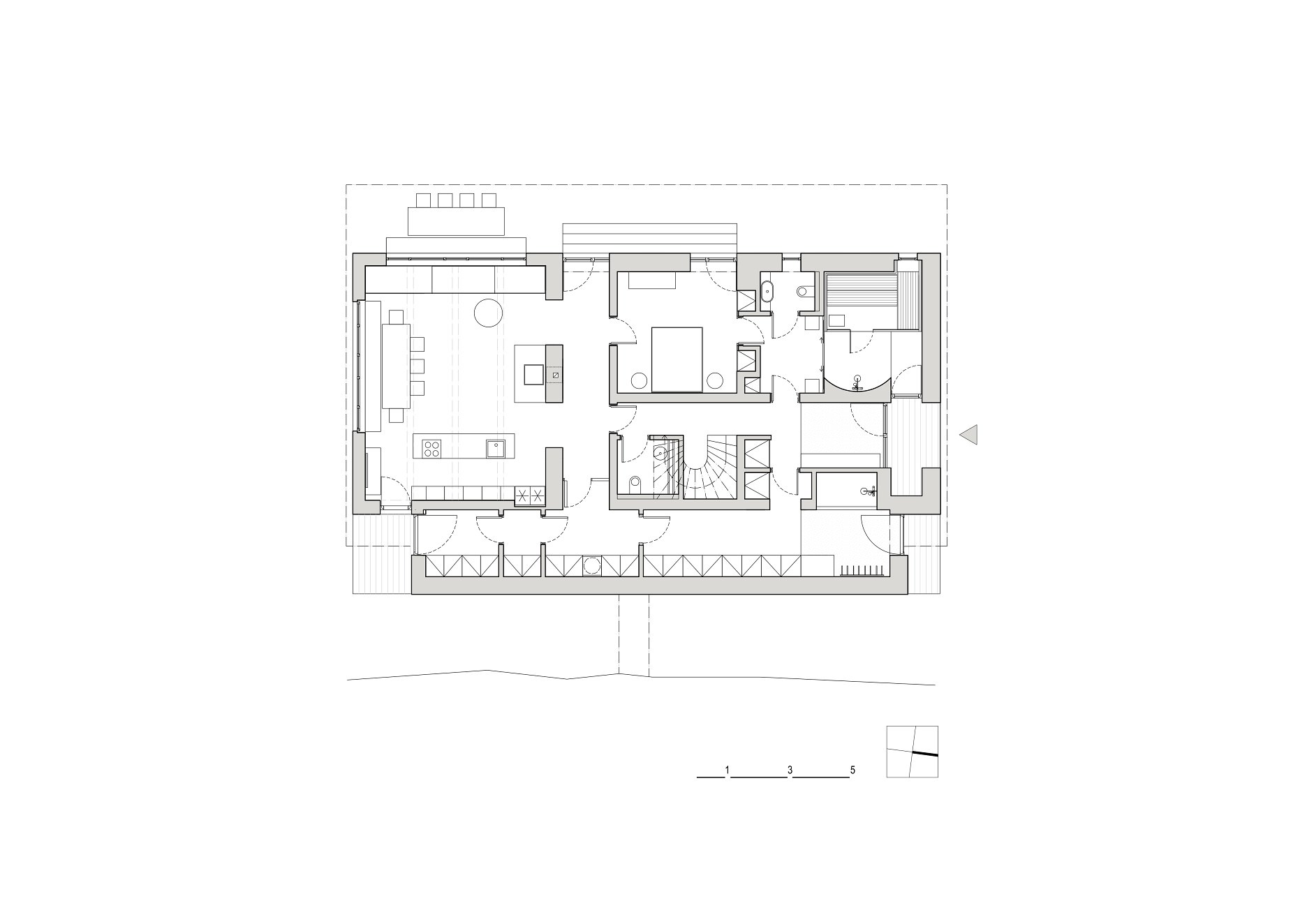
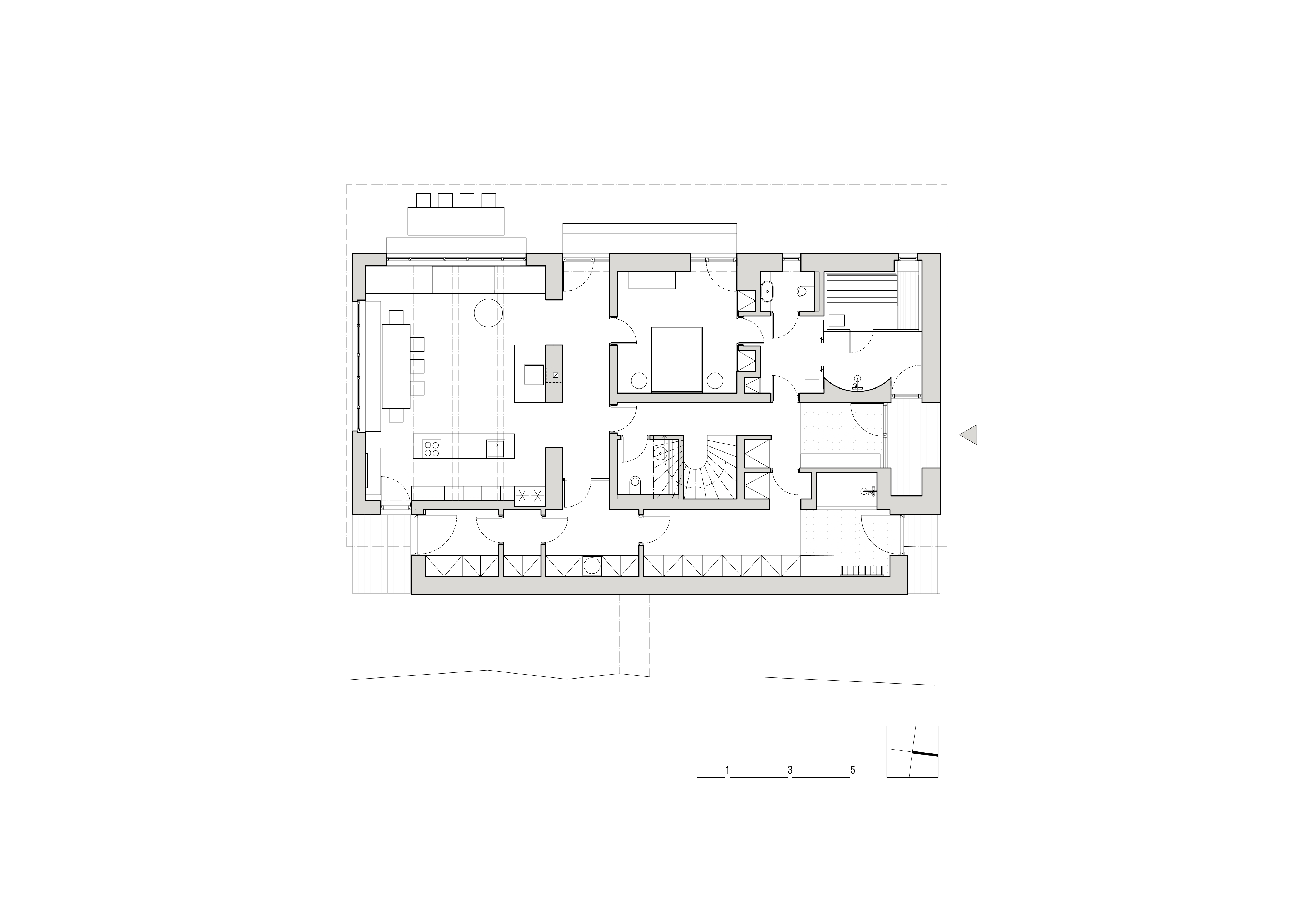
Na svahu nad krkonošskou obcou Strážné pôvodne stála zrubová chalupa. Objekt prekryli nánosy prestavieb, prístavieb, nekvalitných opráv a umakartových obkladov.
Malé množstvo zachovaných pôvodných konštrukcií bolo z väčšej časti v zlom technickom stave. Cieľom autorov z pražského ateliéru Mimosa architekti sa preto namiesto zachovania hmotnej podstaty stavby stalo skôr znovuobjavenie jej podstaty.
Podľa slov autorov návrh čerpá inšpiráciu z miestnych stavieb s mohutnými, strmými strechami, ktoré kedysi umožňovali prežiť dlhé zimy. Preto navrhli kompozíciu s asymetricky osadenou strechou na nízkom zrubovom prízemí. Medzi charakteristické prvky patrí kamenná podmurovka a členenie dispozície na tri trakty.
„Nesnažili jsme se do tradičního objemu vměstnat soudobé prostorové principy, ale spíše naopak – vytvořit soudobou stavbu při využití tradičních prostorových principů. Světnici tak zůstala zachována atmosféra uzavřeného, bezpečného, intimního prostoru. Její dimenzi – a následně i měřítko dalších místností – určil jeden z mála dochovaných prvků: trámový strop. Ten předurčil světlou výšku i celkovou proporci prostoru. Díky kombinaci otevíravých a bezrámových zasklení zůstal zachován rytmus tradiční stavby v exteriéru i interiéru a zároveň se interiér otevřel výhledům do krajiny,“ vysvetľujú architekti.
Chalupa dnes ponúka komfortné priestory na pobyt rodiny a jej priateľov.
Srdcom prízemia je obytná izba s pohodlným sedením pod oknami a veľkým stolom. Do objemu pôvodnej chalupy je okrem obytnej izby vložená hosťovská izba a schodisko. Neskôr pristavané toalety sa zmenili na saunu so zázemím.
Medzi svah a pôvodný objem chalupy je vložené skladové a technické zázemie pre všetko, čo sa na horách môže zísť: špajza, práčovňa, vybavenie na lyžovanie a cyklistiku, dielňa, technická miestnosť a umyváreň pre psa a bicykel v jednom.
Podkrovné priestory sú v duchu pôvodných podstrešných priestorov otvorené a poskytujú súkromie jednotlivým členom rodiny. Izby v štítoch ponúkajú výhľady na hrebene Krkonôš.
Technické vybavenie objektu je navrhnuté s ohľadom na umiestnenie chalupy. Zámerom nebola technologická sebestačnosť, ale čo najjednoduchšia, funkčná a nerušivá prevádzka. Napriek osamotenej polohe v krajine je objekt napojený na elektrickú rozvodnú sieť. O vykurovanie a prípravu teplej vody sa stará tepelné čerpadlo zem-voda s geotermálnym vrtom. Objekt je zásobovaný vodou z neďalekej studničky, splaškové vody sa čistia vo vlastnej čistiarni odpadových vôd.
Materiály:
Ateliér: Mimosa architekti
Podklady: Linka
Fotografie: Petr Polák