Advertorial

Pozvánka na 2. ročník stavebného veľtrhu BigMarket na Slovensku

Na podujatí sa predstaví až 37 vystavovateľov - popredných dodávateľov stavebných materiálov a inovácií s prezentáciou...

Hotel Hirschen Spa House, Rakúsko

Novotvar v prostredí alpskej obce.

Vytvorte si kúpeľňu snov: dizajnové riešenie od značky hansgrohe

Hansgrohe - prémiová značka kúpeľňových riešení, ponúka nadčasový dizajn, technickú precíznosť a udržateľné inovácie...

Okná Internorm za minuloročné ceny + hliníkový kryt zdarma!

Využite špeciálnu akciu Internorm: okná za minuloročné ceny a hliníkový kryt úplne zadarmo. Ponuka je časovo obmedzená!

Moderné plynové technológie: Efektivita a inovácie pre 21. storočie

Sumarizácia najdôležitejších inovácií, ktoré redefinujúcich využitie tohto energetického zdroja.

Utesňovanie spodných stavieb pomocou hydro-aktívnej fólie AMPHIBIA.

AMPHIBIA 3000 GRIP 1.3 od spoločnosti ATRO predstavuje modernú hydroizolačnú technológiu, ktorá spája vysokú odolnosť,...

Dekarbonizácia individuálneho vykurovania domácností – Green Deal evolučne a nie revolučne

Ambiciózne plány EK narazili na ekonomické možnosti domácností v jednotlivých členských štátoch –...

Minimalistické dvere IDEA – technická precíznosť a čistota prevedenia

IDEA DOOR od spoločnosti JAP prináša do interiéru čistý minimalistický vzhľad vďaka bezrámovému riešeniu a precíznej...

Dom s výhľadom na údolie, Dlouhý Most (ČR)

Kontinuita riešenia od vonkajšieho obkladu až po kovania a kľučky.

Schell Vitus – osvedčené riešenie pre sprchy a umývadlá vo verejnom sektore s viac ako desaťročnou tradíciou

Nástenné nadomietkové armatúry Vitus sú mimoriadne vhodné pre rýchlu a efektívnu...

Kompozitné okná predstavujú súčasnosť a budúcnosť

Okenné profily z kompozitného materiálu RAU-FIPRO X od spoločnosti Rehau sú v porovnaní s tradičnými plastovými profilmi mnohonásobne...

Myotis - stoly 2025

Najnovší sortiment stolov pre zariadenie interiérov...

Priemyselné sklenené priečky Dorsis Digero: svetelné rozhranie pre moderné interiéry

Spojenie moderného dizajnu, funkčnosti a svetla do harmonického architektonického prvku.

Význam prirodzeného svetla pre moderné a flexibilné pracovné prostredie

Kancelárska budova Baumit v slovinskom Trzine prešla premenou na moderné a udržateľné pracovisko. Architekti kládli dôraz...

Konferencia Xella Dialóg predstaví novinky a trendy v stavebníctve

Mottom šiesteho ročníku on-line konferencie odborníkov Xella Dialóg je Efektívny návrh budov 2025+: zmeny a riešenia

Na ostrove

Rekreačná chata v podhorí Nízkych Tatier.
Diela
Red 320.05.2023
65230+60
Na ostrove
Autori: Ing. arch Martin Boleš, Ing. arch. Erika BolešováSpolupráca: Juraj Marko (statika), Pavol Ficker (tesár, majster), Ing. arch. Aleš Berec (TZB)Plocha pozemku: 4015 m2Zastavaná plocha: 94 m2Investičný náklad: 150 000 €Návrh: 2018 - 2020Realizácia: 2021 - 2022Adresa: Demänovská Dolina , SlovenskoPublikované: 20. máj 2023

Aktuálna realizácia Martina Boleša, a Eriky Bolešovej nahradila starší rekreačný objekt. Bývanie uzavreté  "od chrbta"  je na opačnej strane prostredníctvom presklenej fasády a krytej terasy v plnej miere prepojené s prírodou. Fasáda z neošetreného smrekovcového dreva a šikmá strecha s veľkým presahom ukrývajú otvorený priestor s obslužnými funkciami vloženými do kompaktných nábytkových blokov - "domčekov". Jeden z nich prepája prízemie s mostíkom a  ležoviskami  v podkroví, odkiaľ môžu (nielen) deti sledovať dianie v obývačke, alebo hviezdnu oblohu...

 

Realizáciu predstavíme so sprievodným slovom autorov:

Východisková situácia

V roku 2018 nás oslovil klient so zámerom postaviť v Demänovskej Doline rekreačnú chatu pre komerčné účely. Jeho pozemkom sa stal ostrov vzniknutý prirodzeným rozdvojením ramien potoka Demänovka. Na tomto mieste vtedy stala pôvodná drevená rekreačná chata, ktorá ale trpela každoročnými záplavami a jej technický a statický stav viac nevyhovoval bezpečnému užívaniu. Túto stavbu zakúpil klient s cieľom dať miestu novú šancu. Prvý návrh pracoval s väčším objemom stavby a viacerými samostatnými izbami. Tento sa kvôli nečakaným nákladom musel okresať do terajšej podoby, realizovanej čiastočne svojpomocne. V rodine klientov dlho panovala dilema, či stavbu budú trvalo obývať. Teraz je akýmsi rodinným letným a zimným sídlom, ktoré je v malej miere prenajímané úzkemu okruhu priateľov. 

Foto: Eva Benková

Lokalita

Pozemok kde stojí rekreačná chata je v súčasnosti v klientovom dlhodobom nájme. Klimatická kríza sa na tomto mieste prejavuje každoročným zatopením ostrova na pár dní. Aj napriek tejto výzve sa klient odhodlal postaviť na pôdoryse pôvodnej chaty novú stavbu. Parkovanie je riešené mimo ostrova pri obecnej ceste. Spevnený prístupový mostík umožňuje prístup aj osobným automobilom v prípade potreby. Táto atraktívna poloha na ostrove tak ponúka akúsi oázu zelene a pokoja s prirodzenou vodnou bariérou od denného sveta.

Foto: Matej Hakár

Architektonický koncept

Oáza “odtrhnutia“ dala návrhu celkový charakter. Zámerom bolo maximálne prepojenie s ostrovom s minimalizovaním bariér medzi interiérom a exteriérom. Toto prepojenie je citeľné vo všetkých priestoroch interiéru. Hlavná obytná časť s kuchyňou, jedálňou a obývačkou je prepojená s terasou a exteriérom sklenou stenou. Dve izby v zadnej časti stavby charakterizujú špecifické výhľady do okolia. Jedna z izieb sa nachádza priamo nad Demänovkou a druhá ponúka spojenie s druhou stranou ostrova. Akustický zážitok formuje predovšetkým šumenie potoka, ktoré je intenzívnejšie v izbe nad vodou. Nočné zvuky lesa komplexne dopĺňajú túto skúsenosť.

Presklenia umožňujú interiér zalievať prirodzených svetlom, ktorého je v doline menej. Hlavný priestor je aj prítomnosťou strešných okien celý deň dostatočne presvetlený a preslnený. Difúzne svetlo zo severu cez strešné okná dáva priestoru väčšiu hĺbku. Difúznym svetlom cez interiérové svetlíky sú presvetlené aj kúpeľne.

Výškové odsadenie domu vytvára bezpečnú úroveň pre konštrukcie v prípade jarných záplav. Vyvýšená vonkajšia terasa nadväzuje výškovo na úroveň interiéru. “Záhradu“ domu tvorí prirodzené okolie živej a neživej zložky prírody. Ako sokel domu slúžia balvany privalené a prenesené potokom. Takto dom vrastá do svojho bezprostredného okolia.  

Dom tvaruje charakter klimatických podmienok, v ktorých sa nachádza. Dlhé zimy sú sprevádzané intenzívnou snehovou pokrývkou a domu preto dominuje nízka sedlová strecha s veľkými presahmi. Terasa je týmto presahom čiastočne prekrytá a ponúka v tejto časti útočisko v prípade dažďa. 

Prvky interiéru sú formované do charakteru autonómnych blokov alebo “domčekov” osadených do priestoru v čo najviac možnej miere nezávislosti od obvodového plášťa. Tento princíp pomáha navodiť pocit objemnejšieho priestoru. 

Foto: Matej Hakár
Foto: Eva Benková
Foto: Matej Hakár
Foto: Eva Benková
Foto: Eva Benková
Pôvodný objekt na mieste chaty
Pôvodný objekt na mieste chatyFoto: Martin Boleš
Situácia
Situácia

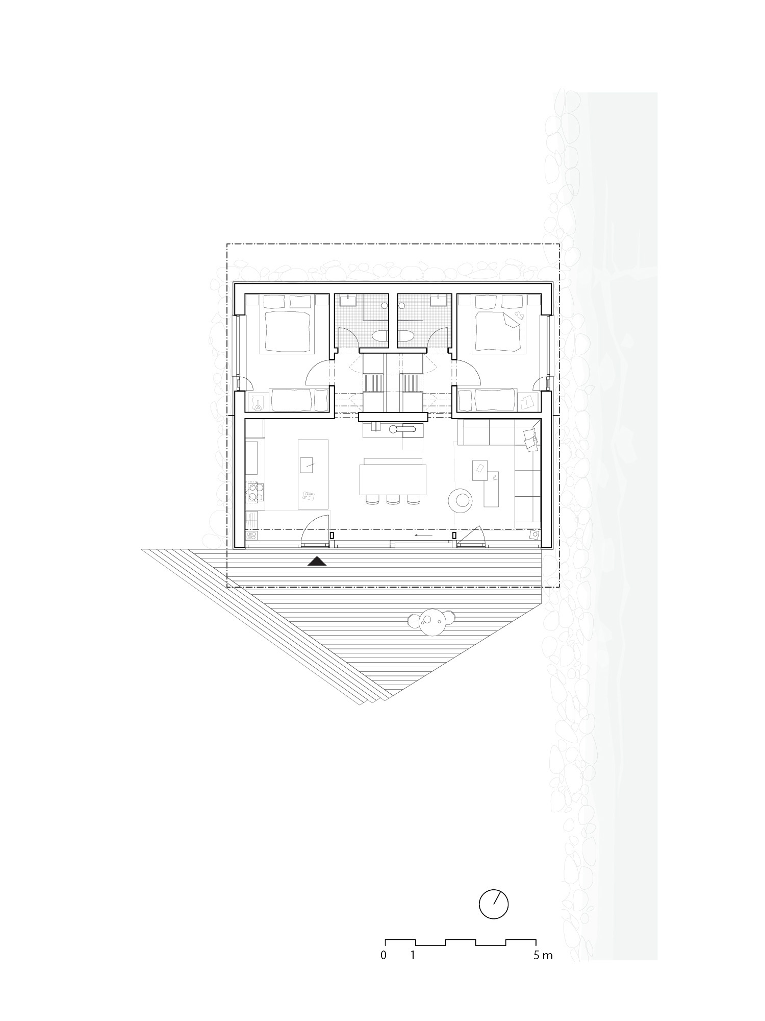
Dispozičné riešenie

Na pozemok sa vstupuje zo západnej strany cez potok, po mostíku. Z ostrova sa do domu dostaneme cez schodiskové platformy južne orientovanej terasy. Chata nemá typické zádverie a je riešené ako súčasť kuchyne. Z terasy vchádzame na priestor vymedzený jedným kusom vyhrievaného žulového kameňa, ktorý slúži ako zádverie pre odloženie obuvi a kabátov. Kuchynský ostrov usmerňuje pohyb smerom cez kuchyňu do celého obytného priestoru. 

Obytnému priestoru okrem obnaženej konštrukcie dominuje aj centrálne umiestnený kuchynský stôl ako aj akumulačná pec s komínom. Na opačnej strane priestoru je sedačka s výhľadom do exteriéru. Nižšia úroveň horizontu v tejto časti ponúka lepší prehľad o dianí na ostrove.

Z obytného priestoru sú symetricky postranne prístupné dve samostatné nočné jednotky so svojimi kúpeľňami a izbami. Priestor kúpeľní je minimálny ale otvára sa vo vertikálnom smere, odkiaľ do neho prichádza aj prirodzené svetlo. Izby po stranách domu môžu od seba nezávisle fungovať a ponúkajú priestor pre dvoch dospelých a jednu prístelku. 

V tejto časti sa nachádzajú tzv. domčeky, ktoré majú rôzne využitie. Sú buď úložným, prípadne komunikačným priestorom alebo technickou miestnosťou vertikálneho charakteru. V dome nie je iná ďalšia technická miestnosť. Prepojenie s horným ležoviskom tvorí stredný “domček”, v ktorom sa nachádza obojstranný rebrík ako súčasť možnej hry. 

Cez kruhový otvor v hornej časti domčeka sa lezením dostaneme na “mostík”, ktorý spája obe strany ležoviska. Mostík je jediným priestorom ležoviska, kde sa vystrie aj dospelý človek. Samotné ležoviská sú nízkymi priestormi s výhľadmi na hviezdnu oblohu. Ležoviská nie sú typické obytné izby ale ponúkajú hravou formou možnosť objavovať chatu a ľubovoľne ju využívať. Sú primárne určené pre detských užívateľov ale aj prístupné ostatným. V tejto časti chaty je možné využiť jej priestor v polohe pozorovateľa s prehľadom o dianí v ňom.

Pôdorys
Pôdorys

Konštrukčno-materiálové riešenie

Stavba je založená na pásových železobetónových základoch stužených doskou. Nadzemná stavba je konštruovaná ako drevená stĺpiková konštrukcia vyplnená minerálnou vlnou. Zvislé obvodové steny sú stužené OSB doskami, ktoré zároveň slúžia ako parozábrana z interiéru. Drevovláknité dosky z exteriéru dopĺňajú difúzne otvorenú skladbu steny, ktorá je ukončená prevetrávanou fasádou z neošetreného červeného smreku. Otvorenie chaty do exteriéru umožňujú oceľové nosné stĺpiky začlenené do presklenej steny. 

Jedinou zvislou konštrukciou realizovanou mokrým stavebným procesom je stredová nosná stena z plnej pálenej tehly omietnutej hlinenou omietkou. Tá slúži aj ako suplementárna akumulačná vrstva k akumulačným kachliam. 

Stropy v izbách sú tvorené priznanou trámovou konštrukciou s minimálnou skladbou podlahy nad ňou. Kročajová izolácia je tu riešená drevovláknitou doskou. Mostík medzi hornými ležoviskami tvoria tri vedľa seba položené drevené trámy pripomínajúce jednoduché konštrukcie lávok cez potoky. 

Sedlová strecha je konštrukčne riešená ako stojatá stolica s vrcholovou väznicou. Tá je postavená na jednom z dominantných prvkov interiéru, kvázi priehradovom väzníku, so zošikmenými stĺpmi. Tie oddeľujú priestor ležoviska od hlavného priestoru na prízemí. Výplň medzi stĺpmi tvorí sieť, ktorá slúži aj ako ochrana proti pádu. Samotné krokvy zavetrené pohľadovými biodoskami sú v interiéri priznané, definujú a dávajú stavbe charakter. Ich osový rozostup určuje rozmer samotnej biodosky, ktorý je odlišný od OSB dosiek. Parozábrana je riešená v tejto rovine parotesnou fóliou v skladbe strechy. Tá je vyplnená minerálnou vlnou na dosiahnutie požadovaných tepelno-technických parametrov. Riešenie priznanej nosnej konštrukcie v strešnej rovine bolo pre stavbu v daždivej Demänovskej Doline náročné plánovať a realizovať. Zámer bol ale nepridávať do interiéru nefunkčnú dekoračnú vrstvu.

Vnútorná pohľadová vrstva zvislých obvodových konštrukcií je tvorená trojvrstvovou smrekovou biodoskou, za ktorou sú vedené elektrické vedenia. Drevo je použité vo veľkej miere na všetkých povrchoch. Povrchy sú ale rôzne ošetrené, čo dáva jednotlivých plochám hierarchiu. Obvodové konštrukcie, vrátane stropu, sú ošetrené iba voskovým transparentných olejom. Priľahlé steny uzatvárajúce izby po stranách sú ošetrené bieleným voskovým olejom. Kúpeľňový blok opäť transparentným olejom. 

Drevená podlaha je realizovaná z červeného smreka (smrekovca). Tiež je v tónovom kontraste k ostatným povrchom konštrukcií. Okrem drevenej podlahy je v dome v časti zádveria použitý jednokusový žulový kameň. Mokré priestory kúpeľní sú obložené keramickou bielou mozaikou. 

Drevená fasáda dáva chate charakter miestnych malých rekreačných stavieb v novom prevedení. V časti sokla sa nachádzajú navozené balvany. Strechu tvorí falcovaná plechová krytina vyhotovená spolu s klampiarskymi výrobkami v svetlo šedej metalíze. Terasa je vrátane konštrukcií realizovaná z červeného smreka. 

Rez
Rez
Pohľad
Pohľad
Pohľad
Pohľad
Foto: Eva Benková
Foto: Eva Benková
Foto: Eva Benková
Foto: Eva Benková
Foto: Eva Benková
Foto: Eva Benková
Foto: Eva Benková
Foto: Eva Benková
Foto: Eva Benková
Foto: Eva Benková
Foto: Eva Benková
Foto: Eva Benková
Foto: Matej Hakár
Foto: Matej Hakár
Foto: Matej Hakár
Foto: Matej Hakár
Foto: Matej Hakár

Technologické riešenie

Zdrojom tepla v chate na ostrove je kombinácia centrálne umiestnenej akumulačnej pece, elektrického podlahového vykurovania odporovými drôtmi v kúpeľniach a zádverí, olejových elektrických radiátorov a pasívnych ziskov v zimných mesiacoch cez južné presklenie. Príprava teplej vody je v centrálnom elektrickom bojleri umiestnenom v jednom z domčekov. 

Všetky miestnosti, vrátane izieb je možné prirodzene vetrať. V krajných izbách je za prevetrávanou fasádou ukryté sklopno-otváravé krídlo okna. Ukrytím vetracieho krídla za fasádu získali viditeľné štvorcové okná dominantný charakter.

Podklady: Martin Boleš
Fotografie: Matej Hakár a Eva Benková

Poloha diela

Ing. arch Martin Boleš
Ing. arch. Erika Bolešová

Súvisiace články

Matej HakárSKBratislava
Ing. arch Martin BolešSKStará Ľubovňa
Vložené
18. máj 2023
0
6523
Hlavný obsahHlavný obsah
Čakajte prosím