Advertorial

Pozvánka na 2. ročník stavebného veľtrhu BigMarket na Slovensku

Na podujatí sa predstaví až 37 vystavovateľov - popredných dodávateľov stavebných materiálov a inovácií s prezentáciou...

Hotel Hirschen Spa House, Rakúsko

Novotvar v prostredí alpskej obce.

Vytvorte si kúpeľňu snov: dizajnové riešenie od značky hansgrohe

Hansgrohe - prémiová značka kúpeľňových riešení, ponúka nadčasový dizajn, technickú precíznosť a udržateľné inovácie...

Okná Internorm za minuloročné ceny + hliníkový kryt zdarma!

Využite špeciálnu akciu Internorm: okná za minuloročné ceny a hliníkový kryt úplne zadarmo. Ponuka je časovo obmedzená!

Moderné plynové technológie: Efektivita a inovácie pre 21. storočie

Sumarizácia najdôležitejších inovácií, ktoré redefinujúcich využitie tohto energetického zdroja.

Utesňovanie spodných stavieb pomocou hydro-aktívnej fólie AMPHIBIA.

AMPHIBIA 3000 GRIP 1.3 od spoločnosti ATRO predstavuje modernú hydroizolačnú technológiu, ktorá spája vysokú odolnosť,...

Dekarbonizácia individuálneho vykurovania domácností – Green Deal evolučne a nie revolučne

Ambiciózne plány EK narazili na ekonomické možnosti domácností v jednotlivých členských štátoch –...

Minimalistické dvere IDEA – technická precíznosť a čistota prevedenia

IDEA DOOR od spoločnosti JAP prináša do interiéru čistý minimalistický vzhľad vďaka bezrámovému riešeniu a precíznej...

Dom s výhľadom na údolie, Dlouhý Most (ČR)

Kontinuita riešenia od vonkajšieho obkladu až po kovania a kľučky.

Schell Vitus – osvedčené riešenie pre sprchy a umývadlá vo verejnom sektore s viac ako desaťročnou tradíciou

Nástenné nadomietkové armatúry Vitus sú mimoriadne vhodné pre rýchlu a efektívnu...

Kompozitné okná predstavujú súčasnosť a budúcnosť

Okenné profily z kompozitného materiálu RAU-FIPRO X od spoločnosti Rehau sú v porovnaní s tradičnými plastovými profilmi mnohonásobne...

Myotis - stoly 2025

Najnovší sortiment stolov pre zariadenie interiérov...

Priemyselné sklenené priečky Dorsis Digero: svetelné rozhranie pre moderné interiéry

Spojenie moderného dizajnu, funkčnosti a svetla do harmonického architektonického prvku.

Význam prirodzeného svetla pre moderné a flexibilné pracovné prostredie

Kancelárska budova Baumit v slovinskom Trzine prešla premenou na moderné a udržateľné pracovisko. Architekti kládli dôraz...

Konferencia Xella Dialóg predstaví novinky a trendy v stavebníctve

Mottom šiesteho ročníku on-line konferencie odborníkov Xella Dialóg je Efektívny návrh budov 2025+: zmeny a riešenia

Čakáreň v Národnom onkologickom ústave v Bratislave

Aj výskum, aj architektúra, aj príroda, aj prvok prekvapenia. Práca z výskumného pracoviska Fakulty architektúry pre dizajn zacielený na človeka.
Diela
Red 309.07.2017
29520+21
Čakáreň v Národnom onkologickom ústave v Bratislave
Autori: Ing. arch Martin Boleš, Doc. Ing. Veronika KotradyováNávrh: 2015 - 2016Realizácia: 2016 - 2017Adresa: Klenová 833 10 3019/1, Bratislava , SlovenskoPublikované: 9. júl 2017

Revitalizácia čakárne v Národnom onkologickom ústave (NOU) na Klenovej ulici v Bratislave je súčasťou výskumného projektu "Interakcia človeka a dreva" Ústavu interiéru a výstavníctva na Fakulte architektúry STU v Bratislave a BCDlab. Pilotnou intervenciou vedeckej štúdie "Drevo v nemocničnom prostredí", ako súčasti výskumného projektu Interakcia človeka a dreva, bola architektonická štúdia revitalizácie vestibulu a čakárne Národného onkologického ústavu v Bratislave na Klenovej ulici.

V rámci projektu bola pilotne realizovaná jeho prvá časť - čakáreň pri ambulanciách Kliniky klinickej onkológie v pavilóne M. Bol realizovaný v októbri a novembri 2016, pričom bol inštalovaný obklad steny a stropu z borovice a sedenie zo smrekovcových trámov. Prvé tri mesiace, počas ktorých boli preskúmané estetické, haptické, somatické, prevádzkovo-hygienické, olfaktorické a gustatorické vlastnosti dreva a pôvod atraktívnosti dreva pre človeka, boli drevené povrchy bez chemického ošetrenia. Zvláštna pozornosť bola venovaná jeho antimikróbnym účinkom a schopnosti regulovať množstvo mirkoroganizmov a prchavých organických látok (VOC) v ovzduší, ktoré boli overované v reálnych nemocničných interiéroch.

Foto: Noro Knap
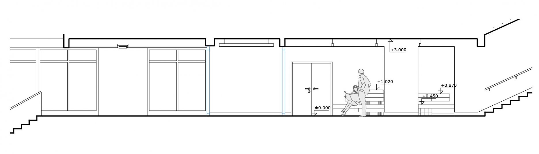
Pôdorys
Pôdorys
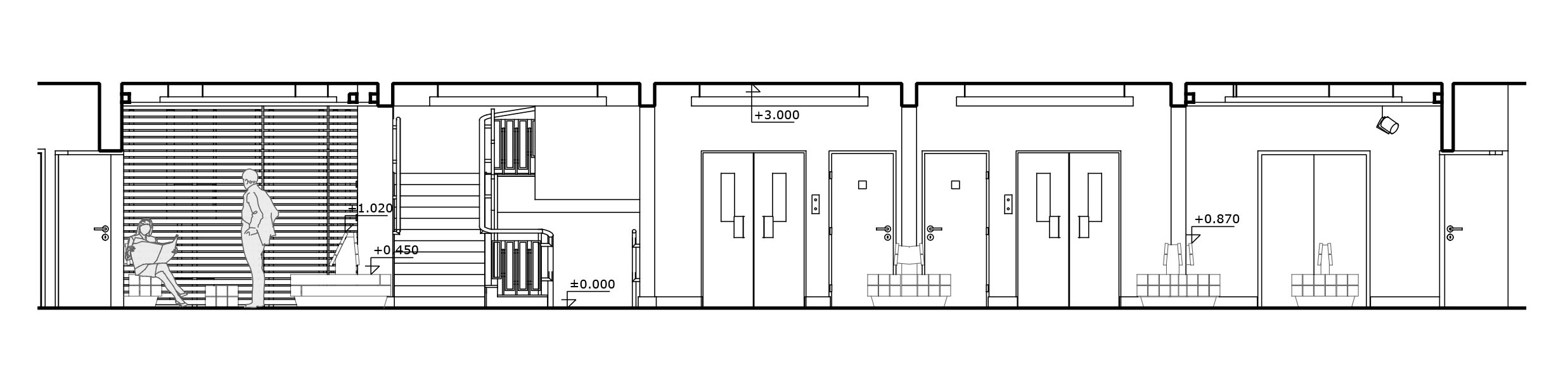
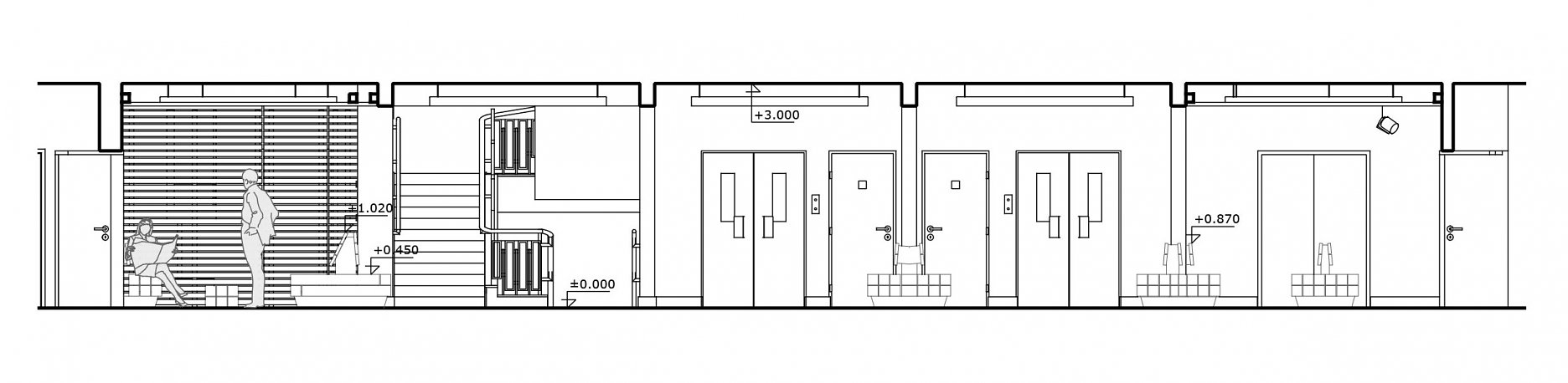
Rez x-x
Rez x-x
Rez y-y
Rez y-y
Rez z-z
Rez z-z

Prostredie vytvorené z prírodných materiálov (najmä dreva) má regeneratívny účinok pre nervový systém, čím pomáha vytvárať podporné prostredie pre znižovanie stresu a urýchlenie liečiaceho procesu u pacientov, o čom svedčia viaceré svetové štúdie. Na základe výskumov environmentánej psychológie a vedeckých definícií „Prostedia upevňujúceho zdravie“ (z ang. Restorative Environmental Design - RED) sme do interiéru čakárne doviezli obrovské množstvo masívnych drevených hranolov, ktoré majú pacientom evokovať pocit pobytu v exteriéri.

Náklonnosť k prírodným materiálom a prírodu evokujúcim riešeniam, ktorá v súčasnosti vo vedeckých kruhoch dostala názov biofília, funguje na kultúrnej aj živočíšnej úrovni človeka. Náš nervový systém prírodné materiály a riešenia pozná, sú mu inštinktívne blízke a určitým spôsobom aj príbuzné, nemusí ich „skanovať“. Pripomínajú mu prežitie a celé telo sa tak pri nich môže uvoľniť. Na socio-kultúrnej úrovni človeka prebieha táto inklinácia prostredníctvom zdieľania kultúrnych archetypov, pretože prírodné materiály sú súčasťou našej tradičnej kultúry. Aj keď ich dočasne vytláčajú rôzne novinky, stavebná a bytová kultúra sa k nim vždy rada vracia, pretože sú nadčasové.

Zmysluplné použitie dreva a iných domácich prírodných dorastajúcich materiálov pri tvorbe prostredia je súčasťou well-being fenoménu. Schopnosť "človeka rozumného" spracovať prírodné materiály na vytvorenie príbytkov a nástrojov mu pomohla prežiť a byť evolučne úspešným. Inklinácia k nim je tak evolučne aj kultúrne podložená. Preto má aj kontakt, alebo interakcia s drevom regeneratívny účinok, či už ide o živé stromy, alebo zabudované výrobky z dreva.

Na to, aby sa stereotypy a s nimi spojené hygienické predpisy týkajúce sa údržby zmenili, je potrebné vytvoriť príležitosti pre použitie dreva v reálnom hygienicky exponovanom prostredí. Preto sa od roku 2015 snažíme o spolupráce na projektoch revitalizácií nemocničných priestorov a na kvalitnom dizajne vedecky dokázať, že drevo a ostatné prírodné materiály vo svojej autentickej podobe majú svoje miesto minimálne v poloverejných a verejných zónach, ako sú čakárne či odpočinkové miestnosti.

Viac o celej štúdii nájdete na stránkach BCD Lab, výskumného pracoviska Fakulty architektúry pre dizajn s ohľadom na človeka.

Foto: Noro Knap
Foto: Noro Knap
Foto: Noro Knap
Foto: Noro Knap
Foto: Noro Knap
Foto: Noro Knap
Foto: Noro Knap
Foto: Noro Knap

Súčasťou čakárne je aj umelecké dielo Príbeh stromu. 

Umelecký objekt na stene je vyrobený zo zvyškov hranolov použitých na výrobu lavičiek v tejto časti vestibulu. Príbeh stromu, ktorý je jeho súčasťou, bol napísaný na základe dendrochronologickej analýzy.

V letokruhoch vieme prečítať celý život stromu. Sú obrazom toho, že v živote stromu ako aj človeka sú dobré aj horšie časy. V mladosti rastie strom najrýchlejšie, v zrelom veku stále pomalšie. Keď je dobré počasie - teplo, vlhko a dostáva sa mu dostatok slnka, priestoru a ochrany, môžu mať jeho ročné prírastky - letokruhy aj centimeter. Za nepriaznivých podmienok rastie strom pomalšie, prírastky sú malé a letokruhy husté. Strom to ale v konečnom dôsledku posilní a drevo vznikajúce za takých podmienok je mimoriadne pevné.

Myšlienkou je poukázať na to, že sme so stromami a drevom prepojení a máme veľa spoločného.

Autormi objektu sú Veronika Kotradyová a Martin Mjartan v spolupráci Martinom Bolešom a Wandou Borysko z Fakulty architektúry STU v Bratislave

Foto: Noro Knap
Foto: Noro Knap

Vizualizácie čakárne:

Vizualizácia: Martin Boleš
Vizualizácia: Martin Boleš

Podklady: Martin Boleš

Poloha diela

Ing. arch Martin Boleš
Doc. Ing. Veronika Kotradyová
Vložené
7. júl 2017
0
2952
Hlavný obsahHlavný obsah
Čakajte prosím