Novotvar v prostredí alpskej obce.
Hansgrohe - prémiová značka kúpeľňových riešení, ponúka nadčasový dizajn, technickú precíznosť a udržateľné inovácie...
Využite špeciálnu akciu Internorm: okná za minuloročné ceny a hliníkový kryt úplne zadarmo. Ponuka je časovo obmedzená!
Na podujatí sa predstaví až 37 vystavovateľov - popredných dodávateľov stavebných materiálov a inovácií s prezentáciou...
Sumarizácia najdôležitejších inovácií, ktoré redefinujúcich využitie tohto energetického zdroja.
AMPHIBIA 3000 GRIP 1.3 od spoločnosti ATRO predstavuje modernú hydroizolačnú technológiu, ktorá spája vysokú odolnosť,...
Ambiciózne plány EK narazili na ekonomické možnosti domácností v jednotlivých členských štátoch –...
IDEA DOOR od spoločnosti JAP prináša do interiéru čistý minimalistický vzhľad vďaka bezrámovému riešeniu a precíznej...
Kontinuita riešenia od vonkajšieho obkladu až po kovania a kľučky.
Nástenné nadomietkové armatúry Vitus sú mimoriadne vhodné pre rýchlu a efektívnu...
Okenné profily z kompozitného materiálu RAU-FIPRO X od spoločnosti Rehau sú v porovnaní s tradičnými plastovými profilmi mnohonásobne...
Najnovší sortiment stolov pre zariadenie interiérov...
Spojenie moderného dizajnu, funkčnosti a svetla do harmonického architektonického prvku.
Kancelárska budova Baumit v slovinskom Trzine prešla premenou na moderné a udržateľné pracovisko. Architekti kládli dôraz...
Mottom šiesteho ročníku on-line konferencie odborníkov Xella Dialóg je Efektívny návrh budov 2025+: zmeny a riešenia
Korene výstavy siahajú do roku 2016, kedy fotografický ateliér Boys Play Nice oslovila lesnícka firma s požiadavkou na novú vizuálnu identitu. V priebehu jedného roku fotografovali oblasti spojené s lesným hospodárstvom a postupne pochopili a zachytili cestu dreva od "semiačka po dosku". V januári 2017 sa autori začali zaoberať myšlienkou predstaviť projekt formou výstavy. S pomocou ateliéru Mjölk vznikla na pôde pražského Národného poľnohospodárskeho múzea výstava, ktorá zachytáva život hospodárskeho lesa. Výstava spája odbornú problematiku s dobrou architektúrou a fotografiou.
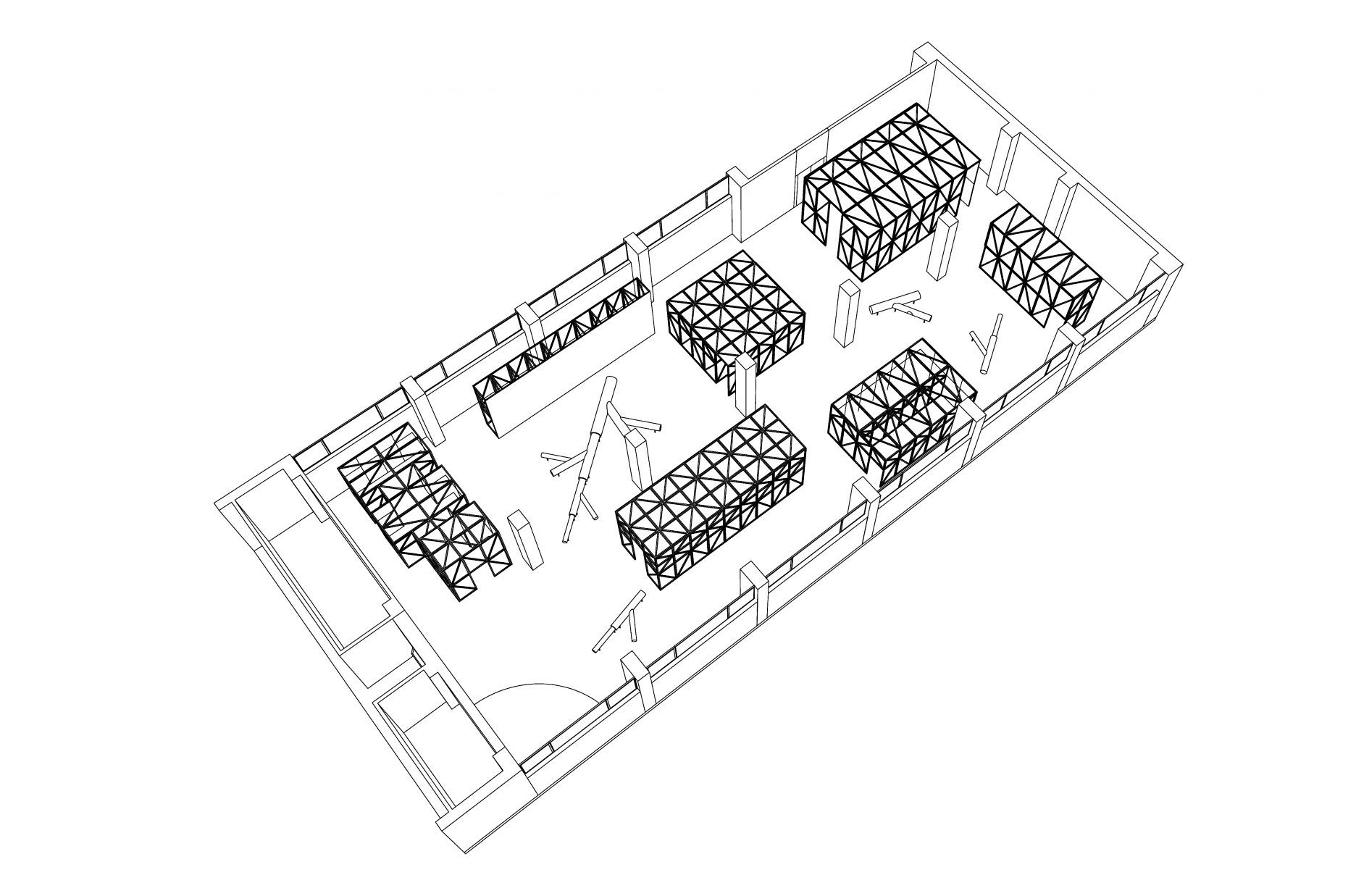
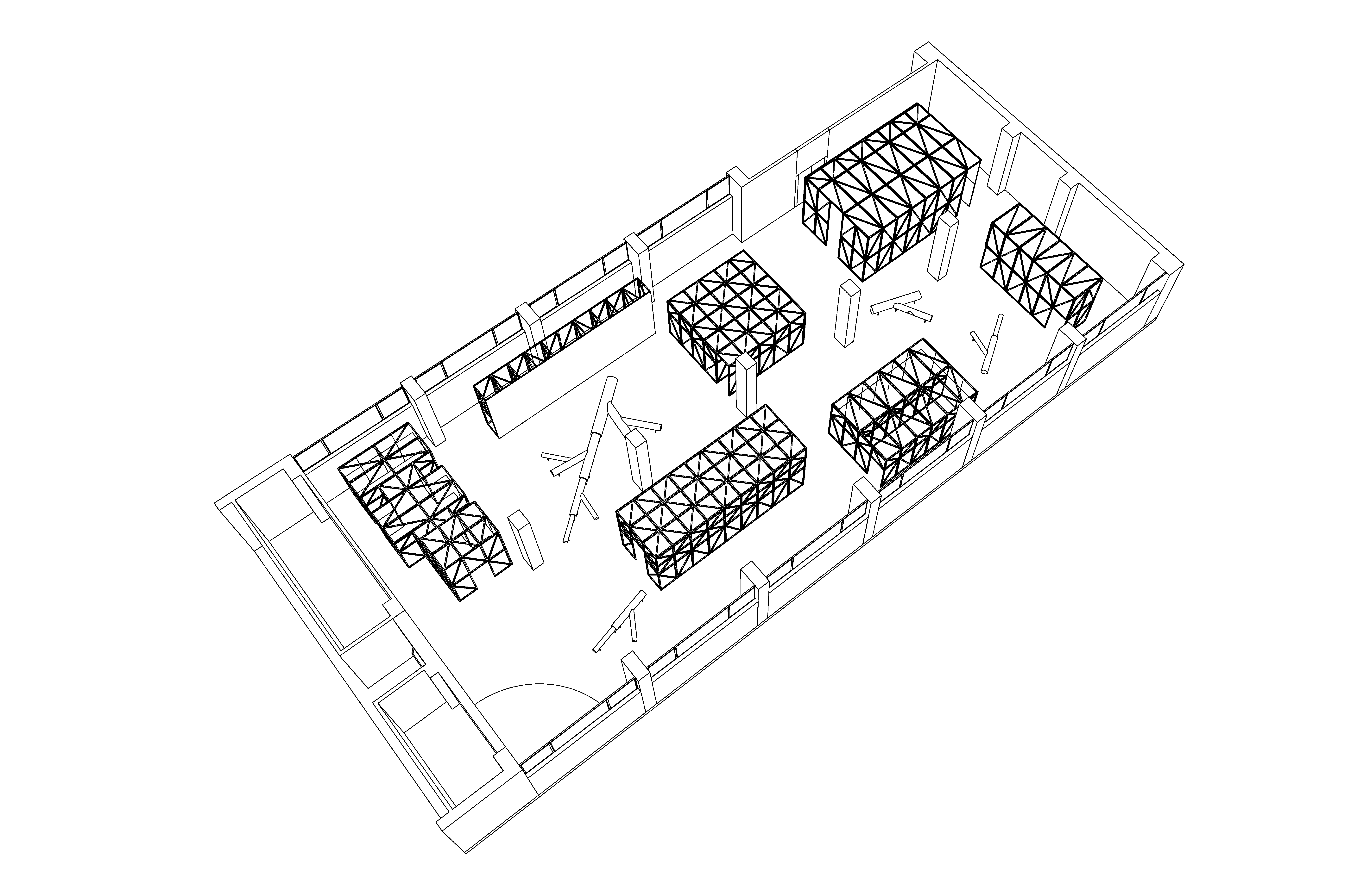
"Expozice výstavy zahaluje jednotlivé tematické okruhy fotografií do samostatných prostředí, které ve společném kompozičním celku vytvářejí vnější obal výstavy. Toto dvojí prostředí neukazuje divákovi obrazový materiál najednou, ale zachovává pro každé téma intimní prostor a společně s doplňkovými elementy expozice tvoří inscenovaný celek," objasňujú koncept autori architektonického riešenia výstavy.

Rôznorodá vnútorná atmosféra výstavných "buniek" dopĺňa vystavované tematické celky. Objekty sú poskladané z prefabrikovaných drevených panelov. Rámy sú potiahnuté netkanou textíliou. Farba geotextílie zodpovedá priamemu určeniu panela. Čierna slúži ako podklad pre podsvietené nočné fotografie, biela pre inštalácie s difúznym či priamym osvetlením.
Inštalácia zložená z ľahkých panelov rozbíja výstavný priestor do "urbanizovaného prostredia". Rámová štruktúra panelov sa rytmicky opakuje a dáva výstavnej hale ľudskú mierku.
Okrem vystavených fotografií, sú súčasťou výstavy aj doplnkové inštalácie, ktoré slúžia ako mobiliár alebo stavebnica pre najmladších návštevníkov.
Výstava Dělat les vychádza zo súčasného stavu lesného hospodárstva. Predstavuje hlavné momenty lesnej výroby, starostlivosti o les a ťažbu. Obrazový materiál k výstave vznikal počas jedného roka. Stal sa časovou komprimáciou storočného cyklu lesa. Zachytáva proces pestovania sadenice, moment výrubu, prerod stromu na materiál dreva. Výstava odráža kultúrne chápanie lesa. Predstavuje les z pohľadu ľudských hodnôt - les hospodársky.
Výber z vystavených fotografií:
Koncepcia výstavy:
Jakub Skokan, Martin Tůma, Vendula Tůmová - BoysPlayNice
Vojtěch Dorňák, Luděk Szórád - Kloboucká lesní
Jan Mach, Jan Vondrák - Mjölk architekti
Fotografie:
Jakub Skokan, Martin Tůma
Kurátorka výstavy:
Vendula Tůmová
Architektonické riešenie:
Jan Vondrák, Jan Mach
Grafické riešenie:
Lenka Mičolová
Realizácia a inštalácia výstavy:
Radim Černín
Vebová stránka výstavy: www.delatles.cz