Objavte riešenia Dorsis, ktoré spájajú minimalistický vzhľad s vysokou variabilitou, funkčnosťou a spracovaním na mieru.
Súčasné bývanie v prostredí budapeštianskej vilovej štvrte.
Moderné strešné okná ponúkajú pohodlné ovládanie aj lepšiu ochranu domácnosti počas celého roka.
Rad interiérových dverí DIVA DOOR od spoločnosti J.A.P. ponúka čistý dizajn a variabilné riešenia pre súčasné interiéry.
REHAU Window Solutions na veľtrhu Fensterbau Frontale 2026
Sortiment Slim Line zahŕňa pestrý výber dekorov a textúr.
Európska značka okien oslavuje jubileum: za 95 rokov sa vyvinula na najväčšiu medzinárodne pôsobiacu okennú značku a inovačného...
Na podujatí sa predstaví až 37 vystavovateľov - popredných dodávateľov stavebných materiálov a inovácií s prezentáciou...
Novotvar v prostredí alpskej obce.
Hansgrohe - prémiová značka kúpeľňových riešení, ponúka nadčasový dizajn, technickú precíznosť a udržateľné inovácie...
Využite špeciálnu akciu Internorm: okná za minuloročné ceny a hliníkový kryt úplne zadarmo. Ponuka je časovo obmedzená!
Sumarizácia najdôležitejších inovácií, ktoré redefinujúcich využitie tohto energetického zdroja.
AMPHIBIA 3000 GRIP 1.3 od spoločnosti ATRO predstavuje modernú hydroizolačnú technológiu, ktorá spája vysokú odolnosť,...
Ambiciózne plány EK narazili na ekonomické možnosti domácností v jednotlivých členských štátoch –...
IDEA DOOR od spoločnosti JAP prináša do interiéru čistý minimalistický vzhľad vďaka bezrámovému riešeniu a precíznej...

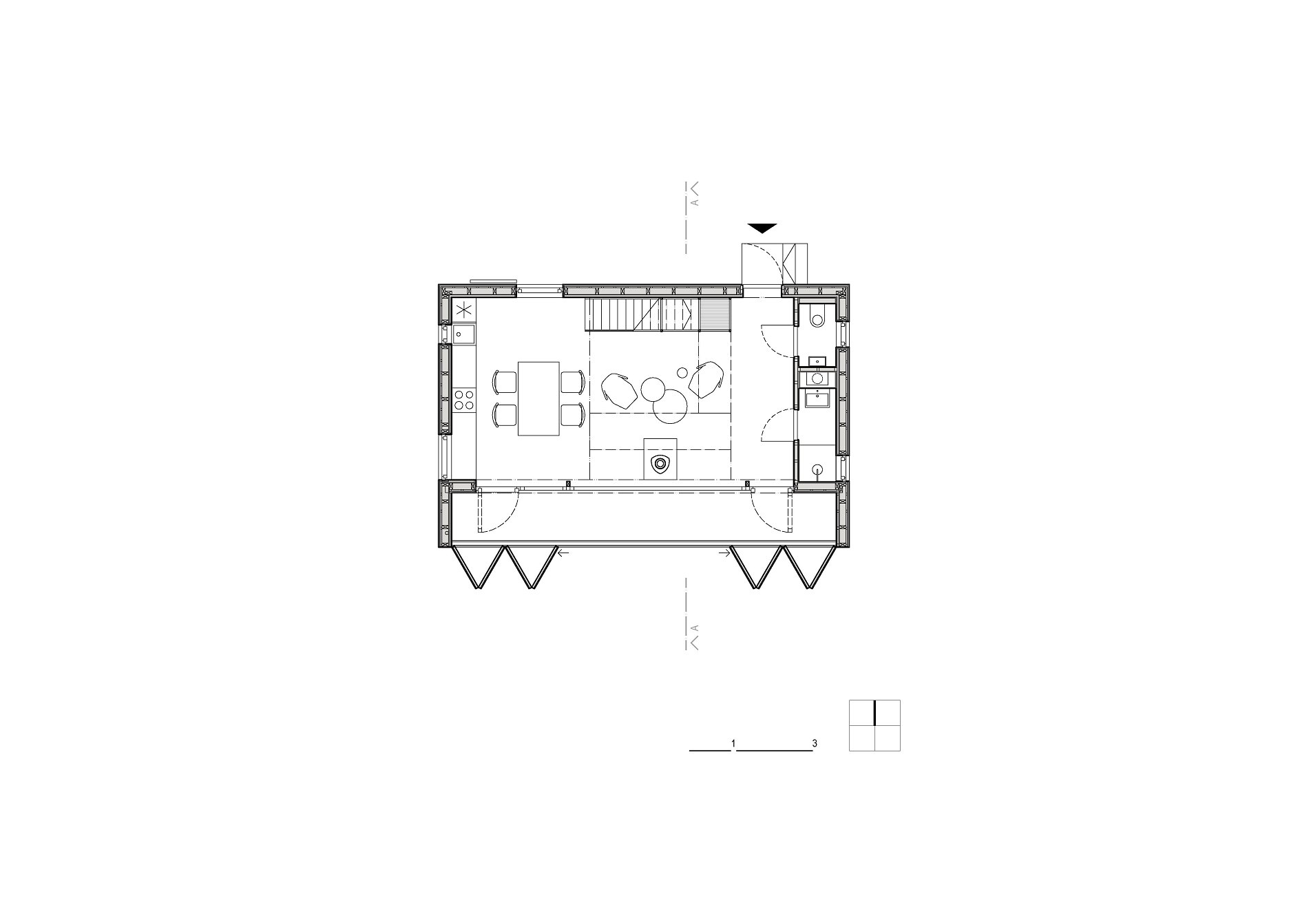
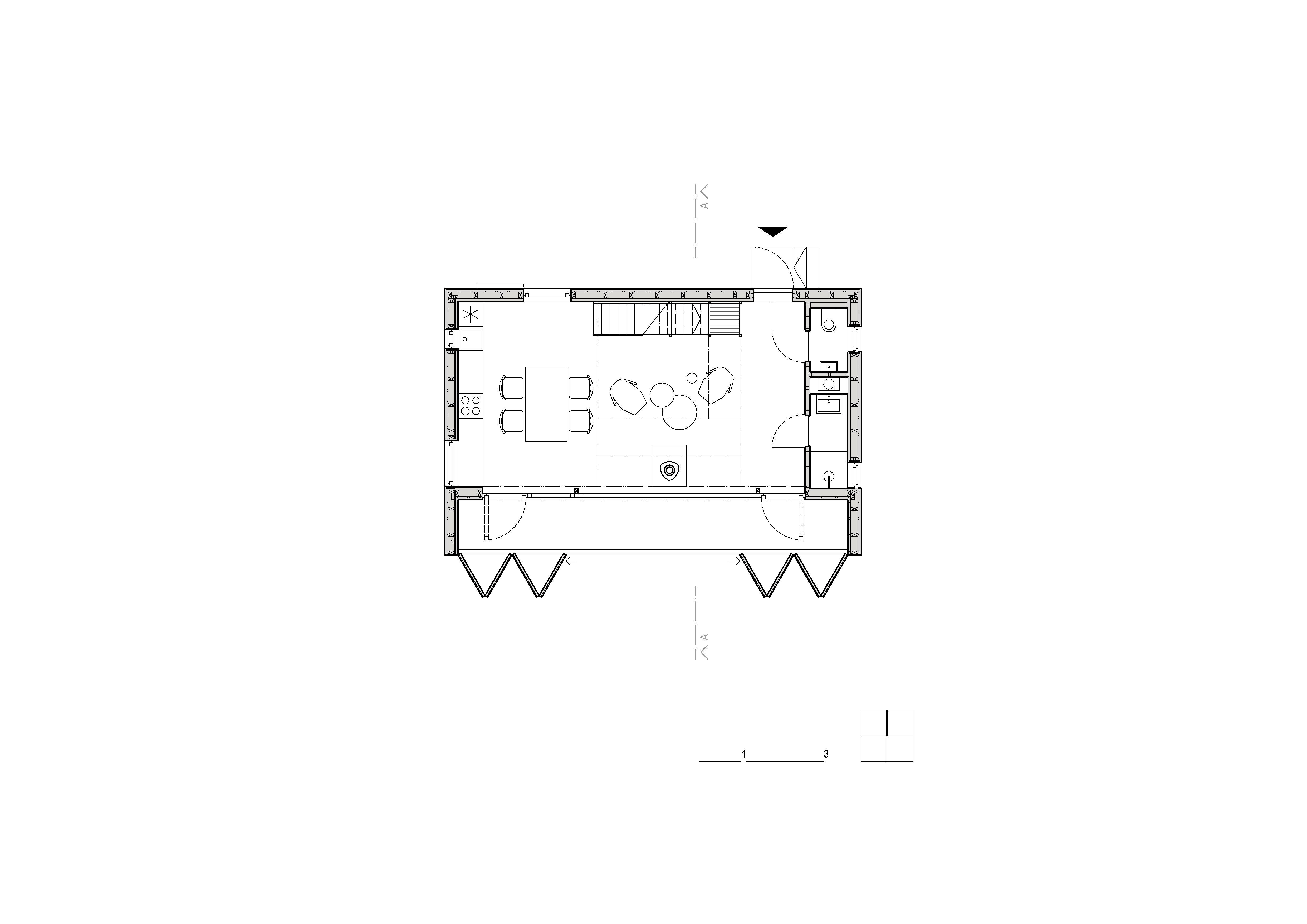
Chata na brehu Sázavy nahrádza svoju predchodkyňu na rovnakom mieste.
Z pôvodnej chaty zostala po požiari len kamenná podmurovka, ktorú nová stavba prirodzeným spôsobom využíva. Poskytuje jej ochranu pred povodňami a podľa slov autorov z pražského ateliéru Mimosa architekti aj nadhľad nad riekou a možno aj nad každodenným zhonom. Stačí odsunúť okenice, ktoré otvárajú chatu smerom k rieke, a potom už len počúvať šum borovíc a pozorovať rieku.
Stavbu tvorí ľahká drevená konštrukcia, osadená na spomínanej robustnej podmurovke. Drevený skelet je z interiéru opláštený smrekovou biodoskou, zvonka fasádou z opálených smrekovcových dosiek. Smerom k svahu za chatou je objekt opláštený falcovaným plechom, odolným voči vode stekajúcej zo strechy.
Interiér pôsobí vďaka jednotnému materiálovému a farebnému riešeniu ako jednotný celok, bez jasnej hranice medzi domom a nábytkom. Tento dojem vytvára najmä biodoska v prírodnom odtieni v kombinácii s čiernym kovom. Ten sa objavuje na krbových kachliach, schodisku aj ďalších prvkoch interiéru a prirodzene nadväzuje na tmavú fasádu. Odolná podlaha z prírodného kaučuku s kamenným vsypom zároveň umožňuje plynulý pohyb medzi interiérom chaty a jej okolím.
Chata je s výnimkou elektriny samostatnou jednotkou. Vodou je zásobovaná zo studne na pozemku, odpadové vody sú zachytávané v nádrži v podmurovke objektu. Vykurovanie zabezpečujú krbové kachle a elektrické konvektory.
Veľkorysosť hlavného priestoru umožnila minimalizácia izieb na poschodí na malé, ale postačujúce priestory na prespanie. Spoločný priestor cez celú výšku chaty prepája priestor pred ňou aj za ňou, rieku aj skaly. Smerom k rieke je hlavný priestor po celej dĺžke presklený, nadväzujúca terasa vyzdvihnutá nad terén nahrádza kontakt so zemou a ponúka nerušený výhľad na Sázavu. Terasu možno uzavrieť harmonikovou okenicou, či už vtedy, keď letné slnko páli príliš ostro, alebo keď sa víkend končí a otvorený dom sa mení na uzavretú, „nedobytnú“ schránku. Tak zasa o týždeň…
Materiály:
Ateliér: Mimosa architekti
Podklady: Linka
Fotografie: Petr Polák