Na podujatí sa predstaví až 37 vystavovateľov - popredných dodávateľov stavebných materiálov a inovácií s prezentáciou...
Novotvar v prostredí alpskej obce.
Hansgrohe - prémiová značka kúpeľňových riešení, ponúka nadčasový dizajn, technickú precíznosť a udržateľné inovácie...
Využite špeciálnu akciu Internorm: okná za minuloročné ceny a hliníkový kryt úplne zadarmo. Ponuka je časovo obmedzená!
Sumarizácia najdôležitejších inovácií, ktoré redefinujúcich využitie tohto energetického zdroja.
AMPHIBIA 3000 GRIP 1.3 od spoločnosti ATRO predstavuje modernú hydroizolačnú technológiu, ktorá spája vysokú odolnosť,...
Ambiciózne plány EK narazili na ekonomické možnosti domácností v jednotlivých členských štátoch –...
IDEA DOOR od spoločnosti JAP prináša do interiéru čistý minimalistický vzhľad vďaka bezrámovému riešeniu a precíznej...
Kontinuita riešenia od vonkajšieho obkladu až po kovania a kľučky.
Nástenné nadomietkové armatúry Vitus sú mimoriadne vhodné pre rýchlu a efektívnu...
Okenné profily z kompozitného materiálu RAU-FIPRO X od spoločnosti Rehau sú v porovnaní s tradičnými plastovými profilmi mnohonásobne...
Najnovší sortiment stolov pre zariadenie interiérov...
Spojenie moderného dizajnu, funkčnosti a svetla do harmonického architektonického prvku.
Kancelárska budova Baumit v slovinskom Trzine prešla premenou na moderné a udržateľné pracovisko. Architekti kládli dôraz...
Mottom šiesteho ročníku on-line konferencie odborníkov Xella Dialóg je Efektívny návrh budov 2025+: zmeny a riešenia

Aktuálna realizácia ateliéru plusminusarchitects na hranici novej zástavby Devína. Architektonický koncept využíva potenciál komplikovanej svahovitej parcely a prostredníctvom rozsiahlych presklenných plôch a terás otvára bývanie do zelene. Kompaktné uličné fasády s tmavým cédrovým obkladom ukrývajú vertikálne plynúci obytný priestor, prepojený subtílnym oceľovým schodiskom až k strešnej vyhliadke.
Viac slovami Maroša Fečíka a Filipa Kandravého:
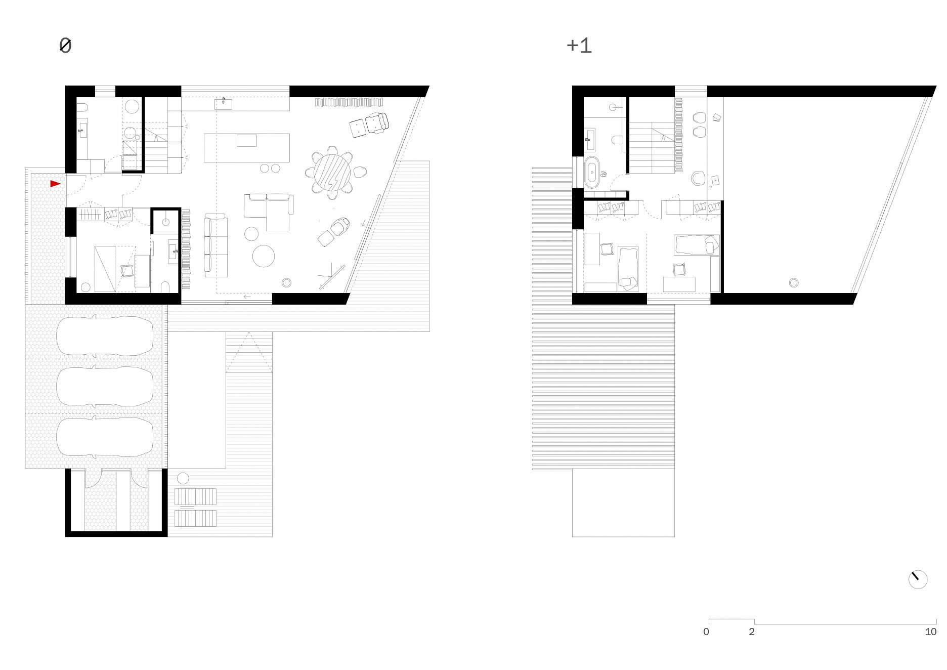
Rodinný dom je osadený do terénu tak, aby umožnil plynulý prístup zo severnej strany. Denná časť sa otvára od juhovýchodu po juhozápad a cez vykonzolované drevené terasy plynulo predlžuje interiér smerom k vzrastlým stromom. Pocit bývania v korunách umocňuje dvojpodlažné zasklenie obytného priestoru v kontakte s náprotivným zalesneným svahom. Juhozápadná terasa je doplnená o malý bazén s napnutou vodnou hladinou a pororoštové stupne smerujúce do terénne usporiadanej záhrady. V jej najužšej časti je osadený saunovací domček.
Denná časť prízemia pozostáva z kuchyne, jedálne a obývacej izby s krbom. Priestory dopĺňa hosťovská izba, hygiena a technologické zázemie. Na vstup nadväzuje pergola pre 3 autá a exteriérové sklady.
Zavesená galéria nad obývačkou je miestom pre izbu/izby detí, kúpeľňu a otvorenú pracovňu. Na protiľahlej strane je úzka terasa nad ulicou s výhľadom na hrad.
Ukončujúce podlažie obsahuje spálňu rodičov, hygienické vybavenie, šatník a veľkorysú strešnú terasu orientovanú do zelene.
Dom výškovo prepája vzdušné oceľové schodisko zakončené preskleným východom na vyhliadkovú pobytovú strechu.
Rodinný dom je primárne orientovaný do zelene na južnej a západnej strane. Usporiadanie okenných otvorov na severnej fasáde umožňuje výhľady na hrad Devín.
Dom je založený na betónových pilótach a železobetónovej doske. Nadzemná časť je drevostavba zo systému Lignotrend. Fasáda je prevetrávaná, ukončená cédrovými doskami.
Pdklady: plusminusarchitects
Fotografie: Maroš Fečík