Advertorial

Pozvánka na 2. ročník stavebného veľtrhu BigMarket na Slovensku

Na podujatí sa predstaví až 37 vystavovateľov - popredných dodávateľov stavebných materiálov a inovácií s prezentáciou...

Hotel Hirschen Spa House, Rakúsko

Novotvar v prostredí alpskej obce.

Vytvorte si kúpeľňu snov: dizajnové riešenie od značky hansgrohe

Hansgrohe - prémiová značka kúpeľňových riešení, ponúka nadčasový dizajn, technickú precíznosť a udržateľné inovácie...

Okná Internorm za minuloročné ceny + hliníkový kryt zdarma!

Využite špeciálnu akciu Internorm: okná za minuloročné ceny a hliníkový kryt úplne zadarmo. Ponuka je časovo obmedzená!

Moderné plynové technológie: Efektivita a inovácie pre 21. storočie

Sumarizácia najdôležitejších inovácií, ktoré redefinujúcich využitie tohto energetického zdroja.

Utesňovanie spodných stavieb pomocou hydro-aktívnej fólie AMPHIBIA.

AMPHIBIA 3000 GRIP 1.3 od spoločnosti ATRO predstavuje modernú hydroizolačnú technológiu, ktorá spája vysokú odolnosť,...

Dekarbonizácia individuálneho vykurovania domácností – Green Deal evolučne a nie revolučne

Ambiciózne plány EK narazili na ekonomické možnosti domácností v jednotlivých členských štátoch –...

Minimalistické dvere IDEA – technická precíznosť a čistota prevedenia

IDEA DOOR od spoločnosti JAP prináša do interiéru čistý minimalistický vzhľad vďaka bezrámovému riešeniu a precíznej...

Dom s výhľadom na údolie, Dlouhý Most (ČR)

Kontinuita riešenia od vonkajšieho obkladu až po kovania a kľučky.

Schell Vitus – osvedčené riešenie pre sprchy a umývadlá vo verejnom sektore s viac ako desaťročnou tradíciou

Nástenné nadomietkové armatúry Vitus sú mimoriadne vhodné pre rýchlu a efektívnu...

Kompozitné okná predstavujú súčasnosť a budúcnosť

Okenné profily z kompozitného materiálu RAU-FIPRO X od spoločnosti Rehau sú v porovnaní s tradičnými plastovými profilmi mnohonásobne...

Myotis - stoly 2025

Najnovší sortiment stolov pre zariadenie interiérov...

Priemyselné sklenené priečky Dorsis Digero: svetelné rozhranie pre moderné interiéry

Spojenie moderného dizajnu, funkčnosti a svetla do harmonického architektonického prvku.

Význam prirodzeného svetla pre moderné a flexibilné pracovné prostredie

Kancelárska budova Baumit v slovinskom Trzine prešla premenou na moderné a udržateľné pracovisko. Architekti kládli dôraz...

Konferencia Xella Dialóg predstaví novinky a trendy v stavebníctve

Mottom šiesteho ročníku on-line konferencie odborníkov Xella Dialóg je Efektívny návrh budov 2025+: zmeny a riešenia

Dom medzi záhradami, Bratislava

Orientácia k slnku, výhľady na neďaleký hrad Pajštún, snaha o prepojenie so záhradou.
Diela
Red 323.05.2024
36610+102
Dom medzi záhradami, Bratislava
Autori: Ing. arch. Maroš Fečík, Ing. arch. Filip KandravýSpolupráca: Biely ateliér (záhrada)Plocha pozemku: 1279 m2Zastavaná plocha: 275 m2Podlažná plocha: 240m2Návrh: 2017 - 2019Realizácia: 2019 - 2023Adresa: Bratislava , SlovenskoPublikované: 23. máj 2024

Realizácia ateliéru plusminusarchitects. Kompaktné bloky technického krídla a nočnej časti vymedzujú otvorený obytný priestor v priamom kontakte so záhradou. Dielo Maroša Fečíka a Filipa Kandravého charakterizuje snaha architektov o abstrahovanie a "vyčistenie" finálnej architektonickej formy. 

 

Viac slovami autorov:

Dom je situovaný na severozápadnom okraji Bratislavy a je súčasťou developersky pripravenej lokality. Pozemok je mierne svahovitý s rozmermi približne 30x45m. Zvlnená morfológia terénu, orientácia k slnku, výhľady na neďaleký hrad Pajštún a snaha o maximálne prelínanie zelene záhrady a obytného priestoru boli určujúcim prvkom pri tvorbe konceptu domu.

Prvotné zadanie a lokalitný program uvažovali o dvojpodlažnom dome, čo sa nám s využitím plnej miery zastavonosti pozemku podarilo zredukovať do jednopodlažnej hmoty, ktorá vytvára plynulejšie prerastanie domu a vytváraných menších záhrad.

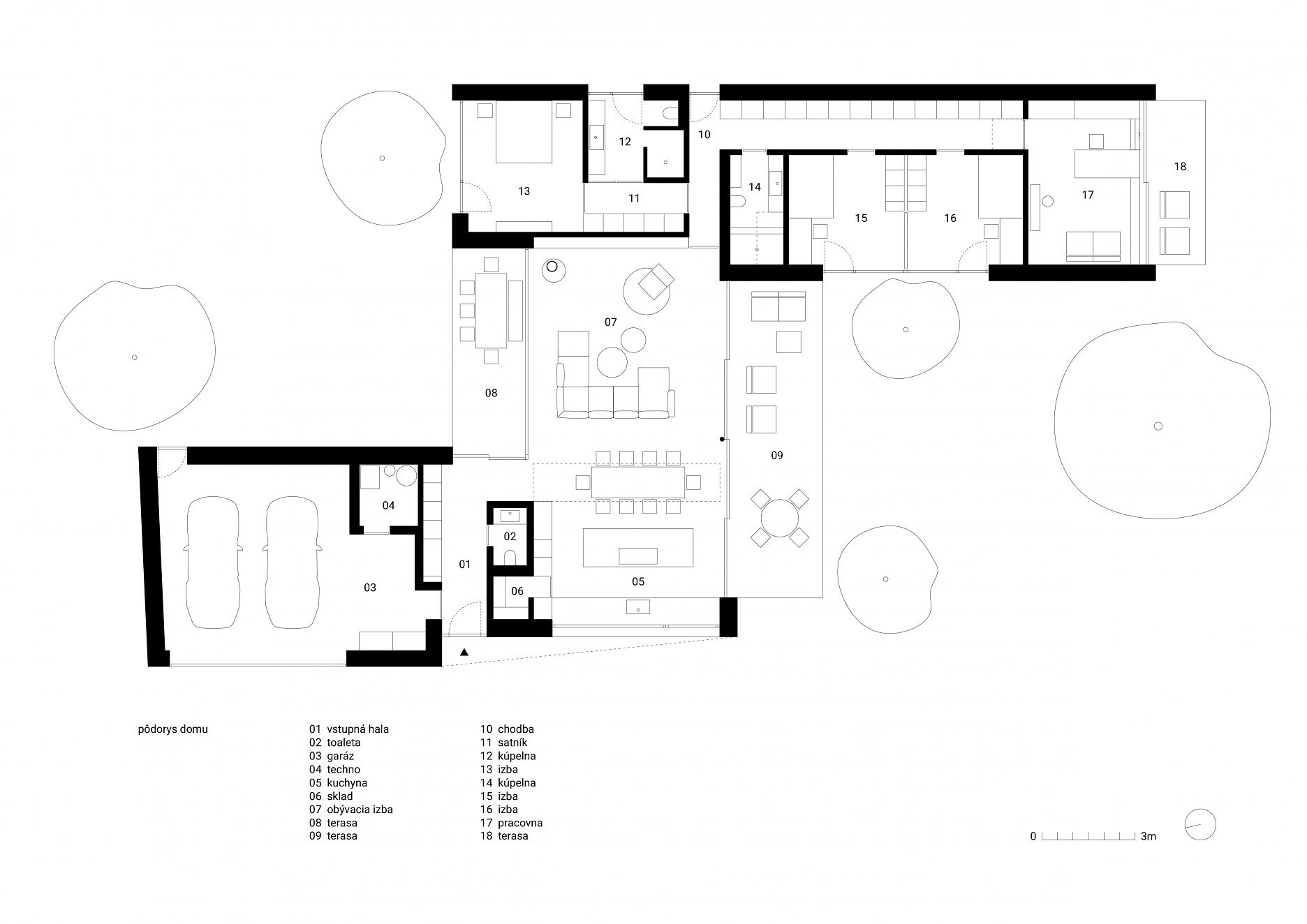
Dom je orientovaný smerom do ulice svojou technicko-skladovou časťou (garáž, technológie). Spevnená príjazdová plocha slúži pre vonkajšie parkovanie automobilov a miesto pre domáce majstrovanie. Cez vstupnú halu rodinného domu sú prístupné denné priestory - kuchyňa, jedáleň, knižnica a obývacia izba. Nočná časť - izby detí a rodičov, pracovňa a hygienické priestory vytvárajú samostané krídlo. Denný spoločný priestor je bezbariérovo prepojený terasami na ostatné vonkajšie plochy záhrady. Pocit otvorenosti je podporovaný perforáciami na južnej a severozápadnej strane a veľkým oknom v rovine strechy nad jedálenským stolom. Veľkosť a umiestnenie otvorov vytvárajú pocit otvoreného pavilónu medzi záhradami.

Dom je z konštrukčného hľadiska navrhnutý ako kombinovaný systém - oceľobetónové horizontálne (čiastočne aj vertikálne) konštrukcie a murované vertikálne konštrukcie. Plochá strecha je ukončená extenzívnou zeleňou. Fasáda je kombináciou drevenej prevetrávanej fasády z cédrových dosiek primorených na čierno a betónovej omietky. Okná a zasklené steny sú navrhnuté ako hliníkové s izolačným trojsklom.

Axonometria
AxonometriaAutor: plusminusarchitects
Situácia
SituáciaAutor: plusminusarchitects
Axonometria
AxonometriaAutor: plusminusarchitects
Pôdorys
PôdorysAutor: plusminusarchitects
Pohľad
PohľadAutor: plusminusarchitects
Pohľad
PohľadAutor: plusminusarchitects
Pohľad
PohľadAutor: plusminusarchitects
Pohľad
PohľadAutor: plusminusarchitects
Koláž
KolážAutor: plusminusarchitects

Použité materiály a riešenia:
Hliníkové profily okien a zasklenia Reynaers
Interiérové dvere so skrytými zárubňami Dorsis

Pdklady: plusminusarchitects
Fotografie: Foto: Maroš Fečík, Filip Kandravý

Poloha diela

Ing. arch. Maroš Fečík
Ing. arch. Filip Kandravý

Súvisiace články

DORSISSKSTYL & DESIGN
Vložené
22. máj 2024
0
3661
Hlavný obsahHlavný obsah
Čakajte prosím