Advertorial

Pozvánka na 2. ročník stavebného veľtrhu BigMarket na Slovensku

Na podujatí sa predstaví až 37 vystavovateľov - popredných dodávateľov stavebných materiálov a inovácií s prezentáciou...

Hotel Hirschen Spa House, Rakúsko

Novotvar v prostredí alpskej obce.

Vytvorte si kúpeľňu snov: dizajnové riešenie od značky hansgrohe

Hansgrohe - prémiová značka kúpeľňových riešení, ponúka nadčasový dizajn, technickú precíznosť a udržateľné inovácie...

Okná Internorm za minuloročné ceny + hliníkový kryt zdarma!

Využite špeciálnu akciu Internorm: okná za minuloročné ceny a hliníkový kryt úplne zadarmo. Ponuka je časovo obmedzená!

Moderné plynové technológie: Efektivita a inovácie pre 21. storočie

Sumarizácia najdôležitejších inovácií, ktoré redefinujúcich využitie tohto energetického zdroja.

Utesňovanie spodných stavieb pomocou hydro-aktívnej fólie AMPHIBIA.

AMPHIBIA 3000 GRIP 1.3 od spoločnosti ATRO predstavuje modernú hydroizolačnú technológiu, ktorá spája vysokú odolnosť,...

Dekarbonizácia individuálneho vykurovania domácností – Green Deal evolučne a nie revolučne

Ambiciózne plány EK narazili na ekonomické možnosti domácností v jednotlivých členských štátoch –...

Minimalistické dvere IDEA – technická precíznosť a čistota prevedenia

IDEA DOOR od spoločnosti JAP prináša do interiéru čistý minimalistický vzhľad vďaka bezrámovému riešeniu a precíznej...

Dom s výhľadom na údolie, Dlouhý Most (ČR)

Kontinuita riešenia od vonkajšieho obkladu až po kovania a kľučky.

Schell Vitus – osvedčené riešenie pre sprchy a umývadlá vo verejnom sektore s viac ako desaťročnou tradíciou

Nástenné nadomietkové armatúry Vitus sú mimoriadne vhodné pre rýchlu a efektívnu...

Kompozitné okná predstavujú súčasnosť a budúcnosť

Okenné profily z kompozitného materiálu RAU-FIPRO X od spoločnosti Rehau sú v porovnaní s tradičnými plastovými profilmi mnohonásobne...

Myotis - stoly 2025

Najnovší sortiment stolov pre zariadenie interiérov...

Priemyselné sklenené priečky Dorsis Digero: svetelné rozhranie pre moderné interiéry

Spojenie moderného dizajnu, funkčnosti a svetla do harmonického architektonického prvku.

Význam prirodzeného svetla pre moderné a flexibilné pracovné prostredie

Kancelárska budova Baumit v slovinskom Trzine prešla premenou na moderné a udržateľné pracovisko. Architekti kládli dôraz...

Konferencia Xella Dialóg predstaví novinky a trendy v stavebníctve

Mottom šiesteho ročníku on-line konferencie odborníkov Xella Dialóg je Efektívny návrh budov 2025+: zmeny a riešenia

Prestavba štvorizbového bytu na Tomášikovej ulici v Bratislave

Plus - mínus + jaseň, dub, betón, terrazzo, nerez, tehla, koža...
Diela
Red 329.09.2020
35060+36
Prestavba štvorizbového bytu na Tomášikovej ulici v Bratislave
Autori: Ing.arch. Maroš Fečík, Ing. arch. Filip KandravýPodlažná plocha: 124 m2Návrh: 2019 - 2019Realizácia: 2019 - 2020Adresa: Tomášikova 50/C, Bratislava, SlovenskoPublikované: 29. september 2020

Architekti z bratislavského ateliéru plusminusarchitects stáli pred zaujímavým zadaním – prestavbou priestorného štvorizbáku, ktorý vznikol spojením dvojice menších bytov. Architekti sa chopili úlohy naozaj "od gruntu". Z pôvodného bytu ostal zachovaný iba rámec obvodových a nosných konštrukcií, do ktorého vložili nový, prehľadný priestorový koncept. Tak, ako v predchádzajúcich realizáciách ateliéru, je zrejmý  dôraz na funkčnú aj praktickú stránku návrhu, z ktorej vychádza nová architektonická a výtvarná podoba interiéru. Do priestoru zapadajú precízne stolárske prvky, zhotovené na mieru novej dispozície.

Foto: Maroš Fečík

 

Viac slovami Maroša Fečíka a Filipa Kandravého:

Dá sa zanedbaný štvorizbový byt, nachádzajúci sa v polyfunkčnom bytovom dome z roku 2007, po zmene majiteľa premeniť na pohodový a nadčasový priestor?

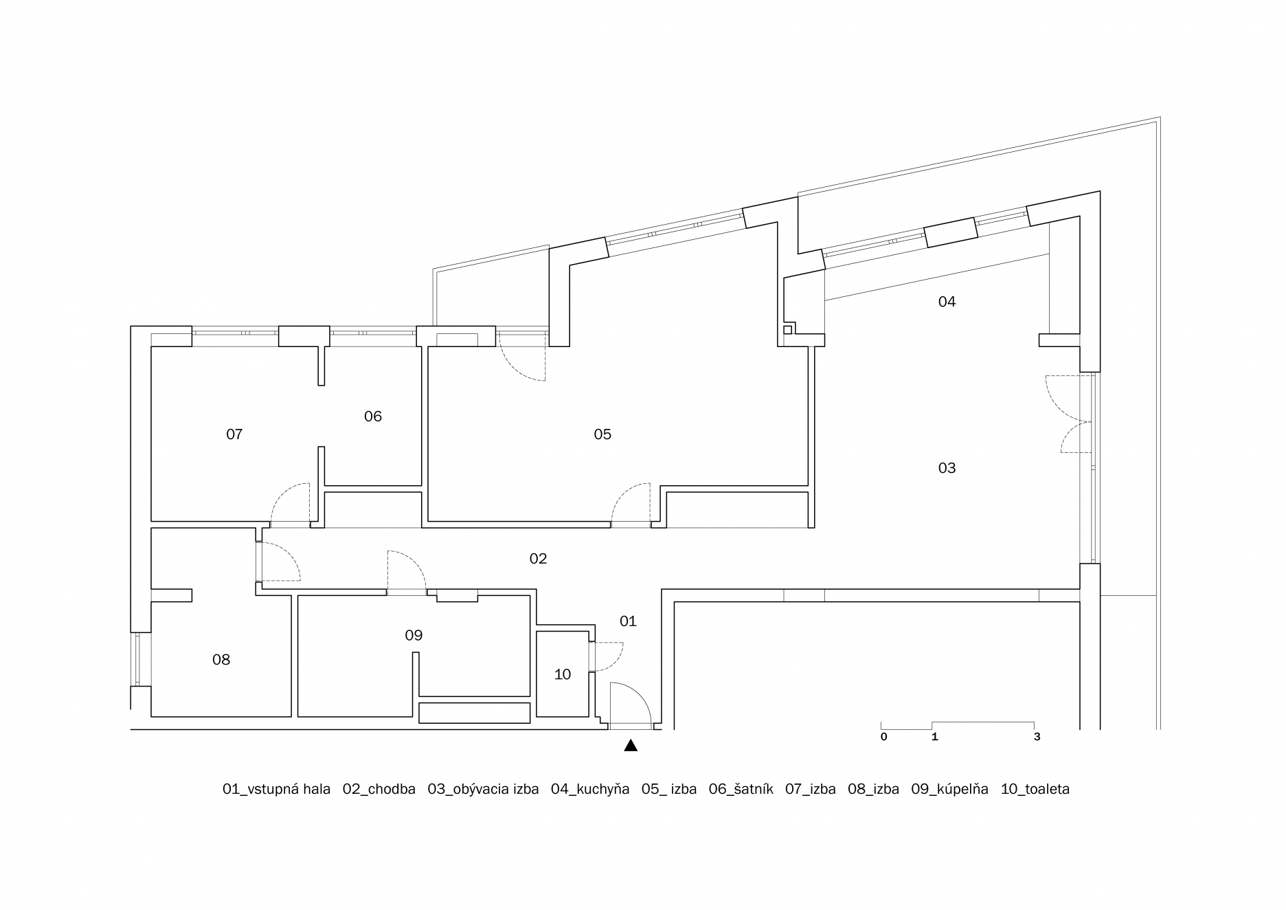
Pôvodná dispozícia si so sebou niesla nepríjemné znaky spojenia dvoch menších bytov do jedného väčšieho. Nelogické usporiadanie priestorov a ich zvláštne dimenzie však neprevážili nad pozitívami bytu v rohovej/koncovej polohe na najvyššom podlaží bytového domu s výhľadmi na tri svetové strany, Kuchajdu, Karpaty a Kamzík.

Byt kompletne očisťujeme od nenosných konštrukcií, podláh a pozostatkov (ne)vkusu pôvodných majiteľov. Ponechávame len nosné prvky skeletovej konštrukcie spolu s obvodovými múrmi a začíname priestor ohýbať podľa požiadaviek budúcich obyvateľov.

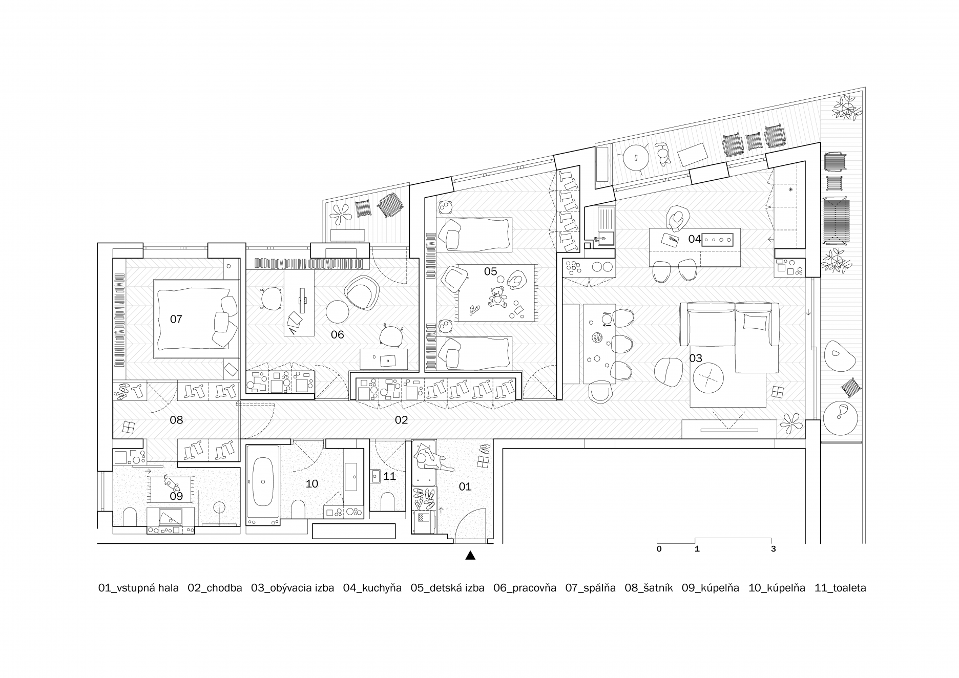
Preusporadúvame poradie izieb a funkčných zón, skrývame všetko, čo nemá byť vidieť a vytvárame kontinuálne hygienické jadro. Vzniká plne vybavené intímne krídlo rodičovskej spálne. Pridávame pracovňu a detskú izbu pre malého nezbedníka. Meníme dispozičný koncept kuchyne a otvárame ju viac do obývacej izby. Varenie je divadlo a kuchyňa je srdcom bytu.

Jaseň, dub, betón, terrazzo, nerez, tehla, koža. Neutrálnu monochromatickosť podkladových vrstiev dopĺňame hrou so štruktúrou a textúrou použitých materiálov. Postačí takáto farebná paleta ako podklad k prirodzenej dynamike života?

Pôdorys - pôvodný stav
Pôdorys - pôvodný stavAutor: plusminusarchitects
Pôdorys - nový stav
Pôdorys - nový stavAutor: plusminusarchitects
Foto: Maroš Fečík
Foto: Maroš Fečík
Foto: Maroš Fečík
Foto: Maroš Fečík
Foto: Maroš Fečík
Foto: Maroš Fečík
Foto: Maroš Fečík
Foto: Maroš Fečík
Foto: Maroš Fečík
Foto: Maroš Fečík
Foto: Maroš Fečík
Foto: Maroš Fečík
Foto: Maroš Fečík
Foto: Maroš Fečík
Foto: Maroš Fečík
Foto: Maroš Fečík
Foto: Maroš Fečík
Foto: Maroš Fečík
Foto: Maroš Fečík
Foto: Maroš Fečík
Foto: Maroš Fečík
Foto: Maroš Fečík
Foto: Maroš Fečík
Foto: Maroš Fečík
Foto: Maroš Fečík

Poloha diela

Ing.arch. Maroš Fečík
Ing. arch. Filip Kandravý

Súvisiace články

Vložené
29. september 2020
0
3506
Hlavný obsahHlavný obsah
Čakajte prosím