Hansgrohe - prémiová značka kúpeľňových riešení, ponúka nadčasový dizajn, technickú precíznosť a udržateľné inovácie...
Využite špeciálnu akciu Internorm: okná za minuloročné ceny a hliníkový kryt úplne zadarmo. Ponuka je časovo obmedzená!
Na podujatí sa predstaví až 37 vystavovateľov - popredných dodávateľov stavebných materiálov a inovácií s prezentáciou...
Sumarizácia najdôležitejších inovácií, ktoré redefinujúcich využitie tohto energetického zdroja.
AMPHIBIA 3000 GRIP 1.3 od spoločnosti ATRO predstavuje modernú hydroizolačnú technológiu, ktorá spája vysokú odolnosť,...
Ambiciózne plány EK narazili na ekonomické možnosti domácností v jednotlivých členských štátoch –...
IDEA DOOR od spoločnosti JAP prináša do interiéru čistý minimalistický vzhľad vďaka bezrámovému riešeniu a precíznej...
Kontinuita riešenia od vonkajšieho obkladu až po kovania a kľučky.
Nástenné nadomietkové armatúry Vitus sú mimoriadne vhodné pre rýchlu a efektívnu...
Okenné profily z kompozitného materiálu RAU-FIPRO X od spoločnosti Rehau sú v porovnaní s tradičnými plastovými profilmi mnohonásobne...
Najnovší sortiment stolov pre zariadenie interiérov...
Spojenie moderného dizajnu, funkčnosti a svetla do harmonického architektonického prvku.
Kancelárska budova Baumit v slovinskom Trzine prešla premenou na moderné a udržateľné pracovisko. Architekti kládli dôraz...
Mottom šiesteho ročníku on-line konferencie odborníkov Xella Dialóg je Efektívny návrh budov 2025+: zmeny a riešenia
Robot WLTR predstavuje moderný prístup k murovaným konštrukciám. Vďaka automatizácii dokáže rýchlo, presne a bezpečne realizovať...

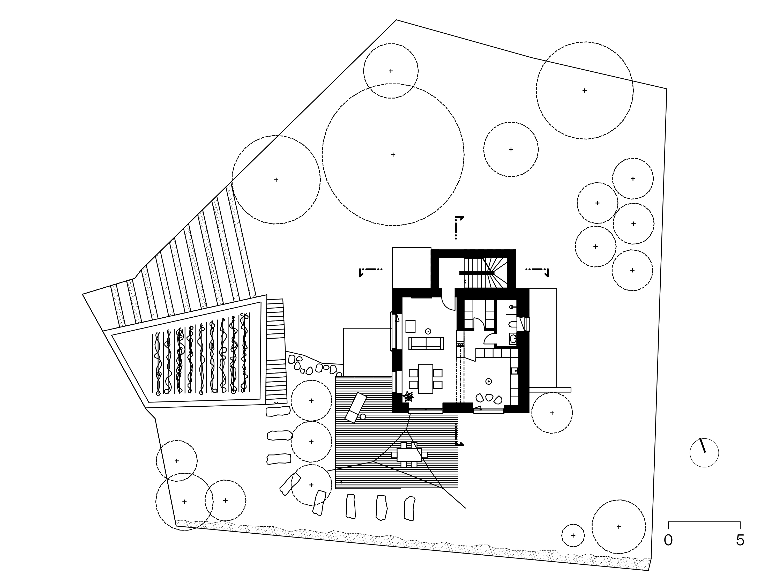
Pozemok sa nachádza v pôvodnej časti zástavby obce Dvorce v Pražskej časti Podolí. Z parcely na okraji vilovej štvrti sa otvárajú výhľady na protiľahlý breh Vltavy a kostol sv. Filipa a Jakuba. Zadaním pre autorov z ateliéru Aoc architekti bola transformácia rodinného domu zo šesťdesiatych rokov na komfortnú vilu pre majiteľa, ktorého rodina žije na tomto mieste už po niekoľko generácií.
“Architektura domu je koncepčně založena na vizuálním i uživatelském propojení s okolní zahradní městskou krajinou. Pracujeme s různými podobami světla, s intenzivním oblohovým světlem, rozptýleným měkkým světlem za polopropustnou fasádou či s kontrastním šerosvitem, což zpětně ovlivňuje kompozici otvorů fasády. Používáme materiály v jejich přirozenosti, uplatňujeme jejich barvy i textury a zároveň dbáme na praktičnost a pohodlí ve výtvarně dotaženém obytném prostředí. Navrhli jsme výraznou zelenou barevnost fasády z ušlechtilé škrábané omítkoviny, která reaguje na okolní bohatou vegetaci v průběhu všech ročních obdobích,” vysvetľujú architekti.
Z predsiene na prízemí vedie schodisko do hlavného obytného priestoru s nízkym sedením, kuchyňou a jedálňou, prepojenou s rozmernou terasou v hornej časti záhrady.
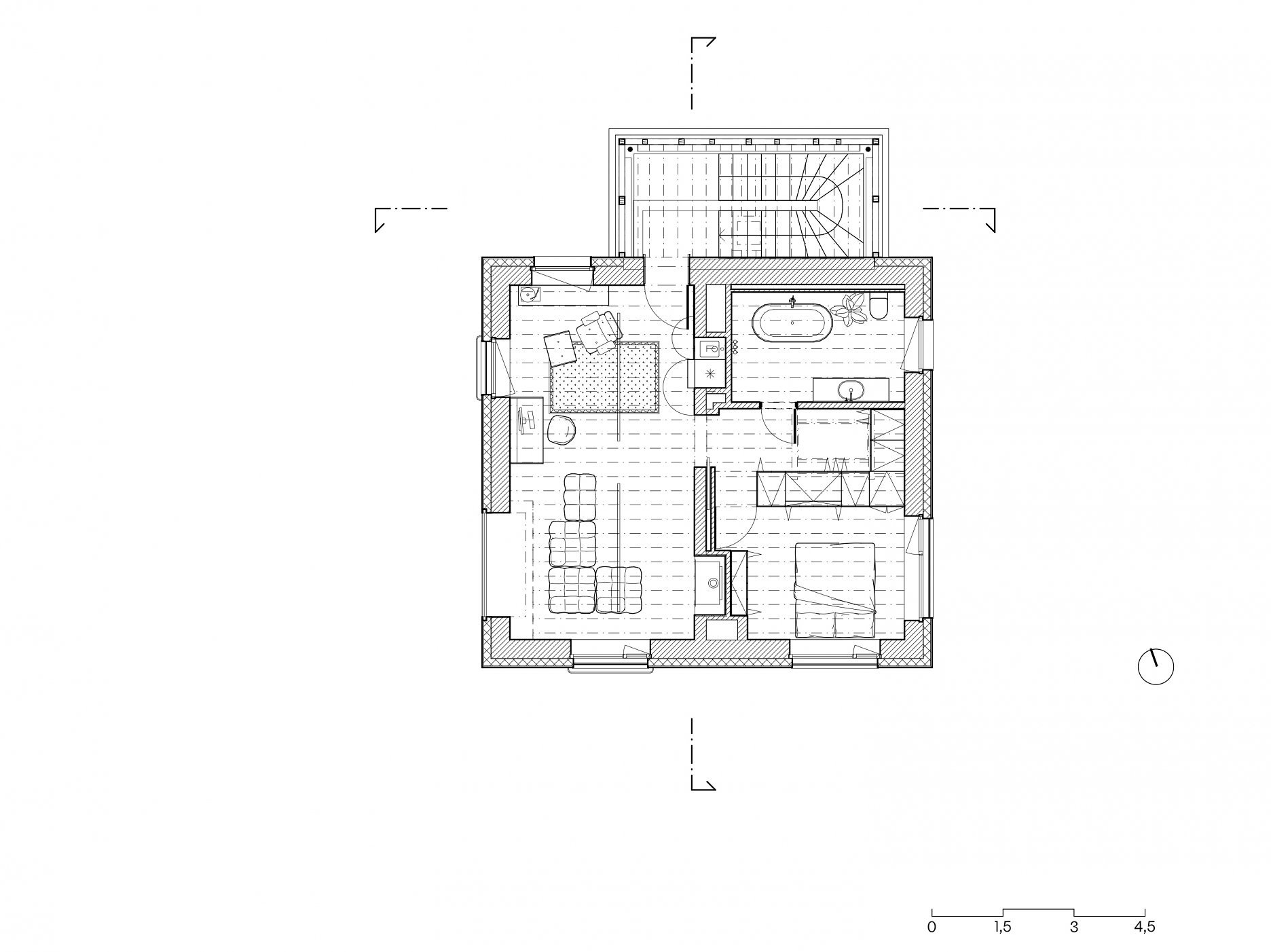
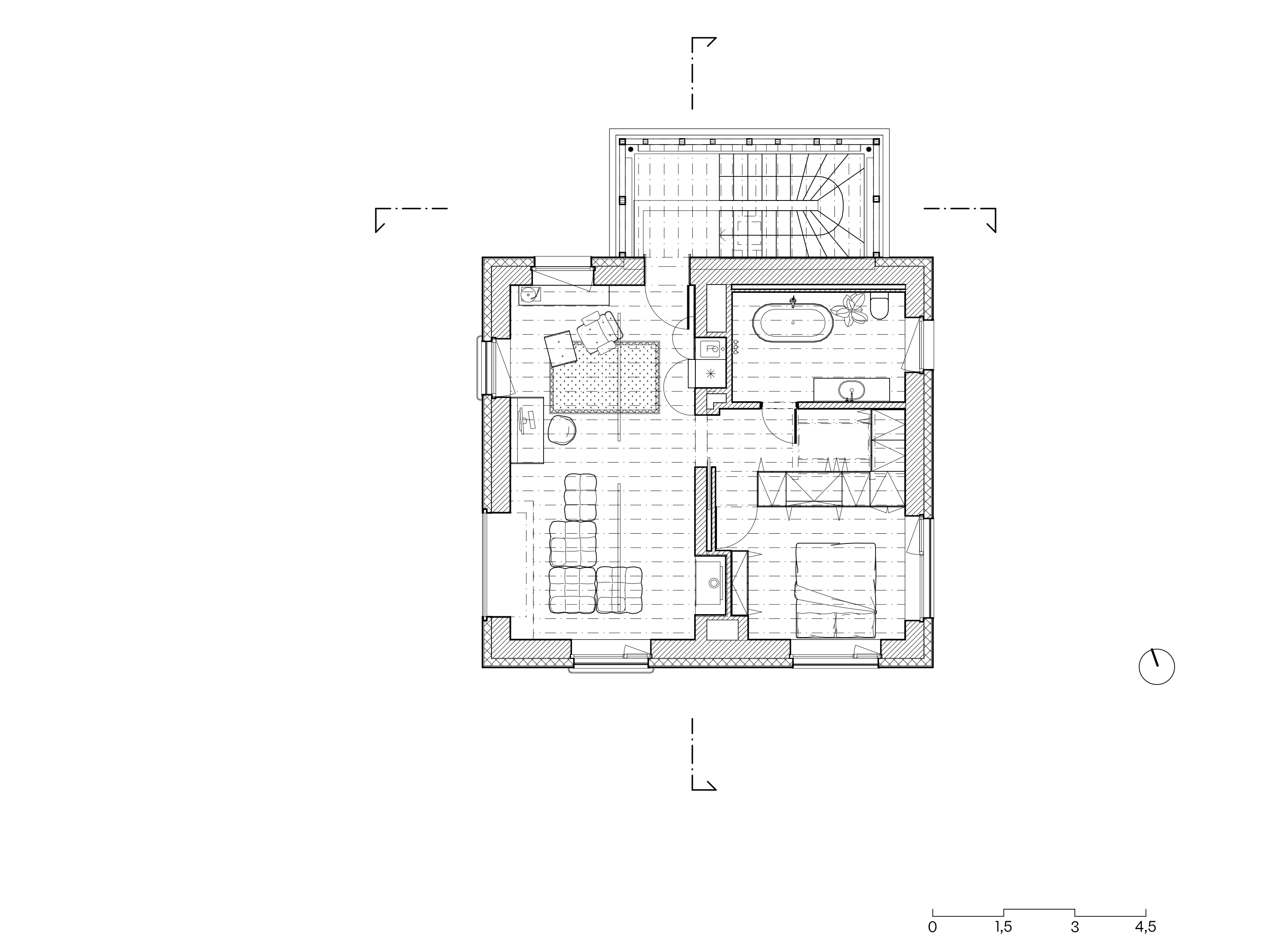
Najvyššie poschodie slúži ako pracovňa, salón s krbom a malou čajovou kuchynkou. Priestor charakterizuje drevený trámový strop a rozmerné okno s výhľadom do krajiny. Za ateliérom sa nachádza oddelená súkromná zóna so spálňou, šatníkom a kúpeľňou.
Vstavaný nábytok integruje potrebné obslužné funkcie a ukrýva vstupy do súkromných častí domu. Koncept riešenia interiéru zároveň okrem nových kusov na mieru využíva starší nábytok klienta.
Na najnižšom podlaží domu sa nachádza samostatný malý byt s vlastnou terasou.
Materiály:
Autor: Aoc architekti
Podklady: Linka
Fotografie: Studio Flusser