Na podujatí sa predstaví až 37 vystavovateľov - popredných dodávateľov stavebných materiálov a inovácií s prezentáciou...
Novotvar v prostredí alpskej obce.
Hansgrohe - prémiová značka kúpeľňových riešení, ponúka nadčasový dizajn, technickú precíznosť a udržateľné inovácie...
Využite špeciálnu akciu Internorm: okná za minuloročné ceny a hliníkový kryt úplne zadarmo. Ponuka je časovo obmedzená!
Sumarizácia najdôležitejších inovácií, ktoré redefinujúcich využitie tohto energetického zdroja.
AMPHIBIA 3000 GRIP 1.3 od spoločnosti ATRO predstavuje modernú hydroizolačnú technológiu, ktorá spája vysokú odolnosť,...
Ambiciózne plány EK narazili na ekonomické možnosti domácností v jednotlivých členských štátoch –...
IDEA DOOR od spoločnosti JAP prináša do interiéru čistý minimalistický vzhľad vďaka bezrámovému riešeniu a precíznej...
Kontinuita riešenia od vonkajšieho obkladu až po kovania a kľučky.
Nástenné nadomietkové armatúry Vitus sú mimoriadne vhodné pre rýchlu a efektívnu...
Okenné profily z kompozitného materiálu RAU-FIPRO X od spoločnosti Rehau sú v porovnaní s tradičnými plastovými profilmi mnohonásobne...
Najnovší sortiment stolov pre zariadenie interiérov...
Spojenie moderného dizajnu, funkčnosti a svetla do harmonického architektonického prvku.
Kancelárska budova Baumit v slovinskom Trzine prešla premenou na moderné a udržateľné pracovisko. Architekti kládli dôraz...
Mottom šiesteho ročníku on-line konferencie odborníkov Xella Dialóg je Efektívny návrh budov 2025+: zmeny a riešenia

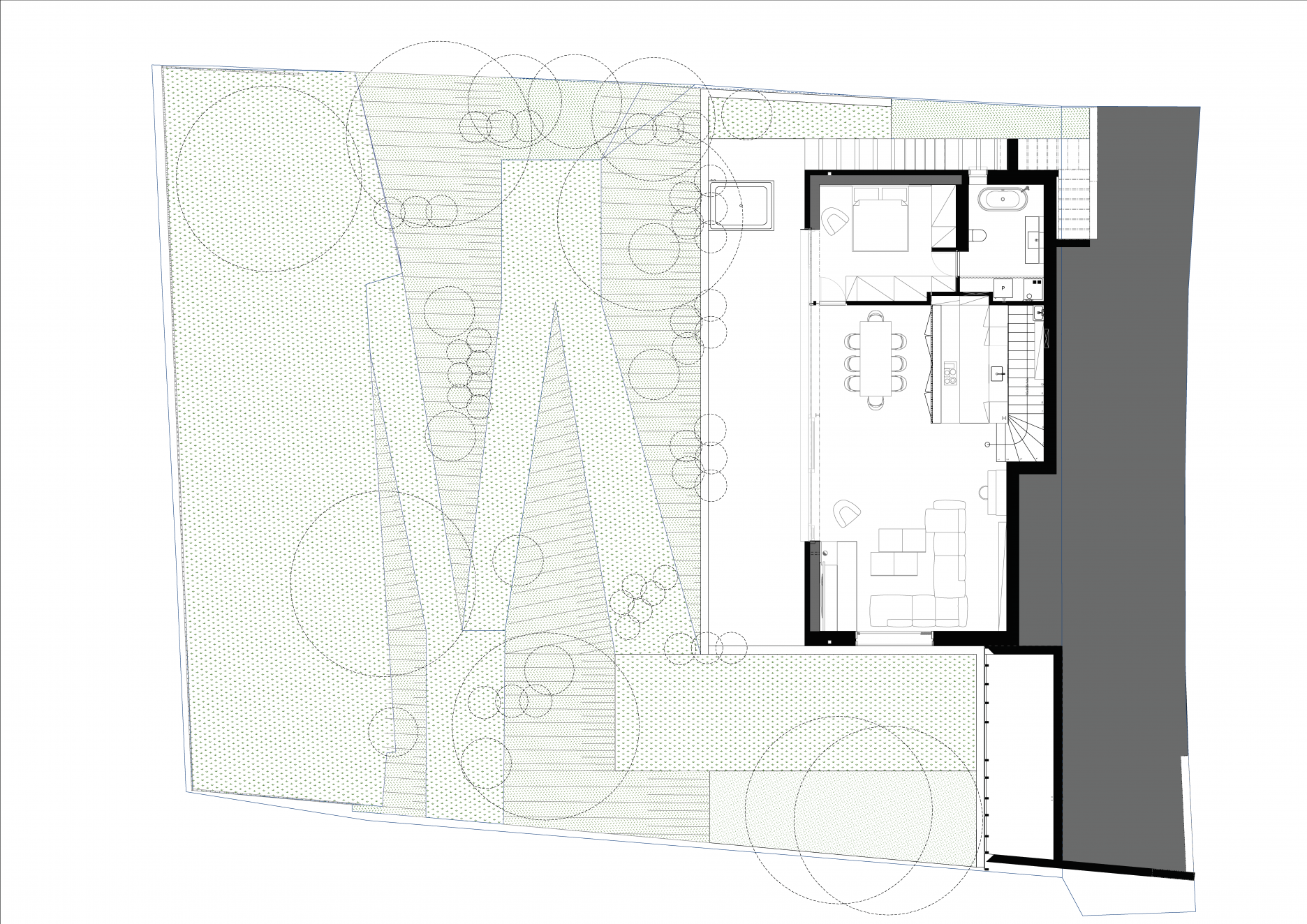
Rodinný dom v košickej mestskej časti Sever využíva reliéf západného svahu, zvažujúceho sa smerom od ulice. Pri pohľade z cesty sa nenápadný jednopodlažný objem rozvíja a “rastie” smerom do záhrady. Kompaktnú obálku zjednocuje fasáda, odkazujúca na kabrincové obklady okolitých domov. Voľne plynúci vnútorný priestor akcentuje spojenie so záhradou a prepojenie oboch úrovní domu.
Architektonický koncept pracuje s riešeniami, vychádzajúcimi z konštrukčnej logiky zvoleného modulového systému. Konečná podoba interiérov (výraz tvorí priamo materiálová a konštrukčná podstata stavby), spolu s dôslednou integráciou technickej infraštruktúry domu kladie značné nároky na precízny autorský návrh a následnú realizáciu. V tomto prípade sa podarilo skĺbiť obe požiadavky. Realizácia, vyniká v lokálnom kontexte nezvyklou výrazovou strohosťou. Proporcie, priestor a detaily sú dôležitejšie ako prvoplánová snaha o vonkajší efekt.
Viac o počine na východe Slovenska slovami Michala Buráka z ateliéru Atrium Architekti:
Bývanie pre trojčlennú rodinu. Len jedna hmota, len jedno okno do ulice. V tvarovej zložitosti okolia pôsobí až puristicky jednoducho, pracuje s kontrastom. Od okolia sa však neuzatvára, práve naopak, komunikuje s ulicou, nebojí sa vtiahnuť ruch mesta do vnútra domu už spomínaným oknom do ulice. Okno ako komunikačná platforma...
Betónové tehličky v rastri 300 mm, kladené na fasáde v prísnom vojenskom rastri, sú odkazom na kabrincové obklady soklov zo 70. rokov. Pozorné oko ich objaví v okolitej zástavbe.
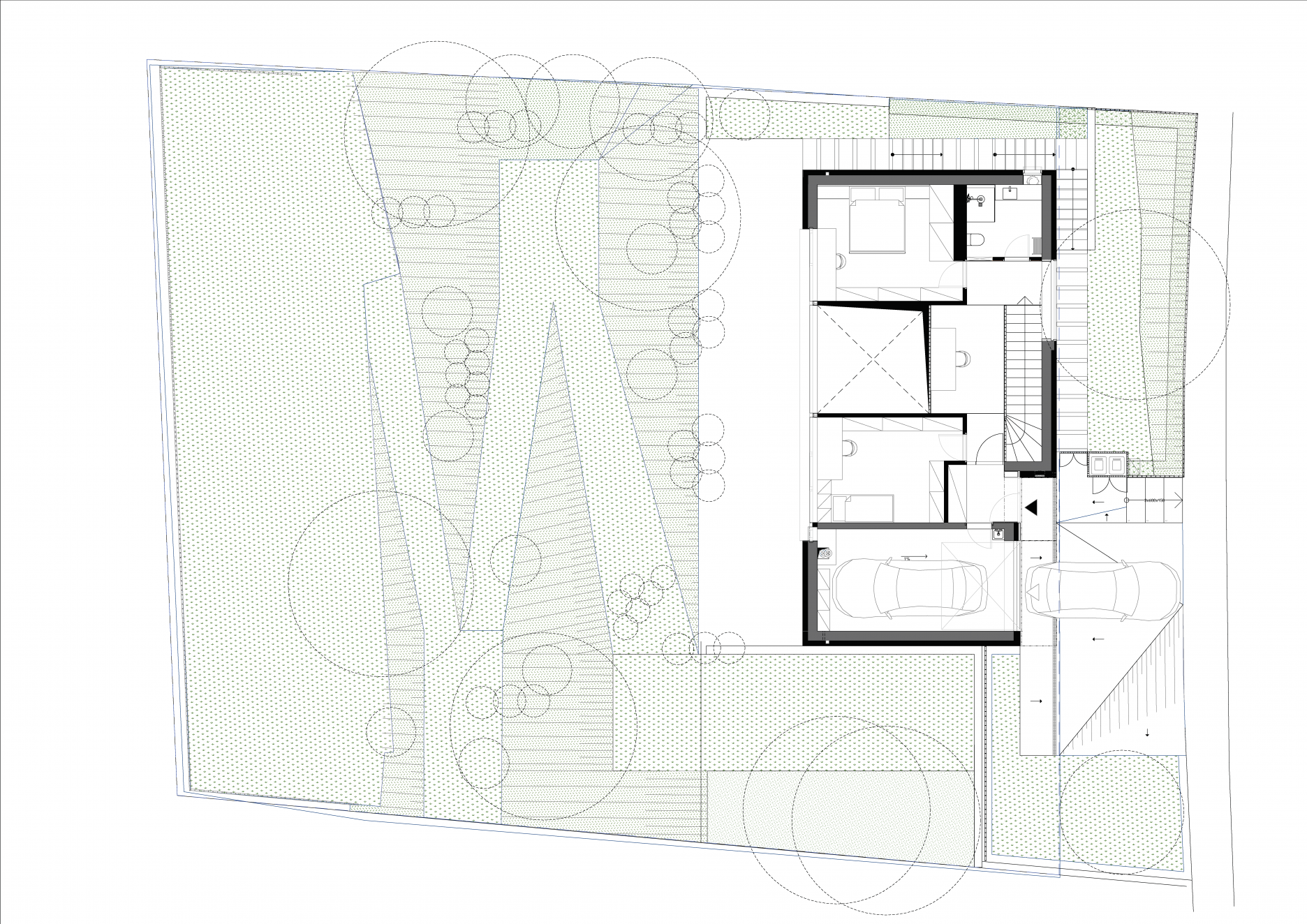
Pri pohľade z ulice pôsobí DOMM ako jednopodlažný domček. Úžitková plocha 197 m2, rozvinutá do dvoch podlaží, však poskytuje dostatok priestoru. Vo výmere je zahrnuté garáž, dve kúpeľne, chodba, schodisko a galéria. Absentuje však akákoľvek technická miestnosť alebo práčovňa, čo bolo vzhľadom na veľkosť domu a jeho cenu kľúčové. DOMM je však plne inteligentný, s množstvom senzorov a čidiel. Je napojený na tepelné čerpadlo, disponuje rekuperáciou, centrálnym vysávačom a systémom chladenia. Technická miestnosť sa však v dome nenachádza.
Žiadne omietky, žiadne sadrokartóny, pritom žiadne viditeľné technologické inštalácie…
DOMM je skladačkou z montovaných prefabrikovaných panelov, drevenej skladanej podlahy (tzv. dýľ) a skladaných priečok, ktoré slúžia aj ako úložné priestory.
DOMM definuje výhľad do krajiny a materiálová strohosť až brutálnosť. Bývanie je orientované na západ, obývacia izba je dosvetlená južným oknom, smerujúcim do bočnej záhrady. Nad jedálňou je osadený masívny strešný svetlík. Dom je postavený na svahovitom teréne s jedinečným výhľadom.
Priestory domu sú prísne definované šírkou jednotlivých panelov v module 1200, kde modul izby tvoria 3 panely, kúpeľne 2, obývacej izby až 5, chodby a schodiska len 1 panel. Moduly 300, 600 a 1200 mm sú prítomné v celej dispozícii a architektúre domu. Drevené podlahové dosky šírky 300 mm, kladené v jednom kuse na celú šírku izby, skrine v module 600 a 1200… Táto modulárnosť umožňuje jednoduchú úpravu dispozície, ak sa rodina rozrastie alebo sa zmenia jej potreby.
Materiálovo bolo snahou “ostať v hrubej stavbe”. Jediným kontrastom - dokončenou stavbou je opracovaná drevená podlaha a vstavané biele kubusy / systémové priečky. Ukončujúcim stavebným prvkom hrubej stavby sú vnútorné a vonkajšie šambrány z rovnakého materiálu ako kuchynská linka. Schodisko, zábradlie a priznané nosníky sú oceľové. Podlahové dosky boli znovu použité na knižničný regál a komody v izbách.
Kuchyňa je vertikálne prepojená so vstupným podlažím - vzniká tak ústredný priestor domu. Drevená terasa orientovaná na západ je prepojená s kuchyňou, jedálňou, obývacou izbou a spálňou. Posuvné presklené steny rámujú výhľady do krajiny.
Koncept svahovitej záhrady prekonáva výškovú úroveň šiestich metrov len prostredníctvom rámp s masívnymi oceľovými obrubníkmi. Nenájdeme tu žiadne schody, rampy sú zatrávnené.
Podklady: Atrium Architekti
Fotografie: Matej Hakár