Advertorial

Pozvánka na 2. ročník stavebného veľtrhu BigMarket na Slovensku

Na podujatí sa predstaví až 37 vystavovateľov - popredných dodávateľov stavebných materiálov a inovácií s prezentáciou...

Hotel Hirschen Spa House, Rakúsko

Novotvar v prostredí alpskej obce.

Vytvorte si kúpeľňu snov: dizajnové riešenie od značky hansgrohe

Hansgrohe - prémiová značka kúpeľňových riešení, ponúka nadčasový dizajn, technickú precíznosť a udržateľné inovácie...

Okná Internorm za minuloročné ceny + hliníkový kryt zdarma!

Využite špeciálnu akciu Internorm: okná za minuloročné ceny a hliníkový kryt úplne zadarmo. Ponuka je časovo obmedzená!

Moderné plynové technológie: Efektivita a inovácie pre 21. storočie

Sumarizácia najdôležitejších inovácií, ktoré redefinujúcich využitie tohto energetického zdroja.

Utesňovanie spodných stavieb pomocou hydro-aktívnej fólie AMPHIBIA.

AMPHIBIA 3000 GRIP 1.3 od spoločnosti ATRO predstavuje modernú hydroizolačnú technológiu, ktorá spája vysokú odolnosť,...

Dekarbonizácia individuálneho vykurovania domácností – Green Deal evolučne a nie revolučne

Ambiciózne plány EK narazili na ekonomické možnosti domácností v jednotlivých členských štátoch –...

Minimalistické dvere IDEA – technická precíznosť a čistota prevedenia

IDEA DOOR od spoločnosti JAP prináša do interiéru čistý minimalistický vzhľad vďaka bezrámovému riešeniu a precíznej...

Dom s výhľadom na údolie, Dlouhý Most (ČR)

Kontinuita riešenia od vonkajšieho obkladu až po kovania a kľučky.

Schell Vitus – osvedčené riešenie pre sprchy a umývadlá vo verejnom sektore s viac ako desaťročnou tradíciou

Nástenné nadomietkové armatúry Vitus sú mimoriadne vhodné pre rýchlu a efektívnu...

Kompozitné okná predstavujú súčasnosť a budúcnosť

Okenné profily z kompozitného materiálu RAU-FIPRO X od spoločnosti Rehau sú v porovnaní s tradičnými plastovými profilmi mnohonásobne...

Myotis - stoly 2025

Najnovší sortiment stolov pre zariadenie interiérov...

Priemyselné sklenené priečky Dorsis Digero: svetelné rozhranie pre moderné interiéry

Spojenie moderného dizajnu, funkčnosti a svetla do harmonického architektonického prvku.

Význam prirodzeného svetla pre moderné a flexibilné pracovné prostredie

Kancelárska budova Baumit v slovinskom Trzine prešla premenou na moderné a udržateľné pracovisko. Architekti kládli dôraz...

Konferencia Xella Dialóg predstaví novinky a trendy v stavebníctve

Mottom šiesteho ročníku on-line konferencie odborníkov Xella Dialóg je Efektívny návrh budov 2025+: zmeny a riešenia

Vila E, Kramáre

Klasické riešenie od (už) “klasikov” slovenskej architektúry.
Diela
Red 103.09.2019
53760+73
Vila E, Kramáre
Autori: Ing. arch. Martin Kusý II., Ing. arch. Pavol Paňák, ing.arch. Jana PaňákováPodlažná plocha: 360 m2Návrh: 2008 - 2010Realizácia: 2010 - 2018Adresa: Kramáre , Bratislava, SlovenskoPublikované: 3. september 2019

Prerozprávanie odkazu najlepších tradícií slovenskej modernej architektúry XX. storočia, zhmotnených v súdobej interpretácii. Dielo, ktoré upúta odborníkov, aj laikov.

Súčasné aj klasické, nové aj tradičné…

Jednoduché vo svojej forme. Zároveň rafinované vo vzájomných väzbách prvkov a čistých detailov.

Elementárne geometrické tvary. Materiály priznané vo svojej naturálnej podobe. Čisté priestorové a prevádzkové vzťahy. Stavba, interiér, nábytok aj exteriér sú komponované ako jeden celok.

Nič nie je zbytočné, pridané “naviac”. Pre vonkajší efekt. Naopak, autori si vystačia s obmedzeným množstvom vyjadrovacích prostriedkov. O to dôslednejšie a presvedčivejšie ich používajú.

Foto: Tomáš Manina

 

Autorské slovo pomôže predstaviť osobnejší pohľad tvorcov na dielo i východiská, ktoré vplývali na ich návrh:

Poznámky k Vile E

Okrem nárokov na skladbu a vzťahy priestorov pre bývanie rodiny s dvomi dorastajúcimi deťmi boli pre koncepciu tejto vily rozhodujúce dve okolnosti. Poloha na Kramároch s parádnym výhľadom na časť mesta a do diaľok Panónskej roviny a tiež klientova predstava na „skôr konzervatívny“ charakter ich sídla.

Foto: Tomáš Manina

V kontexte novodobých podôb slovenskej architektúry absentujúca téma, sotva uchopená v okolnostiach prevládajúceho hľadania neobyčajného, spektakulárneho, či reflexie nedávnych a súčasných trendov. Čo znamená súčasné a zároveň konzervatívne dnes v zjave, materialite, remeselnej kvalite, komforte, výške investície...?

Foto: Tomáš Manina
Foto: Tomáš Manina

Jedným zo spôsobov našej práce je premýšľanie nových podôb známych, overených a vynikajúcich jestvujúcich architektúr, ktoré sa vzťahujú k východiskovým okolnostiam úlohy. Vzťah k miestu a majestátu jeho výhľadu artikuluje Schinkelovsko-Wagnerovská tradícia osobitným typom pavilónu - belvedéru. Ako prídavku sprostredkujúceho jazykom architektúry prírodné kvality miesta.

Foto: Tomáš Manina
Foto: Tomáš Manina

Typ polootvoreného a zároveň presne vytýčeného priestoru medzi uzavretým objemom a jeho záhradou. Tým druhým podnetom bola neprávom zanedbávaná organizačno-priestorová schéma na Slovensku značne rozšíreného vernakulárneho typu „štvorec“ z 50. a 60. rokov minulého storočia. Po stáročiach aditívneho princípu ľudového domu prichádza centrálna schéma vlastniaca okrem iného blok komínov v strede krížovej osnovy tohto štvorca. Symboliku tepla uprostred v našom prípade interpretujeme privedením prirodzeného svetla do stredu dispozície.

Foto: Tomáš Manina

Veríme na možné inšpiračné zdroje pochádzajúce z prepájania či vrstvenia zdanlivo málo príbuzných podnetov. Zaujíma nás nové, nesúce pre vnímavého pozorovateľa znaky známeho.

Vo svojej rozlohe je vila primeranej, nie okázalej rozlohy. Jej obytné podlažie je v príkrom svahu voči záhrade vyvýšené - záhrada časom skrze „vegetačnú rampu“ dorastie na jeho niveletu, aby doznela v takeláži pergoly terasy divým viničom.

Foto: Tomáš Manina

Koncepciou materiality je solídnosť povrchov, masívnosť tehelného zvonka aj zvnútra omietaného muriva, drevených podláh a obkladov a pod. Voči trom stranám skôr uzavretý objem sa k juhu, výhľadu a záhrade otvára jednotným rastrom otvorov. Striktný zjav domu je relativizovaný premenným zjavom sústavy sklopno-otáčavých okeníc z pozinkovaného ťahokovu.

Vila sa začína obývať a nasleduje kultivácia záhrady pod ňou. Až týmto sa za istý čas naplní jedno z podmieňujúcich kritérií takéhoto typu - komponovaný a hierarchizovaný vzťah domu a jeho bezprostredného okolia.

Foto: Tomáš Manina
Skica konceptu,
Skica konceptu,autor: Pavol Paňák

 

Viac napovedia ďaľšie pohľady ilustrujúce výslednú podobu priestorov:

Foto: Tomáš Manina
Foto: Tomáš Manina
Foto: Tomáš Manina
Foto: Tomáš Manina
Foto: Tomáš Manina
Foto: Tomáš Manina

Dispozičné a priestorové usporiadanie je znázornené na nasledujúcich výkresoch:

Situácia,
Situácia,autor: ATELIÉR A. B.K.P.Š
Pôdorys podzemného podlažia,
Pôdorys podzemného podlažia,autor: ATELIÉR A. B.K.P.Š
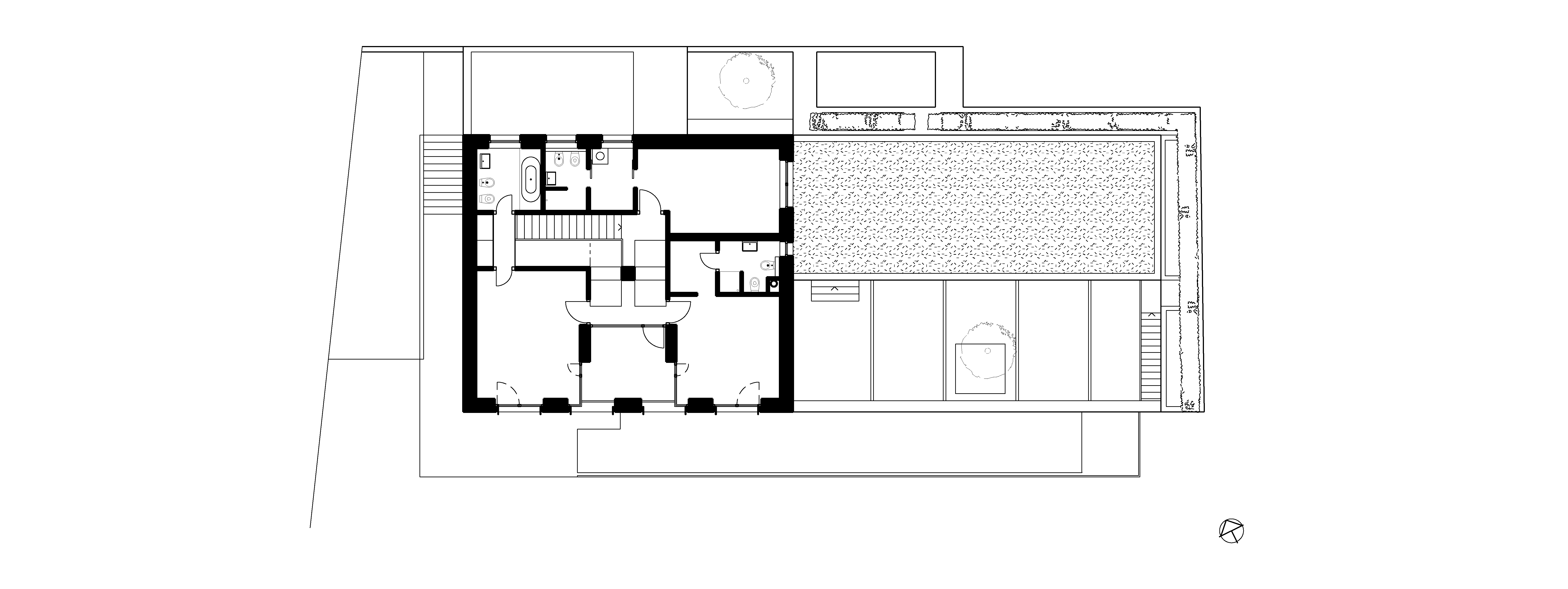
Pôdorys prízemia,
Pôdorys prízemia,autor: ATELIÉR A. B.K.P.Š
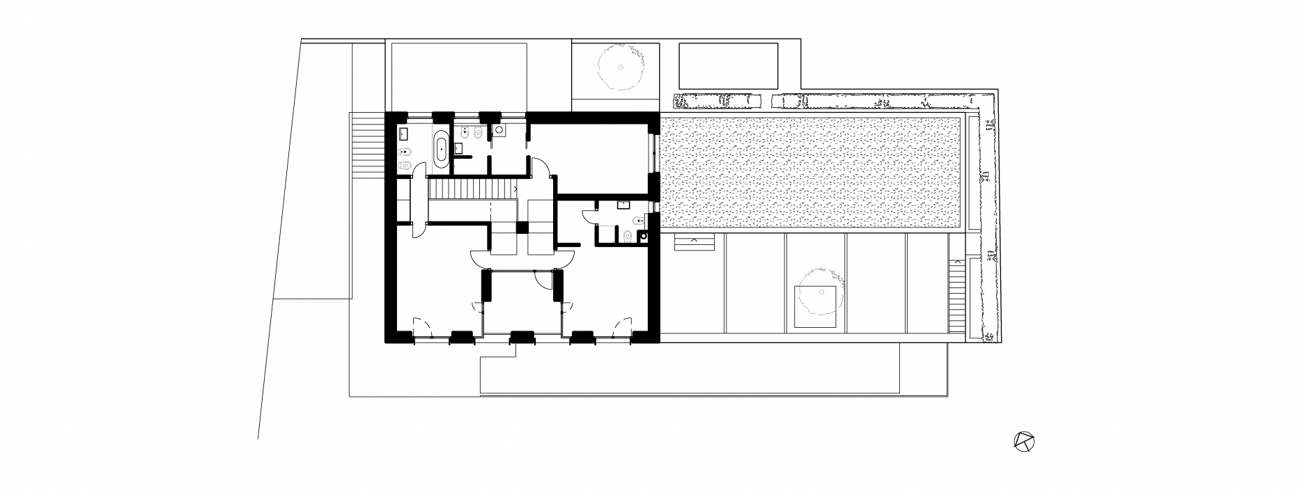
Pôdorys poschodia,
Pôdorys poschodia,autor: ATELIÉR A. B.K.P.Š
Rez A-A,
Rez A-A,autor: ATELIÉR A. B.K.P.Š
Rez B-B,
Rez B-B,autor: ATELIÉR A. B.K.P.Š
Pohľad južný,
Pohľad južný,autor: ATELIÉR A. B.K.P.Š

Podklady: ATELIÉR A. B.K.P.Š., fotografie: Tomáš Manina

Poloha diela

Ing. arch. Martin Kusý II.
Ing. arch. Pavol Paňák
ing.arch. Jana Paňáková

Súvisiace články

Vložené
3. september 2019
0
5376
Hlavný obsahHlavný obsah
Čakajte prosím