Advertorial

Pozvánka na 2. ročník stavebného veľtrhu BigMarket na Slovensku

Na podujatí sa predstaví až 37 vystavovateľov - popredných dodávateľov stavebných materiálov a inovácií s prezentáciou...

Hotel Hirschen Spa House, Rakúsko

Novotvar v prostredí alpskej obce.

Vytvorte si kúpeľňu snov: dizajnové riešenie od značky hansgrohe

Hansgrohe - prémiová značka kúpeľňových riešení, ponúka nadčasový dizajn, technickú precíznosť a udržateľné inovácie...

Okná Internorm za minuloročné ceny + hliníkový kryt zdarma!

Využite špeciálnu akciu Internorm: okná za minuloročné ceny a hliníkový kryt úplne zadarmo. Ponuka je časovo obmedzená!

Moderné plynové technológie: Efektivita a inovácie pre 21. storočie

Sumarizácia najdôležitejších inovácií, ktoré redefinujúcich využitie tohto energetického zdroja.

Utesňovanie spodných stavieb pomocou hydro-aktívnej fólie AMPHIBIA.

AMPHIBIA 3000 GRIP 1.3 od spoločnosti ATRO predstavuje modernú hydroizolačnú technológiu, ktorá spája vysokú odolnosť,...

Dekarbonizácia individuálneho vykurovania domácností – Green Deal evolučne a nie revolučne

Ambiciózne plány EK narazili na ekonomické možnosti domácností v jednotlivých členských štátoch –...

Minimalistické dvere IDEA – technická precíznosť a čistota prevedenia

IDEA DOOR od spoločnosti JAP prináša do interiéru čistý minimalistický vzhľad vďaka bezrámovému riešeniu a precíznej...

Dom s výhľadom na údolie, Dlouhý Most (ČR)

Kontinuita riešenia od vonkajšieho obkladu až po kovania a kľučky.

Schell Vitus – osvedčené riešenie pre sprchy a umývadlá vo verejnom sektore s viac ako desaťročnou tradíciou

Nástenné nadomietkové armatúry Vitus sú mimoriadne vhodné pre rýchlu a efektívnu...

Kompozitné okná predstavujú súčasnosť a budúcnosť

Okenné profily z kompozitného materiálu RAU-FIPRO X od spoločnosti Rehau sú v porovnaní s tradičnými plastovými profilmi mnohonásobne...

Myotis - stoly 2025

Najnovší sortiment stolov pre zariadenie interiérov...

Priemyselné sklenené priečky Dorsis Digero: svetelné rozhranie pre moderné interiéry

Spojenie moderného dizajnu, funkčnosti a svetla do harmonického architektonického prvku.

Význam prirodzeného svetla pre moderné a flexibilné pracovné prostredie

Kancelárska budova Baumit v slovinskom Trzine prešla premenou na moderné a udržateľné pracovisko. Architekti kládli dôraz...

Konferencia Xella Dialóg predstaví novinky a trendy v stavebníctve

Mottom šiesteho ročníku on-line konferencie odborníkov Xella Dialóg je Efektívny návrh budov 2025+: zmeny a riešenia

Dom z betónových tvárnic, Chrustenice pri Prahe

Poctivé priznanie materiality, racionálnosť a úprimnosť výrazových prostriedkov.
Diela
Red 311.07.2016
57290+25
Dom z betónových tvárnic, Chrustenice pri Prahe
Autori: Doc. Ing. arch. Milan Rak, Ing. arch Alena RežnáNávrh: 2007 - 2010Realizácia: 2010 - 2012Adresa: Chrustenice , Česká republikaPublikované: 11. júl 2016

Pozemok sa nachádza v malej obci Chrustenice, vzdialenej 10 km od Prahy. Dom na rovinatej parcele je koncepčne navrhnutý ako jednoduchý predĺžený hranol z betónových pohľadových tvránic. Plná stenová hmota je smerom do záhrady odľahčená ustúpeným presklením priečelia, ktoré vytvára krytý priestor pre terasu.

foto: Filip Šlapal
Situácia
SituáciaArchteam

Ekonomické riešenie dispozície z trojmetrových modulov sa premieta do minimalistického výrazu stavby. Pri vstupnej časti domu je umiestnená garáž pre dve autá. Vedľa nej je kryté závetrie. Dispozícia domu je charakteristická predĺženou chodbou - šatníkom, z ktorého sú prístupné všetky obytné miestnosti, čo umožnilo ich priame napojenie s terasou lemujúcou juhovýchodnú stranu domu.

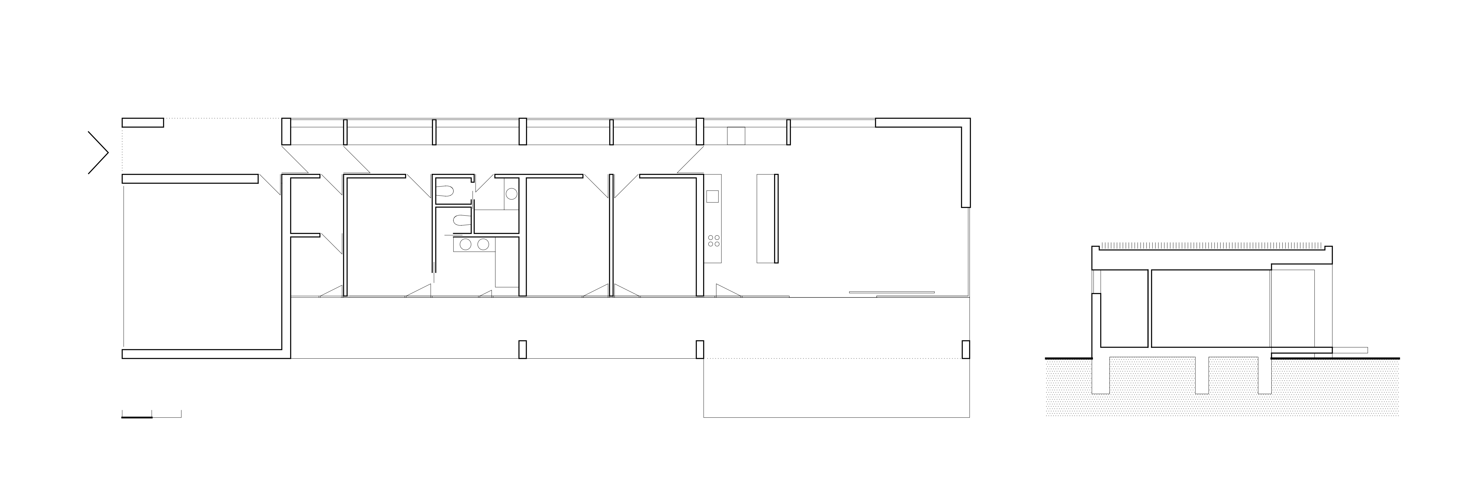
Pôdorys a rez
Pôdorys a rezArchteam

Dom je realizovaný stenovou technológiou z betónových sendvičových tvárnic s vnútorným zateplením z polystyrénu. Tvárnice sú nalepené na vysokopevnostnú maltu. Vzhľadom na to, že je štruktúra tvárnic z exteriéru (a čiastočne aj interiéru) priznaná, konštrukcia domu je navrhnutá dôsledne v module stavebných prvkov. Spoje sú dôkladne vyšpárované a povrch je ošetrený penetráciou. Strecha domu je riešená ako rovná s vnútornými zvodmi. Povrch je osadený extenzívnou zeleňou, ktorú tvoria trávy a kvitnúce byliny.

foto: Filip Šlapal
foto: Filip Šlapal
foto: Filip Šlapal
foto: Filip Šlapal
foto: Filip Šlapal
foto: Filip Šlapal
Pohľady
Pohľady

Podklady: Archteam

Archinfo, architektúra, urbanizmus, dizajn, grafika, umenie, Slovensko (architecture, architect, design, CGI, art, Slovakia)

Poloha diela

Doc. Ing. arch. Milan Rak
Ing. arch Alena Režná
Vložené
29. jún 2016
0
5729
Hlavný obsahHlavný obsah
Čakajte prosím