Advertorial

Pozvánka na 2. ročník stavebného veľtrhu BigMarket na Slovensku

Na podujatí sa predstaví až 37 vystavovateľov - popredných dodávateľov stavebných materiálov a inovácií s prezentáciou...

Hotel Hirschen Spa House, Rakúsko

Novotvar v prostredí alpskej obce.

Vytvorte si kúpeľňu snov: dizajnové riešenie od značky hansgrohe

Hansgrohe - prémiová značka kúpeľňových riešení, ponúka nadčasový dizajn, technickú precíznosť a udržateľné inovácie...

Okná Internorm za minuloročné ceny + hliníkový kryt zdarma!

Využite špeciálnu akciu Internorm: okná za minuloročné ceny a hliníkový kryt úplne zadarmo. Ponuka je časovo obmedzená!

Moderné plynové technológie: Efektivita a inovácie pre 21. storočie

Sumarizácia najdôležitejších inovácií, ktoré redefinujúcich využitie tohto energetického zdroja.

Utesňovanie spodných stavieb pomocou hydro-aktívnej fólie AMPHIBIA.

AMPHIBIA 3000 GRIP 1.3 od spoločnosti ATRO predstavuje modernú hydroizolačnú technológiu, ktorá spája vysokú odolnosť,...

Dekarbonizácia individuálneho vykurovania domácností – Green Deal evolučne a nie revolučne

Ambiciózne plány EK narazili na ekonomické možnosti domácností v jednotlivých členských štátoch –...

Minimalistické dvere IDEA – technická precíznosť a čistota prevedenia

IDEA DOOR od spoločnosti JAP prináša do interiéru čistý minimalistický vzhľad vďaka bezrámovému riešeniu a precíznej...

Dom s výhľadom na údolie, Dlouhý Most (ČR)

Kontinuita riešenia od vonkajšieho obkladu až po kovania a kľučky.

Schell Vitus – osvedčené riešenie pre sprchy a umývadlá vo verejnom sektore s viac ako desaťročnou tradíciou

Nástenné nadomietkové armatúry Vitus sú mimoriadne vhodné pre rýchlu a efektívnu...

Kompozitné okná predstavujú súčasnosť a budúcnosť

Okenné profily z kompozitného materiálu RAU-FIPRO X od spoločnosti Rehau sú v porovnaní s tradičnými plastovými profilmi mnohonásobne...

Myotis - stoly 2025

Najnovší sortiment stolov pre zariadenie interiérov...

Priemyselné sklenené priečky Dorsis Digero: svetelné rozhranie pre moderné interiéry

Spojenie moderného dizajnu, funkčnosti a svetla do harmonického architektonického prvku.

Význam prirodzeného svetla pre moderné a flexibilné pracovné prostredie

Kancelárska budova Baumit v slovinskom Trzine prešla premenou na moderné a udržateľné pracovisko. Architekti kládli dôraz...

Konferencia Xella Dialóg predstaví novinky a trendy v stavebníctve

Mottom šiesteho ročníku on-line konferencie odborníkov Xella Dialóg je Efektívny návrh budov 2025+: zmeny a riešenia

Rekonštrukcia chalupy na českej Vysočine

Stav chalupy na vysočine umožnil zachovať len časť pôvodných obvodových konštrukcií, do ktorých bol vstavaný nový objekt. Architekti rešpektovali pôvodné hmotové a objemové usporiadanie.
Diela
Red 321.05.2016
32140+10
Rekonštrukcia chalupy na českej Vysočine
Autori: Ing. arch. Lukáš Urban, Ing. arch. Martin ČelikovskýNávrh: 2009 - 2011Realizácia: 2011 - 2014Adresa: Fryšava pod Žákovou Horou 73, Fryšava pod Žákovou Horou, Česká republikaPublikované: 21. máj 2016

Dvojica bielych múrov bola zachovaná ako reminiscencia pôvodného objektu vidieckej chalupy v havarijnom stave. Za nimi vyrástla nová hmota domu, ktorá ctí predchádzajúce objemové a tvarové usporiadanie. Tento prístup umožnil skĺbiť zámer citlivo vstúpiť do historického súboru okolitých stavieb s moderným minimalistickým poňatím architektúry. Skladaná vláknocementová krytina , ktorá je použitá na streche aj fasáde svojou drobnou mierkou odkazuje na okolité slamené strechy.

Interiér je v duchu pôvodnej stavby rozdelený priechodnou chodbou, ktorá oddeľuje spoločenský priestor od zvyšku domu. Obytný priestor je akcentovaný prevýšením do krovu, kde cez veľké strešné okno získava maximum južného slnka. Pásové kuchynské okno tvorí hlavný vizuálny kontakt so záhradou. Na prízemí je hlavná spálňa, kúpeľňa, technická miestnosť a schody do podkrovia, kde sú dve podkrovné izby s oknami na fasáde a do svetlíka nad obytným priestorom.

Situácia
Situácia
Vstup do domu
Vstup do domu
Pôvodné biele steny
Pôvodné biele steny
Pohľad od potoka
Pohľad od potoka
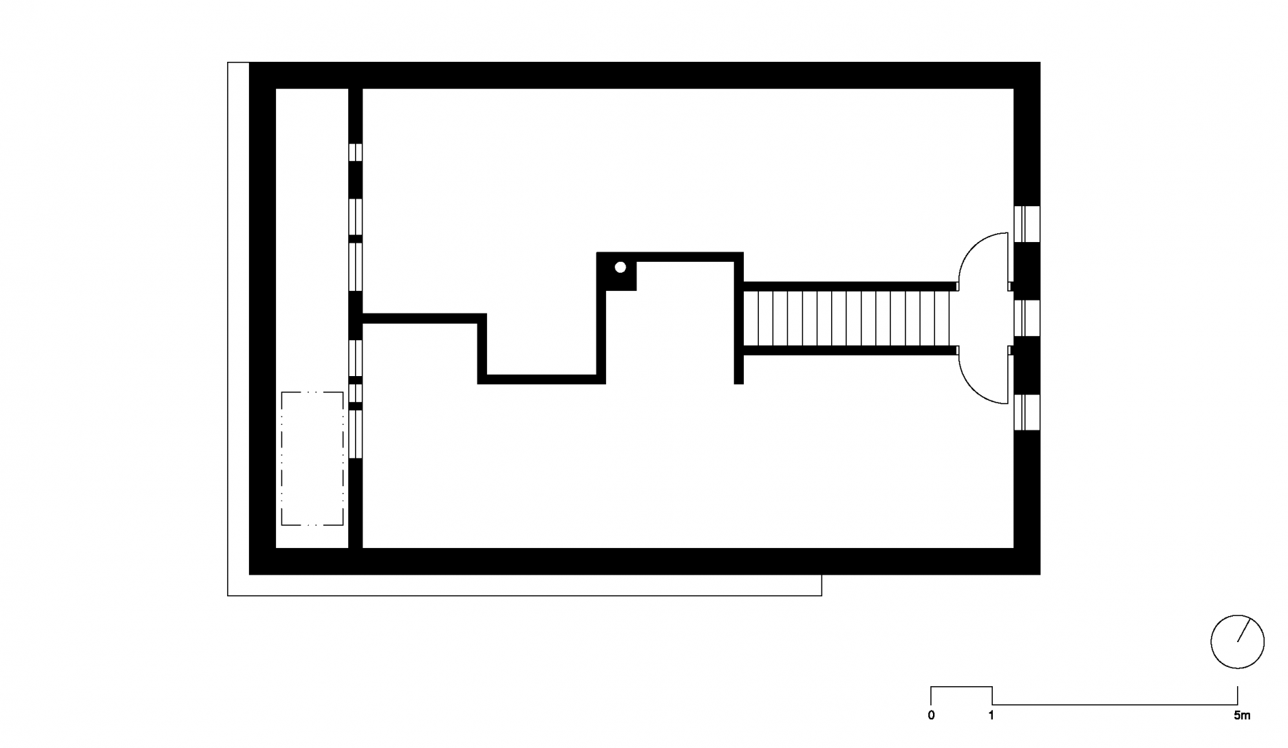
Pôdorys 1.NP
Pôdorys 1.NP
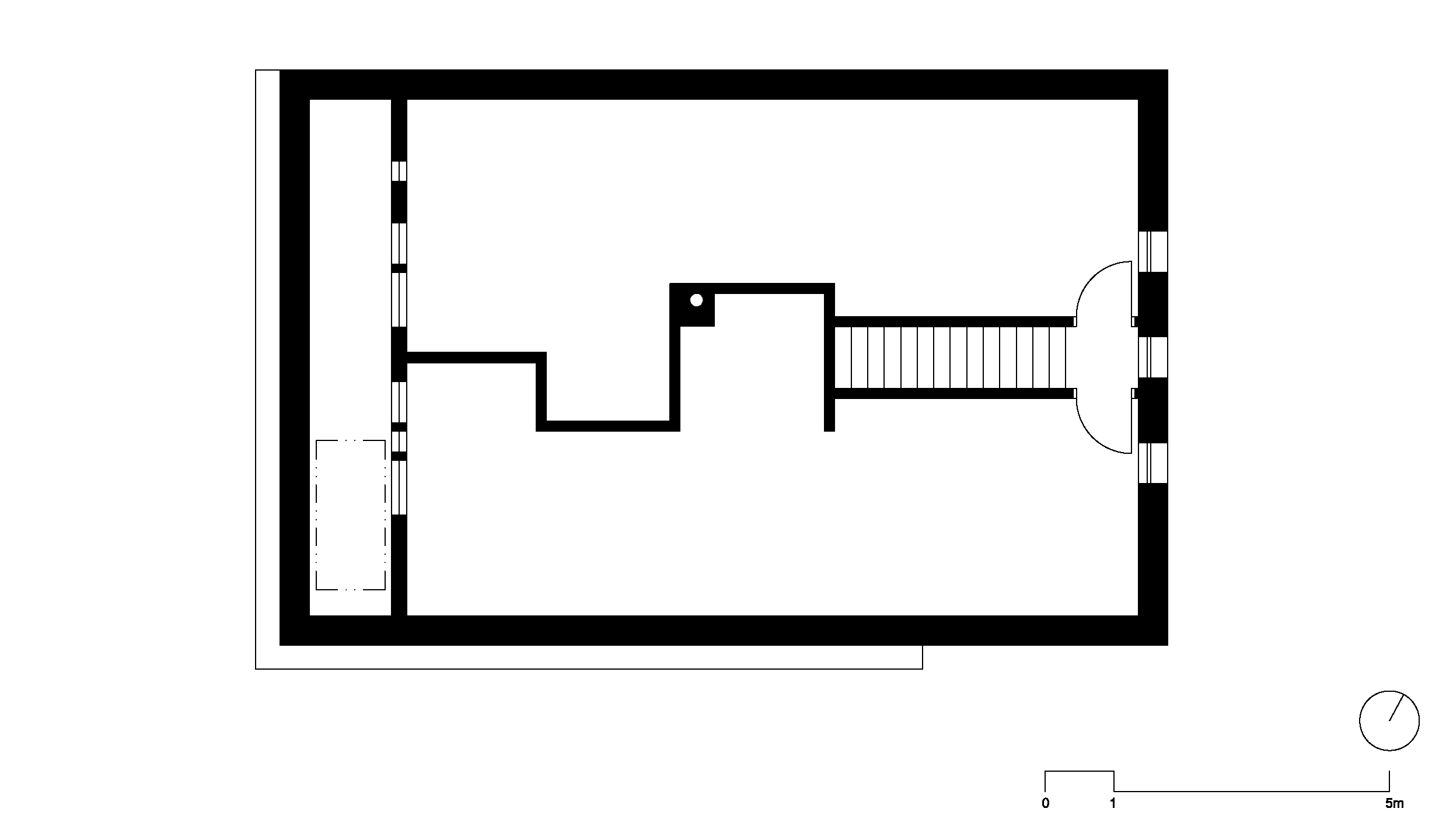
Pôdorys 2.NP
Pôdorys 2.NP
Priečny rez
Priečny rez
Západný pohľad
Západný pohľad
Východný pohľad
Východný pohľad
Južný pohľad
Južný pohľad
Severný pohľad
Severný pohľad

Poloha diela

Ing. arch. Lukáš Urban
Ing. arch. Martin Čelikovský
Vložené
19. máj 2016
0
3214
Hlavný obsahHlavný obsah
Čakajte prosím