Advertorial

Pozvánka na 2. ročník stavebného veľtrhu BigMarket na Slovensku

Na podujatí sa predstaví až 37 vystavovateľov - popredných dodávateľov stavebných materiálov a inovácií s prezentáciou...

Hotel Hirschen Spa House, Rakúsko

Novotvar v prostredí alpskej obce.

Vytvorte si kúpeľňu snov: dizajnové riešenie od značky hansgrohe

Hansgrohe - prémiová značka kúpeľňových riešení, ponúka nadčasový dizajn, technickú precíznosť a udržateľné inovácie...

Okná Internorm za minuloročné ceny + hliníkový kryt zdarma!

Využite špeciálnu akciu Internorm: okná za minuloročné ceny a hliníkový kryt úplne zadarmo. Ponuka je časovo obmedzená!

Moderné plynové technológie: Efektivita a inovácie pre 21. storočie

Sumarizácia najdôležitejších inovácií, ktoré redefinujúcich využitie tohto energetického zdroja.

Utesňovanie spodných stavieb pomocou hydro-aktívnej fólie AMPHIBIA.

AMPHIBIA 3000 GRIP 1.3 od spoločnosti ATRO predstavuje modernú hydroizolačnú technológiu, ktorá spája vysokú odolnosť,...

Dekarbonizácia individuálneho vykurovania domácností – Green Deal evolučne a nie revolučne

Ambiciózne plány EK narazili na ekonomické možnosti domácností v jednotlivých členských štátoch –...

Minimalistické dvere IDEA – technická precíznosť a čistota prevedenia

IDEA DOOR od spoločnosti JAP prináša do interiéru čistý minimalistický vzhľad vďaka bezrámovému riešeniu a precíznej...

Dom s výhľadom na údolie, Dlouhý Most (ČR)

Kontinuita riešenia od vonkajšieho obkladu až po kovania a kľučky.

Schell Vitus – osvedčené riešenie pre sprchy a umývadlá vo verejnom sektore s viac ako desaťročnou tradíciou

Nástenné nadomietkové armatúry Vitus sú mimoriadne vhodné pre rýchlu a efektívnu...

Kompozitné okná predstavujú súčasnosť a budúcnosť

Okenné profily z kompozitného materiálu RAU-FIPRO X od spoločnosti Rehau sú v porovnaní s tradičnými plastovými profilmi mnohonásobne...

Myotis - stoly 2025

Najnovší sortiment stolov pre zariadenie interiérov...

Priemyselné sklenené priečky Dorsis Digero: svetelné rozhranie pre moderné interiéry

Spojenie moderného dizajnu, funkčnosti a svetla do harmonického architektonického prvku.

Význam prirodzeného svetla pre moderné a flexibilné pracovné prostredie

Kancelárska budova Baumit v slovinskom Trzine prešla premenou na moderné a udržateľné pracovisko. Architekti kládli dôraz...

Konferencia Xella Dialóg predstaví novinky a trendy v stavebníctve

Mottom šiesteho ročníku on-line konferencie odborníkov Xella Dialóg je Efektívny návrh budov 2025+: zmeny a riešenia

Pasívny dom "Stodola" v Liptovskej Kokave

Kvalitná stavba z prírodných materiálov nemusí nutne znamenať vysoké náklady a zdĺhavú realizáciu. Od začiatku projekcie po dokončenie uplynulo osem mesiacov.
Diela
Red 326.03.2016
64910+16
Pasívny dom "Stodola" v Liptovskej Kokave
Ateliér: CreaterraAutori: Mgr. art. Bjørn Kierulf, Ing. arch. Petra Trokanová, Bc.Zastavaná plocha: 102,09 m2Podlažná plocha: 122,74 m2Investičný náklad: 150 000 €Realizácia: 2013 - 2013Adresa: Liptovská Kokava, SlovenskoPublikované: 26. marec 2016

Dom bol postavený pre klientku, ktorá sa chcela odsťahovať z Bratislavy a kúpila pozemok pod Tatrami v Liptovskej Kokave. Mala jasnú predstavu: dom výhradne z prírodných materiálov, cena 150 000 € a minimálne prevádzkové náklady. Dôležitá tiež bola rýchlosť výstavby. Klientka chápala, že ak chce stavať dom z prírodných materiálov zapadajúci do jedinečného prostredia, nemôže hľadať typový dom. Oslovila preto ateliér Createrra.

Dom v kontexte okolitých budov
Dom v kontexte okolitých budovFoto: Milan Hutera

Pasívny dom je situovaný na južnom svahu Liptovskej Kokavy s voľným výhľadom na rozľahlé kopce. Z východného okna je výhľad priamo na tatranský vrch Kriváň. Kokavský dom v maximálnej miere využíva južné slnečné zisky. Svojou jednoduchosťou a proporciami, dom-stodola zapadá do svojho prostredia. 

Situácia
Situácia

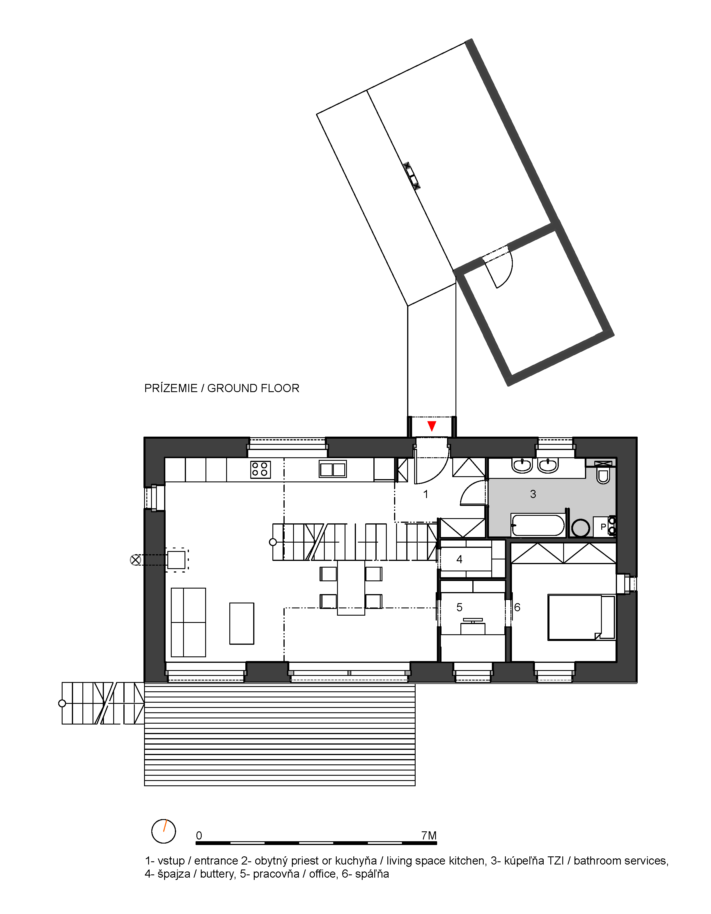
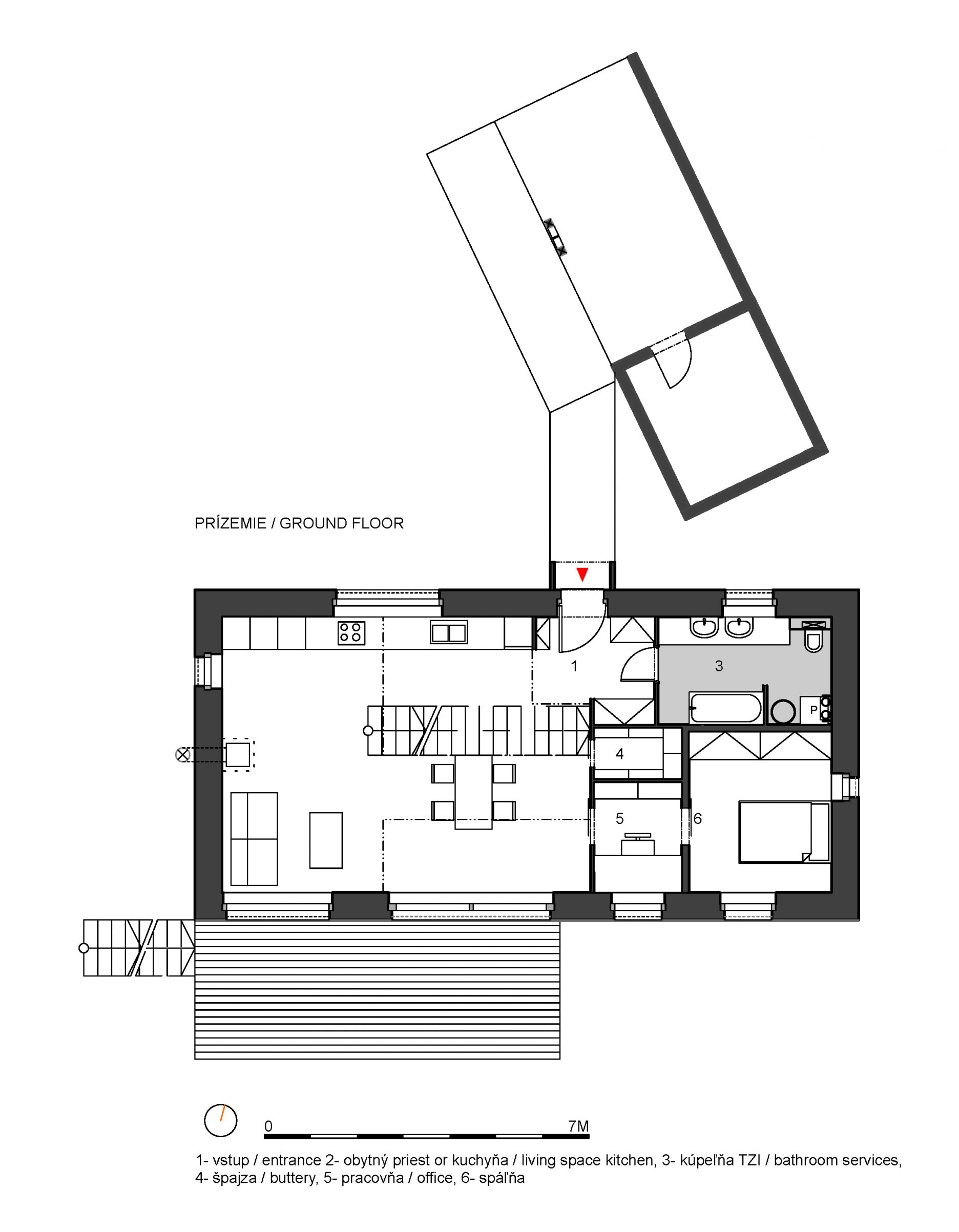
Na prvom podlaží sa nachádza zádverie, kuchyňa, kúpeľňa, obývací priestor a pracovňa so spálňou. K domu je pristavený drevený prístrešok pre auto a sklad.

Pôdorys 1.NP
Pôdorys 1.NP

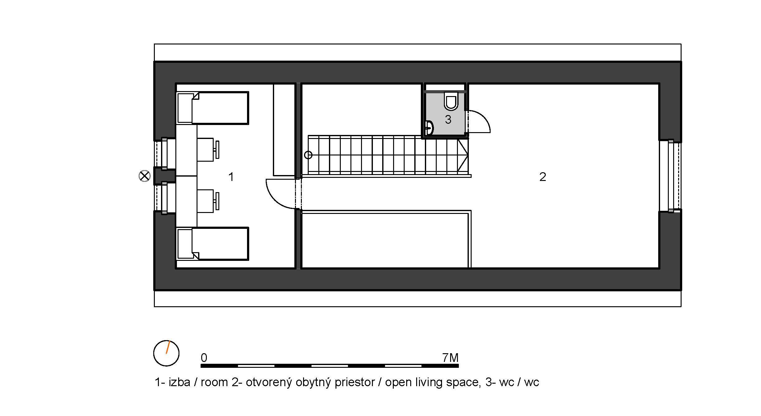
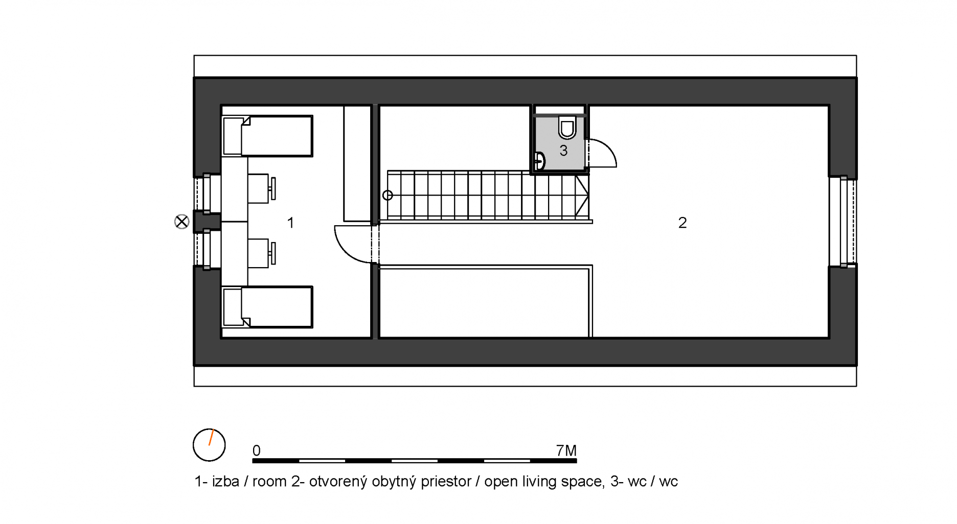
Na druhom podlaží sa nachádza detská izba a herňa. Zvláštnosťou dispozície je galéria otvorená cez obe podlažia. Celková započítateľná úžitková plocha (podľa PHPP) je 112 m2

Pôdorys 2.NP
Pôdorys 2.NP

Domček je z čisto prírodných materiálov, čo bola jedna z hlavných požiadaviek investorky. Obvodové steny sú zo slamených panelov Ecococon omietané hlinou. Vnútorné priečky tvorí drevená stojková konštrukcia s hľadkým dreveným záklopom. Strecha z drevených väzníkov vyplnená fúkanou celulózou má rovnaký zjednocujúcí povrch. Smrekové podlahy sú kefované a napustené marseillským mydlom. Fasáda je obložená dreveným obkladom z červeného smreka bez ďalšej povrchovej úpravy. Okná ako aj vstupné dvere sú drevo-hlinikové v pasívnom štandarde. Pri minimálnej spotrebe energie (malá pec na vykurovanie a systém Logitex na ohrev teplej vody) je to veľmi pohodlné a zdravé bývanie.

Strmá sedlová strecha a drevená fasáda odkazuje na tradičné rysy lokálnej architektúry
Strmá sedlová strecha a drevená fasáda odkazuje na tradičné rysy lokálnej architektúryFoto: Milan Hutera
Symetrické riešenie fasády
Symetrické riešenie fasádyFoto: Milan Hutera
Krytý vchod
Krytý vchodFoto: Milan Hutera

Interiér je preslnený zo všetkých svetových strán a svojim tvorivým priestorovým usporiadaním pôsobí veľkoryso a vzdušne a zároveň útulne.

Ústredné kúrenie - úplne vystačí pre celý dom
Ústredné kúrenie - úplne vystačí pre celý domFoto: Milan Hutera
Masívne drevené schody
Masívne drevené schodyFoto: Milan Hutera
Podporná konštrukcia terasy z masívneho dreva
Podporná konštrukcia terasy z masívneho drevaFoto: Milan Hutera
Obývačka
ObývačkaFoto: Milan Hutera

Záznam konference Příběhy domů , kde Bjørn Kierulf hovorí o projekte:

2532
Youtube

Realizácia hrubej satvby trvala menej ako mesiac. Nosné a obvodové konštrukcie stavby sú vytvorené z prefabrikovaných slamených panelov. Tieto panely sa pripravujú vo výrobni na mieru každému domu. Po poskladaní hrubej stavby domu sa panely z vnútornej strany omietajú priamo na slamu hlinenými omietkami az vonkajšej strany opatrujú ďalšími vrstvami fasády.

Viditeľné slamené panely počas výstavby
Viditeľné slamené panely počas výstavby
Aplikovanie vzduchotesnej, ale difúzne otvorenej membrány
Aplikovanie vzduchotesnej, ale difúzne otvorenej membrány
Ako vonkajší obklad bol použitý jemne rezaný európsky červený smrek
Ako vonkajší obklad bol použitý jemne rezaný európsky červený smrekFoto Marián Dovuhn
Masívny drevený obklad v interiéri
Masívny drevený obklad v interiéri
Pohľad na dokončenú omietku v interiéri
Pohľad na dokončenú omietku v interiéri

Stavebno-fyzikálne parametre domu:

Ročná potreba tepla na vykurovanie: 13,6 kwh/(m2/a)
Blower Door Test: n50 = 0,20 l/h (výsledok svedčí o precíznom prevedení stavby - maximálna hodnota neprievzdušnosti je pre pasívne domy je 0,20 l/h)
Vykurovaná plocha: 112,9 m”
Tepelná strata: 15,6 w/m” (celkom 2538 W)
Potreba primárnej energie - celková (OPV, vykurovanie, chladenie, pomocná elektrina a domáce spotrebiče): 102,4 kwh/(m*/a)

podklady: Createrra - Architektonické Štúdio

Ateliér

Poloha diela

Mgr. art. Bjørn Kierulf
Ing. arch. Petra Trokanová, Bc.
Vložené
26. marec 2016
0
6491
Hlavný obsahHlavný obsah
Čakajte prosím