Advertorial

Pozvánka na 2. ročník stavebného veľtrhu BigMarket na Slovensku

Na podujatí sa predstaví až 37 vystavovateľov - popredných dodávateľov stavebných materiálov a inovácií s prezentáciou...

Hotel Hirschen Spa House, Rakúsko

Novotvar v prostredí alpskej obce.

Vytvorte si kúpeľňu snov: dizajnové riešenie od značky hansgrohe

Hansgrohe - prémiová značka kúpeľňových riešení, ponúka nadčasový dizajn, technickú precíznosť a udržateľné inovácie...

Okná Internorm za minuloročné ceny + hliníkový kryt zdarma!

Využite špeciálnu akciu Internorm: okná za minuloročné ceny a hliníkový kryt úplne zadarmo. Ponuka je časovo obmedzená!

Moderné plynové technológie: Efektivita a inovácie pre 21. storočie

Sumarizácia najdôležitejších inovácií, ktoré redefinujúcich využitie tohto energetického zdroja.

Utesňovanie spodných stavieb pomocou hydro-aktívnej fólie AMPHIBIA.

AMPHIBIA 3000 GRIP 1.3 od spoločnosti ATRO predstavuje modernú hydroizolačnú technológiu, ktorá spája vysokú odolnosť,...

Dekarbonizácia individuálneho vykurovania domácností – Green Deal evolučne a nie revolučne

Ambiciózne plány EK narazili na ekonomické možnosti domácností v jednotlivých členských štátoch –...

Minimalistické dvere IDEA – technická precíznosť a čistota prevedenia

IDEA DOOR od spoločnosti JAP prináša do interiéru čistý minimalistický vzhľad vďaka bezrámovému riešeniu a precíznej...

Dom s výhľadom na údolie, Dlouhý Most (ČR)

Kontinuita riešenia od vonkajšieho obkladu až po kovania a kľučky.

Schell Vitus – osvedčené riešenie pre sprchy a umývadlá vo verejnom sektore s viac ako desaťročnou tradíciou

Nástenné nadomietkové armatúry Vitus sú mimoriadne vhodné pre rýchlu a efektívnu...

Kompozitné okná predstavujú súčasnosť a budúcnosť

Okenné profily z kompozitného materiálu RAU-FIPRO X od spoločnosti Rehau sú v porovnaní s tradičnými plastovými profilmi mnohonásobne...

Myotis - stoly 2025

Najnovší sortiment stolov pre zariadenie interiérov...

Priemyselné sklenené priečky Dorsis Digero: svetelné rozhranie pre moderné interiéry

Spojenie moderného dizajnu, funkčnosti a svetla do harmonického architektonického prvku.

Význam prirodzeného svetla pre moderné a flexibilné pracovné prostredie

Kancelárska budova Baumit v slovinskom Trzine prešla premenou na moderné a udržateľné pracovisko. Architekti kládli dôraz...

Konferencia Xella Dialóg predstaví novinky a trendy v stavebníctve

Mottom šiesteho ročníku on-line konferencie odborníkov Xella Dialóg je Efektívny návrh budov 2025+: zmeny a riešenia

Loft v stodole Hittisau, Rakúsko

Dostavba hospodárskeho domu. Autorom je ateliér miestneho rodáka Georga Bechtera. Stavba bola ocenená rakúskou nomináciou na tohtoročnú Európsku cenu za architektúru - Mies Van Der Rohe Award.
Diela
Red 301.05.2017
16110+10
Loft v stodole Hittisau, Rakúsko
Autori: Georg BechterSpolupráca: Anna HössPlocha pozemku: 1230 m2Podlažná plocha: 185 m2Investičný náklad: 315 000 €Návrh: 2013 - 2014Realizácia: 2014 - 2015Adresa: Hittisau, RakúskoPublikované: 1. máj 2017

Obraz rozmanitej alpskej krajiny regiónu Bregenzerwald spoluvytvárjú drevené stavby. Miestna architektúra je účelná, prirodzená a spätá s prírodou. V oblasti sa sa zachovali zručnosti späté s týmto tradičným materiálom a využívajú sa v duchu dnešnej doby. Príkladom je aj malá obec Hittisau, kde nájdeme viacero zaujímavých stavieb spájajúcich tradíciu so súčasným spôsobom života.

História tohto archetypu stavieb siaha do 17. storočia, keď sa rozvíjala zástavba na južne orientovanom svahu nad údolím. Až donedávna bol dom patriaci miestnej rodine plne využívaný. Objekt však z veľkej časti vyhorel a bolo potrebné rozhodnúť o jeho ďaľšom osude. Majitelia sa rozhodli pre rekonštrukciu a úpravu obytnej časti budovy. Stavba si zachovala svoju typickú siluetu, pričom však nová nová časť reaguje na náročné požiadavky majiteľov.

foto: Adolf Bereuter
Situácia
Situácia
foto: Adolf Bereuter

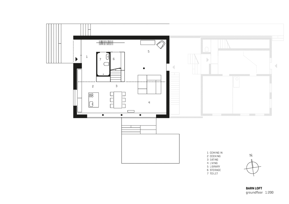
Nosnú konštrukciu obnovenej časti objektu tvoria smrekové hranoly v kombinácii s lepenými drevenými väzníkmi. Prevádzka je rozdelená na dennú časť na prízemí a spanie situované na vloženom medzipodlaží. Najvýraznejším zásahom do pôvodnej podoby drevostavby bolo integrovanie rozsiahleho zasklenia do južnej fasády. Zasklenie siaha takmer po strop, čo umožňuje presvetlenie a výhľady na panorámu údolia aj z vyššieho podlažia. Špecifickým detailom je možnosť vertikálneho posunu spodných polí zasklenia. V lete tak možno prepojiť otvorený obývací priestor s exteriérovou pobytovou terasou. Okenné parapety potom slúžia ako komfortné sedenie. Jedinou oddelenou časť na prízemí je hygienický blok, ktorý oddeľuje zádverie.

Pôdorys 1. NP
Pôdorys 1. NP
Pôdorys 2. NP
Pôdorys 2. NP

Hrazdená konštrukcia domu je nanovo zateplená izoláciou z celulózy. Z interiéru tvorí pohľadovú vrstvu rezivo šírky 45 cm, ktoré je natreté bielou lazúrou. Na stenách a strope je pod náterom jasne viditeľná štruktúra dreva. Pri stenách sa podarilo dosiahnuť parameter U 0,15 W/m² K. Vložená konštrukcia poschodia je vyhotovená z masívnych smrekových profilov. Obklad a podlahu tvoria taktiež smrekové dosky s priznanou prírodnou farbou a textúrou. Toto riešenie bolo zvolené s ohľadom na cenu a rýchlosť stavby.

Priečny rez
Priečny rez

Šindle na šikmej streche sú v rámci miestnej tradície vyrobené z trvácneho smrekovcového dreva. Jedľové drevo je použité ako obklad na fasádach, drevo z limby s vysokým podielom živice zas zabezpečuje trvácnosť zábradlia.

foto: Adolf Bereuter
foto: Adolf Bereuter
foto: Adolf Bereuter
foto: Adolf Bereuter
foto: Adolf Bereuter
Pôvodný stav budovy
Pôvodný stav budovy

Poloha diela

Georg Bechter
Vložené
3. marec 2017
0
1611
Hlavný obsahHlavný obsah
Čakajte prosím