Na podujatí sa predstaví až 37 vystavovateľov - popredných dodávateľov stavebných materiálov a inovácií s prezentáciou...
Novotvar v prostredí alpskej obce.
Hansgrohe - prémiová značka kúpeľňových riešení, ponúka nadčasový dizajn, technickú precíznosť a udržateľné inovácie...
Využite špeciálnu akciu Internorm: okná za minuloročné ceny a hliníkový kryt úplne zadarmo. Ponuka je časovo obmedzená!
Sumarizácia najdôležitejších inovácií, ktoré redefinujúcich využitie tohto energetického zdroja.
AMPHIBIA 3000 GRIP 1.3 od spoločnosti ATRO predstavuje modernú hydroizolačnú technológiu, ktorá spája vysokú odolnosť,...
Ambiciózne plány EK narazili na ekonomické možnosti domácností v jednotlivých členských štátoch –...
IDEA DOOR od spoločnosti JAP prináša do interiéru čistý minimalistický vzhľad vďaka bezrámovému riešeniu a precíznej...
Kontinuita riešenia od vonkajšieho obkladu až po kovania a kľučky.
Nástenné nadomietkové armatúry Vitus sú mimoriadne vhodné pre rýchlu a efektívnu...
Okenné profily z kompozitného materiálu RAU-FIPRO X od spoločnosti Rehau sú v porovnaní s tradičnými plastovými profilmi mnohonásobne...
Najnovší sortiment stolov pre zariadenie interiérov...
Spojenie moderného dizajnu, funkčnosti a svetla do harmonického architektonického prvku.
Kancelárska budova Baumit v slovinskom Trzine prešla premenou na moderné a udržateľné pracovisko. Architekti kládli dôraz...
Mottom šiesteho ročníku on-line konferencie odborníkov Xella Dialóg je Efektívny návrh budov 2025+: zmeny a riešenia

Spolupráca päťtisícového mesta a pražského ateliéru VYŠEHRAD, si vyslúžila ocenenie finalista v uplynulom ročníku Českej ceny za architektúru. Materská škola na ulici Za Branou zaujala porotu prehľadným priestorovým riešením, dôsledne prepojeným s exteriérom. Obdobné konštatovanie platí aj pre "dom so zvláštnym režimom", ktorý slúži seniorom s Alzheimerovou chorobou. Napriek komplikovaným východiskovým podmienkam sa podarilo architektom na svahovitej parcele elegantne vyriešiť bezbariérovú prevádzku a dôležité sprostredkovanie kontaktu s exteriérom aj seniorom so zníženou mobilitou.
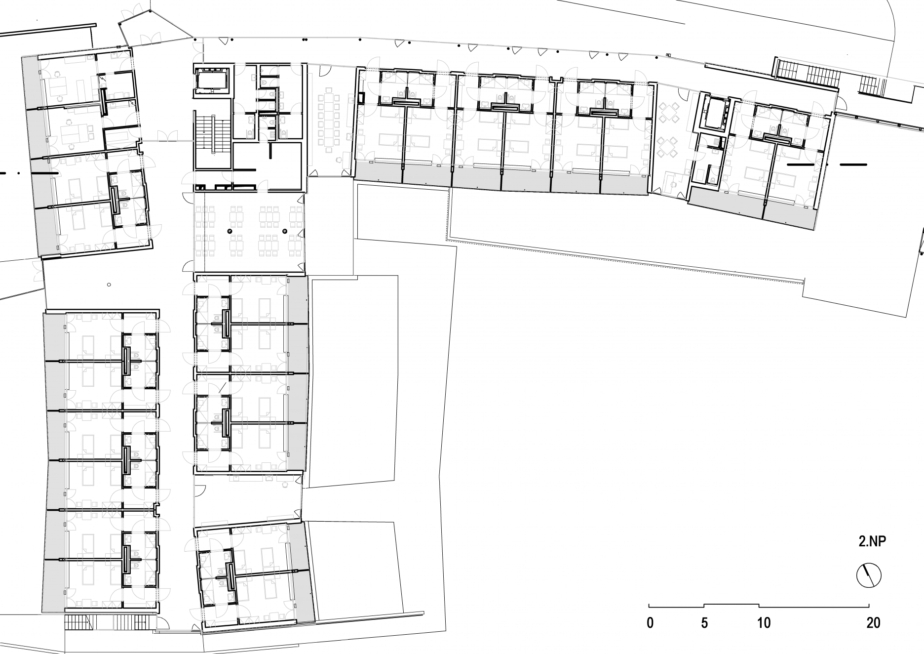
Dom sociálnych služieb v Pacove je koncipovaný ako prístavba k existujúcemu domu seniorov, na ktorý prevádzkovo aj hmotovo nadväzuje. Koncept, dispozícia aj vybavenie nového domu umožňuje komplexnú starostlivosť o klientov s Alzheimerovou chorobou.
Severná fasáda prebieha pozdĺž priľahlej komunikácie a nadväzuje na uličnú fasádu domu seniorov. V západnej časti sa dom stáča do záhrady, v pôdorysnej stope písmena L.
Takto vzniká južne orientovaný vnútroblok, izolovaný od priľahlej komunikácie, ktorý slúži ako pobytová záhrada pre seniorov. Pri západnom priečelí nadväzujú vonkajšie pobytové plochy na rekultivovanú vodnú plochu.
Objekt bezbariérovo nadväzuje na susedný domov seniorov. V suteréne je umiestnené technické zázemie a prevádzka práčovne. Prvé, druhé a tretie nadzemné podlažia sú koncipované ako pobytové. Do malých blokov zostavené izby klientov vzájomne oddeľujú "zálivy" chodieb, so špecifickou funkciou – napríklad Ergoterapia, kaplnka, priestor pre návštevy... Na každom pobytovom podlaží je zároveň situovaná jedáleň.
Oceľobetónová stavba je koncipovaná prevažne ako priečny stenový systém s monolitickými stropmi. Konštrukcia vertikálnych komunikačných jadier je tiež monolitická. Spojovací krčok kombinuje oceľové priehradové nosníky a oceľobetónové stropné dosky.
Čisté ortogonálne plochy fasád kombinujú architekti s pôdorysne zlomenými líniami lodžií a chodieb. “Záměrem bylo vytvoření rostlého ale funkčně přehledného prostoru, který bude pro své uživatele inspirativní, bude zaměstnávat jejich pozornost, zároveň však bude čitelný a snadno identifikovatelný,” vysvetľujú autori.
Na fasádach domu sa uplatňuje kombinácia homogénnych plôch z profilov liateho skla, plôch výplní otvorov a železobetónových dosiek lodžií, lemovaných výraznými oceľovými konštrukciami, oddeľujúcimi jednotlivé podlažia.
Dôležitou súčasťou návrhu je sprostredkovanie kontaktu s exteriérom aj seniorom so zníženou mobilitou. Rozmerné transparentné a priesvitné plochy fasád dopĺňajú pobytové lodžie, terasy a plochy v exteriéri. Návrh zároveň dbá na zachovanie intimity a pocitu bezpečia v izbách.
Podklady: VYŠEHRAD atelier