Hansgrohe - prémiová značka kúpeľňových riešení, ponúka nadčasový dizajn, technickú precíznosť a udržateľné inovácie...
Využite špeciálnu akciu Internorm: okná za minuloročné ceny a hliníkový kryt úplne zadarmo. Ponuka je časovo obmedzená!
Na podujatí sa predstaví až 37 vystavovateľov - popredných dodávateľov stavebných materiálov a inovácií s prezentáciou...
Sumarizácia najdôležitejších inovácií, ktoré redefinujúcich využitie tohto energetického zdroja.
AMPHIBIA 3000 GRIP 1.3 od spoločnosti ATRO predstavuje modernú hydroizolačnú technológiu, ktorá spája vysokú odolnosť,...
Ambiciózne plány EK narazili na ekonomické možnosti domácností v jednotlivých členských štátoch –...
IDEA DOOR od spoločnosti JAP prináša do interiéru čistý minimalistický vzhľad vďaka bezrámovému riešeniu a precíznej...
Kontinuita riešenia od vonkajšieho obkladu až po kovania a kľučky.
Nástenné nadomietkové armatúry Vitus sú mimoriadne vhodné pre rýchlu a efektívnu...
Okenné profily z kompozitného materiálu RAU-FIPRO X od spoločnosti Rehau sú v porovnaní s tradičnými plastovými profilmi mnohonásobne...
Najnovší sortiment stolov pre zariadenie interiérov...
Spojenie moderného dizajnu, funkčnosti a svetla do harmonického architektonického prvku.
Kancelárska budova Baumit v slovinskom Trzine prešla premenou na moderné a udržateľné pracovisko. Architekti kládli dôraz...
Mottom šiesteho ročníku on-line konferencie odborníkov Xella Dialóg je Efektívny návrh budov 2025+: zmeny a riešenia
Robot WLTR predstavuje moderný prístup k murovaným konštrukciám. Vďaka automatizácii dokáže rýchlo, presne a bezpečne realizovať...

O význame tohto počinu svedčí aj nedávne ocenenie. Redakčná rada revue pre kultúrne dedičstvo Pamiatky a múzeá, spoločne s jej vydavateľmi – Slovenským národným múzeom a Pamiatkovým úradom Slovenskej republiky, udelila rekonštrukcii prestížnu cenu za najvýznamnejšie aktivity v oblasti ochrany nášho kultúrneho dedičstva za rok 2015 v kategórii "obnova". (Výročné ceny vzišli spomedzi 113 nominácií).
Osud neologickej synagógy v Lučenci vám priblíži výborným odborným textom Mgr. Andrea Moravčíková (z Krajského pamiatkového úradu v Banskej Bystrici, pracovisko Lučenec, ktorá sa aj osobne angažovala na záchane synagógy):
V publikácii venovanej synagógam Slovenska sa píše: „Za najväčšou synagógou na Slovensku sa musíme vydať do srdca Novohradu – Lučenca. Napriek tomu, že je obklopená panelákmi a chátra, pôsobí ohromujúcim dojmom.“ V súčasnosti tento citát ešte stále platí, ale našťastie už bez slova chátra. Synagóga ako centrum náboženského a verejného života židovskej obce mala pôvodne tri nosné funkcie - bola miestom náboženských obradov, školou náboženských zákonov a miestom verejných rokovaní. Pokiaľ nie je v stavbe prítomná Tóra a nevykonávajú sa v nej náboženské úkony, nie je už posvätným miestom. Výstavba, hierarchické usporiadanie, vybavenie, je prísne tradičné a predpísané náboženským zákonom halachou. 31. marca roku 1924 začala výstavba súčasnej neologickej synagógy asanáciou staršej synagógy postavenej v roku 1863. Túto skutočnosť dokladá nález dobových artefaktov, mincí objavený v sklenenej nádobe umiestnenej v kamennej schránke v základoch staršieho objektu. Vypracovaním projektu poverili Leopolda Baumhorna, „staviteľa krásnych synagóg v Uhorsku“.
V porovnaní so synagógou v Segedíne, ktorá je Baumhornovým vrcholným dielom, je synagóga v Lučenci jeho poslednou veľkolepou realizáciou. Synagógou v Segedíne architekt naplnil všetky invencie inšpirované orientálnou architektúrou, naplno rozvinul architektonickú a dekoratívnu tvorivosť. Počas svojej tvorby preferovaný okázalý orientálny princíp „horror vacui“ (strach z prázdnoty), v Lučenci skromne zjednodušil do menej zdobnej architektonickej podoby. Synagóga bola postavená za sumu 1 400 000,-Kčs a jej výstavba trvala necelých 18 mesiacov. Slávnostne bola odovzdaná do užívania židovskej náboženskej obce 8. septembra 1925. Tragický osud židovskej komunity v Lučenci ku sklonku II. svetovej vojny mal priamy dopad na osud stavby. V priebehu roka 1948 ponúkla Židovská náboženská obec v Lučenci synagógu mestu Lučenec na predaj. K samotnému predaju došlo v decembri roku 1948. Z tohto obdobia sa zachovali podrobné zamerania a výkresy exteriéru, interiéru stavby so zakreslením mobiliáru.
Autorom zameraní a grafickej dokumentácie bol mestský technický radca Ing. Pohronský, v tom období mala synagóga kapacitu 600 sedadiel pre mužov a 442 sedadiel pre ženy. Na ženskej empore boli nad časťou foyeru sedadlá na stupňovitých plošinách. Niektorý autori omylom toto zameranie uvádzajú ako originály projekt L. Baumhorna. Osud synagógy negatívne ovplyvnilo dianie v rokoch 1948 až 1980, kedy sa využívala ako sklad a podľa bola vo veľmi zanedbanom stave. Osud synagógy mohol byť spečatený v roku 1982, kedy bola vyradená z ústredného zoznamu pamiatok a navrhovaná na asanáciu. Vďaka iniciatíve jednotlivcov bola v roku 1985 znovu zaradená do Štátneho zoznamu kultúrnych pamiatok. V závere 20. storočia sa na stavbe realizovali len základné udržiavacie práce a väčšia investícia sa týkala výmeny strešnej krytiny. V apríli roku 2002 vypracoval Krajský pamiatkový úrad Banská Bystrica, pracovisko Lučenec na základe žiadosti mesta Lučenec dokument „Zásady pamiatkovej ochrany Neologickej synagógy Lučenec“, v ktorom mapoval všetky dochované súčasti architektúry. Podkladmi elaborátu boli staršie merania a bohatá fotografická dokumentácia. Prípravu rekonštrukcie komplikovali časté vlastnícke zmeny, exekúcie a konkurzní správcovia. Zmena nastala v roku 2012, keď nový vlastník prezentoval reálny záujem vytvoriť zo synagógy multifunkčné kultúrne centrum slúžiace širokej verejnosti.
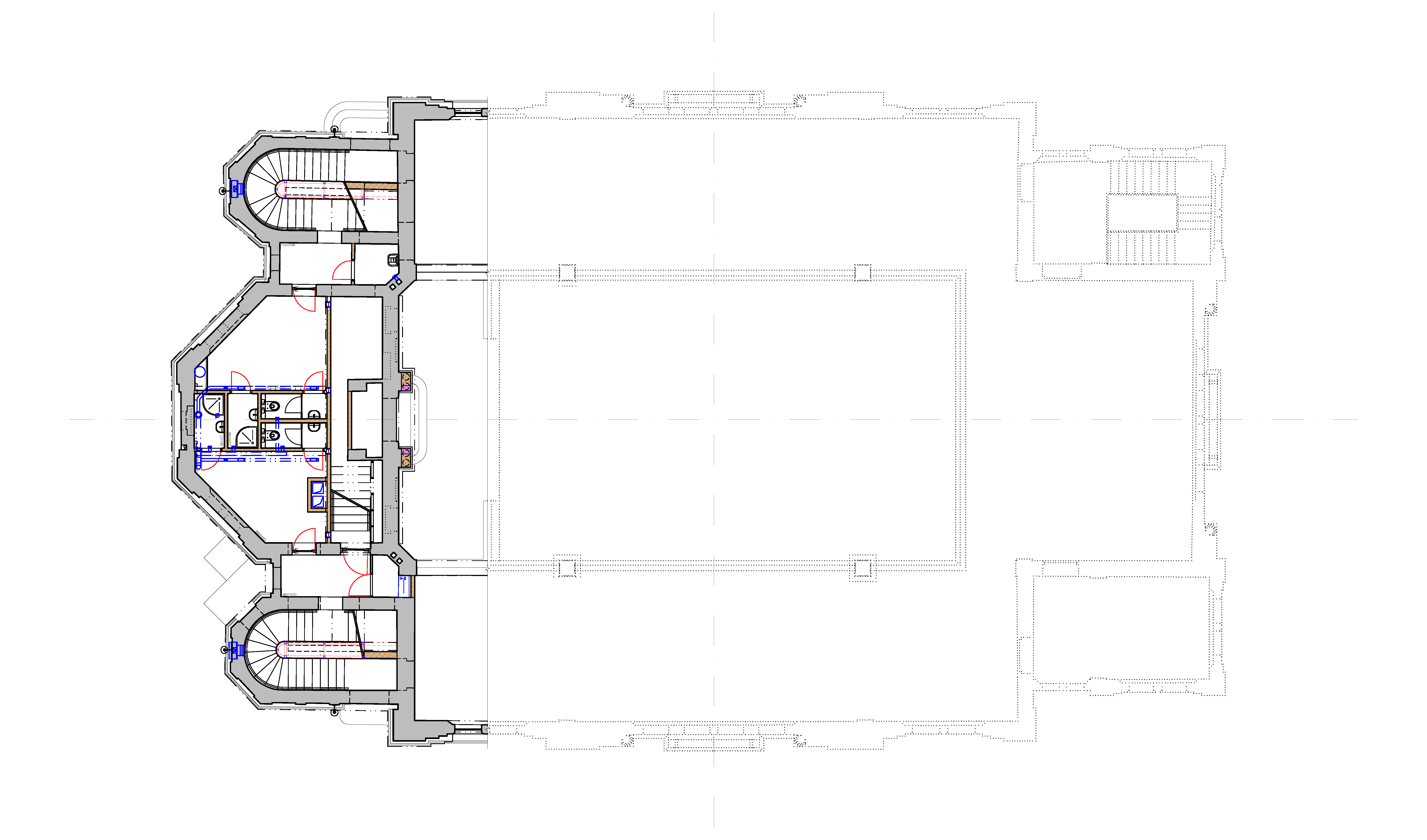
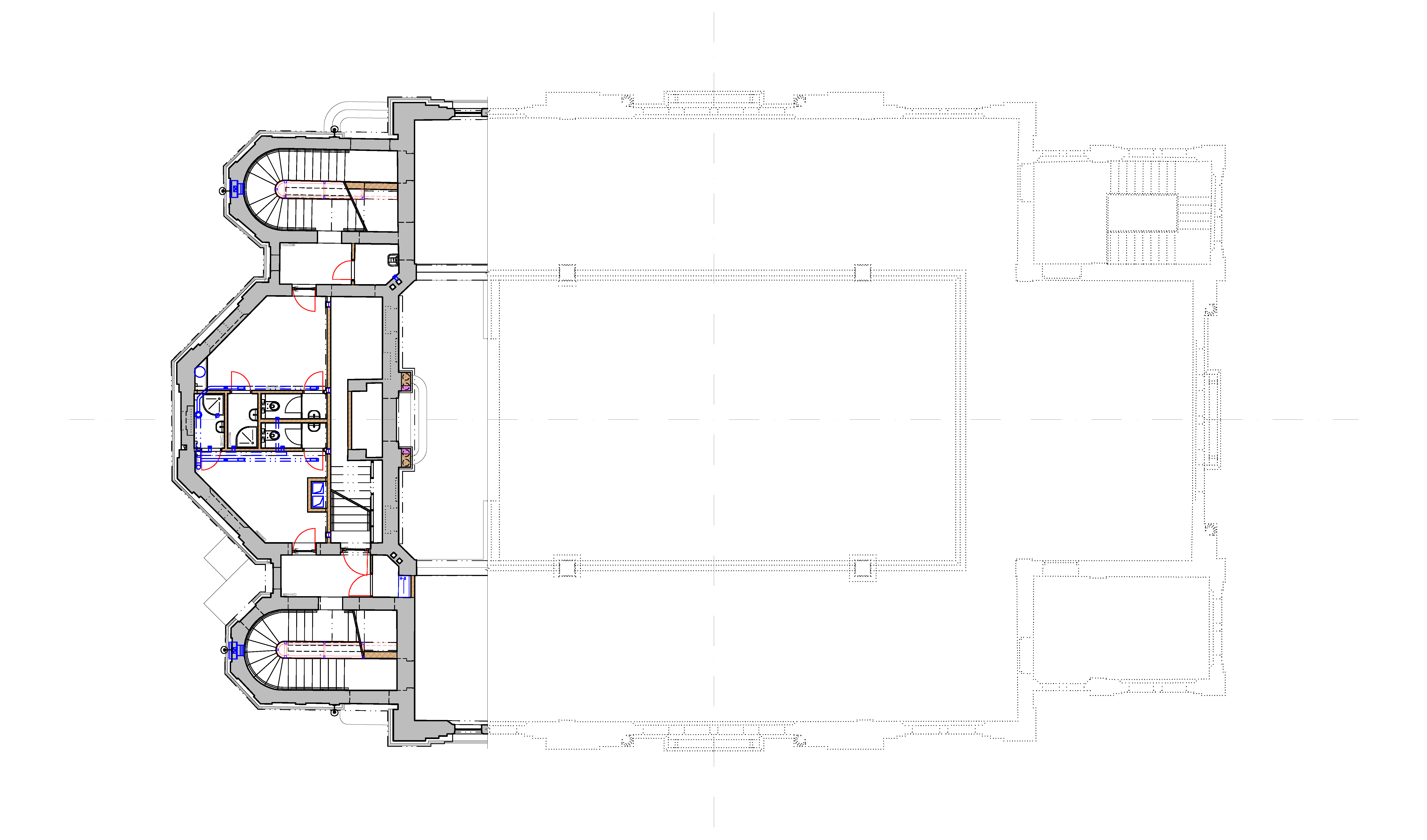
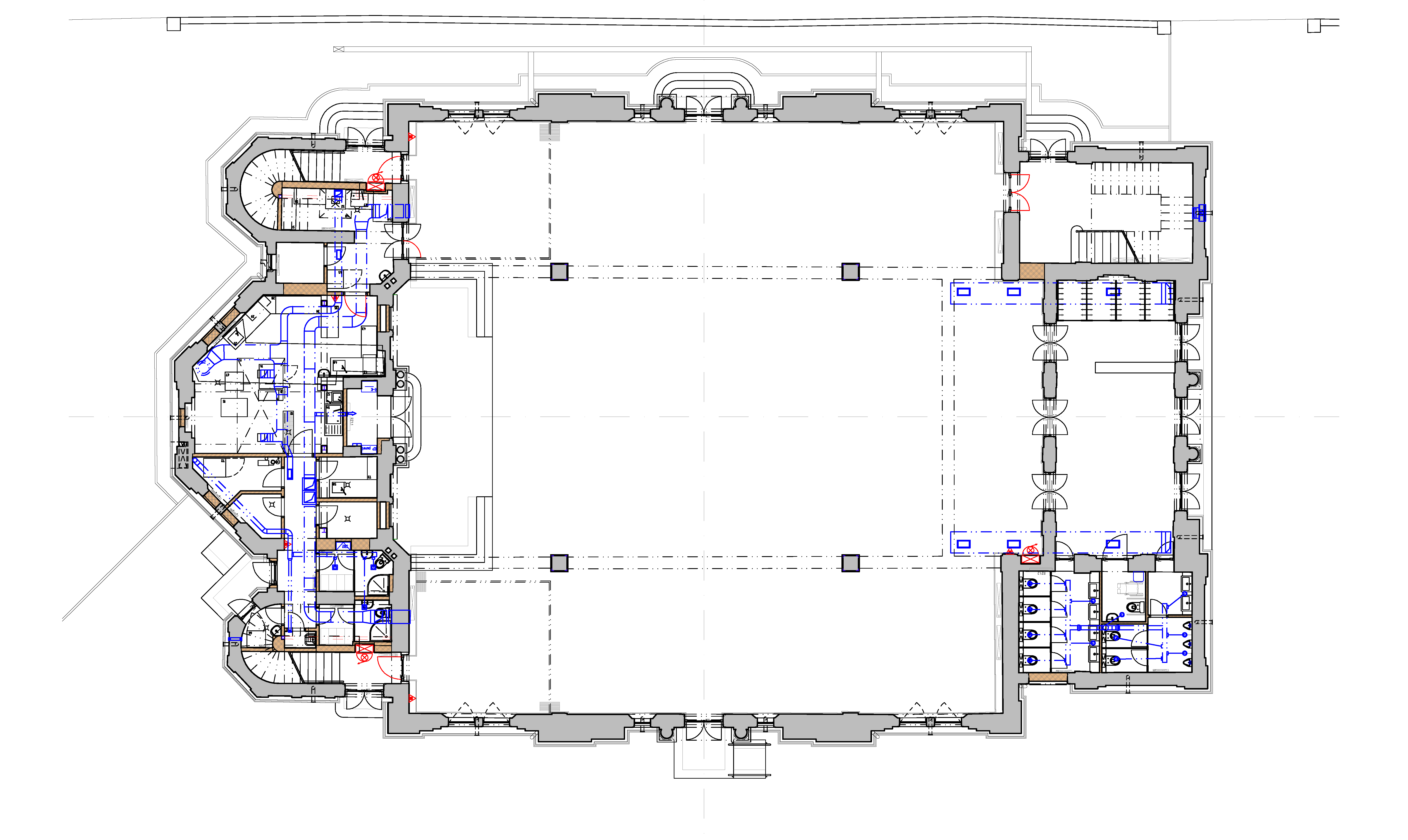
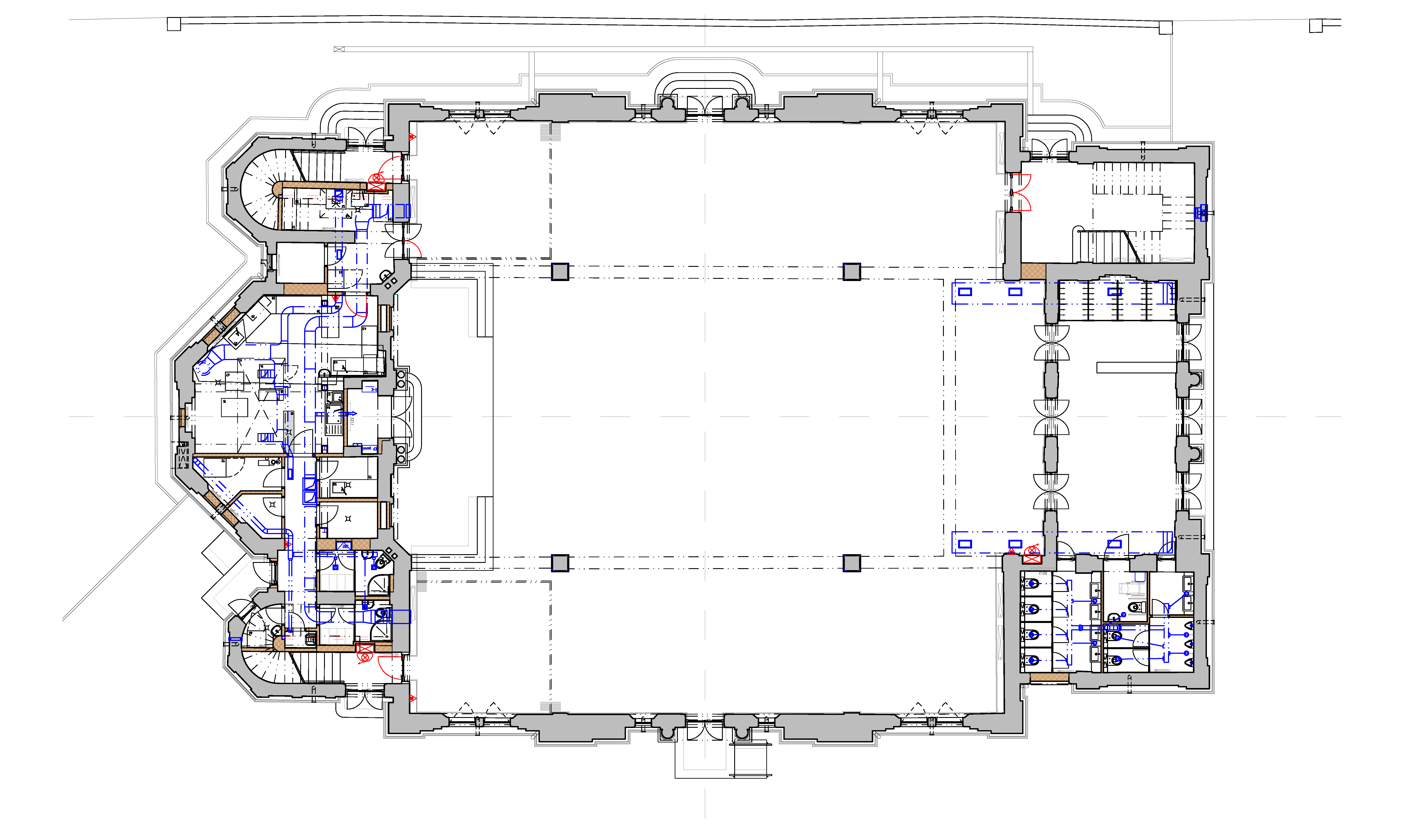
Krajský pamiatkový úrad Banská Bystrica určil pre obnovu národnej kultúrnej pamiatky podmienky, za ktorých ju bolo možné rekonštruovať. Najzákladnejšia podmienka bola hmotovo – priestorová integrita pôvodného stavu, stabilizácia zachovanej stavebnej hmoty, architektonických prvkov a detailov. Zásadnou podmienkou obnovy interiéru stavby bolo zachovanie pôvodnej pôdorysnej dispozície. Architekti sa museli vysporiadať s daným priestorom a vložiť do neho všetko nevyhnutné pre plynulú prevádzku. Prispôsobením sa novej funkcii boli povolené niektoré zmeny, napr. priestor severného schodiska využiť na doplnenie sociálnych zariadení. Vstupnými ideovými predpokladmi nastavenia rekonštrukcie stavby bolo poznanie tvorby autora pôvodného projektu L. Baumhorna. Zvolila sa metóda umožňujúca zachovať originálnu situáciu v prepojení fragmentov omietok, štukovej výzdoby a kamenných prvkov. Výsledkom mal byť výraz stavby pôsobiaci neroztriešteným, harmonickým dojmom.
Projektovú dokumentáciu pozostávajúcu z architektonickej štúdie, projektu pre stavebné povolenie a realizačného projektu vypracoval v roku 2013 kolektív autorov levického projektového ateliéru PROART zastrešeneý Ing. Zsoltom Pappom a Ing. arch. Alicou Tichou. Na základe historických fotografií sa určilo, že ako nová krytina bude použitá diagonálne kladená vlákno-cementová šablóna v sivej farebnosti. Dekoratívne sa odčlenila centrálna kupola vyskladaním obrazca lemujúceho obvod z antracitových šablón. Úžľabia a klampiarske detaily strechy sa zrealizovali z plechu v sivej farebnosti. Pôvodná zinková krytina sa zachovala na jednej vežičke západného priečelia a podľa nej sa vytvorila kópia druhej z titánzinkovej nezvetranej krytiny. Sekundárny vysoký sokel v exteriéri objektu, realizovaný pravdepodobne krátko po výstavbe, bol odstránený čím sa obnovil pôvodný, nízky sokel, niektoré poškodené časti sa nahradili tvarovo a materiálovo podľa zachovaných originálov z umelého kameňa. Ostatné dekoratívne prvky z umelého kameňa, boli v dobrom stave, len s drobnými mechanickými poškodeniami. Tabule desatora, z ružového kameňa umiestnené nad štítmi sedlových striech z každej svetovej strany sa po očistení, povrchovom skonsolidovaní vrátia na pôvodné miesta.
Najdôležitejší prvok interiéru synagógy predstavuje svätostánok na ukladanie Tóry, Áron ha kodeš, vybudovaný na východnej stene (mizrach) otočenej smerom k Jeruzalemu. Architekti z torza svätostánku vytvorili samostatný celok, ktorý koncepčne uzatvára priestor sály a symbolizuje duchovné centrum synagógy.
Pôvodná zachovaná hmota bola doplnená novými prvkami. Priehľadným líhaným sklom boli zvýraznené a doplnené funkčno-estetické detaily stánku Tóry. Výplne otvorov sú zvýraznené farebnými sklenenými tabuľami. Pôvodná štuková výzdoba sa nerealizovala z dôvodu fragmentárneho zachovania a zvolil sa metodický postup voľnejšieho súčasného výtvarného stvárnenia. Zámerom záverečnej povrchovej úpravy bolo technológiou iluzívneho štukolustra vyzdvihnúť umelecký dojem novotvaru Áron ha kodeš a vytvoriť kontrastu medzi ním a vertikálnymi stenami interiéru.
Monochrómny interiér stavby oživujú farebné prvky tvorené sklom, výrazná výplň kupoly a okenné výplne. Zachované pôvodné kovové rámy okien sa odprezentovali ako mreže z exteriéru, za ne sa v interiéri vložili bezrámové okná s izolačným dvojsklom a novovytvorená identická kovová konštrukcia sa doplnila farebnými sklami. Keďže nebolo možné zrekonštruovať pôvodnú farebnosť a raster vitráže pristúpilo sa z časového hľadiska k realizácii technológiou UV vytvrdzovania farieb na technické líhané sklo. Dôležitým dekoratívno-technickým problémom sa v interiéri ukázala kupola. V rámci odvetrania priestoru hlavnej sály sa musela zdvihnúť o pár centimetrov. S tým prichádzali komplikácie ohľadom vytvorenia novej konštrukcie identickej podľa pôvodnej s drobnými úpravami prispôsobenými existujúcej situácii. Technologický postup realizácie kupoly bol zhodný ako pri okenných otvoroch.
Po obvode interiéru hlavnej sály sa ako nový prvok zrealizoval soklový dubový obklad. Tento prvok okrem estetického hľadiska tvorí aj praktickú ochranu stien a vytvára odvetranie častí sokla zasiahnutých vzlínajúcou vlhkosťou. Vzhľadom k tomu, že sa jedná o úplne nový prvok, inšpirovaný L. Baumhornovým dielom v Segedíne, nebolo potrebné ho zvýrazňovať, preto bol farebne realizovaný v bielo – sivom odtieni.
Vstupné dvere boli vytvorené ako čiastočná kópia podľa historických fotografií a v spodnej častí dverí sa zrealizoval novodobý ochranný kovový sokel. Kvôli novým funkciám muselo byť na dverách aplikované tzv. protipanikové kovanie a nebolo možné vyrobiť kovania a kľučky dôstojné tomuto objektu. Foyer od hlavnej sály oddeľujú novodobé sklenené dvere vytvorené leptaním líhaného skla.
V hlavnej sále sa na základe zachovaných vzoriek vytvorila podlaha z liateho terazza s dominantnou svetlosivou plochou s centrálne osadenou kruhovou ružicovou vytvorenou z kameňa. Obrazec je situovaný na mieste pôvodnej Bimy, honosného čítacieho pultu, na ktorom sa čítala Tóra. Pochôdzne plochy v synagóge prezentujú pôvodné materiálové prvky, t. j. terazzo dlažbu a drevené dubové dosky v maximálne možnej miere rešpektujúce autentické vzory a systém kladenia.
Vzhľadom k plánovaným novým funkciám stavby sa zachovalo jedno pôvodné schodisko na empory, v južnej časti, na ktorom sa zrekonštruovali schody z umelého kameňa a kovové zábradlie kopírovaním pôvodného. Z originálneho kovaného zábradlia schodiska ostala zachovaná len profilovaná stojka pri nástupe na schodisko.
Koncepčný metodický zámer obnovy synagógy bol ustálený na prezentácii stavby v murive s dôkladným odstránením poškodených častí ložnej malty, po mechanickom očistení s následným zakonzervovaním muriva. Pred samotnou realizáciou boli odobrané vzorky na prieskum zasolenia a vlhkosti muriva. V maximálne možnej miere sa v interiéri zachoval systém zavesenej škrupinovej klenby a kupoly, ktorý bolo nutné spevniť. Povrchovo poškodené časti klenieb sa doplnili do stavu pod definitívnu štukovú povrchovú úpravu. Centrálna kupola sa po úroveň spodnej kružby zreštaurovala do finálnej podoby. Problematické sa javili vyústenia vzduchotechniky, ktoré nevhodne zasiahli do celkového estetického vyznenia klenieb nad emporami. Prepadnutá klenba nad foyerom sa vybudovala do pôvodnej podoby. Vo foyeri sa obnovili štukové detaily a doplnil jednoduchý rovný strop.
Zároveň so spracovávaním realizačnej projektovej dokumentácii bol vykonaný reštaurátorský výskum a spracovaný návrh na reštaurovanie objektu synagógy kolektívom autorov Mgr. art. Miroslavom Janštom, Mgr. art. Rudolfom Borošom a Mgr. art. Štefanom Siváňom. Výskumom sa podarilo vyšpecifikovať rozsah sekundárnych zásahov a identifikovať najrozsiahlejšie poškodenia. V intenciách s požiadavkami ideového zámeru, zásadami reštaurovania, výsledkov analýz vzoriek a rešpektovaním podmienok pamiatkovej starostlivosti bol stanovený postup špecializovaných prác. Pôvodne plánované finančné prostriedky na rekonštrukciu synagógy boli znížené na polovicu, preto bola obnova rozdelená na dve etapy. Pretože prvá etapa obnovy musela byť ukončená kolaudáciou, prioritne sa realizovali stavebné rekonštrukčné práce. Špecializované práce na rekonštrukcii omietok a architektonického tvaroslovia, štukovej výzdoby a detailov z kameňa prebehnú v druhej etape.
Po 89 rokoch a 101 dňoch od ukončenia jej výstavby synagógy sa vízia stala skutočnosťou, mesto Lučenec oznámilo, že 1. júna 2015 sa začali realizovať práce na obnove. Práce prvej etapy obnovy boli realizované do 31. decembra 2015, kolaudačné rozhodnutie bolo vydané dňa 29. decembra 2015. Vo verejnom obstarávaní, ktoré bolo niekoľkokrát napadnuté, úspešne obstála lučenecká firma Kolek s. r. o. Štruktúra mimoriadnej dokumentárnej a estetickej hodnoty je určujúcim prvkom synagógy, ktorá neopakovateľnou atmosférou interiéru spôsobuje kontrast medzi súčasnou a minulou generáciou. Proces konzervácie architektúry vychádzajúci zo zložitých podmienok rekonštrukcie stavby sprevádzali neistoty, opakované utvrdzovania optimálnej obnovy a neustále overovania riešení každého detailu s vierou v úspešný koniec. Vôľou širšieho kolektívu, ktorý sa zúčastnil komplikovaného procesu vzniklo výsledné dielo, bez fatálnych chýb.
Smutný osud staviteľov minul osud tejto stavby. Po deväťdesiatich rokoch ostáva zachovaná budúcim generáciám, ako doklad kultúrneho a architektonického dedičstva. Všetky zásahy neochudobnili národnú kultúrnu pamiatku o jej hodnoty o ktoré pri zmene funkcie mohla prísť. Budúcnosť bude mať možnosť sa vrátiť k podstate stavby. Hodnote a významu stavby sme sa snažili prispôsobiť formu jej prezentácie. Tak na sklonku roku 2015 sa vízia stala skutočnosťou.
Pozrite si video dokumentujúce rekonštrukciu:
Fotografie synagógy pred obnovou:
Originálny text "VÍZIE verzus SKUTOČNOSŤ - obnova neologickej synagógy v rokoch 1948 až 2015" nájdete v prílohe nižšie:
Za podklady ďakujeme: Ing. Zsoltovi Pappovi - projektový ateliér PROART, Levice, za text Mgr. Andrei Moravčíkovej z Krajského pamiatkového úradu v Banskej Bystrici, pracovisko Lučenec.