Advertorial

Pozvánka na 2. ročník stavebného veľtrhu BigMarket na Slovensku

Na podujatí sa predstaví až 37 vystavovateľov - popredných dodávateľov stavebných materiálov a inovácií s prezentáciou...

Hotel Hirschen Spa House, Rakúsko

Novotvar v prostredí alpskej obce.

Vytvorte si kúpeľňu snov: dizajnové riešenie od značky hansgrohe

Hansgrohe - prémiová značka kúpeľňových riešení, ponúka nadčasový dizajn, technickú precíznosť a udržateľné inovácie...

Okná Internorm za minuloročné ceny + hliníkový kryt zdarma!

Využite špeciálnu akciu Internorm: okná za minuloročné ceny a hliníkový kryt úplne zadarmo. Ponuka je časovo obmedzená!

Moderné plynové technológie: Efektivita a inovácie pre 21. storočie

Sumarizácia najdôležitejších inovácií, ktoré redefinujúcich využitie tohto energetického zdroja.

Utesňovanie spodných stavieb pomocou hydro-aktívnej fólie AMPHIBIA.

AMPHIBIA 3000 GRIP 1.3 od spoločnosti ATRO predstavuje modernú hydroizolačnú technológiu, ktorá spája vysokú odolnosť,...

Dekarbonizácia individuálneho vykurovania domácností – Green Deal evolučne a nie revolučne

Ambiciózne plány EK narazili na ekonomické možnosti domácností v jednotlivých členských štátoch –...

Minimalistické dvere IDEA – technická precíznosť a čistota prevedenia

IDEA DOOR od spoločnosti JAP prináša do interiéru čistý minimalistický vzhľad vďaka bezrámovému riešeniu a precíznej...

Dom s výhľadom na údolie, Dlouhý Most (ČR)

Kontinuita riešenia od vonkajšieho obkladu až po kovania a kľučky.

Schell Vitus – osvedčené riešenie pre sprchy a umývadlá vo verejnom sektore s viac ako desaťročnou tradíciou

Nástenné nadomietkové armatúry Vitus sú mimoriadne vhodné pre rýchlu a efektívnu...

Kompozitné okná predstavujú súčasnosť a budúcnosť

Okenné profily z kompozitného materiálu RAU-FIPRO X od spoločnosti Rehau sú v porovnaní s tradičnými plastovými profilmi mnohonásobne...

Myotis - stoly 2025

Najnovší sortiment stolov pre zariadenie interiérov...

Priemyselné sklenené priečky Dorsis Digero: svetelné rozhranie pre moderné interiéry

Spojenie moderného dizajnu, funkčnosti a svetla do harmonického architektonického prvku.

Význam prirodzeného svetla pre moderné a flexibilné pracovné prostredie

Kancelárska budova Baumit v slovinskom Trzine prešla premenou na moderné a udržateľné pracovisko. Architekti kládli dôraz...

Konferencia Xella Dialóg predstaví novinky a trendy v stavebníctve

Mottom šiesteho ročníku on-line konferencie odborníkov Xella Dialóg je Efektívny návrh budov 2025+: zmeny a riešenia

Rodinný dom, Čierna voda

Nízkoenergetická drevostavba s výhľadom na golfové ihrisko.
Diela
Red 402.10.2017
96930+34
Rodinný dom, Čierna voda
Autori: Ing. arch. Juraj Molnár, Ing. arch. Ľubomír Peráček st., Ing. arch. Ľubomír Peráček ml.Plocha pozemku: 1059 m2 Zastavaná plocha: 281,5 m2Návrh: 2015 - 2015Realizácia: 2015 - 2015Adresa: Čierna voda, SlovenskoPublikované: 2. október 2017

Solitérny rodinný dom predstavujú autori:

Dom je osadený v súlade s danosťami parcely a možnosťami dopravného napojenia, rešpektujúc okolie a charakter rozvoľnenej zástavby novej zóny. Architektonické riešenie je determinované tvarom a orientáciou pozemku s dôrazom pre vytvorenie súkromného priestoru záhrady. Kompozícia pracuje s jednoduchými formami. Celok je z dôvodu členenia veľkého objemu rozdelený na dve navzájom sa dopĺňajúce hmoty, ktoré sú diferencované objemovo aj polohovo. Je to denná časť s prevýšenou obývacou izbou a dvojpodlažná nočná časť. Obe hmoty sú do jedného kompozičného celku prepojené prekrytím terasy pozdľž južnej fasády. Hmotovo - priestorové riešenie stavby je výrazne ovplyvnené orientáciou pozemku, čo sa prejavuje na dispozičnom riešení. 

Foto: Jozef Barinka
Foto: Jozef Barinka

Obslužnú časť domu tvorí garáž pre dve osobné autá a technické zázemie domu. Denná časť je tvorená obývacou izbou a jedálňou so zvýšenou svetlou výškou, na ktorú nadväzuje kuchyňa. Dvojpodlažná nočná časť je dispozične od dennej oddelená vstupnými priestormi (hala), na ktoré v exteriéri nadväzuje pátio. Detská izba na poschodí disponuje loggiou orientovanou rovnakým smerom ako ostatné denné miestnosti. Prekrytie terasy a loggie má zároveň tieniacu funkciu. Benefitom pozemku je výhľad z obytných miestností na zazelenené golfové ihrisko, ktoré je kulisou záhrady.

Foto: Jozef Barinka
Foto: Jozef Barinka

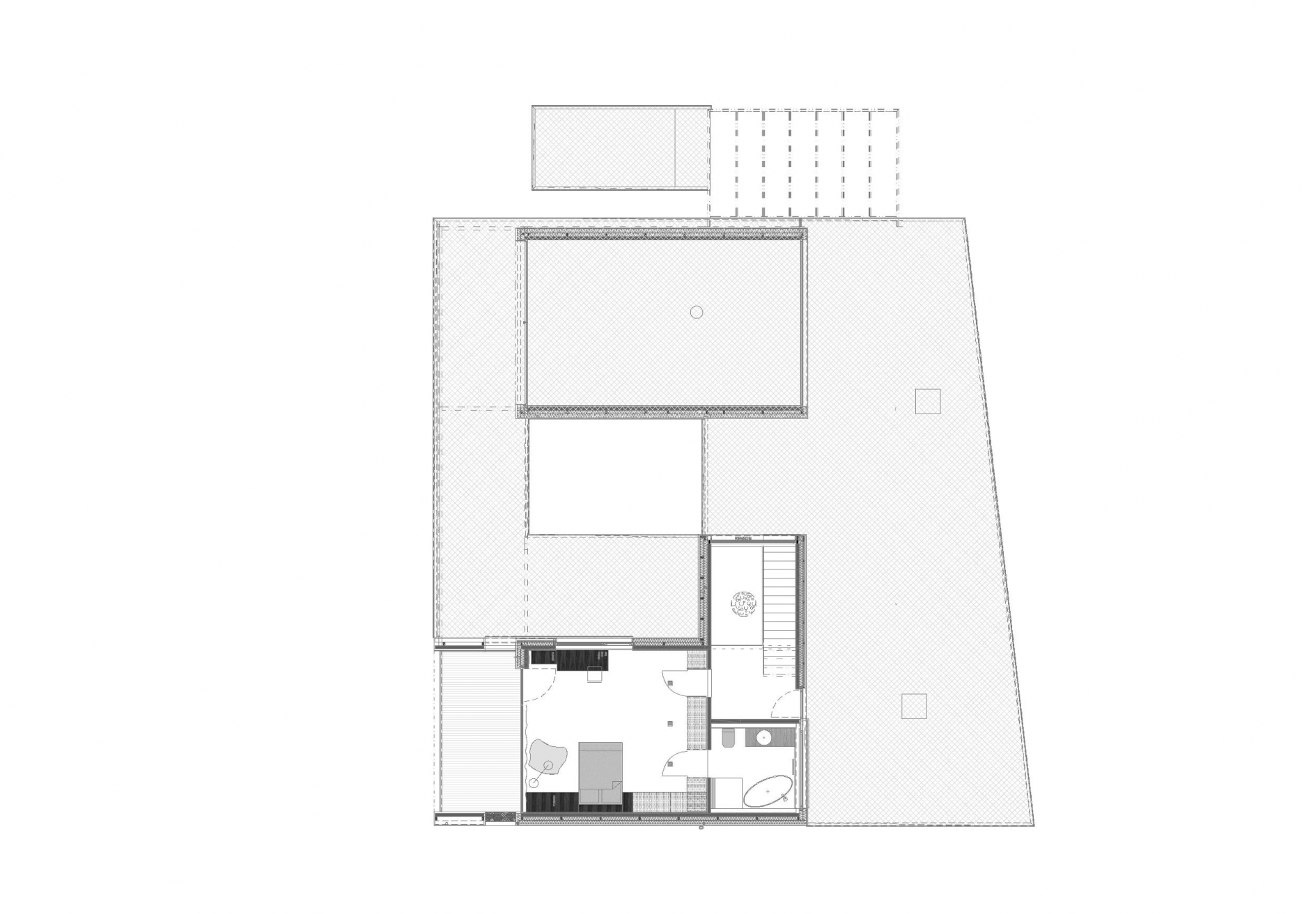
Prevádzkovo dispozičné riešenie rodinného domu je rozvrhnuté do dvoch podlaží, pričom na 2. NP je umiestnený blok detskej izby. Vstup je situovaný na rozhraní dennej a nočnej časti. Pridanou hodnotou domu je rozsiahla terasa nadväzujúca na obytné priestory. Dispozičná schéma je jednoduchá. Otvorený priestor dennej časti je opticky delený iba stenou kozubu. Spálňa rodičov a detská izba disponujú vlastnými kúpelňami a šatníkmi. Celú dispozíciu dopĺňa pracovňa na prízemí prístupná zo vstupnej haly.

Pôdorys 1. NP
Pôdorys 1. NPAutor: Molnár - Peráček
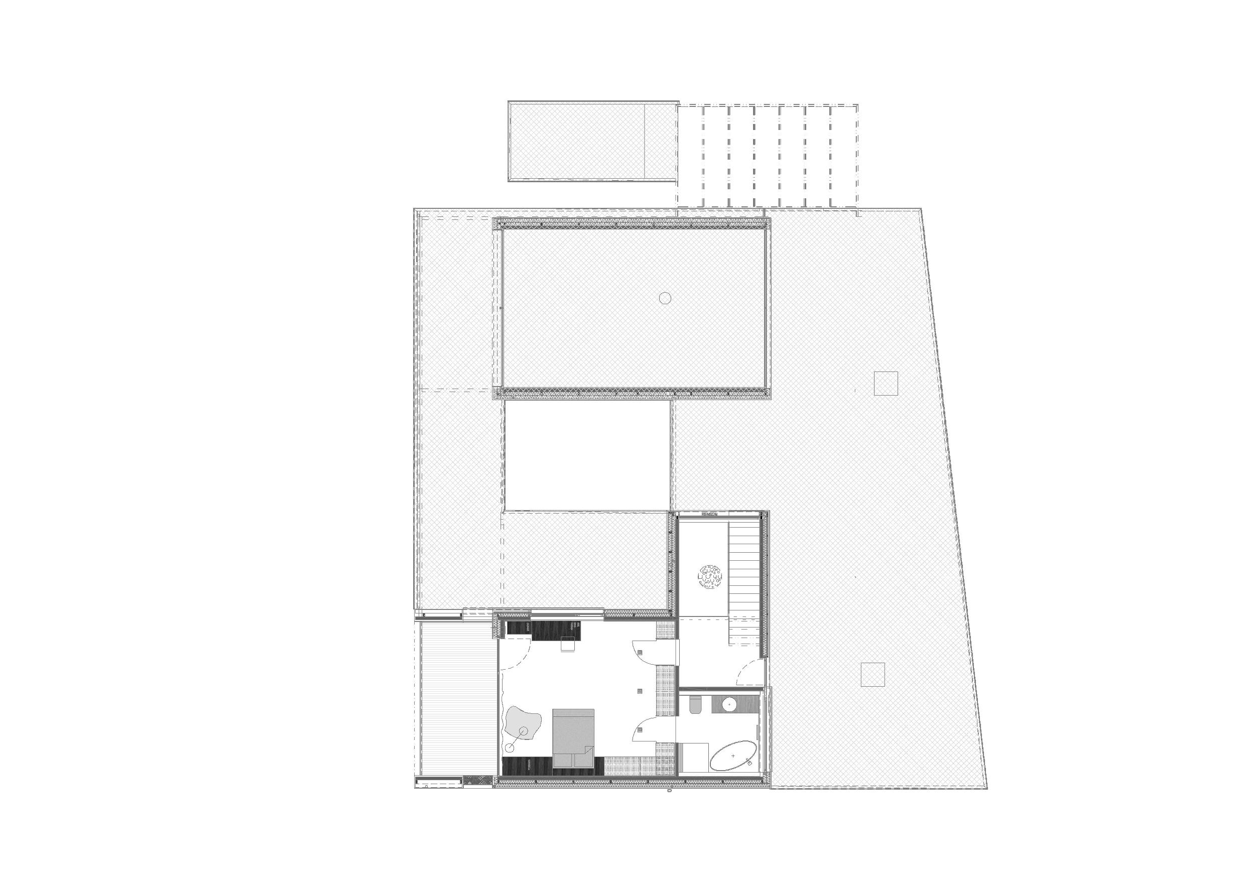
Pôdorys 2. NP
Pôdorys 2. NPAutor: Molnár - Peráček

Dom je konštrukčne riešený ako drevostavba z CLT panelov. Zvislé nosné konštrukcie sú tvorené z lepených drevených panelov z masívneho dreva. Drevené steny dopĺňa sústava oceľových stĺpov. Nenosné deliace konštrukcie sa tiež podieľajú na statickom spolupôsobení s nosnou konštrukciou. Rodinný dom je zastrešený kombináciou odvetraných plochých striech s klasickými jednoplášťovými.

Vykurovanie a chladenie zabezpečuje tepelné čerpadlo typu vzduch-voda, ktoré je napojené na podlahové kúrenie a stropné sálavé chladenie. Vetranie je riešené lokálnymi rekuperačnými jednotkami. Tepelná záťaž v lete je minimalizovaná použitím prírodných izolácií v dostatočnej hrúbke, ako aj predsadeným vonkajším tienením.

Foto: Jozef Barinka
Foto: Jozef Barinka
Foto: Jozef Barinka
Foto: Jozef Barinka
Foto: Jozef Barinka
Foto: Jozef Barinka
Foto: Jozef Barinka
Foto: Jozef Barinka
Foto: Jozef Barinka
Foto: Jozef Barinka
Foto: Jozef Barinka

Fotografie z výstavby:

Autor: Molnár - Peráček

Poloha diela

Ing. arch. Juraj Molnár
Ing. arch. Ľubomír Peráček st.
Ing. arch. Ľubomír Peráček ml.
Vložené
28. september 2017
0
9693
Hlavný obsahHlavný obsah
Čakajte prosím