Na podujatí sa predstaví až 37 vystavovateľov - popredných dodávateľov stavebných materiálov a inovácií s prezentáciou...
Novotvar v prostredí alpskej obce.
Hansgrohe - prémiová značka kúpeľňových riešení, ponúka nadčasový dizajn, technickú precíznosť a udržateľné inovácie...
Využite špeciálnu akciu Internorm: okná za minuloročné ceny a hliníkový kryt úplne zadarmo. Ponuka je časovo obmedzená!
Sumarizácia najdôležitejších inovácií, ktoré redefinujúcich využitie tohto energetického zdroja.
AMPHIBIA 3000 GRIP 1.3 od spoločnosti ATRO predstavuje modernú hydroizolačnú technológiu, ktorá spája vysokú odolnosť,...
Ambiciózne plány EK narazili na ekonomické možnosti domácností v jednotlivých členských štátoch –...
IDEA DOOR od spoločnosti JAP prináša do interiéru čistý minimalistický vzhľad vďaka bezrámovému riešeniu a precíznej...
Kontinuita riešenia od vonkajšieho obkladu až po kovania a kľučky.
Nástenné nadomietkové armatúry Vitus sú mimoriadne vhodné pre rýchlu a efektívnu...
Okenné profily z kompozitného materiálu RAU-FIPRO X od spoločnosti Rehau sú v porovnaní s tradičnými plastovými profilmi mnohonásobne...
Najnovší sortiment stolov pre zariadenie interiérov...
Spojenie moderného dizajnu, funkčnosti a svetla do harmonického architektonického prvku.
Kancelárska budova Baumit v slovinskom Trzine prešla premenou na moderné a udržateľné pracovisko. Architekti kládli dôraz...
Mottom šiesteho ročníku on-line konferencie odborníkov Xella Dialóg je Efektívny návrh budov 2025+: zmeny a riešenia

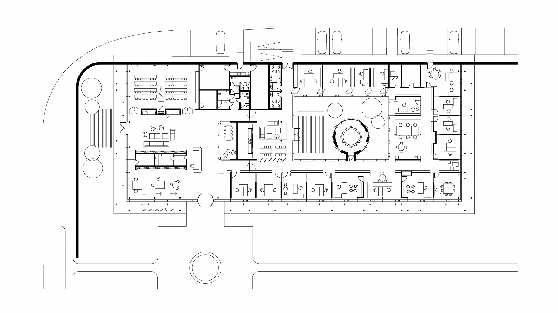
Centrálu spoločnosti Baumit Česká republika nenájdete v jednom z množstva pražských administratívnych komplexov, ale priamo vo výrobnom areáli v Brandýse nad Labem. Aj napriek polohe na periférii sedemnásťtisícového mesta objekt plní reprezentatívnu funkciu - riaditeľstvo firmy a miesto stretnutí s klientmi.
Keďže architektúra reprezentuje vonkajšiu tvár firmy voči okoliu (najmä ak ide o “partnerov z brandže”), priestor pre dobrú architektúru sa našiel aj v tejto polohe. Namiesto zateplenej a omietnutej krabice nás pri vstupe do areálu víta otvorený pavilón, pohľadový betón a sklo.
Vo výsledku cítiť komplexnosť uchopenia zadania. Od prvotného konceptu, až po detail v interiéri. Architekti a investor našli zhodu v štandarde stavby, ktorý odzrkadľuje hodnoty a priority spoločnosti.
Výsledkom je dielo ktoré dôstojne reprezentuje majiteľa. Nie však prvoplánovo a okázalo. Na to zvlášť v priemyselnej zóne na okraji mesta nie je priestor. Architektúra striktne vychádza z prevádzkovej a konštrukčnej logiky. Dekorácie a obklady vo veľkej miere nahrádzajú priznané betónové konštrukcie a transparentná fasáda, ktorá necháva návštevníka nahliadnuť do útrob stavby. Takéto riešenie však kladie značné požiadavky na projekt a prípravu stavby - prípadné chyby nie je možné ľahko zakryť. V tomto prípade však nie je čo skrývať.
Reprezentatívny pavilón centrály oddeľuje od ruchu výroby betónový múr. K nemu prisadená podlahová a stropná doska je po obvode uzavretá priehľadným obvodovým plášťom. Charakteristickým prvkom stavby je raster subtílnych monolitických stĺpov (Ø200 mm), ktorý nesie presahujúcu konzolu stropnej dosky. Tá spolu s vonkajšími žalúziami znižuje tepelnú záťaž objektu.
Vnútorný priestor so štvormetrovou svetlou výškou člení architekt vkladaním transparentných prevádzkových blokov. Súčasťou riešenia je átrium, ozvláštnené bodkou v podobe zasadacej miestnosti s okrúhlym stolom. Dôležitý je kontakt všetkých zamestnancov aj vedenia firmy na jednej úrovni, bez zamknutých dverí, alebo obmedzeného prístupu. Funkčné členenie dispozície na návštevnícku / spoločenskú zónu je pritom jasne čitateľné a zrozumiteľné. Pocit z otvoreného priestoru umocňuje riešenie bez podhľadov, s inštaláciami ukrytými v podlahách. Tvrdé materiály v interiéri vyvažuje kresba prírodného dreva na nábytkových prvkoch, alebo koberce v kanceláriách
Podklady: Sebastian Nagy Architects
Foto: Tomáš Manina