Advertorial

Hotel Hirschen Spa House, Rakúsko

Novotvar v prostredí alpskej obce.

Vytvorte si kúpeľňu snov: dizajnové riešenie od značky hansgrohe

Hansgrohe - prémiová značka kúpeľňových riešení, ponúka nadčasový dizajn, technickú precíznosť a udržateľné inovácie...

Okná Internorm za minuloročné ceny + hliníkový kryt zdarma!

Využite špeciálnu akciu Internorm: okná za minuloročné ceny a hliníkový kryt úplne zadarmo. Ponuka je časovo obmedzená!

Pozvánka na 2. ročník stavebného veľtrhu BigMarket na Slovensku

Na podujatí sa predstaví až 37 vystavovateľov - popredných dodávateľov stavebných materiálov a inovácií s prezentáciou...

Moderné plynové technológie: Efektivita a inovácie pre 21. storočie

Sumarizácia najdôležitejších inovácií, ktoré redefinujúcich využitie tohto energetického zdroja.

Utesňovanie spodných stavieb pomocou hydro-aktívnej fólie AMPHIBIA.

AMPHIBIA 3000 GRIP 1.3 od spoločnosti ATRO predstavuje modernú hydroizolačnú technológiu, ktorá spája vysokú odolnosť,...

Dekarbonizácia individuálneho vykurovania domácností – Green Deal evolučne a nie revolučne

Ambiciózne plány EK narazili na ekonomické možnosti domácností v jednotlivých členských štátoch –...

Minimalistické dvere IDEA – technická precíznosť a čistota prevedenia

IDEA DOOR od spoločnosti JAP prináša do interiéru čistý minimalistický vzhľad vďaka bezrámovému riešeniu a precíznej...

Dom s výhľadom na údolie, Dlouhý Most (ČR)

Kontinuita riešenia od vonkajšieho obkladu až po kovania a kľučky.

Schell Vitus – osvedčené riešenie pre sprchy a umývadlá vo verejnom sektore s viac ako desaťročnou tradíciou

Nástenné nadomietkové armatúry Vitus sú mimoriadne vhodné pre rýchlu a efektívnu...

Kompozitné okná predstavujú súčasnosť a budúcnosť

Okenné profily z kompozitného materiálu RAU-FIPRO X od spoločnosti Rehau sú v porovnaní s tradičnými plastovými profilmi mnohonásobne...

Myotis - stoly 2025

Najnovší sortiment stolov pre zariadenie interiérov...

Priemyselné sklenené priečky Dorsis Digero: svetelné rozhranie pre moderné interiéry

Spojenie moderného dizajnu, funkčnosti a svetla do harmonického architektonického prvku.

Význam prirodzeného svetla pre moderné a flexibilné pracovné prostredie

Kancelárska budova Baumit v slovinskom Trzine prešla premenou na moderné a udržateľné pracovisko. Architekti kládli dôraz...

Konferencia Xella Dialóg predstaví novinky a trendy v stavebníctve

Mottom šiesteho ročníku on-line konferencie odborníkov Xella Dialóg je Efektívny návrh budov 2025+: zmeny a riešenia

Color Studio Baumit, Bratislava

Zo showroomu, kde zákazník môže konzultovať výber farieb, či štruktúru fasády sa stala "výstavná skriňa " firmy.
Diela
Red 406.03.2018
27470+24
Color Studio Baumit, Bratislava
Autori: Ing. arch. Sebastian Nagy, Ing. arch. Tatiana Kuva, Bc. Monika LeškováSpolupráca: Mgr. art. Jozef ČerveňInvestor: Baumit, spol. s r. o.Podlažná plocha: 125 m2Návrh: 2017 - 2017Realizácia: 2017 - 2018Adresa: Žižkova 9, Bratislava, SlovenskoPublikované: 6. marec 2018

Showroom firmy sa sa nachádza v novostavbe komplexu Zuckermandel na nábreží Dunaja, priamo pod hradným bralom, rovnako ako centrála spoločnosti, ktorá pre zmenu zaberá celé posledné podlažie budovy, (projekt sme nedávno predstavili, autorom je taktiež ateliér Sebastiana Nagyho). Zatiaľčo charakteristickou črtou reprezentatívnych kancelárskych priestorov je neutrálnosť, účelné narábanie so základnými geometrickými tvarmi a farebná striedmosť, Color studio je miestom pre prezentáciu firmy aj smerom navonok. Transparentná fasáda orientovaná do ulice, aj otvorený interiér s neutrálnou farebnosťou vytvárajú kulisu, na ktorej vyniká produkt - farebné portfólio omietok. Nositeľom pridanej hodnoty je v tomto prípade geometrický podhľad (autorom výtvarného riešenia je umelec Jozef Červeň), ktorý tvorí ľahko zapämatateľnú súčasť novej identity sídla firmy Baumit.

Foto: Tomáš Manina
Foto: Tomáš Manina

Dielo bližšie predstaví Sebastian Nagy:

Showroom - Color Studio firmy Baumit ako výkladná skriňa jej produktov. Showroom nachádzajúci sa v parteri na rušnej ulici v novovzniknutej štvrti Zuckermandel láka okoloidúcich rovnako ako okolo-jazdiacich neprehliadnuteľným stropom vytvoreným z farebných hranolov, reprezentujúcich široký výber fasádnych farieb konceptu Baumit Life.

Farba je nositeľom konceptu celého priestoru Color Studia. Nanesená na 2 264 hranoloch zavesených na strope prezentuje farebnosť firmy v celej svojej rozmanitosti. Vzorky omietok v celej škále farieb vzorkovnice Baumit Life v počte 888 sa nachádzajú aj na stene rovnobežnej s ulicou. Koncept založený na vyniknutí produktu - omietky vo svojej farebnosti je doplnený neutrálnou sivou. Farebnosť tak vyniká a zvyšok interiéru zladený v jednom sivom odtieni svojím prevedením vytvára príjemné prostredie na prezentáciu produktov a vzorkovanie omietok pre zákazníkov.

Sivý nábytok je navrhnutý ako variabilný so schopnosťou zmeny dispozície podľa potrieb prevádzky. Priestor je multifunkčný - od konzultácií a vzorkovania s viacerými klientami pri dvoch konzultačných stoloch navzájom oddelených mobilnými paravánmi, ktoré slúžia zároveň ako vzorkovacie tabule, až po organizovanie menšej spoločenskej udalosti súvisiacej s prezentáciou produktov firmy.

Sivá podlaha zo surovej veľkoformátovej žuly navodzuje pocit exteriéru, ktorý je pre omietku príznačný a prirodzený. Dispozícia Color Studia je jednoduchá, priestor na prezentáciu s farebným podhľadom sa logicky nachádza v celej presklenej časti parteru a je viditeľný z každej prístupovej trasy k showroomu. Hygienické zázemie pre verejnosť a pre pracovníkov so skladovými priestormi je preto umiestnené v zadnej časti priestoru, v rovnakom sivo-sivom neutrálnom prevedení.

Osvetlenie je riešené ako inteligentné s množstvom prednastavených svetelných atmosfér. Od vysoko svietivej pracovnej, po večernú scénu, osvetľujúcu len strop s vysvieteným logom firmy. Systém osvetlenia je tvorený prisadenými bodovými svietidlami skrytými v podhľade, malými reflektormi osvetľujúcimi podhľad, vysoko-svietivými difúznymi svetlami nad konzultačnými stolíkmi a pracoviskom zamestnancov a veľkými difúzne svietiacimi písmenami názvu firmy - BAUMIT.

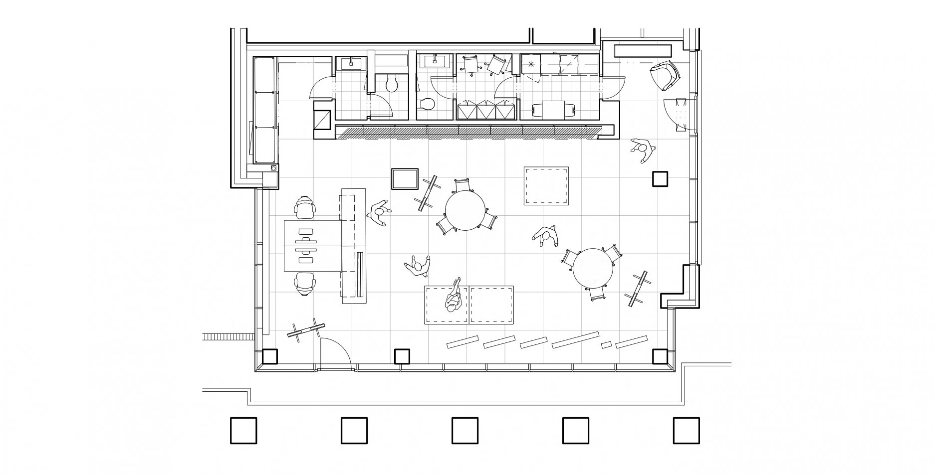
Pôdorys
PôdorysAutor: sebastian nagy | architects
Foto: Tomáš Manina
Foto: Tomáš Manina
Foto: Tomáš Manina
Foto: Tomáš Manina
Foto: Tomáš Manina
Foto: Tomáš Manina
Foto: Tomáš Manina
Foto: Tomáš Manina

Poloha diela

Ing. arch. Sebastian Nagy
Ing. arch. Tatiana Kuva
Bc. Monika Lešková

Súvisiace články

BaumitSKPre zdravé bývanie
Diela
Red 404.07.2018
2280+2-0
BUDOIR boutique
Vložené
2. marec 2018
0
2747
Hlavný obsahHlavný obsah
Čakajte prosím