Advertorial

Hotel Hirschen Spa House, Rakúsko

Novotvar v prostredí alpskej obce.

Vytvorte si kúpeľňu snov: dizajnové riešenie od značky hansgrohe

Hansgrohe - prémiová značka kúpeľňových riešení, ponúka nadčasový dizajn, technickú precíznosť a udržateľné inovácie...

Okná Internorm za minuloročné ceny + hliníkový kryt zdarma!

Využite špeciálnu akciu Internorm: okná za minuloročné ceny a hliníkový kryt úplne zadarmo. Ponuka je časovo obmedzená!

Pozvánka na 2. ročník stavebného veľtrhu BigMarket na Slovensku

Na podujatí sa predstaví až 37 vystavovateľov - popredných dodávateľov stavebných materiálov a inovácií s prezentáciou...

Moderné plynové technológie: Efektivita a inovácie pre 21. storočie

Sumarizácia najdôležitejších inovácií, ktoré redefinujúcich využitie tohto energetického zdroja.

Utesňovanie spodných stavieb pomocou hydro-aktívnej fólie AMPHIBIA.

AMPHIBIA 3000 GRIP 1.3 od spoločnosti ATRO predstavuje modernú hydroizolačnú technológiu, ktorá spája vysokú odolnosť,...

Dekarbonizácia individuálneho vykurovania domácností – Green Deal evolučne a nie revolučne

Ambiciózne plány EK narazili na ekonomické možnosti domácností v jednotlivých členských štátoch –...

Minimalistické dvere IDEA – technická precíznosť a čistota prevedenia

IDEA DOOR od spoločnosti JAP prináša do interiéru čistý minimalistický vzhľad vďaka bezrámovému riešeniu a precíznej...

Dom s výhľadom na údolie, Dlouhý Most (ČR)

Kontinuita riešenia od vonkajšieho obkladu až po kovania a kľučky.

Schell Vitus – osvedčené riešenie pre sprchy a umývadlá vo verejnom sektore s viac ako desaťročnou tradíciou

Nástenné nadomietkové armatúry Vitus sú mimoriadne vhodné pre rýchlu a efektívnu...

Kompozitné okná predstavujú súčasnosť a budúcnosť

Okenné profily z kompozitného materiálu RAU-FIPRO X od spoločnosti Rehau sú v porovnaní s tradičnými plastovými profilmi mnohonásobne...

Myotis - stoly 2025

Najnovší sortiment stolov pre zariadenie interiérov...

Priemyselné sklenené priečky Dorsis Digero: svetelné rozhranie pre moderné interiéry

Spojenie moderného dizajnu, funkčnosti a svetla do harmonického architektonického prvku.

Význam prirodzeného svetla pre moderné a flexibilné pracovné prostredie

Kancelárska budova Baumit v slovinskom Trzine prešla premenou na moderné a udržateľné pracovisko. Architekti kládli dôraz...

Konferencia Xella Dialóg predstaví novinky a trendy v stavebníctve

Mottom šiesteho ročníku on-line konferencie odborníkov Xella Dialóg je Efektívny návrh budov 2025+: zmeny a riešenia

Rekonštrukcia a prístavba administratívnej budovy Fortemix, Paskov (ČR)

Bez príkras, s využitím recyklovaných prvkov a meteriálov.
Diela
Red 311.03.2024
12070+29
Rekonštrukcia a prístavba administratívnej budovy Fortemix, Paskov (ČR)
Autori: Ing. arch. David Kotek (PROJEKTSTUDIO)Investor: FORTEMIX Návrh: 2021 - 2022Realizácia: 2022 - 2022Adresa: Kirilovova 812, Paskov-Oprechtice, SlovenskoPublikované: 11. marec 2024

Administratívna budova v priemyselnom areáli výrobcu stavebných hmôt a chémie. Projekt priamo nadväzuje na susedné stavby, vrátane pôvodných kancelárií v objekte z unimobuniek. Architektonické riešenie zároveň počíta s jeho samostatným fungovaním v prípade ich odstránenia. "Investor požadoval v co možná největší míře ekologicky a cenově úsporný model budovy s využitím recyklovatelných materiálů," objasňuje zadanie architekt David Kotek. Strechy oceľového skeletu sú preto ozelenené a obklad fasády tvoria vyradené palety, ktoré zároveň slúžia ako rošt pre popínavé rastliny. 

Nové konštrukcie stoja na rastri vŕtaných pilót s monolitickými kalichmi. Monolitické konštrukcie dopĺňajú obvodové pásy a doska pod výťahom. Konštrukčný nosný systém tvorí oceľový skelet. Časť vnútorných murovaných konštrukcií ponecháva architekt neomietnú. Svetlo do hĺbky dispozície vedú veľkoplošné strešné svetlíky. Hliníkové okná chránia proti prehrievaniu rolety v skrytých kastlíkoch.

Situácia
SituáciaAutor: PROJEKTSTUDIO
Pôdorys 1. NP
Pôdorys 1. NPAutor: PROJEKTSTUDIO
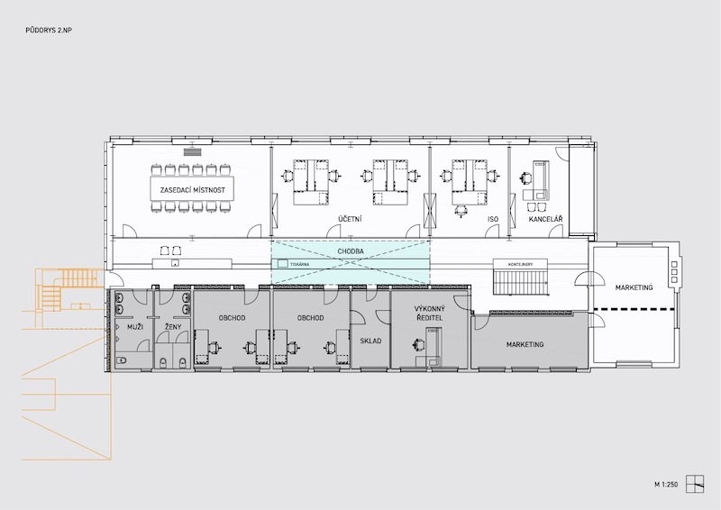
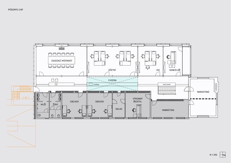
Pôdorys 2. NP
Pôdorys 2. NPAutor: PROJEKTSTUDIO
Rezy
RezyAutor: PROJEKTSTUDIO

Podklady: PROJEKTSTUDIO

Poloha diela

Ing. arch. David Kotek

Súvisiace články

Vložené
9. marec 2024
0
1207
Hlavný obsahHlavný obsah
Čakajte prosím