Využite špeciálnu akciu Internorm: okná za minuloročné ceny a hliníkový kryt úplne zadarmo. Ponuka je časovo obmedzená!
Na podujatí sa predstaví až 37 vystavovateľov - popredných dodávateľov stavebných materiálov a inovácií s prezentáciou...
Sumarizácia najdôležitejších inovácií, ktoré redefinujúcich využitie tohto energetického zdroja.
AMPHIBIA 3000 GRIP 1.3 od spoločnosti ATRO predstavuje modernú hydroizolačnú technológiu, ktorá spája vysokú odolnosť,...
Ambiciózne plány EK narazili na ekonomické možnosti domácností v jednotlivých členských štátoch –...
IDEA DOOR od spoločnosti JAP prináša do interiéru čistý minimalistický vzhľad vďaka bezrámovému riešeniu a precíznej...
Kontinuita riešenia od vonkajšieho obkladu až po kovania a kľučky.
Nástenné nadomietkové armatúry Vitus sú mimoriadne vhodné pre rýchlu a efektívnu...
Okenné profily z kompozitného materiálu RAU-FIPRO X od spoločnosti Rehau sú v porovnaní s tradičnými plastovými profilmi mnohonásobne...
Najnovší sortiment stolov pre zariadenie interiérov...
Spojenie moderného dizajnu, funkčnosti a svetla do harmonického architektonického prvku.
Kancelárska budova Baumit v slovinskom Trzine prešla premenou na moderné a udržateľné pracovisko. Architekti kládli dôraz...
Mottom šiesteho ročníku on-line konferencie odborníkov Xella Dialóg je Efektívny návrh budov 2025+: zmeny a riešenia
Robot WLTR predstavuje moderný prístup k murovaným konštrukciám. Vďaka automatizácii dokáže rýchlo, presne a bezpečne realizovať...
Okrem bezpečnosti majú okná aj elegantný vzhľad, pretože nie sú viditeľné žiadne uzamykacie časti kovania.

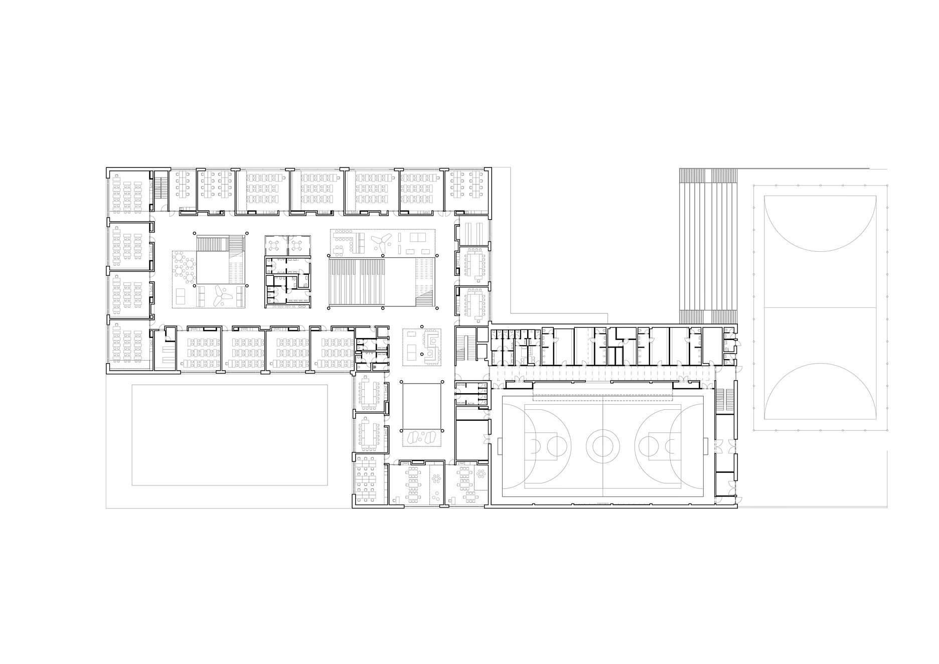
Návrh novej školy v dvojtisícovom meste Chýně vychádza zo súčasných prístupov k výučbe, ktoré zdôrazňujú rozmanité formy učenia aj kvalitu prostredia.
Spoločné vnútorné a vonkajšie priestory zohrávajú pri vzdelávaní rovnako dôležitú úlohu ako tradičné učebne. Neformálne vyučovanie môže prebiehať v zálivoch na chodbách, tiché miesta slúžia na rozhovory v menších skupinách. Študovne ponúkajú rôzne typy sedenia podporujúce sústredenie. Strecha je určená na hru aj výučbu. Škola vytvára pestré vnútorné prostredie, v ktorom si miesto nájdu mladší žiaci aj starší študenti.
Budova z dielne ateliéru OVA neslúži len základnému vzdelávaniu, v popoludňajších hodinách je otvorená krúžkom pre žiakov aj edukačným a športovým aktivitám pre dospelých.
Svahovitý pozemok sa nachádza neďaleko centra rýchlo rastúceho sídliska blízko Prahy. V okolí sa predpokladá výrazný rozvoj rezidenčnej výstavby. Nová škola môže určitý čas stáť samostatne na okraji územia, neskôr sa však stane súčasťou zastavanej štruktúry obce. Jedným z cieľov bolo pripraviť architektúru na obe situácie a poskytnúť miestu jasne definovaný a zrozumiteľný verejný priestor.
Základné usporiadanie budovy vychádza z dvojice dvorov – verejného a súkromného. Severná časť je určená učebniam a hlavným pobytovým priestorom, južná časť patrí športu, aule a prevádzkovému zázemiu.
Budova má tri nadzemné podlažia. Jej výškové riešenie využíva sklon pozemku. Na terén je možné vstúpiť nielen z prízemia pri príchode z centra obce, ale aj z poschodia, na ktoré nadväzuje športový areál. Na treťom podlaží sa nachádza vonkajšia učebňa, takže každá úroveň umožnuje priamy kontakt s vonkajším prostredím. Strecha poskytuje pobytovú plochu, učebne a záhony pre pestovateľské aktivity.
Prevádzka školy sa dá rozdeliť na dva základné režimy. Dopoludňajší režim využíva celú kapacitu budovy a škola funguje ako jednoliaty celok. V popoludňajšom režime sú prístupné len vybrané priestory – miestnosti pre krúžky, knižnica, telocvičňa a aula, ktorá môže hostiť kultúrne podujatia prepojené s jedálňou.
Areál je na svahovitom teréne členený do dvoch výškových úrovní: prvé nadzemné podlažie školy s oboma dvormi a o jedno podlažie vyššie položený športový areál.
Športový areál obsahuje viacero ihrísk. Atletický ovál s integrovaným futbalovým ihriskom má na svojej východnej strane zázemie, atletický tunel a priestor pre občerstvenie. Diváci môžu dianie sledovať z lavičiek pri ovále aj zo strechy zázemia, kde je umiestnená tribúna. Medzi školou a oválom sa nachádza druhé, tréningové ihrisko, prístupné aj počas prestávok.
Vstupný dvor slúži žiakom, návštevníkom popoludňajších programov aj verejnosti. Navrhnuté sú tu pódiá na ležanie pre starších žiakov a povrchy vhodné na hry pre mladšie deti. Druhý dvor obsahuje vonkajšie jedálenské stoly rozširujúce kapacitu jedálne. Poskytuje tiež priestor na hry počas veľkej prestávky aj medzi popoludňajšími aktivitami. Sú tu umiestnené preliezačky, mäkké povrchy na skákanie a beh, lanová pyramída a ďalšie vybavenie. Do vnútorného dvora je možné vstúpiť zo školskej haly, jedálne aj z cvičnej kuchynky, čo uľahčuje jeho využívanie žiakmi aj pedagógmi.
Podklady: Linka
Ateliér: OVA
Fotografie: Alex Shoots Buildings