Využite špeciálnu akciu Internorm: okná za minuloročné ceny a hliníkový kryt úplne zadarmo. Ponuka je časovo obmedzená!
Na podujatí sa predstaví až 37 vystavovateľov - popredných dodávateľov stavebných materiálov a inovácií s prezentáciou...
Sumarizácia najdôležitejších inovácií, ktoré redefinujúcich využitie tohto energetického zdroja.
AMPHIBIA 3000 GRIP 1.3 od spoločnosti ATRO predstavuje modernú hydroizolačnú technológiu, ktorá spája vysokú odolnosť,...
Ambiciózne plány EK narazili na ekonomické možnosti domácností v jednotlivých členských štátoch –...
IDEA DOOR od spoločnosti JAP prináša do interiéru čistý minimalistický vzhľad vďaka bezrámovému riešeniu a precíznej...
Kontinuita riešenia od vonkajšieho obkladu až po kovania a kľučky.
Nástenné nadomietkové armatúry Vitus sú mimoriadne vhodné pre rýchlu a efektívnu...
Okenné profily z kompozitného materiálu RAU-FIPRO X od spoločnosti Rehau sú v porovnaní s tradičnými plastovými profilmi mnohonásobne...
Najnovší sortiment stolov pre zariadenie interiérov...
Spojenie moderného dizajnu, funkčnosti a svetla do harmonického architektonického prvku.
Kancelárska budova Baumit v slovinskom Trzine prešla premenou na moderné a udržateľné pracovisko. Architekti kládli dôraz...
Mottom šiesteho ročníku on-line konferencie odborníkov Xella Dialóg je Efektívny návrh budov 2025+: zmeny a riešenia
Robot WLTR predstavuje moderný prístup k murovaným konštrukciám. Vďaka automatizácii dokáže rýchlo, presne a bezpečne realizovať...
Okrem bezpečnosti majú okná aj elegantný vzhľad, pretože nie sú viditeľné žiadne uzamykacie časti kovania.

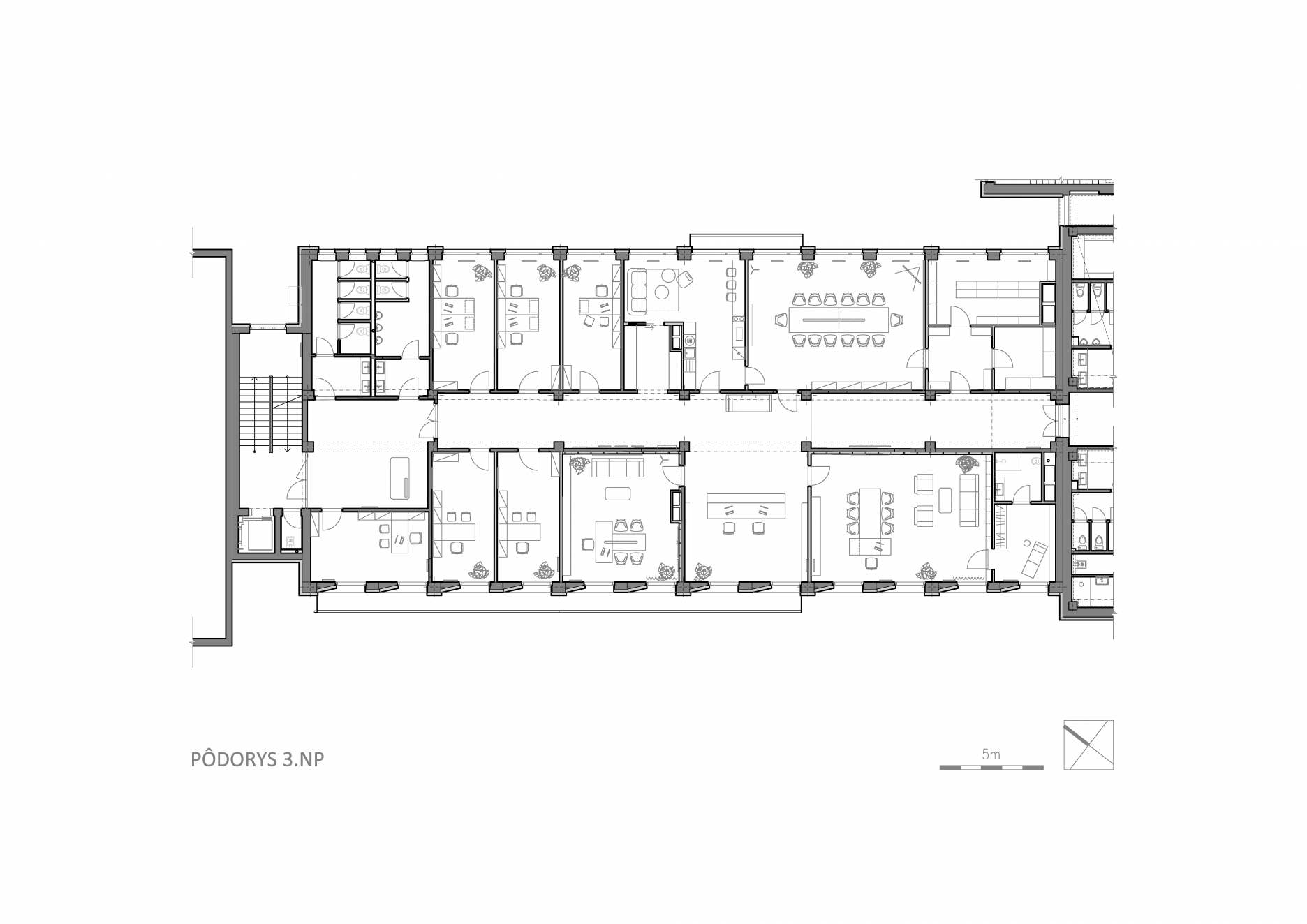
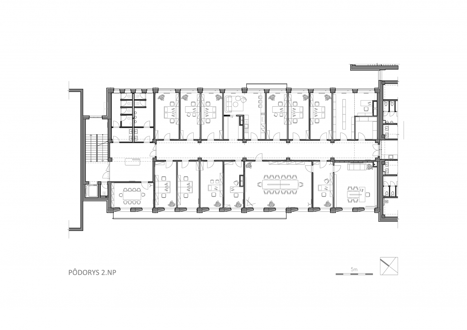
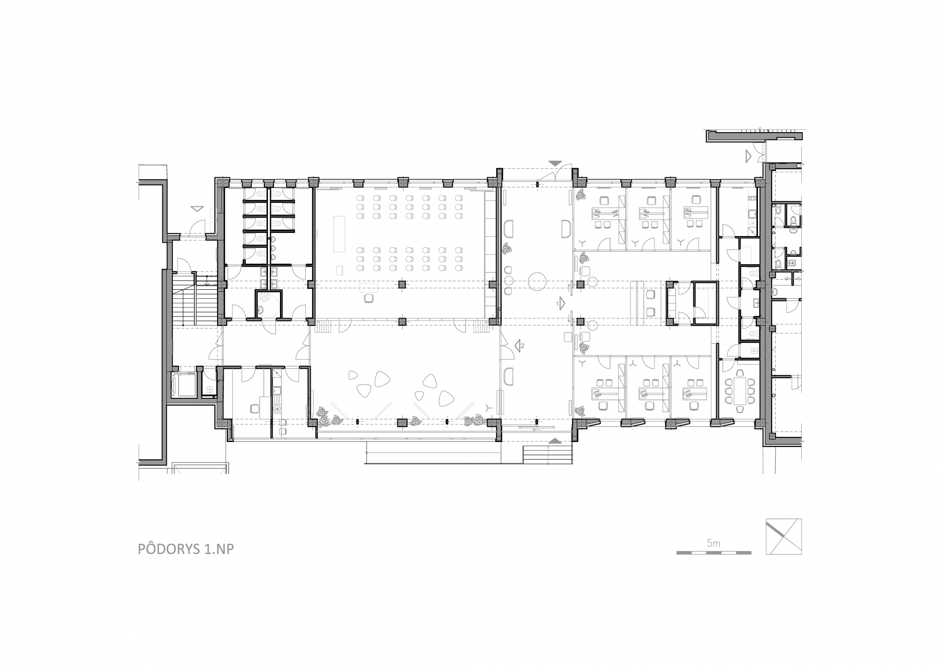
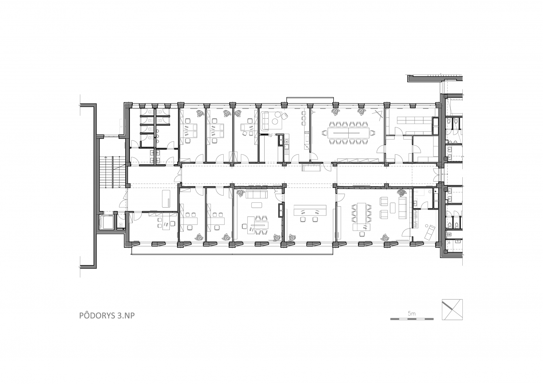
Interiér mestského úradu tvorí súčasť rozsiahleho projektu konverzie bývalej strednej priemyselnej školy na mestský úrad v Starej Turej podľa návrhu ateliéru pavlech architekti. Objekt bol dokončený v lete 2023 a dnes pod jednou strechou sústreďuje kľúčové oddelenia samosprávy i klientské centrum pre verejnosť. Projekt nadviazal na skôr zrealizovanú prestavbu novšej časti areálu na mestský dom, čím vzniklo lokálne centrum služieb na jednej adrese.
Medzi dôležité východiská projektu patrila typológia pôvodných školských budov: široké chodby, priestranné učebne, schodiská a hygienické zázemie poskytli dobrý základ pre nový program. Architekti využili spomínané predispozície ako základ pre riešenie flexibilných veľkokapacitných priestorov pre služby mesta a spoločenské využitie.
Veľká zasadacia miestnosť - multifunkčná sála
Kľúčovou témou návrhu bol nedostatok priestoru pre obradnú funkciu, ktorá v pôvodnom úrade absentovala. Nová veľká zasadacia miestnosť preto plní dve hlavné funkcie. Slúži najmä ako jednacia sála mestského zastupiteľstva a svadobná sieň. Okrem toho hostí aj oceňovania, vyznamenania či stretnutia rodákov a seniorov.
Miestnosť je možné rozdeliť mobilnou stenou. V otvorenom stave si zachováva prepojenie s foyer – riešenie vhodné pre zasadnutia s účasťou verejnosti a väčším počtom návštevníkov. Aby bolo možné plynulo meniť usporiadanie, súčasťou návrhu je veľká skriňová zostava na rýchle uloženie stolov a mobiliáru, ktoré sú potrebné pri rokovaniach, no pri obradoch prekážajú.
Technické vybavenie je pripravené pre oba scenáre: hlasovacie zariadenia, ozvučenie, mikrofóny a osvetlenie sú navrhnuté tak, aby sa dali jednoducho prekonfigurovať podľa potreby.
Zaujímavosťou je akustický obklad z ovčej vlny na hlavnej stene.
Foyer
Vstupná hala, s rozsiahlym presklením smerujúcim do ulice, funguje ako prirodzené rázcestie. Vedie k výťahu a schodisku, do jednotlivých kancelárií úradu a v prípade potreby sa otvára smerom do veľkej zasadacej miestnosti. Foyer je zároveň galerijným priestorom pre prezentácie miestnych umelcov a aktivít mesta. (Rozvrh prvého nadzemného podlažia zahŕňa foyer, klientske centrum a multifunkčnú sálu.
Klientske centrum
Pôvodný zámer počítal s otvoreným klientskym centrom. V priebehu realizačného projektu však investor zadanie upravil: vznikli menšie kancelárie jednotlivých oddelení, vzájomne oddelené sklenenými priečkami, aby sa zvýšila mierna akustická intimita. Ťažisko dispozície tvorí recepčný pult, za ktorým sa nachádza zázemie klientskeho centra – toalety, kuchynka, serverovňa a menšia zasadacia miestnosť.
V takmer celom 1. NP sú priznané stropy s vedením technických sietí – najmä vzduchotechniky.
Kancelárie a vedenie mesta
Kancelária primátora má na mieru navrhnutý interiér s lamelovým akustickým obkladom. Za skrytými dverami v nábytkovej stene sa nachádza menší šatník a kúpeľňa. Kancelárie zástupcu primátora a prednostu úradu sú rovnako realizované na mieru, zvyšné pracoviská sú vybavené typovým nábytkom. Kancelárie orientované do ulice sú tienené elektronicky ovládanými roletami.
Keďže svetlé výšky miestností sú nižšie, stropy, káble a potrubia sú zjednotené nástrekom v bielej farbe, čo priestor vizuálne odľahčuje a zachováva technickú úprimnosť.
Autor a podklady: pavlech architekti
Fotografie: Pavel Kudiváni