Advertorial

Pozvánka na 2. ročník stavebného veľtrhu BigMarket na Slovensku

Na podujatí sa predstaví až 37 vystavovateľov - popredných dodávateľov stavebných materiálov a inovácií s prezentáciou...

Hotel Hirschen Spa House, Rakúsko

Novotvar v prostredí alpskej obce.

Vytvorte si kúpeľňu snov: dizajnové riešenie od značky hansgrohe

Hansgrohe - prémiová značka kúpeľňových riešení, ponúka nadčasový dizajn, technickú precíznosť a udržateľné inovácie...

Okná Internorm za minuloročné ceny + hliníkový kryt zdarma!

Využite špeciálnu akciu Internorm: okná za minuloročné ceny a hliníkový kryt úplne zadarmo. Ponuka je časovo obmedzená!

Moderné plynové technológie: Efektivita a inovácie pre 21. storočie

Sumarizácia najdôležitejších inovácií, ktoré redefinujúcich využitie tohto energetického zdroja.

Utesňovanie spodných stavieb pomocou hydro-aktívnej fólie AMPHIBIA.

AMPHIBIA 3000 GRIP 1.3 od spoločnosti ATRO predstavuje modernú hydroizolačnú technológiu, ktorá spája vysokú odolnosť,...

Dekarbonizácia individuálneho vykurovania domácností – Green Deal evolučne a nie revolučne

Ambiciózne plány EK narazili na ekonomické možnosti domácností v jednotlivých členských štátoch –...

Minimalistické dvere IDEA – technická precíznosť a čistota prevedenia

IDEA DOOR od spoločnosti JAP prináša do interiéru čistý minimalistický vzhľad vďaka bezrámovému riešeniu a precíznej...

Dom s výhľadom na údolie, Dlouhý Most (ČR)

Kontinuita riešenia od vonkajšieho obkladu až po kovania a kľučky.

Schell Vitus – osvedčené riešenie pre sprchy a umývadlá vo verejnom sektore s viac ako desaťročnou tradíciou

Nástenné nadomietkové armatúry Vitus sú mimoriadne vhodné pre rýchlu a efektívnu...

Kompozitné okná predstavujú súčasnosť a budúcnosť

Okenné profily z kompozitného materiálu RAU-FIPRO X od spoločnosti Rehau sú v porovnaní s tradičnými plastovými profilmi mnohonásobne...

Myotis - stoly 2025

Najnovší sortiment stolov pre zariadenie interiérov...

Priemyselné sklenené priečky Dorsis Digero: svetelné rozhranie pre moderné interiéry

Spojenie moderného dizajnu, funkčnosti a svetla do harmonického architektonického prvku.

Význam prirodzeného svetla pre moderné a flexibilné pracovné prostredie

Kancelárska budova Baumit v slovinskom Trzine prešla premenou na moderné a udržateľné pracovisko. Architekti kládli dôraz...

Konferencia Xella Dialóg predstaví novinky a trendy v stavebníctve

Mottom šiesteho ročníku on-line konferencie odborníkov Xella Dialóg je Efektívny návrh budov 2025+: zmeny a riešenia

Obecný dom Rudimov

Nové centrum obecného života, postavené v štandarde energeticky plusového domu.
Diela
Red 318.03.2025
12270+21
Obecný dom Rudimov
Autori: Ing. arch. Petr Moráček, Ing. arch. Jana Zoubková, Ing. arch. Pavel Matyska, Ing. arch. Kateřina Fryzelková, Ing. Roman BelžíkInvestor: obec RudimovPlocha pozemku: 2930 m²Zastavaná plocha: 295 m²Podlažná plocha: 340 m²Návrh: 2016 - 2022Realizácia: 2022 - 2024Adresa: Rudimov 81, Rudimov, Česká republikaPublikované: 18. marec 2025

Obecný dom v Rudimove vyrástol na mieste svojho predchodcu. Prevádzkovo a technicky nevyhovujúcu stavbu nahradil funkčný objekt, ktorý vytvára potrebné zázemie pre spoločenský život a nevyhnutnú administratívu malej moravskej obce v CHKO Bílé Karpaty. Asanovanie pôvodnej stavby a zmena pôdorysnej stopy viedli k vytvoreniu nového verejného priestranstva. V spojení s okolitými stavbami – hasičskou zbrojnicou dobrovoľných hasičov, klubovňou miestnych spolkov a areálom „výletiště“ s vonkajším tanečným parketom a detským ihriskom – vzniklo nové centrum sídla, ktoré má iba 300 stálych obyvateľov. Rozpočet obce objekt svojou prevádzkou príliš nezaťaží vďaka aktívnemu energetickému štandardu.

Mierka objektu zodpovedá veľkosti obce i okolitej drobnej zástavbe, najmä rodinným domom. Navrhnutý je tak, aby nebol len solitérom, ale predovšetkým súčasťou mozaiky stavieb dôležitých pre život obce. Jeho forma, podľa slov architektov, vychádza z archetypu vidieckej stodoly, no zároveň odkazuje na susediacu hasičskú zbrojnicu, čím oba celky vizuálne prepája. Význam novovytvoreného priestoru medzi nimi podčiarkuje hruška vysadená pri dokončení stavby – v budúcnosti poskytne tieň a stane sa dominantou priestoru. Na dláždenú plochu nadväzuje záhrada, ktorá v minulosti nebola využívaná a postupne sa otvára do okolitej krajiny. Spolu so záhradou ponúka areál pestré možnosti využitia.

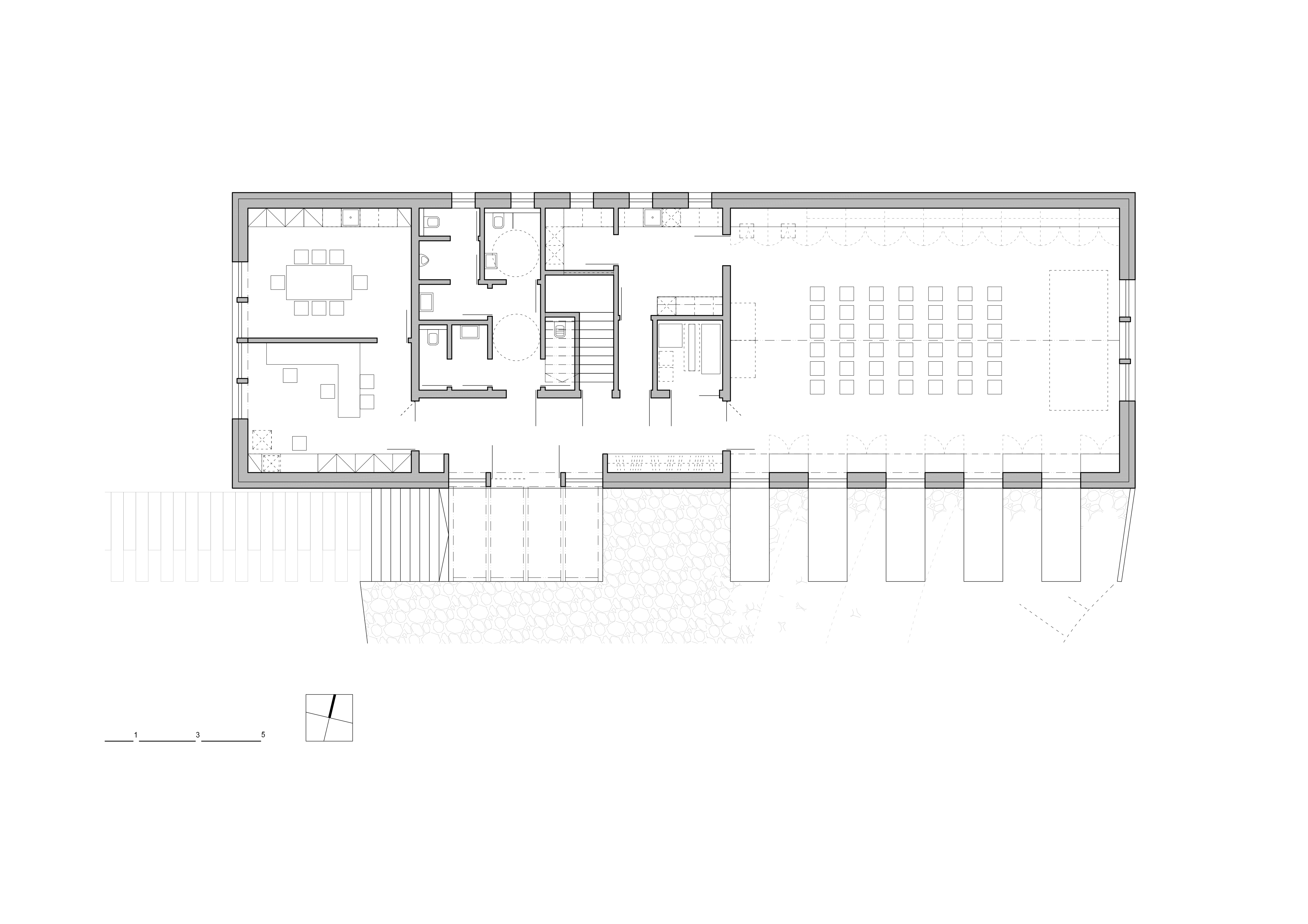
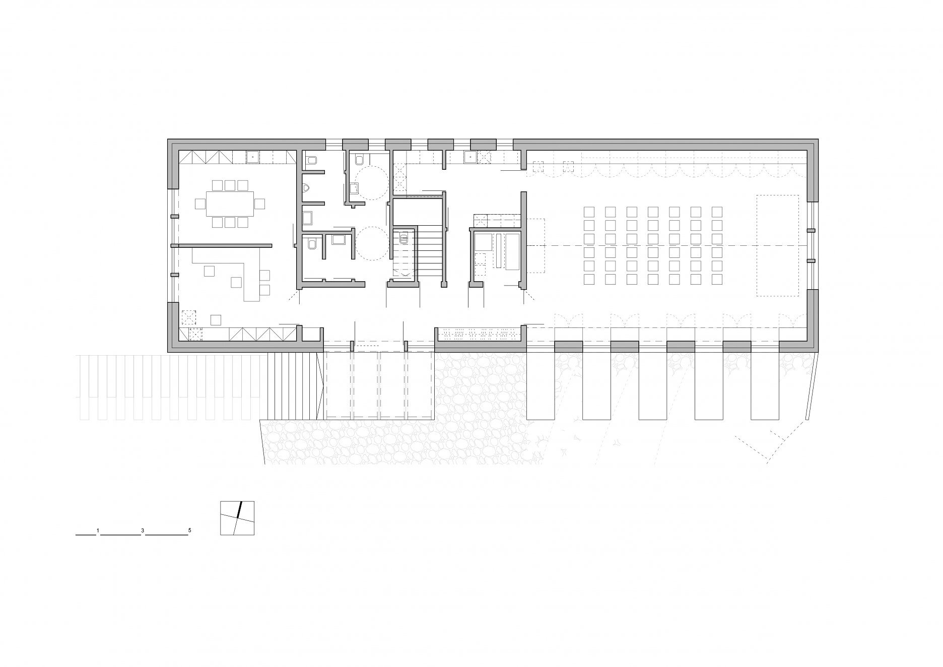
Prevádzkové a dispozičné riešenie objektu je navrhnuté s ohľadom na jeho multifunkčné využitie. Skladá sa z viacúčelovej spoločenskej sály, dvoch kancelárií a zodpovedajúceho prevádzkového a hygienického zázemia. Podkrovie slúži ako technické zázemie, sklad a archív. Sála je koncipovaná tak, aby okrem spoločenských aktivít obce a súkromných podujatí jej obyvateľov mohla poskytovať zázemie aj miestnej knižnici a spolkom. Dom je tak maximálne využívaný počas celého týždňa, čo napomáha jeho úspornej prevádzke.

Konštrukčný základ stavby, v súlade s tvarovým a dispozičným riešením, tvoria murované steny z keramických tvárnic, prestrešené hambálkovým krovom. Vďaka priaznivej orientácii domu na pozemku, kvalitnému zatepleniu a dostatočnému technologickému vybaveniu spĺňa objekt aktívny štandard – vyrobí viac energie, než spotrebuje. Vykurovanie zabezpečuje tepelné čerpadlo typu vzduch-voda. Na streche je inštalovaný fotovoltický systém s výkonom 19,38 kWp, ktorý napája batérie s kapacitou 21,32 kWh. Nevyhnutnou súčasťou energetickej koncepcie je nútené vetranie s rekuperáciou.

Pozitívna energetická bilancia však nie je jediným udržateľným princípom. Architekti využili lokálne zdroje a materiály – vonkajšia kamenná dlažba pochádza z neďalekého lomu, drevo na krov zas z miestneho lesa. Do výstavby, a najmä do uvedenia objektu do prevádzky, sa podľa svojich možností zapojili aj obyvatelia Rudimova.

Objekt bol postavený s príspevkom EÚ. Obecný dom získal ocenenie „Zlatá cihla“ v Programe obnovy vidieka Ministerstva pre miestny rozvoj ČR za technickú a energetickú úroveň stavby, ako aj za jej začlenenie do prostredia obce a krajinného rázu.

Foto: Petr Polák
Foto: Petr Polák
Foto: Petr Polák
Foto: Petr Polák
Foto: Petr Polák
Foto: Petr Polák
Foto: Petr Polák
Foto: Petr Polák
Foto: Petr Polák
Foto: Petr Polák
Foto: Petr Polák
Foto: Petr Polák
Foto: Petr Polák
Foto: Petr Polák
Foto: Petr Polák
Foto: Petr Polák
Foto: Petr Polák
Foto: Petr Polák
Foto: Petr Polák
Foto: Petr Polák
Foto: Petr Polák
Foto: Petr Polák
Foto: Petr Polák
Situácia
SituáciaAutor: Mimosa architekti
Pôdorys 1. NP
Pôdorys 1. NPAutor: Mimosa architekti
Pôdorys 2. NP
Pôdorys 2. NPAutor: Mimosa architekti
Rez
RezAutor: Mimosa architekti
Rez
RezAutor: Mimosa architekti
Rez
RezAutor: Mimosa architekti

Použité Materiály a riešenia:

  • akustický podhľad Knauf
  • keramické tvárnice - nosné konštrukcie
  • omietka - fasáda
  • plech - strešná krytina
  • betón - dlažba pred oknami, schodisko, múrik
  • kameň (pieskovec) - spevnené plochy, múriky
  • drevo - okná, stolárske výrobky, strieška, krov

Ateliér: Mimosa architekti
Podklady: Linka
Fotografie: Petr Polák

Poloha diela

Ing. arch. Petr Moráček
Ing. arch. Jana Zoubková
Ing. arch. Pavel Matyska
Ing. arch. Kateřina Fryzelková
Ing. Roman Belžík

Súvisiace články

Vložené
17. marec 2025
0
1227
Hlavný obsahHlavný obsah
Čakajte prosím