Advertorial

Pozvánka na 2. ročník stavebného veľtrhu BigMarket na Slovensku

Na podujatí sa predstaví až 37 vystavovateľov - popredných dodávateľov stavebných materiálov a inovácií s prezentáciou...

Hotel Hirschen Spa House, Rakúsko

Novotvar v prostredí alpskej obce.

Vytvorte si kúpeľňu snov: dizajnové riešenie od značky hansgrohe

Hansgrohe - prémiová značka kúpeľňových riešení, ponúka nadčasový dizajn, technickú precíznosť a udržateľné inovácie...

Okná Internorm za minuloročné ceny + hliníkový kryt zdarma!

Využite špeciálnu akciu Internorm: okná za minuloročné ceny a hliníkový kryt úplne zadarmo. Ponuka je časovo obmedzená!

Moderné plynové technológie: Efektivita a inovácie pre 21. storočie

Sumarizácia najdôležitejších inovácií, ktoré redefinujúcich využitie tohto energetického zdroja.

Utesňovanie spodných stavieb pomocou hydro-aktívnej fólie AMPHIBIA.

AMPHIBIA 3000 GRIP 1.3 od spoločnosti ATRO predstavuje modernú hydroizolačnú technológiu, ktorá spája vysokú odolnosť,...

Dekarbonizácia individuálneho vykurovania domácností – Green Deal evolučne a nie revolučne

Ambiciózne plány EK narazili na ekonomické možnosti domácností v jednotlivých členských štátoch –...

Minimalistické dvere IDEA – technická precíznosť a čistota prevedenia

IDEA DOOR od spoločnosti JAP prináša do interiéru čistý minimalistický vzhľad vďaka bezrámovému riešeniu a precíznej...

Dom s výhľadom na údolie, Dlouhý Most (ČR)

Kontinuita riešenia od vonkajšieho obkladu až po kovania a kľučky.

Schell Vitus – osvedčené riešenie pre sprchy a umývadlá vo verejnom sektore s viac ako desaťročnou tradíciou

Nástenné nadomietkové armatúry Vitus sú mimoriadne vhodné pre rýchlu a efektívnu...

Kompozitné okná predstavujú súčasnosť a budúcnosť

Okenné profily z kompozitného materiálu RAU-FIPRO X od spoločnosti Rehau sú v porovnaní s tradičnými plastovými profilmi mnohonásobne...

Myotis - stoly 2025

Najnovší sortiment stolov pre zariadenie interiérov...

Priemyselné sklenené priečky Dorsis Digero: svetelné rozhranie pre moderné interiéry

Spojenie moderného dizajnu, funkčnosti a svetla do harmonického architektonického prvku.

Význam prirodzeného svetla pre moderné a flexibilné pracovné prostredie

Kancelárska budova Baumit v slovinskom Trzine prešla premenou na moderné a udržateľné pracovisko. Architekti kládli dôraz...

Konferencia Xella Dialóg predstaví novinky a trendy v stavebníctve

Mottom šiesteho ročníku on-line konferencie odborníkov Xella Dialóg je Efektívny návrh budov 2025+: zmeny a riešenia

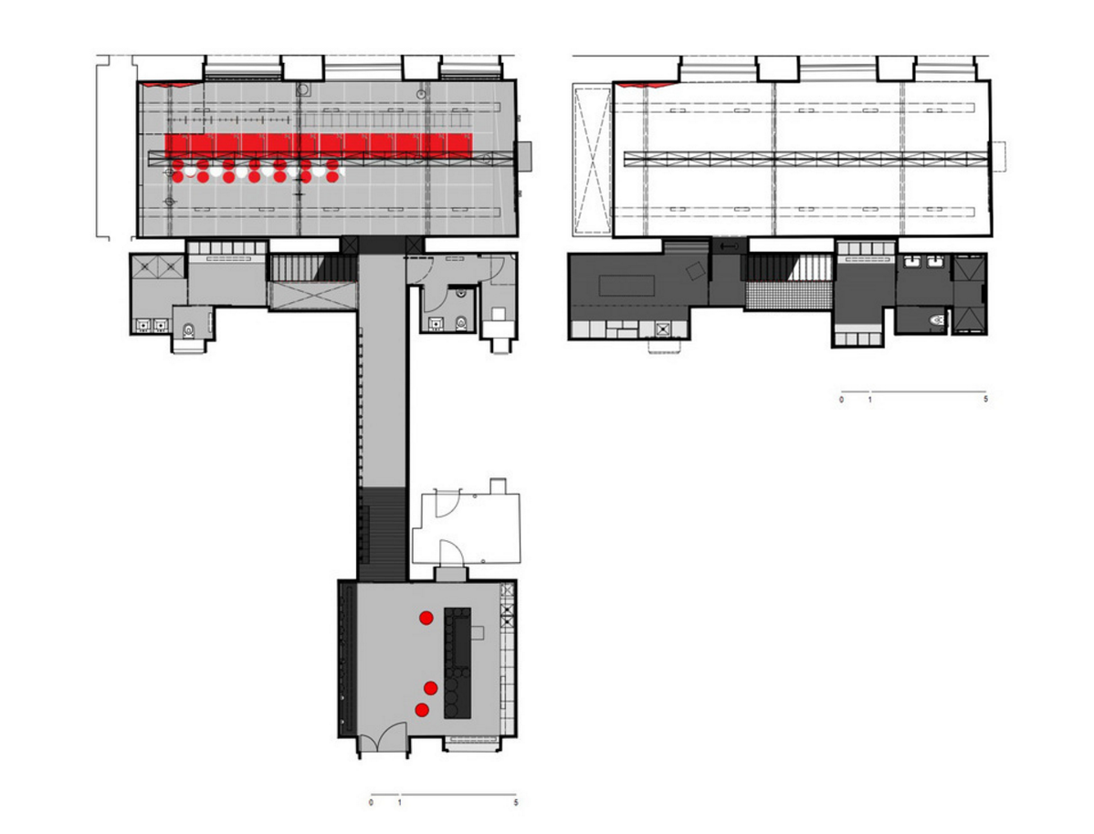
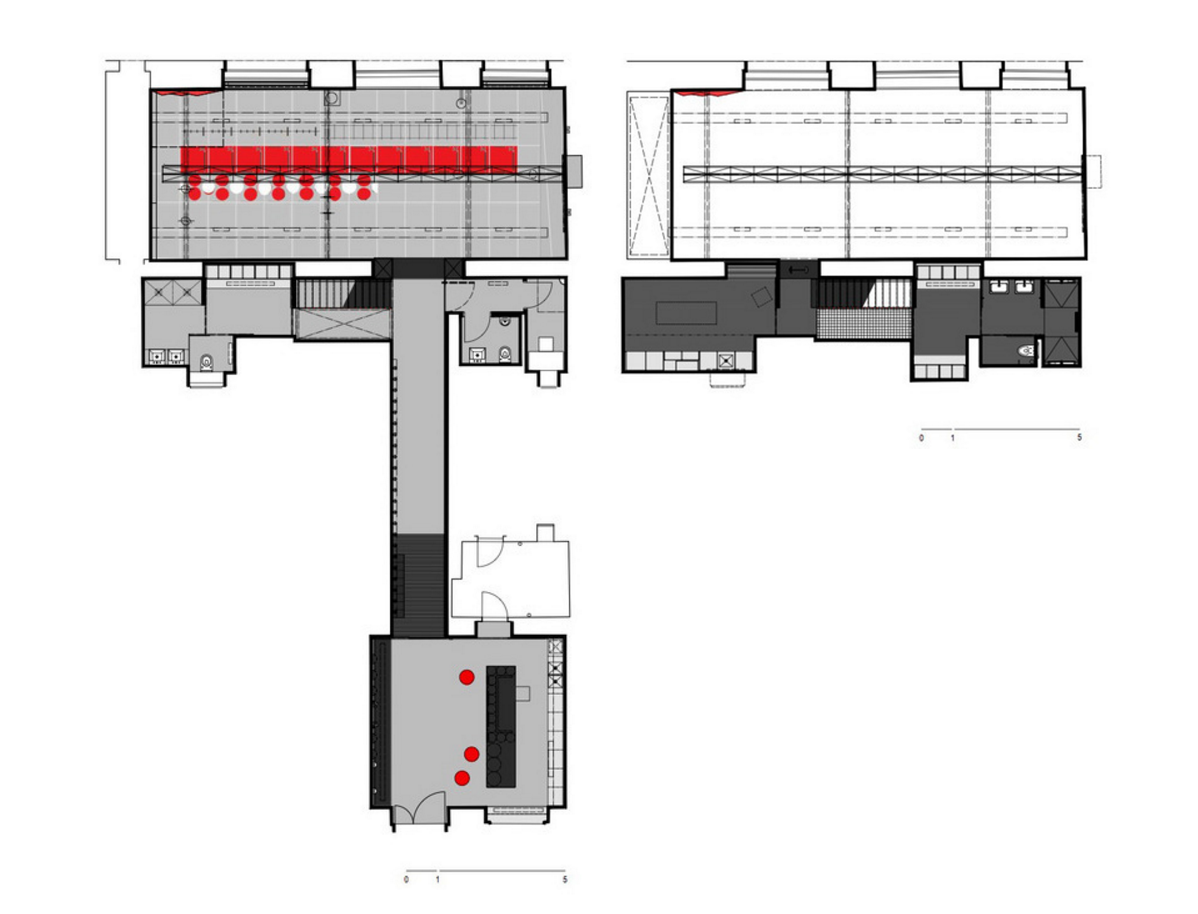
Telocvičňa pre funkčný tréning v Prahe

Predstavujeme Vám realizáciu interiéru Cetra funkčného tréningu POWERFIT v Prahe z dielne českých architektov Mimosa. Funkčný tréning je momentálne veľmi populárny druh cvičenia. Namiesto množstva "železa" človek využíva svoje telo. Telocvičňa pre tento druh cvičenia je určite  jedinečný zadaním.
Diela
Red 304.05.2016
11500+7
Telocvičňa pre funkčný tréning v Prahe
Autori: Ing. arch. Petr Moráček, Jana Zoubková, Pavel MatyskaInvestor: PowerfitPodlažná plocha: 190.00m2Návrh: 2013 - 2014Realizácia: 2014 - 2014Adresa: Lužická 9, Praha Vinohrady, Česká republikaPublikované: 4. máj 2016

Atmosféra tréningového centra sa odvíja od stropných oceľových prvkov interiéru a športového vybavenia. Oproti klasickej posilňovni napchatej oceľov v podobe cvičiacich strojov v PowerFit oceľ dotvára priestor a ilustruje filozofiu klubu "nakúpiť železo vie každý, my to robíme inak. " 

Jakub Skokan a Martin Tůma, BoysPlayNice

Viac vám povedia samotní autori:

Dějiny sportu jsou pestré, lemované nezdolnou vůlí i náhodou, stejně jako bývá nezřídka provázen tvůrčí proces. Zásadní okamžiky moderní historie fitness zachycuje „stěna zašlé slávy“ prvního klubu pro funkční trénink v Praze. Jednotlivé milníky jsou zosobněné příběhy, časová osa končí příznačně – vstupem do aktivní části klubu.

1900: Běh událostí zvrátilo představení pražského cirkusu pana Jakla v Kamhajku u Kolína, jehož hlavní postavou byl obrovitý černoch James Palmare. Ředitel podle zvyku vyzval přítomné k zápasu o ceny. Štíhlý osmnáctiletý mladík odvážně vykročil na podium a za několik minut ležel zápasník na lopatkách. Už roku 1900 se Gustav Frištenský poprvé zúčastnil mezinárodních závodů v Praze a vyhrál nejen v zápase, ale i ve zvedání činek, a dokonce v hodu diskem.

1969: Jako třináctiletý se věnoval fotbalu. Když zjistil, že jeho osobní výkony docházejí jen malého ocenění, ztratil o kopanou zájem. A tak rozšíří svůj sportovní repertoár o plavání, vrh koulí a hod oštěpem. Teprve když trenér pošle mužstvo do posilovny, poprvé v životě spatří, jak se kulturistům pod tou tíhou napínají ohromné svaly, div neprotrhnou kůži. Vytuší, k čemu je doopravdy povolán. Na soutěži Mr. Olympia 1969 se naposledy nechal Arnold Schwarzenegger vyvést z míry úrovní soupeře a zároveň naposledy ho Sergio Oliva připravil o titul.

2013: Návrh a realizace klubu Powerfit v Praze prověřila schopnosti a ocelové nervy architektonických zápasníků v těžké váze.

2014: Šéftrenér Honza se stal nejen vyznavačem TRX, ale i slovníku jemu vzdálených pojmů a rejstříku nových pohledů vnímání prostoru. Neváhá zasvěcovat návštěvníky klubu do principu čistých linií. Architekti přistoupili k precizaci svých strohých figur, což strhlo nevídanou lavinu zájmu o funkční trénink mezi příznivci této profese.

Jakub Skokan a Martin Tůma, BoysPlayNice
Pôdorysy
Pôdorysy
Rezy
Rezy
Jakub Skokan a Martin Tůma, BoysPlayNice
Jakub Skokan a Martin Tůma, BoysPlayNice
Jakub Skokan a Martin Tůma, BoysPlayNice
Jakub Skokan a Martin Tůma, BoysPlayNice
Foto: Eva Vopátková
Foto: Eva Vopátková
Foto: Eva Vopátková
Foto: Powerfit
Foto: Powerfit

Pozrite si performance tanečníka Kryštofa Šimeka v priestoroch gymu:

408
Vimeo

Zdroj: Boysplaynice, Mimosa architekti

Poloha diela

Ing. arch. Petr Moráček
Jana Zoubková
Pavel Matyska

Súvisiace články

Vložené
29. apríl 2016
0
1150
Hlavný obsahHlavný obsah
Čakajte prosím